Spatial Narratives - Interior Design Portfolio - SHOW

Page 1


SPATIAL NARRATIVES

Hello, I'm Natalie Amies, an emerging interior designer deeply passionate about creating functional and beautiful spaces through human-centric and biophilic design principles. I recently completed my Interior Design Diploma and am looking at pursuing a Bachelor's degree in Interior Design to further develop my skills and knowledge in the field. Bringing 15 years of hospitality management and 6 years of corporate work experience to my career in interior design, I am well-versed in the business of people. This extensive background has honed my ability to understand and meet client needs, manage projects effectively, and create environments that are both welcoming and efficient. My experience in hospitality management has taught me the importance of creating spaces that promote well-being, comfort, connectivity, and sustainability while my corporate experience has instilled a strong sense of professionalism and attention to detail.

Throughout my studies, I've demonstrated creativity and innovation in various design projects, showcasing my ability to conceptualize and execute designs that are both aesthetically pleasing and purposeful. I'm committed to using sustainable materials and design solutions, reflecting my awareness of environmental impact and responsibility. My ideal clients are individuals and businesses (residential and commercial firms) who share my passion for interior design that prioritizes functionality, beauty, and a human-centric approach. My design aesthetic revolves around modern Scandinavian influence, incorporating elements that bring the outdoors in and resonate with a sense of harmony. I particularly enjoy working on boutique-style establishments such as retail spaces, hotels, restaurants, and cafes, where I can infuse my design principles & 15 years of hospitality experience to create inviting and impactful environments.

Professional Photography thoughtfully created by: Ash Lifestyles Photography 2023

OBJECTIVE & SUMMARY

As a recent honors graduate of Interior Design I am driven by dedication and motivation & possess a firm grasp of interior design principles, complemented by a meticulous attention to detail and a fervent desire to craft spaces that inspire. In pursuit of opportunities within the construction & design industry, I offer a robust work ethic, exemplary time management abilities, and an unwavering commitment to delivering excellence. My objective is to synergize my academic background with my 26 years of practical & management experience to make meaningful contributions in the workplace.

EDUCATION

St. Francis High School Calgary, AB 2000

High School Diploma

SAIT

Calgary, AB 2010

Photography Certificate

VCAD - Virtual Delivery

Vancouver Visual Art & Design

Interior Design Diploma

01/2023 - 09/2024

VOLUNTEERING:

Habitat for Humanity: Construction & CommitteeStart Date TBD

The Town of Cochrane: Cochrane Activettes, Helping Hands Society.

Cochrane Humane Society

SKILLS

Design Theory

Concept Development

Space Planning & Visual Design

Technical Drafting

Client Relation Management

Conflict Resolution

Communication

Self Motivated & Time Management

Administration

Event & Project Management

Team Building & Collaboration

SOFTWARES

Autodesk AutoCAD

Autodesk Revit

Autodesk 3ds Max

Trimble Sketch-UP

Adobe Photoshop

Adobe Illustrator

Adobe InDesign

Adobe Acrobat

Microsoft Word

Microsoft Excel

Microsoft Power Point

Microsoft Teams

LANGUAGE:

STUDENT EXPERIENCE

Visual College of Art & Design | Vancouver | Online Delivery

01/2023 - 09/2024

Create designs for diverse interior spaces, incorporating design principles to achieve both aesthetic appeal and functionality.

Conduct thorough client profiles and site assessments, achieving thorough concept development

Develop precise floor plans that take into account factors like interior circulation, anthropometrics, human-centric lighting, and egress.

Choose suitable finishes and furnishings to enhance the project's functionality and style.

Create technical drawings and renderings using industry-standard CAD and design software to effectively convey design concepts.

WORK EXPERIENCE

2000 - 2008/2018 - 2020 Hospitality Manager

Experienced Hospitality Manager skilled in restaurant operations, staff management, and event planning. Successfully opened and managed new establishments, handled hiring and training, ensured health and safety compliance, and provided excellent customer service. Adept at organizing events, managing payroll, and resolving customer complaints, with a strong focus on operational efficiency and guest satisfaction.

2013 -2018 Self Employed & Domestic Manager

RESUME

natalie.amies@gmail.com

403-874-8734

LinkedIn

Portfolio

The Domestic Manager is responsible for the comprehensive management of household operations, including budgeting, scheduling, and daily logistics. This role involves meticulous financial oversight, strategic planning, and efficient coordination of family activities and needs. Essential skills include exceptional organizational abilities, financial acumen, and time management, coupled with strong interpersonal and communication skills. This position demonstrates a proven capacity for multitasking, adaptability, and effective decision-making, offering a versatile skill set that is highly transferable to professional environments.

2008 - 2013 -AP Administrator & Office Manager

Managed vendor payments, payroll processing, and reconciled invoices. Handled new vendor applications and updated databases. Provided clerical and administrative support, including HR inquiries, benefits management, and WCB claims. Created company policy handbooks and managed company credit cards and expense accounts.

REFERENCES:

Available upon request

01 02 03 04 05

RESIDENTIAL-BEACHVACATION HOME/YOGARETREAT

OCEANZENYOGARETREAT

SOFTWARESUSED:REVIT

COMMERCIAL-HOTEL& EVENTCENTRE

GAUCHE-FOGOISLANDHOTEL &EVENTCENTER/RETREAT

SOFTWARESUSED:AUTOCAD& SKETCHUP

COMMERCIAL - BOUTIQUE RESTAURANT

VANCOUVER - DAVIE STREET

TERROIR GASTRONOMY LOUNGE

SOFTWARESUSED:AUTOCAD& SKETCHUP

RESIDENTIAL - PASSIVE CONDO UNIT

JOHNSON FAMILY - RIVER HEIGHTS TOWNHOME

SOFTWARES USED: AUTOCAD

COMMERICIAL - CORPORATE OFFICE

SHOPIFY HEADQUARTERS

SOFTWARES USED: AUTOCAD & SKETCHUP

1RESIDENTIAL - OCEAN ZEN YOGA RETREAT & VACATION HOME

CONCEPT

Ocean Zen Yoga Retreat & Vacation Home embodies a serene, coastal sanctuary that harmonizes modern luxury with natural tranquility. The design concept centers around an oversized kitchen and expansive common area in the main house, fostering communal gatherings and culinary creativity. The seamless transition to the large exterior deck invites the outdoors in, guiding guests towards a covered yoga space by the beach where the rhythmic sounds of the ocean enhance mindfulness and relaxation. The secondary house complements this vision, offering additional storage and leisure space with a spacious deck and stairs for direct access to the yoga area. Thoughtfully placed beach chairs and umbrellas dot the shoreline, inviting sun-soaked afternoons and peaceful ocean contemplation. This retreat is designed to provide a holistic escape, blending comfort, wellness, and the serene beauty of the coastal landscape.

SOFTWARES USED: REVIT

PROJECT TIMELINE: APR - JUNE 2024

SQR FOOTAGE: 3000 sqr/ft

The interior features a light and airy color palette, creating a serene backdrop that enhances the sense of calm throughout the space, mirroring the beautiful beach along San Luis Obispo. Dark green accents bring in the lush hues of coastal vegetation, while sandy-colored recycled glass tiles evoke the natural tones of the shoreline. Jute-textured wallpapers add a subtle, earthy texture, reminiscent of beach grass and sand dunes. These finishes thoughtfully tie the interior to its beach retreat setting, blending comfort with the natural beauty of the coastal landscape.

Site plan: Main House on the East Side with complementing guest house on the west side of the property.

The luxurious main house is designed to cater to both intimate family gatherings and larger retreat groups, offering an expansive layout that prioritizes comfort and functionality. At the heart of the home, the oversized Chef’s kitchen stands as a centerpiece, equipped with top-of-the-line appliances and ample counter space, perfect for culinary enthusiasts or professional chefs. This kitchen flows seamlessly into a spacious common area, creating a harmonious environment ideal for communal dining, socializing, or relaxation.

The interior effortlessly extends to the outdoors, where a large, elegantly designed exterior deck invites you to enjoy the natural surroundings. This deck provides direct access to a covered yoga space by the beach, offering a serene setting for wellness activities and meditation. Whether hosting a multifamily vacation or a rejuvenating retreat, this property combines luxury with thoughtful design to create an unparalleled experience for all who visit

Floor Plans

Adjacent to the main property, a secondary house serves as both a guest house and additional retreat space. It offers ample storage and leisure areas, featuring a generous deck and direct access to the yoga area via a well-designed staircase.

Main House - 2nd Floor Guest House
Main House - Main Floor

Technical Drawings & Renderings

The main floor's open-concept design is enhanced by carefully selected finishes that elevate the space. Walls in Pure & Original Fresco lime paint in Bone create a serene atmosphere, paired with black matte hardware for a modern touch.

The kitchen and bathroom feature elegant Calacatta marble tiles, White Quartz counters, and a waterfall-edge island. Custom Black Walnut cabinets and LVP flooring add warmth and natural richness. Smokey Amber Ombre pendant lights with tunable Edison LED bulbs offer adjustable ambiance over the island, while recessed pot lighting ensures a well-lit space. Large windows on all sides fill the interior with natural light, seamlessly blending indoor and outdoor environments.

Primary House Kitchen & Common Space

A spiral staircase leads to the second floor, where two south-facing bedrooms each feature a queen bed and two sets of bunks, providing ample sleeping arrangements. A large full bathroom is situated between the bedrooms, with a central living room for relaxation.

On the north side, the primary suite offers expansive ocean views, a sitting area, walk-in closet, and a luxurious ensuite with a steam shower and water closet. The suite extends to a private deck, perfect for sunbathing, lounging, and yoga. Upstairs, vaulted ceilings and expansive windows continue the luxurious, airy feel.

Section Details & Renderings

The west-side guest house is designed for both comfort and functionality, featuring a leisure common space, ample storage, and a full bathroom. Its expansive deck provides direct access to the beach cabana and yoga compound, seamlessly integrating indoor comfort with the serene outdoor environment.

Section View - East View - Secondary House
Section Detail - East View - Primary suite & Terrace
3D Render - Secondary House - Common Space & Terrace
3D Render - Primary suite, Terrace & Yoga Space

Site & Elevations

The Ocean Zen Yoga Retreat & Vacation Home is a secluded coastal sanctuary, surrounded by mature trees that ensure privacy. The property features a private yoga compound, a cabana, and an outdoor kitchen, all seamlessly integrated with a private ocean beach. This retreat offers an exclusive escape, blending natural beauty with luxurious amenities to provide a tranquil and intimate experience.

North Elevation
South Elevation
East Elevation
West Elevation

The exterior of the Ocean Zen Yoga Retreat & Vacation Home is expertly designed to blend durability with elegance, tailored for the coastal climate. Clad in cobblestone-colored James Hardie board, the structure is fortified against ocean weather, while black-framed windows add a sleek, modern touch. Decorative concrete pillars on the deck provide both structural support and visual interest, complementing the composite decking that ensures low maintenance and longevity. The yoga compound features wooden beams and a louvered pergola, enhancing the space with natural materials and functional design. Each of these finishes is chosen for its ability to withstand the harsh ocean environment, ensuring that the retreat remains both beautiful and resilient over time.

3D Render - North View - Primary House, Secondary House, Beach Cabana & Outdoor Yoga space Technical Drawings & Renderings

COMMERCIAL - “TERROIR GASTRONOMY LOUNGE” DAVIE STREET, VANCOUVER

CONCEPT

Our design for Terroir Gastronomy Lounge masterfully blends sophisticated elegance with rustic charm, celebrating the rich diversity of Canadian terroir. The space is thoughtfully curated to evoke a deep connection to nature, utilizing warm tones, natural textures, and organic forms to create an inviting and refined atmosphere. Lighting is meticulously crafted to enhance the visual appeal of culinary presentations and elevate the overall dining experience. In addition to focusing on an exceptional patron experience, the design emphasizes the functionality required in a high-paced environment. Every element, from the layout to the selection of materials, is carefully considered to support seamless service and operational efficiency. By integrating practical design solutions with an immersive aesthetic, we create a harmonious space that not only delights guests but also facilitates the dynamic demands of a bustling culinary venue.

SOFTWARES USED:

AUTOCAD & SKETCHUP, PHOTOSHOP

PROJECT TIMELINE: APR - JUNE 2024

SQR FOOTAGE: 1200 sqr/ft

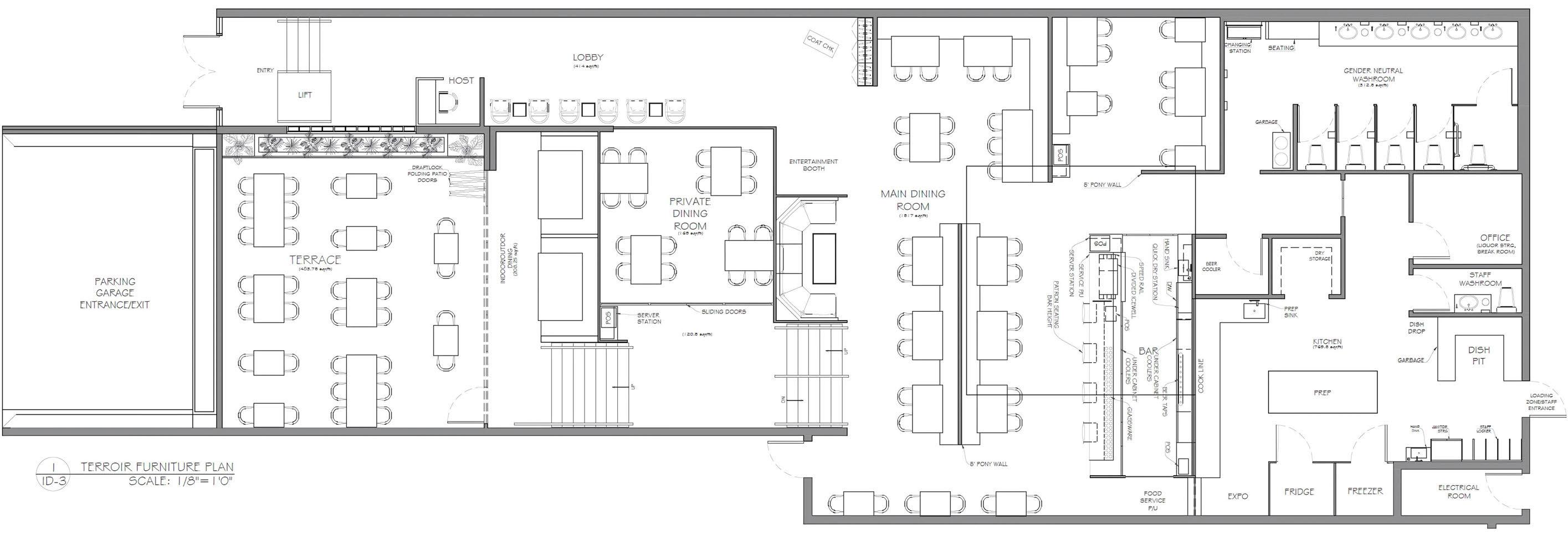
Delineating spaces in a restaurant is crucial for enhancing the dining experience by establishing a comfortable and wellorganized environment. Clearly defined areas for eating ensure that diners can enjoy their meals without feeling cramped or disrupted, promoting a sense of privacy and relaxation. This spatial organization not only enhances guest comfort but also facilitates a more enjoyable dining experience by minimizing noise and visual clutter.

Furthermore, strategic delineation of spaces optimizes traffic flow and improves service efficiency. By thoughtfully arranging seating areas, pathways, and service stations, the layout supports smooth movement for both guests and staff. This efficient design reduces bottlenecks, streamlines service delivery, and helps maintain a high standard of customer satisfaction.

Terroir CAD Floor Plan
Terroir Seating Concept Sketch

COMMERCIAL-“TERROIRGASTRONOMY LOUNGE”-DAVIESTREET,

VANCOUVER

Bar Design

At Terroir Gastronomy Lounge, bar design plays a vital role in both operational efficiency and creating a memorable ambiance. The bar is thoughtfully crafted to ensure a seamless flow of service, with a layout that supports swift and effective beverage preparation and delivery. High-quality materials and ergonomic design enhance functionality, allowing staff to work efficiently during peak times. This thoughtful approach ensures that the bar becomes a vibrant, engaging centerpiece that complements the dining experience and contributes to the distinctive character of Terroir Gastronomy Lounge.

Terroir CAD Service Bar Elevation
Terroir CAD Floor Plan

The bar area is designed to be both inviting and versatile, accommodating a range of patrons from casual visitors to sophisticated diners. By blending form and function, the bar design at Terroir not only supports exceptional service but also enriches the lounge's ambiance, making it a key feature in drawing and retaining guests.

Bar Design

Beyond practicality, the bar serves as a central visual element that contributes significantly to the lounge's atmosphere. Its design integrates sophisticated aesthetics with rustic charm, reflecting the overall theme of celebrating Canadian terroir. Elegant finishes, strategic lighting, and carefully selected decor elements create a visually striking focal point that enhances the guest experience.

Terroir CAD Bar Back Elevation
Terroir 3D Bar Design Render
Concept Sketch

Custom

Seating Design

Custom banquette seating is crucial in restaurant design for several reasons:

Comfort: Tailored seating ensures ergonomic support and a cozy dining experience, encouraging patrons to stay longer and enjoy their meal.

Table Turnover: Well-designed banquettes can increase efficiency by optimizing space, allowing more guests to be seated comfortably, which can enhance turnover during peak hours.

Reservation Adaptability: Custom layouts can accommodate various group sizes, from intimate dinners to large gatherings, providing flexibility for reservation management.

Aesthetics: Banquettes offer a cohesive, polished look that complements the restaurant's overall design, creating a welcoming and visually appealing environment.

Terroir Custom Seating Render

Embracing a farm-to-table ethos, this sanctuary features a raised flooring system adorned with artificial turf and pristine white patio stones, ensuring both effortless maintenance and a polished ambiance.

Central to its charm, an in-house greenhouse flourishes with hot house tomatoes, aromatic herbs, and an array of fresh vegetables, effortlessly bridging garden freshness to the dining experience. Overhead, a lush canopy of foliage not only enhances the biophilic allure but also shields patrons from the urban bustle, fostering an oasis of tranquility.

A mechanical louvered pergola crowns the space, its adaptive design effortlessly balancing natural light and shelter, ensuring year-round comfort amid Vancouver's dynamic weather. Whether bathed in sunlight or sheltered from rain, the terrace beckons with an invitation to savor culinary delights in an ambiance where nature and gastronomy converge seamlessly.

Terrace Design

Terroir CAD Bar Back Elevation
Terroir Front Facade Render
Concept Sketch

Thank You!

As a proud graduate of VCAD's Interior Design program, I want to express my deepest gratitude to the incredible instructors who guided and challenged me throughout this journey. Your expertise and encouragement have been invaluable in shaping my growth as a designer. To my friends and family who stood by me, your unwavering support and belief in my vision have meant the world to me. I couldn't have done this without each of you—thank you for being a part of this exciting chapter in my life!

As I transition into the professional world, I’m eager to apply the skills and knowledge gained at VCAD to create impactful, thoughtful spaces. My education has prepared me to approach design with creativity, sustainability, and a human-centric focus. I look forward to collaborating with innovative firms and contributing fresh ideas and dedication to future projects.

Interior Designer: Natalie Amies natalie.amies@gmail.com 4038748734

https://linktr.ee/rbcustomsltd

Turn static files into dynamic content formats.

Create a flipbook
Issuu converts static files into: digital portfolios, online yearbooks, online catalogs, digital photo albums and more. Sign up and create your flipbook.