Naejung Park



![]()







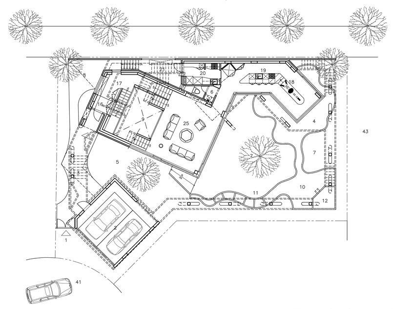
l Professional
l IROJE KHM Architects
l January 2022 - December 2022
l Jeonju, South Korea
l Client Communication, 3D Modeling, Construction Drawing


Role

l Professional l KKKL
l July 2021 - September 2021
l Wonju, South Korea
l Facade Study, 3D Modeling and Rendering for Design Development
The study explores facade panel design where patterns are perceived as texture rather than surface ornamentation. By systematically adjusting the width, spacing, and depth of the pattern, multiple variations were tested to achieve the optimal balance between visual depth and material expression.
The project explores the relationship between modular repetition and rotation in high-rise architecture. The stacked, rotating structure alters the facade’s form from various viewpoints, creating a continuously shifting visual impression. The curved surfaces interact with light and shadow, enhancing the depth and movement of the facade.
This design approach goes beyond mere aesthetics, enabling a systematic strategy that considers structural efficiency and adaptability. By breaking away from the static verticality of highrise buildings, it demonstrates how simple geometric operations can generate complexity and spatial richness, proposing a new architectural typology.





Modular Facade
Each façade is built from seven modules, combined to optimize green space and daylight conditions.
Each floor accommodates four residential units: two for twoperson families and two for fourperson families.
The rotation of the floor plan introduces variations, such as expanded rooms or added terraces. These adjustments provide a wider range of residential options, enhancing spatial diversity and adaptability.



Inspired by the natural growth process of shantytowns, which began as small houses and evolved into villages, this project proposes a prototype for a housing complex that can accommodate the entire urbanization process. The design starts with three different plazas, each expected to foster unique interactions.
The size of each plaza is determined by its intended use, and building units are created accordingly. The project begins with a small-scale, low-rise residential area surrounding a fish farm and evolves into an apartment complex equipped with both public and commercial facilities. Unique modular units create three sizes of external spaces, introducing diversity within repetition and offering adaptable, customizable spaces that can be freely disassembled and reconfigured by users. This project aims to present a new scenario for the development of the Jungnangcheon shantytowns and, more broadly, to propose a housing prototype applicable to future cities worldwide.





Visitors enter the complex through a pedestrian path between rail bridges used for cargo transport. The journey begins at





Unit Type - 2
Building unit width adjustment type, used to determine the size of a plaza. Relatively smaller units make it easier to apply in areas with narrow river widths.





Unit Formation
Unit Type - 1
Building unit width is kept constant, but the curvature is varied to determine the size of the plaza. This type is ideal for implementing the perfect plaza size in sections with ample river width.








Visitors enter the complex through a pedestrian path between rail bridges used for cargo transport. The journey begins at the most public space, the market square, and then progresses to the dock square and housing square, gradually transitioning to more private areas.
The circulation design allows for an experiential sequence from public to private spaces. To help people recognize their location, the entrance gates of each square are designed with varying scales.













A complex starts with a fish farm square. Most of the residents work in the fish farm for living. Over time, as the number of residents increases, dock squares and residential squares are added, and the complex forms a village. Fish farm core Dock expansion Residential cluster Village


l Academic
l Klaas Kresse
l Spring 2021
l U-dong, Haeundae-gu, Busan, South Korea
Excellence Award in Graduation Thesis Project
Once a visual and physical barrier, the abandoned railway beside Haeridan-gil is reimagined as a dynamic urban interface.
This project transforms the derelict site into a porous membrane—an architectural threshold that invites movement, curiosity, and interaction. The building fosters continuous circulation through flexible public programs on its lower floors. These activities remain visible from the street, drawing passersby into and through the structure toward Haeridan-gil. Rather than erasing the boundary, the architecture reframes it: the line becomes a zone of negotiation, where spatial identities are both preserved and reconfigured.
Here, architecture is not a static mass, but a medium of urban mediation, facilitating exchange while honoring difference.


A facade was designed to be permeable in order to blur the presence of a massive building. The permeable facade is implemented with louvers. The building achieves harmony with its surroundings through the facade.


The open lower floors, from the 1st to the 3rd floor, are filled with programs such as pop-up stores, exhibitions, busking, and performances, where people can pass through and enjoy. Program of lower floors that attracts people









The study focused on the impact of light and spatial dimensions on human psychology and cognition. By utilizing the continuous light from slit skylights, the design guides movement through the space. The roof is segmented and spaced to allow light entry, with each roof segment supported by rooms constructed of thick walls.
This arrangement forms a structure not of a large, singular space, but a collection of smaller spaces, facilitating the coexistence of both closed and open areas. Different activities occur in these two types of spaces, offering varied experiences.
Considering the vulnerability of books to direct sunlight, the design strategically places the reading room on the third floor, where the skylight’s light directly enters, and the storage on the second floor. To suggest movement on the second floor, void spaces are created around blocks housing vertical circulation elements like elevators and staircases. This design allows some of the skylight’s light to filter down to the second floor.




The design captures the influence of light on human perception, where the lines created by light and shadow guide people’s movement. It includes a study of the light seeping through narrow gaps.










Roof Segmentation Logic
The site is in Jongno gu, with the designed building located on a tunnel overlooking Sajikdan, an important cultural heritage. The roof is divided along an axis connecting the library and Sajikdan, guiding library users naturally towards the view of Sajikdan through the skylight’s light.

Structure Block Axonometric Diagram
To create a slit skylight, the roof is divided into segments. Independent block structures made of thick walls support each of these roofs.




l Summer 2024
l Smith-9th St Station, Brooklyn
The Manhattan skyline is often seen as a symbol of human triumph over nature, but when viewed from Smith-9th St Station, it becomes clear that it is not separate from nature but a product of it. Manhattan’s solid bedrock enabled the rise of skyscrapers, while Gowanus, with its softer ground, remained a lowrise industrial zone. Over time, Gowanus Creek was dredged into a canal to serve the needs of industry, and the station was built 87.5 feet above it, framing both the skyline and the cost of its ascent. The canal, which once supported the city’s growth, eventually absorbed its waste, becoming one of the most polluted waterways in the country.
This project reimagines Smith-9th St Station as a mundane temple, a sacred space embedded in daily life. Instead of venerating a deity, it offers a place to observe and feel reverence for the entangled relationship between geology, water, industry, vegetation, and human life. The long climb to the platform resembles a temple approach, and the platform itself becomes a space of quiet ritual where each arrival and departure is a moment of reflection. Movement through the station is no longer just transit but a meditation on the forces that have shaped the city and those it has left behind.
Deep, continuous louvers selectively reveal the view at certain angles, guiding visitors to simultaneously see both the Manhattan skyline and the Gowanus Canal. At this convergence of perspectives, the station prompts a quiet question about the origins of the city and the price of its growth.


Mundane Temple
The train station can be like a temple, but instead of venerating a deity, it is a place to observe and feel awe towards the sacred entanglement of all things.
The ascent to the station resembles the approach to a temple, and the platform serves as a sacred space where regular rituals take place. Various materials abstractly represent natural elements that influence the view from the station.








Deep, continuous louvers open up the view when seen from a specific angle, guiding people to simultaneously take in views of both Manhattan and Gowanus.

l Academic
l Mireia Luzarraga
l Spring 2025
l Pitch Lake, La Brea, Trinidad
This project envisions a post-extractive architecture that restores ecological and cultural sovereignty to Trinidad’s Pitch Lake—the world’s largest natural asphalt lake, long subjected to colonial and corporate exploitation. Rather than extracting from the land, Immersion Seed proposes a ritual of return, healing, and regeneration.
At its core is a bamboo bathhouse that floats, then slowly sinks into the lake over time. As visitors bathe within the structure, it offers a sensorial experience— warmth, scent, and texture—while gradually immersing into the pitch. This descent, known as the Pitch Regeneration Ritual, becomes a symbolic act of restitution, acknowledging the site’s history of environmental degradation. Built entirely by hand using low-tech, locally manageable methods, the structure supports biodiversity through planted cellulose foam skins that attract birds and draw water to native wildflowers. Designed as a form of eco-tourism, Immersion Seed keeps all economic and construction benefits within the local community, supporting decolonial futures.
Ultimately, this is not a monument but a disappearing architecture—one that transforms extractive history into a space for memory, mourning, and renewal.










A Bath, Design for Sensory Experience and Transscalarities
Immersion Seed offers a nonexploitative bathing experience at Pitch Lake, using heat from the pitch and nearby springs, and rain water. Two seed types link microorganisms to the ecosystem: the Cellulose Flower Skin supports microbial life, while the Bird Seed provides rest and bathing for local birds.
Build to Sink, Built by Hand
Built by hand with low-tech methods, Immersion Seed uses materials and techniques accessible to local communities. Economic benefits stay with them, supporting decolonial futures.


Sinking Structure
The bathtub remains afloat while only the surrounding frame gradually sinks into the pitch. Visitors bathe within the descending frame, naturally engaging in a ritual of reflection and atonement, confronting the history of exploitation embedded in the Pitch Lake.

















Seed
Seed, decomposed
Microorganism
A time-layered diagram over the original section of the Museum of the Pitch Lake at La Brea, tracing the decline of the pitch volume during the extraction years (1893 - 1925), followed by a slow recovery initiated by the immersion seed.