MENGYAN ZHOU
SELECTED WORKS
•
ACADEMIC WORKS:
01: Comprehensive Care Community
University of Southern California | School of Architecture - Topic Studio Project, Fall, 2023
Professor:
Victor Regnier FAIA
Project Location:
4020 Compton Ave, Los Angeles, CA 90011
- The Best Studio Project
- 1st Prize cash award Winner sponsored by Thomas Safran and Associates - Presented in LA AIA Health Care Committee
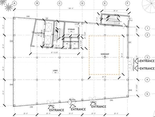
In the vibrant Los Angeles community, this healthcare project stands as a connection uniting various facets of daily life. Positioned between a high school, a community recreation center, commercial zones, and a residential area, this project is a testament to functional and visual integration. Comprising three clusters – an out-patient clinic, life-long housing, and memory care units – the project transitions from public to private spaces. Catering to temporary out-patient clinic visitors, dedicated staff, seniors residents, and dementia residents, this project prioritizes the provision of reasonable public areas and a safe, healthy environment. Through the design process, I aspire not only to enhance community spaces but also to enrich the lives of its diverse inhabitants, fostering a sense of well-being, safety, and belonging in this space.


ENTRANCE & DROP-OFF
MEMORY-CARE CLUSTERS
LIFELONG HOUSING






PHYSICAL THERAPY







ENTRANCE & DROP-OFF


THE NORTH EDGE
1. Dense Trees
Block vision and provide privacy
PRIVACY HEDGES
Bushes or shrubs commonly used to obscure

ROOF HARVEST GARDEN
Fruit Trees and Bushes: Residents can grow their own fruits and vegetables
'COMPTON GARDEN'
1. Evergreen Trees and Shrubs
2. Shade Trees: creating comfortable outdoor public spaces
'LOOP
GARDEN'
1. Ornamental Trees and Shrubs: eg: flowering cherry trees, azaleas, and ornamental grasses
2. Fruit Trees and Bushes:
Edible Harvest: Fruit-bearing plants contribute to the garden's productivity. Examples include apple trees, blueberry bushes, and citrus trees.
CENTRAL DARDEN
1. Climbing Plants:
Vertical Interest: Vines and climbing plants can be used on trellises or walls to add height and vertical interest. Examples include clematis, wisteria, and climbing roses.
THE SOUTH EDGE
1. Ornamental Shrubs ornamental grasses

Lobby
· check-in desks, kiosks, admissions, info
· waiting area/ coffee lounge
· medical resource center/library/ self-help
· public toilets (mens/womens)
· stairs and elevator lobby
Seperate Waiting Room
Triage Nurses Station
· nurse's station/ reception
· two exam rooms
· one room for bed w/curtains
· bathroom
Laborotory
· reception desk + waiting zone
· blood chemistry, stat lab, testing
Outpatient Exam Clinics
two OP modules
Cardiac/inernal med + General/Behavioral
each clinic module:
· reception, waiting and check-in spaces
· 8 exam rooms
· 1 large treatment/procedure room
· 1 smaller treetment room
· 1 private office
· equipment/storage
· clean+dirty utility rooms
· tpilet
· lounge + general open office
Doctor's Offices
referred to as the "Meadow"in the Kaiser
Discussion/Materials

· blook bank
·
2 bathrooms
· tech work station & 1 office
· phlebotomy stations
Storage/Security/BOH
Pharmacy
· 12 small offices
· open office for 7-10 staff
· two private office spaces
· snack bar and sitting area
· team meeting room
· stoage; dirty/clean linen
· toilet
Staff Lounge
· lunch area with soft seating, small kitchen (access to outside)
· 2 rooms w/toilets, lockers, lavatories and a shower (men and women) Staff Office
· executive offices
· meeting room
· open office
Radiation and Imaging Suite
· waiting+receiption desk
· 2 gowning rooms
· 2 toilets
· image analysis office
· clean+dirty room
· locker storage room
· ultra sound room
· XRAY room
· 1 general radiation and 1 fluoroscopy



ENTRANCE

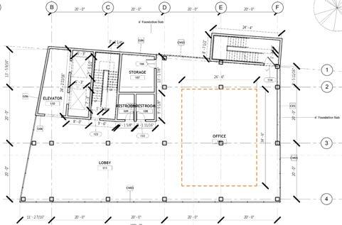
LIFELONG HOUSING FLOORPLAN - GROUND
Lobby
· reception
· elevator/elevator lobby&stairs
· mailbox area
· 2 restrooms
Other Shared Spaces
· media/lecture room
· adult day care center(for housing residents and dementia residents
· green Grocer
· 2 medium classrooms can be combined
· mailbox area
· 2 restrooms
Open Space for Residents
· arts and crafts studio
· library and reading zone
· cafe also used for activities/socializing w/ outdoor space
· bistro bar+storage · activity zone (card playing, large screen tv)








MEMORY CARE CLUSTERS - FLOORPLAN
Staff Space
· staff bathroom+overnight sleeping area
· staff office
· storage
Lobby/Entry/Common Sp
· foyer/entry
· kitchen/dining area/breakfast/food storage
· shared living/social/activity space
· open spae for stretching exercise
· public laundry

Resident Units
Maximizing the quality of the indoor environment. Large windows, balconies, ceiling lights, patios, etc. are important design elements.
Provide social and activity space, encourage residents to communicate with each other and participate in community activities, and reduce loneliness.
Includes measures to prevent trips and slips, such as accessible entrances, nonslip floors, handrails and appropriate lighting.
All spaces are accessible, ensuring seniors can use the building with ease. Provide elevators and ramps to facilitate the movement of seniors, especially in multi-story Housing and Clinic buildings.
The built environment is simple and clear, reducing confusion and complexity
The indoor space is spacious and transparent, avoiding crowding and overly complex layouts to accommodate wheelchairs and walkers
02: USC CENTER FOR SOCIAL JUSTICE
University of Southern California | School of Architecture - Studio Project, Spring 2023
Professor: Geoffrey Von Oeyen
Project Location:
47 N Main Street, Los Angeles, CA 90012
Project Summary:
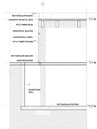
Structure: Heavy Timber or Mass Timber
The project frame work provides the studio wide parameters for the comprehensive design of a min 7 story vertical structure at the lots of 747 N Main Street, Los Angeles, CA 90012, for the new USC Center of Social Justice.The USC Center for Social Justice is an incubator where USC faculty and students from multiple disciplines engage with neighborhood community in issues of social justice through three departments: service, research and community engagement.
Service include but e.g. access to legal representation or disaster relief fundraising. Thus the building needs provide access of clients to legal representatives and adequate office workspace for other service activities.










•ZONING: C2-2
•STATE ENTERPRISE ZONE: East Los Angeles
•500 ft school zone: No •parking not required

6:1
This page demonstrates the important impact of site analysis on design goals and strategies. First, from the sustainability objective: this building is twisted to create balconies and big openings. the facade with more balconies and openings is oriented towards the southwest, which is a direction with more natural ventilation and sunlight. Not only that, this building is oriented and twisted this way in order to incorporate the city grid.
SITE
ANALYSIS & BUILDING
MASS












03: St.Petersburg Art Gallery
Individual Work - Spring 2021
Project Location:
St. Petersburg, Russia
Project Summary:
The site was chosen on the banks of the Great Neva River in St. Petersburg. There are commercial, industrial, and residential areas nearby, with easy access to many green and pedestrian areas, as there is also a port on the river. In terms of noise, apart from some of the noise from the harbor, it is the urban noise from cars and other traffic. Winds mostly come from the southwest in winter and from the northwest in summer. St. Petersburg has a mild maritime influenced continental climate with warm summers and cold winters. There are many public facilities around this site, theaters, institutes, libraries, churches, art academies, etc., but in such a port city, an art museum/ gallery built on the banks of the river will better integrates humanity and art with this city and nature.




































04: CO-INDIVIDUAL HOUSING
University of Southern California | School of Architecture Studio Project, Fall 2022
Professor: Hadrian Predock
Project Location: Los Angeles, CA
Project Summary:
The minimal dwelling is always defined in relation to the collective. Shared spaces of cooking, working, exercising, cleaning, sharing, learning, gardening, traveling, socializing etc. exist beyond the walls of the individual dwelling unit. And the conext of the neighborhood, the city,and the ecosystem exist beyond the architecture of this housing.
This is a project designed for single residence. It is a community consisting of 50 minimal dwelling cells. These 10'x10'x10' dwellings act as small spaces for the more intimate or privateparts of life while nestling into the layers of conext which surround.




LEGEND
1. Sleeping Area
2. Reading Corner
3. Yoga and Gaming Area
4. Studying Area (Folding Table)
5. Cat Climbing/ Cat Tree
6. Storage
This minimal dwelling is designed for myself as a user. It provides the right space for my living habits in the private room. As a cat owner, my life path and that of my cats are balanced in this space. For example, when move at the height that my body can reach, the cat can better use the vertical space; when I study at the table, the cat can accompany me above the desk; when read and rest, the cat can rest on the platform near the window; and so on. Besides, I also do yoga in the room,so when the table is folded up, there will be more space for me to do yoga.


EXPLODED DIAGRAM










Other Works








