Portfolio

Page 1

PORTFOLIO ARCHITECTURE

MYLENA RODRIGUES DA CUNHA

PROFESSIONAL EXPERIENCE

Since 2019

MYLENA RODRIGUES DA CUNHA

Architect - Urbanist - Interior Designer- BIM (REVIT)

2022

Architect and Interior Designer

Renovation project of an entire apartment in Águas Claras, Brasília

Renovation and accessibility project of a duplex apartment in Águas Claras, Brasília

Renovation project of a kitchen, exterior space and landscaping of a house in Sucupira, Brasília

Renovation project and landscaping of facade of a house in Arniqueiras, Brasília

Renovation project of a residence in Riacho Fundo, Brasília

Architectural collaboration with Estudio Finestra (6 months)

• Architectural design of houses and interior design in Park Way, Brasília

Construction Internship in PAULO OCTAVIO

6 months of site monitoring for a collective housing building in Brasilia

Architectural Intern in FITTIPALDI ARQUITERURA - Brasília (11 months)

Experience with commercial and residential architectural design projects, correction of the designs drawings to follow the building regulations

• worked with the design of several commercial buildings such as malls, offices, and stores

Undergraduate Teaching Assistant (5 months) Assist the undergraduate students in learning the software REVIT 2014

FORMATION

2012 -2018

Degree in Architecture and Urbanism - University of Brasilia, Brazil

Year 2 - BA (Hons) Architecture - London South Bank University, England

SOFTWARES

PERSONAL INFORMATION

Address: 3 Rue Jean Baptiste Clément 94800 Villejuif - France

Phone: +33 7 66 82 09 93

Email: mylena.r.cunha@gmail.com

28 years

Brazillian

• • • •
2014 -2015 2017 2016
AutoCAD Sketchup Lumion Photoshop Illustrator REVIT LANGUAGES Portuguese English French

Architectural and Interior Design

Kitchen Renovation

Riacho Fundo, Brasília, Brazil

Type: Renovation

Subject: Renovation of a kitchen, creating an open concept with the dinign room. Design of a new furniture, island and lighting plan to attend the new layout

Year: 2022

Softwares: Revit (2D Drawing and 3D modeling) and Lumion (rendering)

S DN S 55 50 50 100 90 160 ABRIR ABRIR ABRIR BASCULANTE ABRIR ABRIR ABRIR GAVETA GAVETA GAVETA GAVETA NICHO 45 45 50 2 41 47 48 50 53 78 10 35 GAVETA GAVETA GAVETA GAVETA GAVETA 154 15 11 53 5 31 81 16 16 5 74 ABRIR ABRIR ABRIR GAVETA 145 55 35 Gaveta para temperos 275 250 35 35 40 40 35 35 72 90 ABRIRABRIR ABRIRABRIR ABRIRABRIR ABRIR ABRIR ABRIR 40 39 90 198 ABRIR ABRIR 53 78 10 ABRIRABRIR 109 7 40 10 45 7 62 35 Corte para encaixar a calha úmida (Ela fica posicionada ente as duas portas)

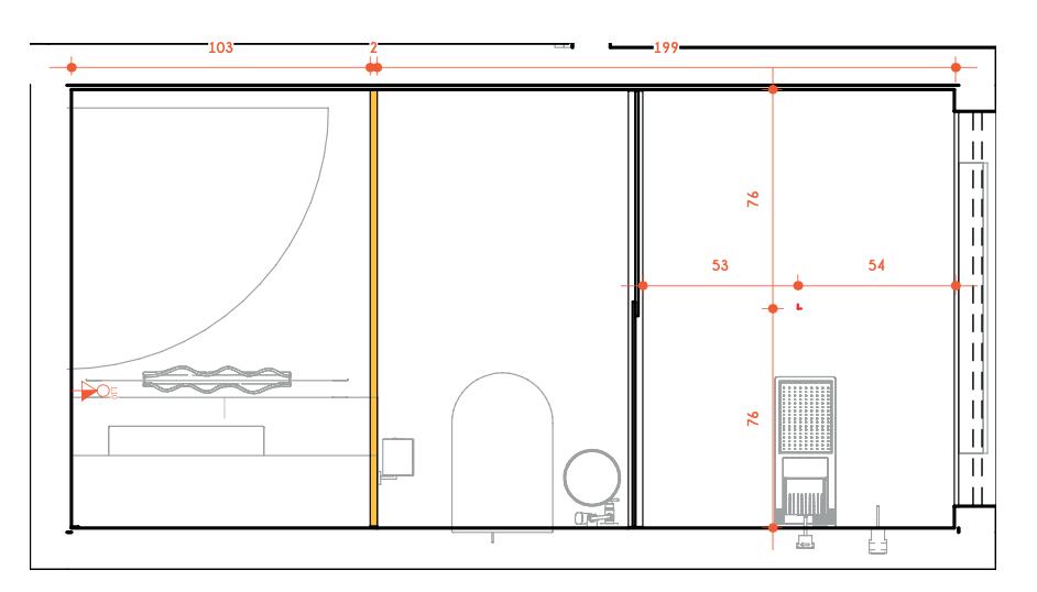
House Renovation

Riacho Fundo, Brasília, Brazil

Type: Renovation

Subject:Renovation of an entire house, design of furniture of closet, bathrooms and kitchen, creation of a new office and bathroom, change of flooring finishes and new electrical plans (lighting and outlets).

Year: 2021

Softwares: Revit (2D Drawing and 3D modeling) and Lumion (rendering)

15 307 21315 335 15 316 287 1515015 1515915 222 18 308 15 15 275 15 245 1512015 804 15 52 200 164 145 161 255

Type: Design

Bathroom Design

Park Way, Brasília, Brazil

Subject: Design of a bathroom in a house in construction

Year: 2022

Softwares: Revit (2D Drawing and 3D modeling) and Lumion (rendering)

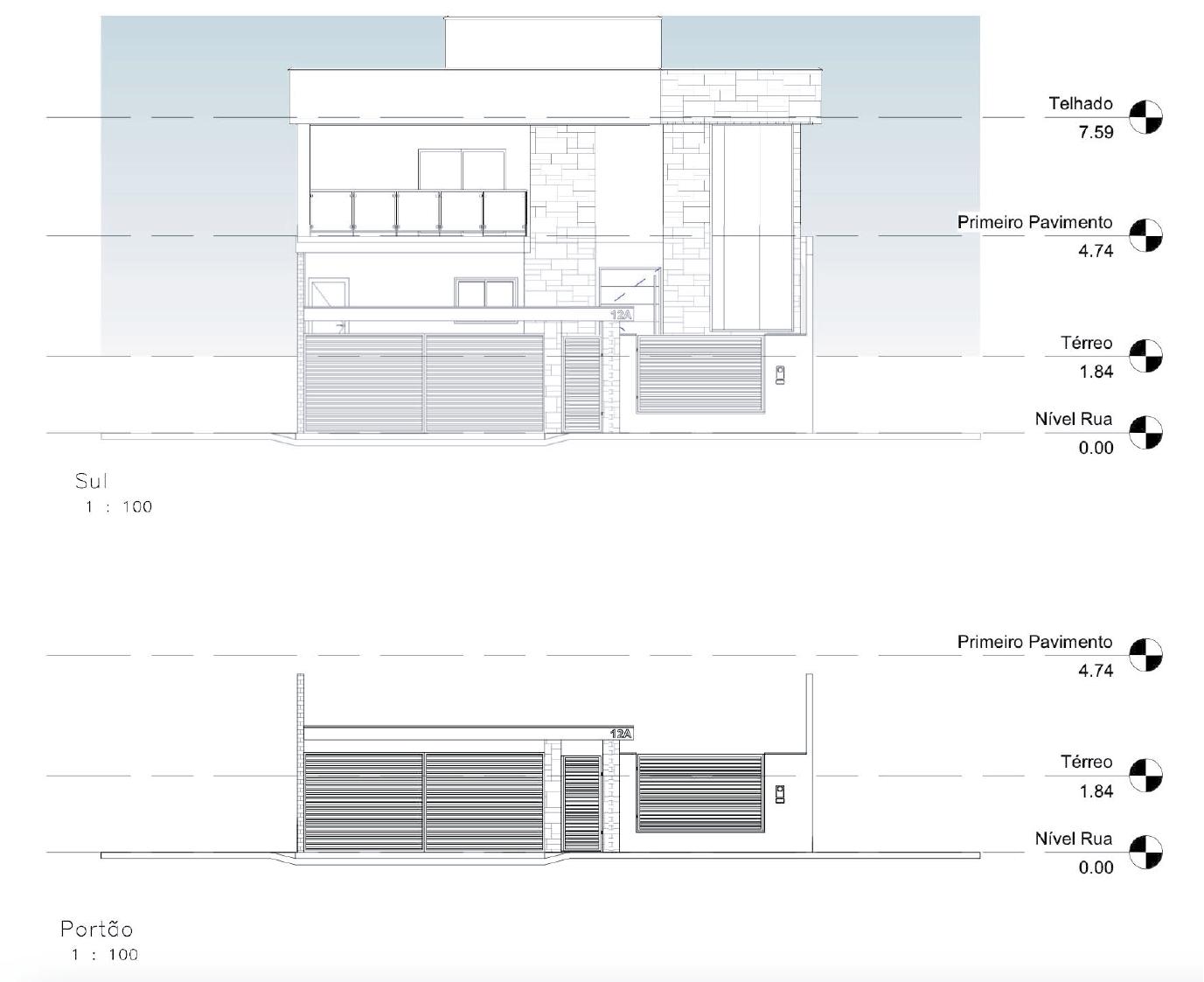
Facade design

Arniqueiras, Brasília, Brazil

Type: Facade Design, lighting design and landscaping

Subject: Creation of a new gate, lighting, choosing of material of the facade and design of the landscaping in an existing house

Year: 2022

Softwares: Revit (2D Drawing and 3D modeling) and Lumion (rendering)

Apartment Renovation

Águas Claras, Brasília, Brazil

Type: Renovation

Subject:Renovation of an entire apartment, design of furniture of bedrooms, bathrooms and kitchen, change of flooring finishes and new electrical plans (lighting and outlets).

Year: 2021

Softwares: Revit (2D Drawing and 3D modeling) and Lumion (rendering)

Type: Plan design

House Design

Subject:Design of a house with two floors

Year: 2022

Softwares: Revit (2D Drawing and 3D modeling) and Illustrator

3 9 5 336 420 503 971 9 5 081 225 142 591 1 7 5 843 3 9 5 4 0 5-123 1 7 6 123 39 5 920 1 3 1 971 1 3 2 4 0 5 4 0 5 503 2 2 5 081 4 2 2 9 5 512 -- -

Academic designs

Novo Complexo da Papuda Brasília, Brazil

Type: Prison

Subject: Studio Design in University of Brasília

Softwares: AutoCAD (2D drawing) , Revit (3D modeling), Lumion and Photoshop

Students: Mylena Cunha, Linda Carvalho, Cecília Manavella, Jessica Moraes, Késia Balduino.

PROJEÇÃO Área Técnica 6,75 m² Área Técnica 6,75 m² Área Técnica 6,75 m² 23,3 m² 8,12 m² 8,12 m² 42,6 m² 39,8 m² 39,8 m² 39,8 m² 39,8 m² 444,8 m² PISTA DE CORRIDA 444,8 m² VESTIÁRIO 37,6 m² WC 24,5 m² INFORMÁTICA 34,8 m² SALA DOS 42,6 m² MUSCULAÇÃO 133 m² MUSCULAÇÃO 133 m² CIRCULAÇÃO 760 m² 16,90 m² REFEITÓRIO COLETIVO 9,90 m² 9,90 m² COLETIVA 16,90 m² COLETIVA 16,90 m² 16,90 m² 16,90 m² 16,90 m² 16,90 m² COLETIVA 16,90 m² COLETIVA 16,90 m² 16,90 m² 16,90 m² 16,90 m² 16,90 m² PÁTIO COLETIVO 165,98 m² PÁTIO COLETIVO 165,98 m² 16,90 m² COLETIVA 16,90 m² 16,90 m² COLETIVA 16,90 m² CELA 16,90 m² CELA 16,90 m² 16,90 m² CELA 16,90 m² 16,90 m² 9,90 m² CELA 16,90 m² COLETIVA 16,90 m² 16,90 m² CELA 16,90 m² 16,90 m² 16,90 m² COLETIVA 16,90 m² 16,90 m² 9,90 m² REFEITÓRIO COLETIVO REFEITÓRIO COLETIVO CELA PNE CELA CELA CELA CELA CELA 33,6 m² RECEPÇÃO 6,00 m² 7,05 m² 7,05 m² 7,05 m² CELA 24,4 23,96 121,31 24,6 49,75 85,2 100 14,3 22,1 9,1 36,31 11,91 CELA Projeto de Arquitetura de Funções Complexas | Professores: Augusto Esteca e Daniela Diniz LINDA CARVALHO MYLENA RODRIGUES PLANTA BAIXA TÉRREO ESC.: 1/600 0 1
REFEITÓRIO COLETIVO 92,20 m² COMP. DE BANHO 9,90 m² PÁTIO COLETIVO 165,98 m² PLANTA BAIXA TÉREO ESC.: 1/75 0 2 PLANTA BAIXA TÉREO ESC.: 1/35 0 1
PER S PE CT I V A G ER A L

disciplina e sociabilização entre os presos. Desta forma, os outros pontos do projeto (celas, pátios e postos de controle) foram pensados de forma a gerar sensações menos opressoras do que o presídio em si já gera.

- C EL A - REFEI T Ó RI O

24,6 49,75
COMO O COMPLEXO É HOJE? LEGENDA Celas Controle Esporte Pátios Circulação Área de Visitas Módulos Expansão PLANTA BAIXA ESC.: 1/600 0 1 BARRA DE CONTENSÃO BLOCOS TRANSLÚCIDOS COBERTURA VERDE INSTALAÇÕES SUBTERRÂNEAS SAÍDA DE ÁGUAS ABERTURAS DE 12x120cm CAIXA DE DESCARGA EXTERNA CAIXA DE INSPEÇÃO 1,27 0,36 1,2 +0,02 +0,02 +6,48 +2.32 +4,25 +4,00 -0,08 +0,00 +6,48 +5,28 1,27 0,48 1,65 0,8 0,4 1 2,1 0,5 +4,25 RALO IMPERMEABILIZADO COM GRELHA METÁLICA LAJE IMPERMEABILIZADA RUFO PEÇA INCLINADA DE CONCRETO ARMADO IMPERMEABILIZADO CANO PVC Ø100mm PEÇA INCLINADA DE CONCRETO ARMADO IMPERMEABILIZADO SHAFT PARA INSTALAÇÕES HIDRÁULICAS EM AÇO GALVANIZADO COM ABERTURA SUPERIOR SUBSTRATO E VEGETAÇÃO FILTRO DRENAGEM - ARGILA MEMBRANA ANTI-RAÍZ PROTEÇÃO MECÂNICA MEMBRANA ASFÁLTICA MEMBRANA ANTI-VAPOR LAJE DE CONCRETO 3
Urbanismo | Projeto de Arquitetura de Funções Complexas | Professores: Augusto Esteca e Daniela Diniz CO R T E B B ESC.: 1/50 0 2 DE TALH E 0 1 ESC.: 1/10 0 3 DE TALH E 0 3 ESC.: 1/20 0 4 CO R T E C C ESC.: 1/50 0 1

bombeiros  -­‐  que  helicoidal  e  um  e  porta  estabelecidas  estabelecidas  pela  do  CEU  cegando  as  cidade  soluções    estudo Sol-­‐Ar

Type: Student Housing

área que também abriga o Centro Olímpico da universidade -, o atual complexo de residência estudantil da UnB é composto por dois blocos de apartamentos contendo, no total, 92 apartamentos. Os dois blocos fazem parte do projeto de 1973 para a criação da Casa do Estudante Universitário da UnB, de autoria de Alberto Xavier, Léo Bonfim Júnior e Solon Leão de

Souza. O projeto original contava com sete blocos, dispostos no terreno seguindo uma mesma orientação; porém, apenas dois dos sete blocos previstos foram construídos.

Atualmente, o sistema de moradia estudantil oferecido pela Universidade de Brasília peca pela falta de vagas para suprir a crescente demanda de alunos, que acompanha o ritmo de crescimento da universidade.

21 de Fevereiro do estacionamento das viaturas dos praça central entre convivência quanto de entremeadas por manchas abrigar pequenas feiras, de atender tanto aos praça.

Casa do Estudante Brasília,

Vias e Praça

Subject: Studio Design in University of Brasília

Softwares: AutoCAD (2D drawing)

Sudeste Oeste Noroeste Leste Norte e Sul

Brazil

Além disso, a atual falta de integração entre os edifícios residenciais estudantis e os principais prédios da UnB é um fator negativo para a imagem da instituição. O acesso via transporte às residências é dado por meio de apenas duas paradas de ônibus; não há ciclovias que atendam aos estudantes; não há pontos de comércio que possam suprir as necessidades dos alunos a um raio de 2 quilômetros dos blocos de apartamentos. Em suma, o CEU atual encontra-se isolado do resto do campus UnB.

Partindo deste cenário, a nova proposta para a Casa do Estudante Universitário surge com a intenção de abrigar e integrar o estudante à UnB. Respeitando o traçado regulador dos edifícios já construídos e a malha urbana de Brasília, o projeto é composto por dois blocos recortados de apartamentos que inserem-se em alinhamento paralelo a dois eixos: o da via principal de acesso ao complexo residencial e o de alinhamento dos edifícios originais do complexo. Seguindo estes eixos, o projeto respeita a proposta original, mas evidencia um novo período na concepção da Casa do Estudante.

A inserção do projeto a nível urbano, respeitando os traçados reguladores principais circundantes, visou à criação de espaços com potencial de gerar integração a três níveis: intra-bloco, possibilitando integração entre residentes de um mesmo edifício; inter-blocos, integrando residentes dos dois blocos projetados; e a nível urbano, promovendo a integração entre os habitantes do novo CEU, do CEU original e os usuários do C.O. e do Campus UnB.

Neste sentido, o espaçamento de 45m entre os blocos projetados gerou áreas de ocupação com níveis de integração diferenciados, em análise preliminar. Partindo dessa análise, foi projetada uma via de circulação para ônibus e carros que busca inserir o CEU no contexto do Campus, não prejudicando a rota do atual Transporte Intracampus oferecido pela UnB, que circula diariamente entre 7h15 e 00h00 – com intervalos de rota de meia hora, durante o dia, e de uma hora, durante a noite – e tem o C.O. como ponto de partida e de chegada. A via projetada possibilita a inserção de um novo ponto de ônibus que supre a demanda dos residentes do CEU não contemplados pelo ponto de ônibus já existente, localizado em frente ao bloco Leste do CEU original.

Os dois edifícios estão dispostos simetricamente, seguindo um ideal de paralelismo. Estão distados a 45m um do outro, levando à criação de uma praça central com potencial de integração entre residentes, como será evidenciado adiante. Apenas duas curvas de nível do terreno original foram alteradas na concepção do projeto.

Vias e Praça

Traçados reguladores da

Projeto de 1973 para o CEU –UnB em destaque os dois blocos construídos) e as condições atuais dos edifícios Área Total Construída

A via projetada alterna rotas de mão-dupla e de mão-única – sempre atendendo à exigência do Decreto-Lei n.o 64/90 de 21 de Fevereiro do Corpo de Bombeiros que estipula que “o edifício deve ser servido por vias que permitam a aproximação e o estacionamento das viaturas dos bombeiros a uma distância do edifício não superior a 30 m.” (CAPÍTULO V, Artigo 21 ).

A inserção do projeto a nível urbano, respeitando com potencial de gerar integração a três níveis: edifício; inter-blocos, integrando residentes dos dois habitantes do novo CEU, do CEU original e os usuários Neste sentido, o espaçamento de 45m entre diferenciados, em análise preliminar. Partindo dessa análise, foi projetada uma via Campus, não prejudicando a rota do atual Transporte 00h00 – com intervalos de rota de meia hora, durante partida e de chegada. A via projetada possibilita residentes do CEU não contemplados pelo ponto

Além da via projetada um estacionamento capaz de abrigar 20 vagas atende a demanda dos residentes

Students: Mylena Cunha, Julia Huff, Linda Carvalho, Renata Cortopassi

A via projetada delimita três espaços externos distintos, que recebem tratamento diferenciado na concepção de uma grande praça central entre os blocos do CEU. Visando manter a escala bucólica do Centro Olímpico e oferecer aos residentes espaços tanto de convivência quanto de introspecção, os espaços externos foram projetados de modo a oferecer grandes faixas de circulação de pedestres entremeadas por manchas de vegetação e circundadas por bancos. Essas faixas são desimpedidas, mas seu uso é flexível: elas têm espaço para abrigar pequenas feiras, exposições e eventos.

Além disso, é proposta a implantação, próxima à parada de ônibus central, de uma banca de jornais. Esta seria capaz de atender tanto aos estudantes que esperam pelo transporte até o centro do Campus UnB quanto aos residentes que pretendem permanecer na praça.

A Unidade

Habitacional

Cada bloco projetado tem capacidade de abrigar 300 alunos, distribuídos em 60 apartamentos 20 por andar - com 5 vagas, cada. A unidade habitacional fio projetada de modo a dispor os ambientes de alta permanência voltados para as áreas de maior iluminação. As unidades são espelhadas - na intenção de canalizar as tubulações dos apartamentos para otimizar os custos e um corredor de 2,5m dá acesso aos apartamentos, não distantes a mais de 23m dos acessos verticais recomendados pela NBR 9077. O mobiliário dos apartamentos é padronizado - tendo a cozinha das unidades a bancada, o armário e a bancada de alimentação projetados em detalhamento.

Planta de implantação com vias calçadas e áreas verdes planejadas

Estudo em

A Cobertura Para a cobertura do edifício, optou-se pela utilização de telhas, rufos, contra-rufos, pingadeiras e calhas de perfil metálico, da marca Belmetal Buscou-se reduzir ao máximo a necessidade de impermeabilização da cobertura - processo que encarece muito a obra. O caimento do telhado é invertido, de duas águas, e envolto por uma platibanda de 90cm de altura. A cobertura conta com quatro caixas d'água com capacidade de 12mil litros e duas caixas d'água com capacidade 6 mil litros respeitando a normatização para caixas d'água de cobertura e subsolo NBR 14799 -, a 1,50m do nível do piso; dois depósitos e a casa de máquinas do elevador central.

O Térreo

O pavimento térreo conta com um acesso central principal e dois acessos secundários diferenciados em divisão de áreas. O acesso a oeste conta com, além do hall de entrada e do acesso vertical, um bicicletário caixa de correios e sala de apoio a funcionários esta contando com copa e sala de estar, além de vestiário/banheiros feminino e

Perspectivas dos ambientes internos da unidade habitacional: Cozinha, Quarto duplo, Lavatório e Banheiro

A Área Central

Corte Longitudinal – Escala 1:250

A implantação angulada dos blocos projetados não apenas buscou seguir o encontro dos traçados reguladores já existentes no terreno. A angulação, no bloco, toma sentido de centro integrador entre a população residente. Acessível a todos os moradores, a área, composta por mezaninos alternados, é de uso e espaço flexíveis, alternando os acessos a mezanino por escadas helicoidais a fim de provocar, no visitante, percepção diferenciada do espaço. O elevador centralque tem abertura para as duas direções é tratado plasticamente, integrando os mezaninos. A fachada da área é majoritariamente de vidro, enfatizando seu caráter permeável.

Planta de implantação vias calçadas áreas

A Unidade Habitacional Cada bloco projetado tem de abrigar 300 alunos, distribuídos 60 apartamentos 20 por 5 vagas, cada. A unidade fio projetada de modo ambientes de alta voltados para as áreas iluminação. As unidades espelhadas - na intenção as tubulações dos apartamentos otimizar os custos e um 2,5m dá acesso aos apartamentos, distantes a mais de 23m verticais recomendados 9077. O mobiliário dos apartamentos padronizado - tendo a unidades a bancada, o bancada de alimentação em detalhamento.

Perspectivas dos ambientes

via e do CEU original respeitados implantação do projeto
23.375,00m2 Porcentagem de ocupação no terreno 5,25% Número de alunos atendidos por andar 100 Número de alunos atendidos por bloco 300 Número de alunos atendidos TOTAL 600 Área construída por aluno (módulo habit.) 19,8m aluno Área construída por aluno (total) 38m2/aluno
Planta de Situação – Campus UnB Escala 1:20000 Planta de Situação – Plano Piloto– Escala 1:25000 Planta de Implantação Terreno Escala 1:3000
CEU original Projeto
LEGENDA:
Estudo do programa Sol-Ar da iluminação
Estudo do programa Sol-Ar da iluminação fachadas
perspectiva da praça central
Fachada – Escala 1:250

Vias e Praça

A inserção do projeto a nível urbano, respeitando os traçados reguladores principais circundantes, visou à criação de espaços com potencial de gerar integração a três níveis: intra-bloco, possibilitando integração entre residentes de um mesmo edifício; inter-blocos, integrando residentes dos dois blocos projetados; e a nível urbano, promovendo a integração entre os habitantes do novo CEU, do CEU original e os usuários do C.O. e do Campus UnB.

os traçados reguladores principais circundantes, visou à criação de espaços níveis: intra-bloco, possibilitando integração entre residentes de um mesmo dois blocos projetados; e a nível urbano, promovendo a integração entre os usuários do C.O. e do Campus UnB. os blocos projetados gerou áreas de ocupação com níveis de integração de circulação para ônibus e carros que busca inserir o CEU no contexto do Transporte Intracampus oferecido pela UnB, que circula diariamente entre 7h15 e durante o dia, e de uma hora, durante a noite – e tem o C.O. como ponto de possibilita a inserção de um novo ponto de ônibus que supre a demanda dos de ônibus já existente, localizado em frente ao bloco Leste do CEU original.

Neste sentido, o espaçamento de 45m entre os blocos projetados gerou áreas de ocupação com níveis de integração diferenciados, em análise preliminar.

A via projetada alterna rotas de mão-dupla e de mão-única – sempre atendendo à exigência do Decreto-Lei n.o 64/90 de 21 de Fevereiro do Corpo de Bombeiros que estipula que “o edifício deve ser servido por vias que permitam a aproximação e o estacionamento das viaturas dos

bombeiros a uma distância do edifício não superior a 30 m.” (CAPÍTULO V, Artigo 21 ).

Além da via projetada um estacionamento capaz de abrigar 20 vagas atende a demanda dos residentes

Partindo dessa análise, foi projetada uma via de circulação para ônibus e carros que busca inserir o CEU no contexto do Campus, não prejudicando a rota do atual Transporte Intracampus oferecido pela UnB, que circula diariamente entre 7h15 e 00h00 – com intervalos de rota de meia hora, durante o dia, e de uma hora, durante a noite – e tem o C.O. como ponto de partida e de chegada. A via projetada possibilita a inserção de um novo ponto de ônibus que supre a demanda dos residentes do CEU não contemplados pelo ponto de ônibus já existente, localizado em frente ao bloco Leste do CEU original.

A via projetada delimita três espaços externos distintos, que recebem tratamento diferenciado na concepção de uma grande praça central entre os blocos do CEU. Visando manter a escala bucólica do Centro Olímpico e oferecer aos residentes espaços tanto de convivência quanto de introspecção, os espaços externos foram projetados de modo a oferecer grandes faixas de circulação de pedestres entremeadas por manchas de vegetação e circundadas por bancos. Essas faixas são desimpedidas, mas seu uso é flexível: elas têm espaço para abrigar pequenas feiras, exposições e eventos. Além disso, é proposta a implantação, próxima à parada de ônibus central, de uma banca de jornais. Esta seria capaz de atender tanto aos estudantes que esperam pelo transporte até o centro do Campus UnB quanto aos residentes que pretendem permanecer na praça.

A via projetada alterna rotas de mão-dupla e de mão-única – sempre atendendo à exigência do Decreto-Lei n.o 64/90 de 21 de Fevereiro do

Corpo de Bombeiros que estipula que “o edifício deve ser servido por vias que permitam a aproximação e o estacionamento das viaturas dos bombeiros a uma distância do edifício não superior a 30 m.” (CAPÍTULO V, Artigo 21o.).

Além da via projetada um estacionamento capaz de abrigar 20 vagas atende a demanda dos residentes

A via projetada delimita três espaços externos distintos, que recebem tratamento diferenciado na concepção de uma grande praça central entre os blocos do CEU. Visando manter a escala bucólica do Centro Olímpico e oferecer aos residentes espaços tanto de convivência quanto de introspecção, os espaços externos foram projetados de modo a oferecer grandes faixas de circulação de pedestres entremeadas por manchas de vegetação e circundadas por bancos. Essas faixas são desimpedidas, mas seu uso é flexível: elas têm espaço para abrigar pequenas feiras, exposições e eventos.

Além disso, é proposta a implantação, próxima à parada de ônibus central, de uma banca de jornais. Esta seria capaz de atender tanto aos estudantes que esperam pelo transporte até o centro do Campus UnB quanto aos residentes que pretendem permanecer na praça.

A Área Central

tem capacidade distribuídos em por andar - com unidade habitacional a dispor os permanência áreas de maior unidades são intenção de canalizar apartamentos para um corredor de apartamentos, não 23m dos acessos recomendados pela NBR apartamentos é cozinha das armário e a alimentação projetados

A Área Central

A Cobertura Para a cobertura do edifício, optou-se pela utilização de telhas, rufos, contra-rufos, pingadeiras e calhas de perfil metálico, da marca Belmetal Buscou-se reduzir ao máximo a necessidade de impermeabilização da cobertura - processo que encarece muito a obra. O caimento do telhado é invertido, de duas águas, e envolto por uma platibanda de 90cm de altura. A cobertura conta com quatro caixas d'água com capacidade de 12mil litros e duas caixas d'água com capacidade 6 mil litros respeitando a normatização para caixas d'água de cobertura e subsolo NBR 14799 -, a 1,50m do nível do piso; dois depósitos e a casa de máquinas do elevador central.

O Térreo O pavimento térreo conta com um acesso central principal e dois acessos secundários diferenciados em divisão de áreas. O acesso a oeste conta com, além do hall de entrada e do acesso vertical, um bicicletário caixa de correios e sala de apoio a funcionários esta contando com copa e sala de estar, além de vestiário/banheiros feminino e masculino. O acesso central é de composição mais orgânica, seguindo o caráter social da área central do edifício. Ele conta com sala de estudos acusticamente isolada do acesso aos pavimentos superiores por meio de uma escada helicoidal. O acesso a leste, por sua vez, conta com hall, bicicletário e depósito, tomando este a mesma área da sala de apoio para funcionários do acesso a oeste.

A implantação angulada dos blocos projetados não apenas buscou seguir o encontro dos traçados reguladores já existentes no terreno. A angulação, no bloco, toma sentido de centro integrador entre a população residente. Acessível a todos os moradores, a área, composta por mezaninos alternados, é de uso e espaço flexíveis, alternando os acessos a mezanino por escadas helicoidais a fim de provocar, no visitante, percepção diferenciada do espaço. O elevador centralque tem abertura para as duas direções é tratado plasticamente, integrando os mezaninos. A fachada da área é majoritariamente de vidro, enfatizando seu caráter permeável.

A Unidade Habitacional Cada bloco projetado tem capacidade de abrigar 300 alunos, distribuídos em 60 apartamentos 20 por andar - com 5 vagas, cada. A unidade habitacional fio projetada de modo a dispor os ambientes de alta permanência voltados para as áreas de maior iluminação. As unidades são espelhadas - na intenção de canalizar as tubulações dos apartamentos para otimizar os custos - e um corredor de 2,5m dá acesso aos apartamentos, não distantes a mais de 23m dos acessos verticais recomendados pela NBR 9077. O mobiliário dos apartamentos é padronizado tendo a cozinha das unidades a bancada, o armário e a bancada de alimentação projetados em detalhamento.

A Cobertura

Para a cobertura do edifício, optou-se pela utilização de telhas, rufos, contra-rufos, pingadeiras e calhas de perfil metálico, da marca Belmetal Buscou-se reduzir ao máximo a necessidade de impermeabilização da cobertura processo que encarece muito a obra. O caimento do telhado é invertido, de duas águas, e envolto por uma platibanda de 90cm de altura. A cobertura conta com quatro caixas d'água com capacidade de 12mil litros e duas caixas d'água com capacidade 6 mil litros - respeitando a normatização para caixas d'água de cobertura e subsolo NBR 14799 -, a 1,50m do nível do piso; dois depósitos e a casa de máquinas do elevador central.

O Térreo O pavimento térreo conta com um acesso central principal e dois acessos secundários diferenciados em divisão de áreas. O acesso a oeste conta com, além do hall de entrada e do acesso vertical, um bicicletário caixa de correios e sala de apoio a funcionários - esta contando com copa e sala de estar, além de vestiário/banheiros feminino e masculino. O acesso central é de composição mais orgânica, seguindo o caráter social da área central do edifício. Ele conta com sala de estudos acusticamente isolada do acesso aos pavimentos superiores por meio de uma escada helicoidal. O acesso a leste, por sua vez, conta com hall, bicicletário e depósito, tomando este a mesma área da sala de apoio para funcionários do acesso a oeste.

As Fachadas O projeto de fachada dos blocos do CEU visou principalmente corroborar com o conceito de horizontalidade presente no projeto. As fachadas foram tratadas de modo diferenciado de acordo com sua orientação - e, por conseguinte, com suas necessidades lumínicas e de ventilação. As fachadas Norte e Sul possuem brises verticais acompanhando as faixas de janela. As demais fachadas fazem uso de brises horizontais, que também acompanham a faixa de esquadrias. Os brises metálicos, dialogam com o concreto presente em todas as fachadas dos blocos. A faixa de brises inicia-se a 90cm do nível de piso de cada pavimento, e avança 50cm da altura das esquadrias que a acompanham.

A Unidade

A implantação angulada dos blocos projetados não traçados reguladores já existentes no terreno. A angulação, integrador entre a população residente. Acessível a todos mezaninos alternados, é de uso e espaço flexíveis, alternando helicoidais a fim de provocar, no visitante, percepção diferenciada que tem abertura para as duas direções - é tratado plasticamente, fachada da área é majoritariamente de vidro, enfatizando

Habitacional

Cada bloco projetado tem de abrigar 300 alunos, distribuídos 60 apartamentos - 20 por 5 vagas, cada. A unidade fio projetada de modo ambientes de alta voltados para as áreas iluminação. As unidades espelhadas - na intenção as tubulações dos apartamentos otimizar os custos - e um 2,5m dá acesso aos apartamentos, distantes a mais de 23m verticais recomendados 9077. O mobiliário dos apartamentos padronizado - tendo unidades a bancada, o bancada de alimentação em detalhamento.

Estudo em perspectiva da praça central Perspectivas dos ambientes internos da unidade habitacional: Cozinha, Quarto duplo, Lavatório e Banheiro Corte Longitudinal – Escala 1:250 Planta de implantação vias calçadas áreas verdes planejadas
fachadas Sudeste Oeste Noroeste Leste Norte e Sul
Estudo em perspectiva da praça central ambientes internos da unidade habitacional: Cozinha, Quarto duplo, Lavatório e Banheiro Corte Longitudinal – Escala 1:250 Corte Transversal – Escala 1:250 áreas verdes planejadas
Fachada – Escala 1:250
Corte Transversal – Escala 1:250

Urban Square- Centro Olímpico

Riacho Fundo i, Brasília, Brazil

Type: Urban Design

Subject: Graduation project in University of Brasilia (UnB)

Softwares: Revit (2D Drawing and 3D modeling) and Lumion

Urban Park Dr. Ênio Rafaeli

Riacho Fundo i, Brasília, Brazil

Type: Urban Design

Subject: Graduation project in University of Brasilia (UnB)

Softwares: Revit (2D Drawing and 3D modeling) and Lumion

Type: 3D Modeling

London Velodrome

London, England

Subject: Exchange in London South Bank University

Softwares: Revit (2D Drawing and 3D modeling)

Original Velodrome

ROYAL ACADEMY INTERVENTION

Piccadilly Circus , London, England

Type: Intervention

Subject: Exchange in London South Bank University

Softwares: Revit (2D Drawing and 3D modeling), Lumion and Photoshop

Rendering - Mental Health Institute

Vicente Pires, Brasília, Brazil

Type:Rendering

Subject: Rendering of a hospital - Final graduation project of Nathália Lemes

Year: 2017

Softwares: Revit (2D Drawing and 3D modeling) and Lumion

Institute - Resiliência
Mylena Rodrigues da Cunha

Turn static files into dynamic content formats.

Create a flipbook
Issuu converts static files into: digital portfolios, online yearbooks, online catalogs, digital photo albums and more. Sign up and create your flipbook.
Portfolio by Mylena Rodrigues da Cunha - Issuu