Mya Jones | Architecture Portfolio 2024

Page 1

PORTFOLIO
MYA JONES
2024

Mya Jones

mjones3@laurentian.ca

myaangelinajones@gmail.com

+1 705-662-0847

79 Frenchman Lake Rd S

Hanmer, ON P3P 1R3

1
Contents 3 19 25 27 29 30 31 Off Grid / Permaculture Complex Mass timber, mixed-use residential complex Mattagami First Nation / Placemaking Mapping The Core Adaptive reuse art gallery Site Analysis Mapping Seclusion Sauna Le Louis Hebert Housing Elevation study Acrylic Paintings 2
OFF GRID / PERMACULTURE COMPLEX 3
4

OFF GRID / PERMACULTURE COMPLEX

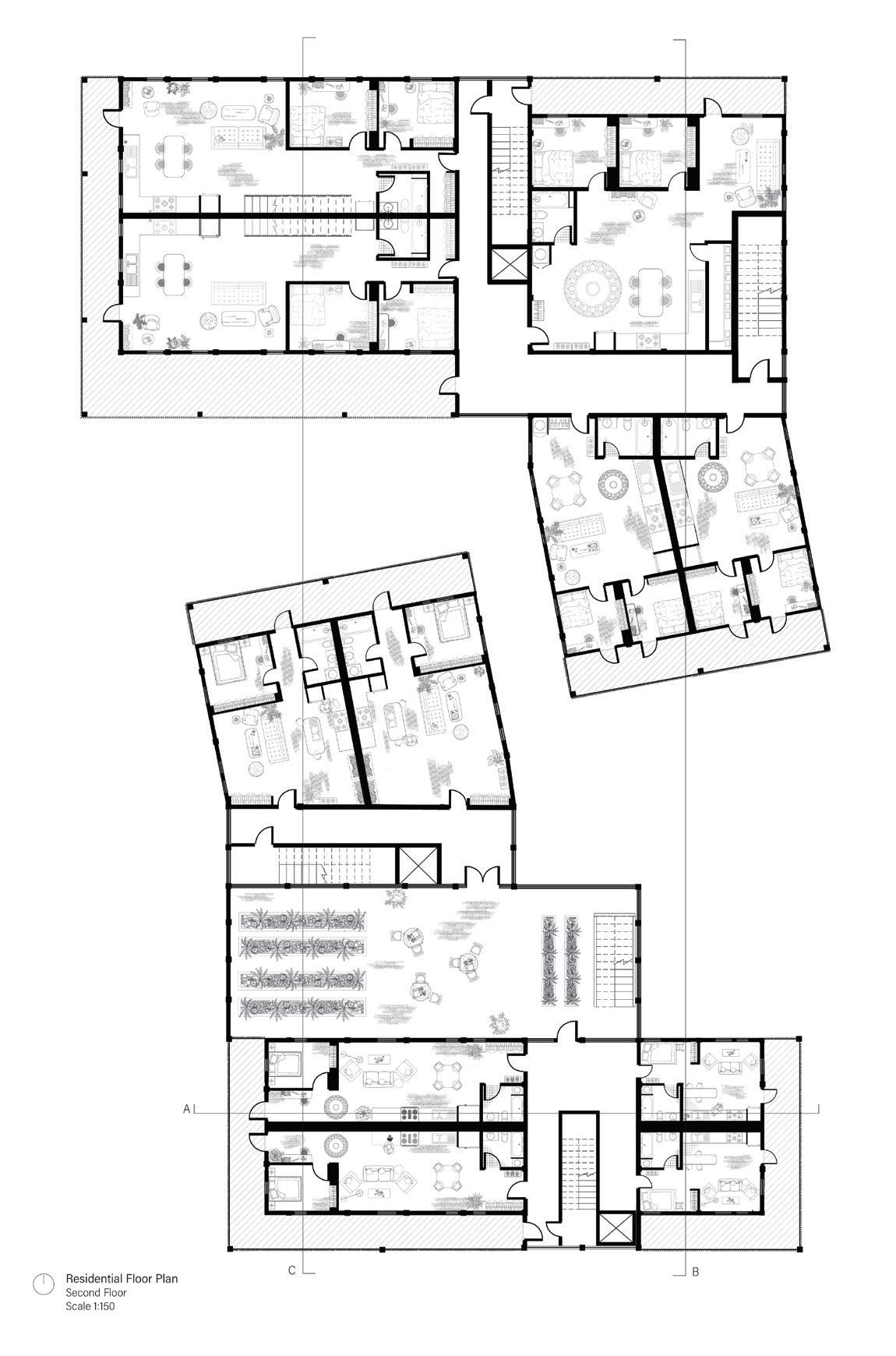
Located in the heart of Sudbury’s downtown core, the Off-Grid Permaculture Complex draws inspiration from the concept of permaculture, acting as its own self-sustaining ecosystem and encouraging the bringing together of community, human connection, and the mental and physical well-being of young people.

The complex provides mental health support through the opportunity for art and pottery creation, physical health and nutrition with the inclusion of food-growing programs, as well as skill-building programs and job opportunities.

Courtyards with edible forest gardens separate the two buildings, and a large multi-storey greenhouse can be shared by residents year-round. The building uses mass timber construction and draws on local typologies for material selection. It is clad in red brick, like many houses in the area, including the existing building on the site that was repurposed into part of the public program.

The complex is inspired by walk up apartments, with shared balconies and walkways leading to every unit that can be accessed from each stairwell. The balconies are wrapped in a 2x2 cedar screen, and a polycarbonate and glass facade separates the public and private programs.

This project was recognized with an Honourable Mention in Material Exploration and Expression at the 2023 McEwen School of Architecture Graduation Ceremony.

5
6
7
8
9
10
11
12
13
14
15
16
17
Model
18
19

MATTAGAMI FIRST NATION / PLACEMAKING 2023 / M

The proud history of the Mattagami First Naton community in Northern Ontario has been intertwined with the damaging effects of the mining industry on their hunting and fishing grounds for over 100 years. They have faced the detrimental effects of acidic “dead” lakes in a time of poor environmenral mining regulations, followed by extreme overfishing in recent years.

The first series of maps showcase the historic sites and processes of metal mines in Northern Ontario and how the damage they caused is closely tied to territories of First Nation communities, with a particular focus on Mattagami FN. Sport fishing frequency and patterns are also outlined, as the resource depletion in the area did not cease when waterway damage was reduced.

The second series of maps highlight the site for a proposed fish hatchery and visitor’s centre near a popular rest stop on Highway 144. The hatchery will serve as, primarily, a way to restock the local lakes that are experiencing overfishing, but also as a way for the community to have a space that reaches more people passing through the area, and can supply funding to their efforts and jobs for their community members and youth.

The project intends to inform people of the long-term effects of extraction, whether on a large or small scale, and how respect for the ecosystem and the people that rely on it must always be observed.

20
1
21
22
23
24

The Core Art Gallery is an adaptive reuse project located in the Flour Mill community in Sudbury. The gallery opens to the public what would typically be private space in an art gallery through the layering of materials and visibility. Repurposed hundred-year-old grain silos are made into a lobby and event space, and the concrete tower typology is reflected in the open storage core of the gallery, surrounded by light-filled exhibition spaces.

ADMINSTRATION ADMINSTRATION ARTIST
ARTISTSTUDIOS TEMPORARY GALLERY FRANKLIN CARMICHAELGALLERY LOBBY/EVENT STORE LOBBY/EVENT INDIGENOUS FRANCOPHONEGALLERY GALLERY PERMANENT GALLERY STAIRS STAIRS OPERATIONS STORAGE OPERATIONS STORAGE SECURITY CRATE STORAGE EXAMINATION ROOM ADMINISTRATION CAFE ENTRY LOBBY/ EVENT LOBBY/ EVENT ARTIST STUDIOS FAMILY ART STUDIO OPENSTORAGE: SCULPTURE ARTISTSTUDIOS OPEN STORAGE: PAPER DIRTY WORKSHOP STAIRS/ CIRCULATION STAIRS/ CIRCULATION ADMINISTRATION SHIPPING/ RECEIVING OPEN STORAGE: OIL PAINTING MULTIPURPOSE ROOM EXAMINATION ROOM CRATE STORAGE EXAMINATION ROOM OPERATIONS STORAGE INDIGENOUS GALLERY FRANCOPHONE GALLERY FRANKLINCARMICHAEL GALLERY PROGRAMMING AXO 1 PROGRAMMING AXO 2
STUDIOS
The Core 2021 / Year 3
25
CALLOUT 1:10 SECTION PERSPECTIVE 1:50 SECTION PERSPECTIVE 1:50 26
2021 27
Site Analysis Collage: Flour Mill
28
Site Analysis Collage: Copper Cliff 2020

Seclusion

2019 / Year 2

PLAN 1:25 PLAN 1:25 SECTION 1:25
29
A small sauna on the rocky shore of Bennett Lake in Sudbury. Sauna visitors are guided along a rammed earth wall before the building and entrance are revealed. The interior spaces become more intimate as the user moves through the building towards the sauna room. Le Louis-Hébert Housing Elevations 2023
30
A material study of Le Louis-Hébert Housing by NatureHumain in Montreal.
Personal Work / Acrylic Paintings 2018-2022 31

Mya Jones

mjones3@laurentian.ca

myaangelinajones@gmail.com

+1 705-662-0847

79 Frenchman Lake Rd S Hanmer, ON P3P 1R3

32

Turn static files into dynamic content formats.

Create a flipbook
Issuu converts static files into: digital portfolios, online yearbooks, online catalogs, digital photo albums and more. Sign up and create your flipbook.