























Property Details
Maps
Local Schools
Community Utilities & Resources
Title & Escrow
The information contained is provided by WFG’s Customer Service Department to our customers, and while deemed reliable, is not guaranteed.
![]()
























Property Details
Maps
Local Schools
Community Utilities & Resources
Title & Escrow
The information contained is provided by WFG’s Customer Service Department to our customers, and while deemed reliable, is not guaranteed.




10525 MADISON ST THORNTON CO 80233
R0114972
ADAMS COUNTY CO
OwnerInformation
OwnerName: COHN VANESSA E / Vesting: SINGLE WOMAN
MailAddress: 10525 MADISON ST THORNTON CO 80233
OwnerStatus: OwnerOccupied
LocationInformation
LegalDesc: SUB:COLONY GLEN BLK:1 LOT:25
County: ADAMS
Census/Block: 008533 / 1028
AltParcel# 1719-12-4-01-042
SchoolDistrict: Tsp-Rng-Sec: T02S-R68W-S12
Lot/Block: Lot: 25 Block: 1
HousingTract: COLONY GLEN
LastMarketSale
Date: 2013-07-11/2013-07-10
SalePrice: 272000
Document#: 2013.59425
DocType: GENERAL WARRANTY DEED
$Sqft: $128.79
PriorSaleInformation
Date: 2009-04-01/2009-03-26
Price: 249000
Document#: 2009.22744
DocType: WARRANTY DEED
Municipality:
Parcel#: R0114972
Lender: CALIBER FUNDING LLC
Loan: 199000
Document#: 2013.59426
LoanType: CONVENTIONAL
LoanTerm: 30
Lender:
Loan: 244489
Document#:
LoanType: FEDERAL HOUSING ADMINISTRATION

Theaboveisbelievedtobeaccurate,butisnotguaranteed. Copyright©1995-2025CDSMarketing,Inc.

10525 MADISON ST THORNTON CO 80233
R0114972
ADAMS COUNTY CO
PropertyCharacteristics
GrossArea:GarageArea:InteriorWall
LivingArea:RoofShape: GABLE
PorchType: OPEN SLAB
AboveGrade:Foundation:PatioType: PORCH/NO STEP
Bedrooms:RoofMaterial: COMPOSITION SHINGLE AirCond: CENTRAL
Bath(F/H): /1
Construction: FRAME Fixtures:
Fireplace: GAS/LOG HeatType: FORCED AI Floor:
YearBuilt: 2001 CoolingType: CENTRAL Equipment:
ParkingType: Garage ExteriorWall: FRAME SIDING Stories: 2
Units:Rooms: 8 Pool: No
Basement:Quality:Condition:
PropertyInformation
LandUse: SFR
TaxandAssessmentInformation
SINGLE FAMILY RES
Len/Wid: /


































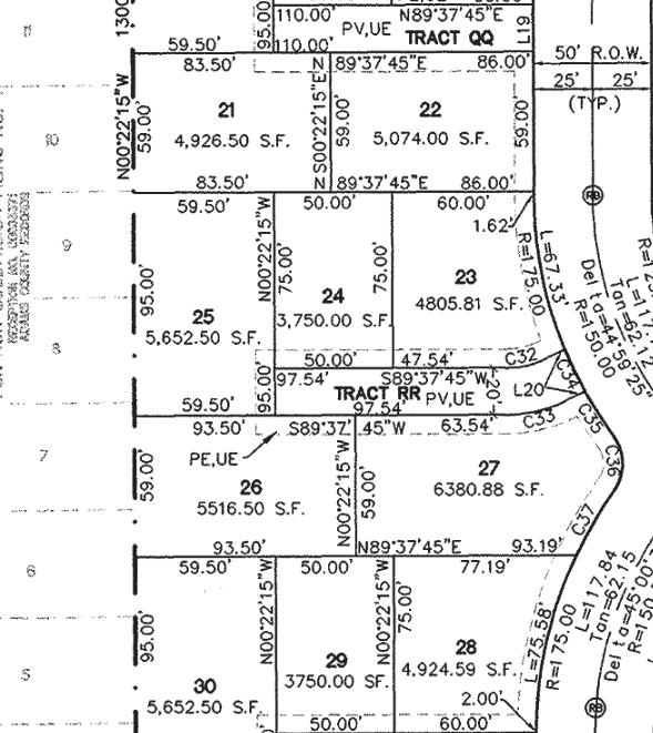
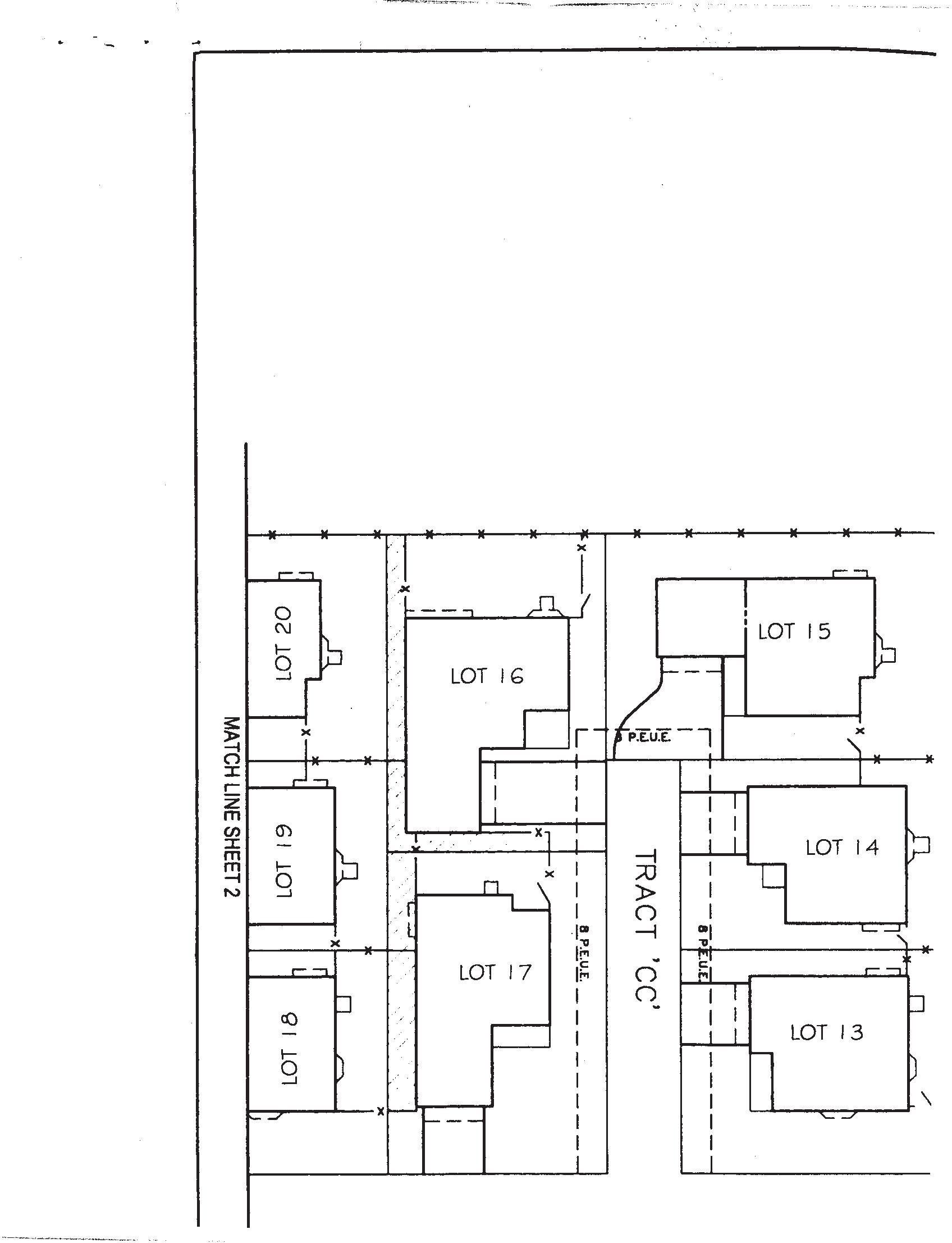
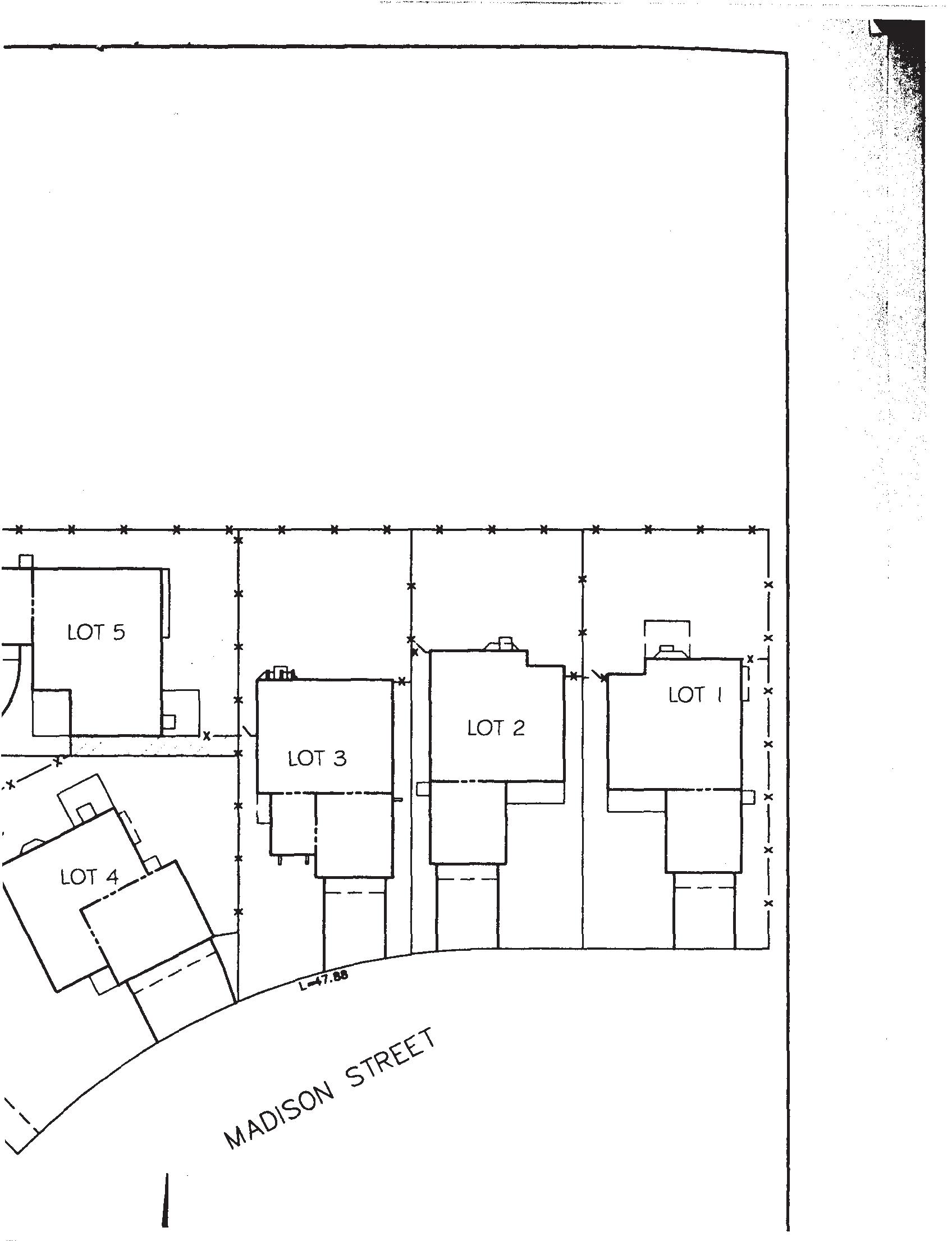
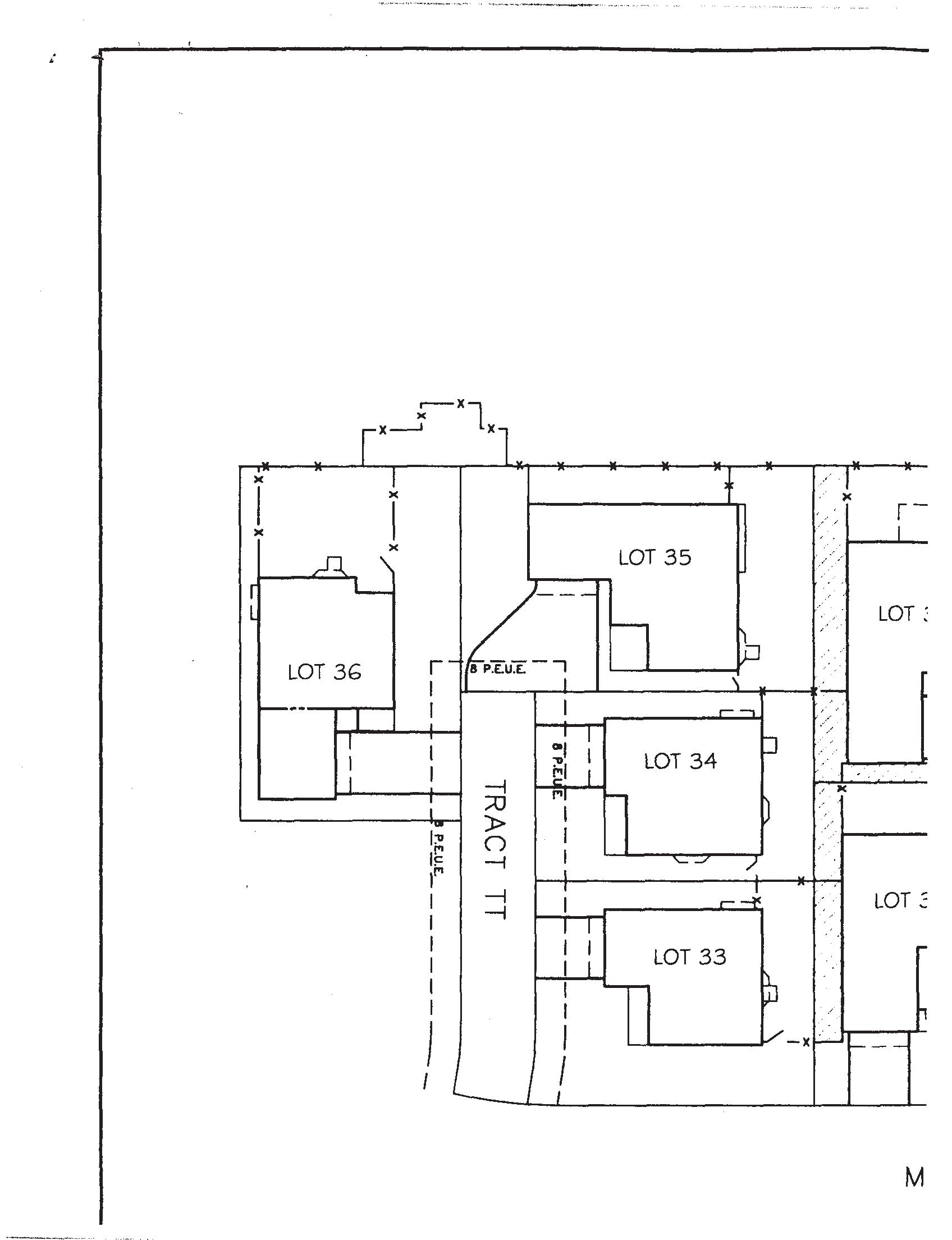
This map/plat is being furnished as an aid in locating described land in relation to adjoining streets, natural boundaries and other land, and is not a survey of the land depicted. Except to the extent a policy of title insurance is expressly modified by endorsement, if any, the company does not insure dimensions, distances, location of easements, acreage or other matters shown thereon.


This map/plat is being furnished as an aid in locating described land in relation to adjoining streets, natural boundaries and other land, and is not a survey of the land depicted. Except to the extent a policy of title insurance is expressly modified by endorsement, if any, the company does not insure dimensions, distances, location of easements, acreage or other matters shown thereon.


This map/plat is being furnished as an aid in locating described land in relation to adjoining streets, natural boundaries and other land, and is not a survey of the land depicted. Except to the extent a policy of title insurance is expressly modified by endorsement, if any, the company does not insure dimensions, distances, location of easements, acreage or other matters shown thereon.


This map/plat is being furnished as an aid in locating described land in relation to adjoining streets, natural boundaries and other land, and is not a survey of the land depicted. Except to the extent a policy of title insurance is expressly modified by endorsement, if any, the company does not insure dimensions, distances, location of easements, acreage or other matters shown thereon.




10525 MADISON ST THORNTON CO 80233
R0114972
ADAMS COUNTY CO
Adams 12 Five Star Schools
Elementary School
Stellar Elementary School 3901 East 124th Avenue, Thornton, CO 8024
Grades: K to 05
Middle School
Northglenn Middle School 1123 Muriel Drive, Northglenn, CO 80233
Grades: 06 to 08
High School
Thornton High School 9351 North Washington Street, Thornton, CO 80229
Grades: 09 to 12
720-972-2300
Distance: 2.7 Miles
720-972-5080
Distance: 4.3 Miles
720-972-4800
Distance: 6.0 Miles
Assigned schools provided by WFG’s Customer Service while deemed reliable, is not guaranteed. It is recommended to check with the district or school for confirmation.


Whatistheperformance framework? OfficialPerformanceRating Howareperformanceframeworkratingsdetermined?
PerformanceIndicatorRatings
Howdidstudentsperformondifferentpartsofthe performanceframework?
Postsecondary& WorkforceReadiness: Approaching
Achievement: Approaching
Growth: Approaching
Exceeds Expectations Meets Expectations Approaching Expectations
DoesNotMeet Expectations
Howdothedifferentperformanceindicators factorintotheofficialperformancerating?
WhatisUnified ImprovementPlanning?
ImprovementStrategies

Whatstrategieshavebeenputin placetoaddressrootcauses?

Engagestudentsinlearningthatfosters academicandsocialbelonging
PlanandImplementrigorousandrelevant gradelevelinstruction
Whatdoesthisratingmeanandhowdoesit comparetootherdistricts?
RootCauses

Whatissuesunderliethese challenges?

InstructiontoGradeLevelStandards InconsistentStudentEngagementand Empowerment InconsistentPlanningandInstruction
PerformanceChallenges
Whereisthedistrictfocusingits attention?

ElementaryandMiddleSchoolLiteracyand
2024PerformanceFrameworkResults
Whatistheperformance framework? OfficialPerformanceRating Howareperformanceframeworkratingsdetermined?

Principal: JenniferBuck
PerformanceIndicatorRatings
Achievement: Meets
Growth: Meets
Exceeds Expectations Meets Expectations Approaching Expectations
DoesNotMeet Expectations
Howdothedifferentperformanceindicators factorintotheofficialperformancerating?
WhatisUnified ImprovementPlanning?
ImprovementStrategies

Whatstrategieshavebeenputin placetoaddressrootcauses?

Whatdoesthisratingmeanandhowdoesit comparetootherschools?
RootCauses

Whatissuesunderliethese challenges?

LackofRead/WriteConnection InconsistentPlanningandInstruction
PerformanceChallenges
Whereistheschoolfocusingits attention?

Planandimplementrigorousandrelevant gradelevelinstruction ClickHeretoViewFullPeformanceFrameworkReport

Whatistheperformance framework?
2024PerformanceFrameworkResults
PerformanceIndicatorRatings
OfficialPerformanceRating Howareperformanceframeworkratingsdetermined?
Achievement: DoesNotMeet
Growth: Approaching
Exceeds Expectations Meets Expectations Approaching Expectations
DoesNotMeet Expectations
Howdothedifferentperformanceindicators factorintotheofficialperformancerating?
WhatisUnified ImprovementPlanning?
ImprovementStrategies

Whatstrategieshavebeenputin placetoaddressrootcauses?

Whatdoesthisratingmeanandhowdoesit comparetootherschools?
RootCauses

Whatissuesunderliethese challenges?

InconsistentPlanningandInstruction
PerformanceChallenges
Whereistheschoolfocusingits attention?

Principal: TeresaBarajas

Whatistheperformance framework?
Howdothedifferentperformanceindicators factorintotheofficialperformancerating?
ImprovementStrategies
Whatdoesthisratingmeanandhowdoesit comparetootherschools?
WhatisUnified ImprovementPlanning? PerformanceChallenges
Whatstrategieshavebeenputin placetoaddressrootcauses?


MIS#1:VisionForInstruction
MIS#2:EffectiveStudentSupportand Culture
RootCauses

Whatissuesunderliethese challenges?

Whereistheschoolfocusingits attention?

SenseofBelonging AlignedInstuction AlignedInstruction



147,012 POPULATION


$96,994
Thornton is a municipality which lay in both Adams and Weld Counties. Located 10 miles North up I-25 from the Colorado State Capitol in Denver, Thornton is a part of the Denver–Aurora–Lakewood, CO Metropolitan Statistical Area. The main employers of this bedroom community include Healthcare, Retail, Education & Manufacturing sectors.
Adams 12 Five Star Schools
Adams County School District 1
Brighton School District 27J
72% of homes owner occupied
27% of homes rented
50,387 Households
4,092 inhabitants per sq. mile
6th Largest City in Colorado
24.33% under age 18
9.85% between ages 18 to 24
29.26% between ages 25 to 44
24.02% between ages 45 to 64
12.53% above age 65
One of the First fully planned community in the State
37.95 Square Miles
5,351 Feet Elevation Highest Average Temperature 90º
Thornton consisted solely of farmland until 1953, when Sam Hoffman purchased a lot off Washington Street about seven miles North of Denver. The town he laid out was the first fully planned community in Adams County, and the first to offer full municipal services from a single tax levy, including recreation services and free trash pickup. Thornton was named in honor of then-incumbent Colorado Governor Dan Thornton. The Thornton Community Association (TCA) was formed in 1954 to help guide the new community's development. By the end of 1955, Thornton had 5,500 residents in over 1,200 homes.


10525 MADISON ST THORNTON CO 80233
R0114972
ADAMS COUNTY CO
Animal - Rescue
NameAddressTelephoneDistance
NorthsideEmergencyPetClini945W124thAve303-416-71323.71Mi
Animal - Services
NameAddressTelephoneDistance
Bement,RichardDDVM-Alpin1995E103rdAve303-466-57240.98Mi
BanfieldthePetHospital10600MelodyDr303-452-70332.57Mi
Leadbetter,LindaDVM-Leadb9400BrightonRd303-288-11232.60Mi Beckstrom,DavidDVM-VetsA8395ElatiSt303-429-65943.72Mi McAfee,DennisBDVM-Cotto2252W118thAve303-452-42843.93Mi
Banks
NameAddressTelephoneDistance
Keybank3505E104thAve303-262-81260.21Mi
WashingtonMutual-Banks-Th3790E104thAve303-280-20570.23Mi StateFarm3976E104thAve303-428-26120.30Mi ChaseBankandATM10404ColoradoBlvd303-255-40820.31Mi Miller-MichaelA2200E104thAve303-451-56960.81Mi
Credit Unions
NameAddressTelephoneDistance
PremierMembersFCU-CreditU680E120thAve303-657-70002.56Mi PublicServiceCreditUnion511E120thAve303-691-23452.64Mi CommunityChoiceCreditUnion6921E72ndAve303-287-80254.65Mi PremierMembersFederalCU1501DelNorteSt303-428-95714.98Mi CommunityFinancialFedCU6855W119thAve303-469-53667.00Mi

Theaboveisbelievedtobeaccurate,butisnotguaranteed. Copyright©1995-2025CDSMarketing,Inc.

10525 MADISON ST THORNTON CO 80233
R0114972 ADAMS COUNTY CO
Credit Unions
NameAddressTelephoneDistance
Coffee Shops
NameAddressTelephoneDistance
Starbucks3840E104thAve303-255-05960.26Mi
Starbucks:Albertsons-Thornto3840E104thAve303-255-05960.26Mi
Starbucks3894E120thAve,#B303-280-15801.80Mi
Starbucks:120th&Colorado-T3894E120thAve303-280-15801.80Mi
Starbucks:120th&Colorado-T3896E120thAve303-280-15801.80Mi
Eating and Drinking Places
NameAddressTelephoneDistance
McDonaldsE104thAve303-453-07080.20Mi
SonicRestarauntInc3605E104thAve303-255-46680.21Mi
McDonalds3690E104thAve303-453-07080.22Mi
VietnameseCafe3744E104thAve303-255-85550.22Mi
PapaMurphy'sTake'n'BakeP3782E104thAve303-280-82000.23Mi
Golf Courses
NameAddressTelephoneDistance
RanchCountryClub,The11887TejonSt303-466-21113.73Mi
ThorncreekGolfClub13555WashingtonSt303-450-70554.08Mi LegacyRidgeGolfCourseatW10801LegacyRidgePkwy303-438-89974.85Mi GreenwayParkGolfCourse110GreenCir303-466-37295.10Mi DunesCourseatRiverdaleDun13300RiverdaleRd303-659-67005.13Mi
Grocers and Supermarkets
NameAddressTelephoneDistance


10525 MADISON ST THORNTON CO 80233
R0114972
ADAMS COUNTY CO
Grocers and Supermarkets
NameAddressTelephoneDistance
Chase-ChaseIn-StoreBranch3840E104thAve303-244-57700.26Mi
Seven-ElevenStores-EastDe3901E112thAve303-452-68620.83Mi
KingSoopers750E104thAve,#A303-452-86571.71Mi
TejalInternationalFoods10351GrantSt,#6303-450-41642.00Mi
TejalInternationalFoods10351GrantSt,Unit6303-450-41642.00Mi
Health Clubs and Spas
NameAddressTelephoneDistance
UniversalTaeKwonDO3901E112thAve303-457-24260.83Mi
RockyMountainSportsCenter2180E112thAve303-254-54251.19Mi
FitSoldiersFitnessBootCam2100E112thAve,#2N/A1.22Mi
AutoReconInternational2801E120thAve303-404-94941.86Mi CurvesForWomen508MalleyDr303-451-69972.18Mi
Hospitals
NameAddressTelephoneDistance
MediplexSpecialtyHospital8451PearlSt303-288-30003.20Mi
KindredHospital-denver1920HighSt303-320-58719.87Mi Children'sHospital1056E19thAve303-861-88889.95Mi
Hospitals - Acute Care
NameAddressTelephoneDistance
NorthSuburbanMedicalCenter9191GrantSt303-451-78002.66Mi CenturaHealth-stAnthonyNor2551W84thAve303-426-21514.74Mi
ExemplaGoodSamaritanMedica200ExemplaCir303-689-40009.56Mi

Theaboveisbelievedtobeaccurate,butisnotguaranteed. Copyright©1995-2025CDSMarketing,Inc.

10525 MADISON ST THORNTON CO 80233
R0114972
ADAMS COUNTY CO
Hospitals - Acute Care
NameAddressTelephoneDistance
Presbyterian/stLuke'sMedica1719E19thAve303-839-61009.89Mi
ExemplaSaintJosephHospital1835FranklinSt303-837-71119.96Mi
Nursing Homes
NameAddressTelephoneDistance
VillasAtSunnyAcres,The2501E104thAve303-452-41810.59Mi
ElmsHavenCareAndRehabilit12080BellaireWay303-450-27002.01Mi
AlpineLivingCenter501ThorntonPky303-452-61012.20Mi
MalleyHealthcareAndRehabil401MalleyDr303-452-47002.26Mi VistaViewCareCenter8451PearlSt303-286-51993.20Mi
Offices and Clinics of Chiropractors
NameAddressTelephoneDistance
Ray,PatrickDC-Chiropracti550ThorntonPky,#178303-254-84302.26Mi
Ruby,PerryNDC-Northglenn11654HuronSt,#125303-452-46903.11Mi
Freuden,DonaldEDC-North9464FederalBlvd303-427-22254.47Mi Borman,WilliamRDC-Borman3915W127thAve303-465-13665.73Mi
Spresser,KenDC-SpresserK7878WadsworthBlvd,#200303-425-90578.02Mi
Offices and Clinics of Dentists
NameAddressTelephoneDistance
CatherineHHakala121MadisonWay303-321-89670.08Mi PerfectTeeth2200E104thAve-112303-452-41420.85Mi
DentalCenterAtThorntonPlz3984E120thAve303-399-71061.80Mi MissionTraceDentalOffice3957E120thAve303-452-39821.83Mi

Theaboveisbelievedtobeaccurate,butisnotguaranteed. Copyright©1995-2025CDSMarketing,Inc.

10525 MADISON ST THORNTON CO 80233
R0114972 ADAMS COUNTY CO
Offices and Clinics of Dentists
NameAddressTelephoneDistance
GeoffreyLHoffman10001WashingtonSt303-452-20531.90Mi
Offices and Clinics of Medical Doctors
NameAddressTelephoneDistance
GentlePetCareCenterPc3555E104thAve303-452-89310.20Mi
Sidhu,AmarbirKMD-ArborF3655E104thAve,#A303-254-85000.22Mi
Williams,JoeLMD-Horizon3260E104thAve720-929-83000.26Mi
AfteroursUrgentCareCenters3212E104thAve303-223-38700.28Mi Blacker,Betty-FirstAllerg10361CookWay720-929-83000.35Mi
Pet Sitting Services
NameAddressTelephoneDistance
AllbrickKennels&Grooming8700ZuniSt303-429-24334.43Mi Berman,AndrewPDVM-Adams8020SheridanBlvd303-429-97196.57Mi
Pharmacies
NameAddressTelephoneDistance
AftercareColorado,Llc3655E104thAve303-246-48770.14Mi 1stAllergy&AsthmaCenters3260E104thAve720-929-83000.22Mi DenverCareProviders3758East104thAvenue719-246-84430.22Mi RiteAid3905E104thAve303-255-71700.26Mi ThriftyPaylessInc3905E104thAve303-255-71700.26Mi
Places of Religion
NameAddressTelephoneDistance
StJohn'sLutheranChurch11040ColoradoBlvdN/A0.69Mi IntercessionEpiscopalChurch3101E100thAveN/A0.74Mi

Theaboveisbelievedtobeaccurate,butisnotguaranteed. Copyright©1995-2025CDSMarketing,Inc.

NorthglennChristianChurch1800E105thPlN/A1.03Mi
HolyCrossCatholicChurch9371WighamStN/A1.57Mi
HolyCrossCatholicChurch9371WighamSt303-289-22581.57Mi Retirement Communities
NameAddressTelephoneDistance
TheVillasAtSunnyAcres2501E104thAve303-255-41810.62Mi
BeeHiveHomesOfColorado11255GrantDr720-872-15062.15Mi
BeeHiveHomesOfColorado11275GrantDr720-872-15082.16Mi
AlpineManorHealthCareCent501ThorntonPkwy303-452-61012.22Mi
NorthglennHeightsAssistedL11475PearlSt303-452-05012.27Mi

Theaboveisbelievedtobeaccurate,butisnotguaranteed. Copyright©1995-2025CDSMarketing,Inc.
Emergency/Police/Medical/Fire 911
Poison Control (800) 222-1222 www.aapcc.org
United States Postal Service (800) 275-8777 www.usps.com
Xfinity (800) 266-2278 www.xfinity.com
Spectrum (844) 509-8921 www.spectrum.com
Dish Network (800) 318-0572 www.dish.com
DIRECT TV (800) 531-5000 www.directtv.com
T-Mobile Home Internet www.t-mobile.com/isp (720) 767-8202
Northglenn-Thornton Sentinel (303) 566-4100 coloradocommunitymedia.com/ northglenn-thornton-sentinel/
Xcel Energy (800) 895-4999 co.my.xcelenergy.com
City of Thornton Water (303) 358-7370
www.thorntonco.gov
City of Thornton Sanitary Sewer (303) 358-7370
www.thorntonco.gov
Thornton Trash & Recycling (720) 977-6200
www.thorntonco.gov/trashrecycling
Adams 12 Five Star Schools Adams12.org (720) 972-4000
Below is the website if you would like to change your address online or you can visit your local post o ce, they will provide you with the change of address packet.
https://moversguide.usps.com
Bene ts you will receive when you change your address online are:
♦ Exclusive mover savings coupons
♦ Safe and secure with identity veri cation by a simple $1.00 charge to your credit or debt card
♦ Email con rmation at the end of registration of your change of address
* Must have valid email address and credit card to register online.
Below is the website if you would like to change your address online or have any questions.
Region 1 and Headquarters
Denver/Central Colorado 2829 W Howard Place Denver, CO 80204 (303) 759-2368
www.codot.gov
Below is the website if you would like to change your address online or you can ll out the paperwork provided and mail it back to your County Elections O ce listed below.
sos.state.co.us/voter/pages/pub/home.xhtml
County Elections O ce Contacts
Adams County
4430 S Adams County Pkwy 1st Floor, Suite E3102 Brighton, CO 80601 (720) 523-6500
Arapahoe County 5334 S Prince St Littleton, CO 80120 (303) 795-4511
Boulder County 1750 33rd St, Suite 200 Boulder, CO 80301 (303) 413-7740
Broom eld County One DesCombes Dr Broom eld, CO 80020 (303) 438-6332
Denver County 200 W 14th Ave Denver, CO 80204 (720) 913-8683
Douglas County 125 Stephanie Place Castle Rock, CO 80109 (303) 660-7444
El Paso County 1675 W Garden of the Gods Rd Suite 2201 Colorado Springs, CO 80907 (719) 520-6202
Je erson County 3500 Illinois Street, Suite 1100 Golden, CO 80401 (303) 271-8168
Electric
NW Natural Gas
Water District
Sewer District
Garbage Provider
Cable/Satellite
Fuel (Propane)
Phone Services
Internet
Banks and Credit Unions
Credit Card Companies (including department store credit cards)
Lenders
(Mortgage, Home Equity, Auto, Student Loans)
Insurance Companies (Health, Renters, Auto, Home, Medical, Dental, Disability, Life)
Retirement (Pension plans, 401K, Social Security, Veterans A airs)
Investments
(Investment Agencies and Brokers)
Online Bill Payer
Paypal
GOVERNMENT OFFICES
US Post O ce
Department of Motor Vehicles
(Obtain your driver’s license and change vehicle registration)
IRS
Passport O ce
Veteran A airs
Unemployment O ce
(If you are currently receiving unemployment bene ts)
HEALTH
Physician
Pharmacies
SERVICE PROVIDERS
Childcare
Housecleaning Services
Delivery Services
Lawn Care Services
Veterinarian
Pool Service
Health Clubs
Membership Clubs (AAA or similar)
Community Groups (PTA, Neighborhood Associations, Civic Clubs)
Children’s Extracurricular Activities (Dance Classes, Music Lesson, Sports Clubs)
SUBSCRIPTIONS
Newspapers
Magazine (USPS will only forward 2 months)
Movie Subscriptions
(Net ix, Blockbuster, etc)
Book or Music Clubs
OTHER
Friends and Family Employers
(typically notify the Human Resources Department)
Inventory Sheets: Create an inventory sheet of all your belongings which need to be moved
Research Moving Options: You’ll need to decide if yours is a do-it-yourself move or if you’ll be using a moving company.
Request Moving Quote: Solicit moving quotes from as many moving companies and movers as possible. There can be a large di erence between rates and services within moving companies.
Discard Unnecessary Items: Moving is a great time for ridding yourself of unnecessary items. Have a yard sale or donate unnecessary items to charity.
Packing Material: Gather moving boxes and packing material for your move.
Contact Insurance Companies: You’ll need to contact your insurance agent to cancel/transfer your insurance policy.
Start Packing: Begin packing all things destined for your new location.
Obtain Your Medical Records: Contact your doctor, physician, dentist and other medical specialists who may currently be retaining any of your family’s medical records. Obtain these records or make plans for them to be delivered to your new medical facilities if changing. Security is critical of personal records.
Note Food Inventory Levels: Check your cupboards, refrigerator and freezer. Use up as much of your perishable food as possible.
Small Engines: Service small engines for your move by extracting gas and oil from the machines. This will reduce that chance to catch re during your move.
Protect Jewelry and Valuables: Transfer your jewelry and valuables to a safety deposit box; you don’t want them to be lost or stolen during your move.
Borrowed and Rented Items: Return items which you may have borrowed or rented. Collect items borrowed to others.
Your Change of Address: Change your address with the USPS, DMV, Financial Institutions, Utilities, Government O ces, Health Care Service Providers, Memberships, Subscriptions and Insurance Provisions.
Bank Accounts: Transfer or close bank accounts if changing banks. Make sure to have a money order for paying the moving company.
Service Automobiles: If automobiles are to be driven long distance, you’ll want to have them serviced so you have a trouble-free drive.
Cancel Services: Notify any remaining service providers (newspapers, lawn services, etc.) of your move.
Travel Items: Set aside all items you’ll need while traveling. Make sure these are not packed on the moving truck..
Contact Utility Companies: Set utility turno date, seek refunds and deposits and notify them of your new address.
Plan Your Itinerary: Make plans to spend the entire day at the house or at least until the movers are on their way. Someone will need to be around to make decisions. Make plans for kids and pets to be at a sitters for the day.
Review the House: Once the house is empty, check the entire house (closets, attic, basement, etc.) to ensure no items are left or no home issues exist.
Double Check With Your Mover: Ensure the mover has the new property address and all of your most recent contact information, should they have any questions during your move.
Vacate Your Home: Make sure utilities are o , doors and windows are locked and notify your real estate agent you’ve vacated the property.
Questions To Ask: Where is the garage door opener? Where are the keys to the house, mailbox and other lockable area? Did you retrieve all keys from neighbors and friends?
AIRPORT
Denver International Airport (720) 730-4359 www. ydenver.com
AUTO & DRIVER REGISTRATION
Department of Transportation (303) 759-2368 www.codot.gov
BUS SERVICE
RTD (303) 299-6000 www.rtd-denver.com
Greyhound (800) 231-2222 www.greyhound.com
CABLE TV, INTERNET, PHONE & SATELLITE
Century Link (877) 803-8414 www.centurylink.com
Dish Network (800) 318-0572 www.dish.com
DIRECT TV (800) 531-5000 www.directtv.com
Spectrum (844) 509-8921 www.spectrum.com
XFINITY (800) 934-6489 www.comcast.com
CITY CONTACT
Arvada - (720) 898-7000 www.arvadaco.gov
Aurora - (303) 739-7000 www.auroragov.org
Boulder - (303) 441-3388 www.bouldercolorado.gov
Brighton - (303) 665-2000 www.brightonco.gov
Broom eld - (303) 469-3301 www.broom eld.org
Castle Rock - (303) 660-1015 www.castlerock.org
Centennial - (303) 325-8000 www.centennialco.gov
Colorado Springs (719) 385-2489 www.coloradosprings.gov
Commerce City (303) 289-3600 www.c3gov.com
Denver - (720) 913-1311 www.denvergov.org
Englewood - (303) 762-2300 www.englewoodgov.org
Erie - (303) 926-2700 www.erieco.gov
Federal Heights (303) 428-3526 www.fedheights.org
Fountain - (719) 332-2000 www.fountaincolorado.org
Glendale - (303) 759-1513 www.glendale.co.us
Golden - (303) 384-8000 www.cityofgolden.net
Greenwood Village (303) 773-0252 www.greenwoodvillage.com
Highlands Ranch (303) 791-0430 www.highlandsranch.org
Lafayette - (303) 665-5588 www.cityo afayette.com
Lakewood - (303) 987-7000 www.lakewood.org
Littleton - (303) 795-3700 www.littletongov.org
Lone Tree - (303) 708-1818 www.cityo onetree.com
Longmont - (303) 776-6050 www.longmontcolorado.gov
Louisville - (303) 666-6565 www.louisvilleco.gov
Manitou Springs (719) 685-5481 www.manitouspringsco.gov
Northglenn - (303) 451-8326 www.northglenn.org
Parker - (303) 841-0353 www.parkeronline.org
Superior - (303) 499-3675 www.superiorcolorado.gov
Thornton - (303) 538-7575 www.cityofthornton.net
Westminter - (303) 658-2400 www.cityofwestminster.us
Wheat Ridge - (303) 234-5900 www.ci.wheatridge.co.us
Adams 4430 S Adams County Pkwy Brighton, CO 80601 (303) 659-2120
Arapahoe 5334 S Prince St Littleton, CO 80120 (303) 795-4400
Boulder County 1750 33rd St Boulder, CO 80301 (303) 413-7740
Broom eld County One DesCombes Dr Broom eld, CO 80020 (303) 469-3301
Denver County
200 W 14th Ave Denver, CO 80204 (720) 913-1311
Douglas County 125 Stephanie Place Castle Rock, CO 80109 (303) 660-7400
El Paso County 1675 W Garden of the Gods Rd Colorado Springs, CO 80907 (719) 520-7276
Je erson County 100 Je erson County Pkwy Golden, CO 80419 (303) 271-6511
CORE Electric (303) 688-3100 www.core.coop
Xcel Energy (303) 615-5000 my.xcelenergy.com
AllHealth Network (303) 730-8858 www.allhealthnetwork.org
Anschutz (720) 848-0000 www.uch.edu
Avista (303) 673-1000 www.avistahospital.org
Boulder Community Hospital (303) 440-2273 www.bch.org
Castle Rock Adventist (720) 455-5000 www.centura.org
Centennial Medical Plaza (303) 699-3000 www.auroramed.com
Children’s Hospital Colorado (720) 777-1234 www.childrenscolorado.org
Craig Hospital (303) 789-8000 www.childrenscolorado.org
Denver Health (303) 436-6000 www.denverhealth.org
Good Samaritan (303) 689-4000 www.sclhealth.org
Kaiser Permanente (303) 338-3800 www.kp.org
Littleton Adventist Hospital (303) 730-8900 www.littleton-adventist-hospital
Lutheran Medical Center (303) 425-4500 www.lutheranmedicalcenter.org
Medical Center of Aurora (303) 695-2600 www.auroramed.com
North Suburban Medical (303) 451-7800 www.northsubruban.com
Parker Adventist Hospital (303) 269-4000 www.parkerhospital.org
Platte Valley Medical (303) 498-1600 www.pvmc.org
Porter Adventist Hospital (303) 778-1955 www.mylittletonhospital.org
Presbyterian / St Luke’s (303) 839-6000 www.pslmc.com
Rocky Mountain Hospital (720) 754-1000 www.rockymountainhospitalforchildren.com
Rose Medical Center (303) 320-2121 www.rosemed.com
Sky Ridge Medical Center (720) 225-1000 www.skyridgemedcenter.com
St. Anthony Medical Center (720) 225-1000 www.stanthonyhosp.org
Swedish Medical Center (866) 779-3474 www.swedishhospital.com
UCHealth (720) 516-1000 www.uchealth.org
University of Colorado Hospital (303) 372-0000 www.uch.edu
Aquarium (303) 561-4450 www.downtownaquariumdenver.com
Black Canyon of Gunnison 9800 Hwy 347, Montrose www.nps.gov
Butter y Pavilion (303) 469-5441 www.butter ies.org
Boondocks (720) 842-1100 www.boondocks.com/parker
Castle Rock Adventure Park (720) 733-9477 www.castlerockziplinetours.com
Cheyenne Mountain Zoo (719) 633-9925 www.cmzoo.org
Children's Museum Denver (303) 433-7444 www.mychildsmuseum.org
Colorado State Parks (303) 470-1144 www.colorado.gov/capitol
Coors Brewing Company (303) 277-2337 www.coors.com
Denver Botanic Gardens (720) 865-3500 www.botanicgardens.org
Denver Zoo (720) 337-1400 www.denverzoo.org
Dinosaur Ridge (303) 697-3466 www.dinoridge.org
Elitch Gardens Amusement Park (303) 595-4386 www.elitchgardens.com
Family Sports Center (303) 708-9500 www.ssprd.org
Four Mile Historic Park (303) 399-1859 www.fourmilepark.org
Garden of the Gods (719) 634-6666 www.gardenofgods.com
Great Sand Dunes National Park and Preserve 11999 State Hwy 150, Mosca www.nps.gov
Heritage Square (303) 727-8437 www.heritagemusementpark.com
Hudson Gardens (303) 797-8565 www.hudsongardens.org
Lakeside Amusement Park (303) 477-1621 www.lakesideamusementpark.com
Lollipop Park (303) 761-8700 www.lollipoppark.com
Mile High Flea Market (303) 289-4656 www.milehigh eamarket.com
National Center for Atmospheric Research (303) 497-1174 www.ucar.edu
Pikes Peak Cog Railway (719) 685-5401 www.cograilway.com
Pirates Cove Family Aquatic (303) 762-2683 www.piratescovecoloardo.com
Rocky Mountain National Park 1000 US Hwy 36, Estes Park www.nps.gov
Tiny Town (303) 697-6829 www.tinytownrailroad.com
Waterworld (303) 427-7873 www.waterworldcolorado.com
Arapahoe Marketplace 8505 E Arapahoe Rd Greenwood Village, CO
Arapahoe Crossings 6400-6700 S Park Rd Aurora, CO
Bowles Crossing 8055 W Bowles Ave Littleton, CO
Centennial Promenade 9555 E County Line Rd Centennial, CO
Chapel Hills Mall 1710 Briargate Blvd Colorado Springs, CO
Cherry Creek North 299 Milwaukee St Denver, CO
Cherry Creek 3000 E 1st Ave Denver, CO
Citadel Mall 750 Citadel Dr E Colorado Springs, CO
Colorado Mills 14520 W Colfax Ave Lakewood, CO
Denver Pavilions 16th Street Mall and Glenarm Pl Denver, CO
Downtown Boulder Pearl Street and Broadway Boulder, CO
Festival Shopping Center 8110 S University Blvd www.festivalshoppingcenter.com
FlatIron Crossing One W Flatiron Crossing Dr Broom eld, CO
Heritage Hills 9227 Lincoln Ave Lone Tree, CO
Larimer Square 1430 Larimer Denver, CO
Marketplace at Northglenn 104th Ave and I-25 Denver, CO
Marina Square
8101 E Belleview Ave Denver, CO
Oakbrook
311 E County Line Rd Littleton, CO
Outlets at Castle Rock
5050 Factory Shops Blvd Castle Rock, CO
Park Meadows 8401 Park Meadows Center Dr Lone Tree, CO
Shops at Highland Walk 4000 Red Cedar Dr Highlands Ranch, CO
Southlands E Smoky Hill Rd and E-470 Aurora, CO
Shops at Highland Walk 4000 Red Cedar Dr Highlands Ranch, CO
Southwest Plaza 8501 W Bowles Ave Littleton, CO
The Streets at SouthGlenn 6991 S Vine St Centennial, CO
Town Center at Aurora 14200 E Alameda Ave Aurora, CO
Twenty Ninth Street
Arapahoe Ave and 28th St Boulder, CO
Willow Creek 8200 S Quebec St Centennial, CO
Village at the Peaks 1250 S Hover Rd Longmont, CO
Colorado Springs Transfer Station
wmsolutions.com 1965 Commercial Blvd Colorado Springs, CO 80906
South Metro Transfer Station wmsolutions.com 2400 West Union Avenue Englewood, CO 80110
D&R Transfer Station wmsolutions.com 6091 Brighton Blvd Commerce City, CO 80022
Adams County 4430 S Adams County Pkwy 1st Floor, Suite E3102 Brighton, CO 80601 (720) 523-6500
Arapahoe County 5334 S Prince St Littleton, CO 80120 (303) 795-4511
Boulder County 1750 33rd St, Suite 200 Boulder, CO 80301 (303) 413-7740
Broom eld County One DesCombes Dr Broom eld, CO 80020 (303) 438-6332
Denver County 200 W 14th Ave Denver, CO 80204 (720) 913-8683
Douglas County 125 Stephanie Place Castle Rock, CO 80109 (303) 660-7444
El Paso County 1675 W Garden of the Gods Suite 2201 Colorado Springs, CO 80907 (719) 520-6202
Je erson County
3500 Illinois Street, Suite 1100 Golden, CO 80401 (303) 271-8168



Because of you… we obsess over cyber security!
Cyber fraud and email hacking is on the rise. Fraudsters may access individual email accounts and monitor the life of your transaction. At the time funds are due to the escrow, fraudsters intercept the information for wiring funds and the fraudsters change the information without the knowledge of the sender or recipient, resulting in the funds being sent to an outside account and never credited to the intended party.
To protect and reduce your risk, WFG has implemented the following procedures for outgoing and incoming wires:
In the escrow paperwork provided you will be asked to provide written instructions on how you want funds dispersed at the close of escrow. If you choose to have the funds sent via wire transfer, WFG will contact you by phone to con rm the wire information provided.
For funds that are to be wired to WFG for your transaction, we will send speci c wire instructions to the remitting person via an encrypted email. We recommend you reach out to your WFG contact to con rm the wire instructions prior to remittance.
We look forward to processing your escrow transaction for you. We know that this can be a stressful time and we are here to assist you in any way we can to make this a good experience.
http://national.wfgnationaltitle.com/2016/04/05/obsess-cyber-security/
Every day, hackers try to steal your money by emailing fake wire instructions. Criminals will use a similar email address and steal a logo and other info to make it look like the email came from your real estate agent or title company. You can protect yourself and your money by following the steps below.
Don’t send sensitive nancial information via email.
Call, don’t email. Con rm your wiring instructions by phone using a known number before transferring funds.
We will never email wiring instructions to you nor change WFG account information after it’s been provided to you by our sta .
Keep your email account clean, remove any stale messages. Hackers can watch your business patterns and use this information against you.
Ask your bank to con rm the name on the account before sending a wire.
Call your title company or real estate agent within four to eight hours to con rm they have received your money.
This is for informational purposes only and should not be considered legal advice.
The purchase of a home is likely going to be one of the most expensive and important purchases you will ever make. You and your mortgage lender want to make sure the property is indeed yours and that no individual or government entity has any right, lien, claim, or encumbrance to your property.
The title insurance company’s function is to make sure your rights and interests to the property are clear, that transfer of title takes place e ciently, and correctly, and your interests as a homebuyer are protected. Title insurance companies provide services to buyers, sellers, real estate developers and builders, mortgage lenders, and others who have an interest in the real estate transfer. Title companies issue two types of policies - “Owners Policy” (which covers the homebuyer) and “Lenders Policy” (which covers the bank, savings and loan, or other lending institution over the life of a loan). Both are issued at the time of purchase for a one-time premium.
The title company conducts an extensive search of public records to determine if anyone other than you has an interest in the property before issuing a policy. The search may be performed by title company personnel using either public records, or more likely, information gathered, reorganized, and indexed in the company’s title “plant”. With such a thorough examination of records, title problems can usually be found and cleared up prior to purchase of the property. Once a title policy is issued, if for some reason any claim, which is covered under your title policy, is ever led against your property, the title company will pay the legal fees involved in defense of your rights as well as any covered loss arising from a valid claim. That protection, which is in e ect as long as you or your heirs own the property, is yours for a one-time premium paid at the time of purchase.
The title company works to eliminate risks before they develop. This makes title insurance di erent from other types of insurance. Most forms of insurance assume risks by providing nancial protection through a pooling of risks or losses arising from unforeseen events, like re, theft, or accident. The purpose of title insurance, on the other hand, is to eliminate risks and prevent losses caused by defects in title that happened in the past. Risks are examined and mitigated before property changes hands. Eliminating risk has bene ts to both of you, the home buyer, as well as the title company. It reduces the chance adverse claims might be raised, and by doing so reduces the number of claims that have to be defended or satis ed. This keeps costs down for the title company and your title premiums low. With title insurance you are assured that any valid claim against your property will be taken on by the title company, and that the odds of a claim being led is slim.
When your o er has been accepted and conveyed, escrow is opened. An escrow is an arrangement made under contract between a buyer and seller. As the neutral third party, escrow is responsible for receiving and disbursing money and/ or documents. Both the buyer and seller expect the escrow agent to carry out their written instructions associated with the transaction and also to advise them if any of their instructions are not being met, or cannot be met. If the instructions from all parties to an escrow are clearly set out, the escrow o cer can proceed on behalf of the buyer and seller without further consultation.
The Seller/Agent
• Delivers Purchase Sale Agreement to the escrow agent
• Prepares the paperwork necessary to close the transaction
• Approves the commitment for title insurance, or other items as called for by the Purchase Sale Agreement
The Buyer/Agent
• Deposits funds required to close with the escrow agent
• Executes the paperwork and loan documents necessary to close the transaction
The Lender
• Deposits loan documents to be provided by the buyer
• Deposits the loan funds
• Informs the escrow agent of the conditions under which the loan funds may be used
• Clears Title
• Obtains title insurance
• Obtains payo s and release documents for underlying loans on the property
• Receives funds from the buyer and/or lender
• Prepares vesting document a davit on seller’s behalf
• Prorates insurance, taxes, rents, etc.
• Prepares a nal statement (often referred to as the Closing Disclosure or CD) for each party, indicating amounts paid in conjunction with the closing of your transaction
• Forwards deed to the county for recording
• Once the proper documents have been recorded, the escrow agent will distribute funds to the proper parties
Escrow is the process that gathers and processes many of the components of a real estate transaction. The escrow agent is a neutral third party acting on behalf of the buyer and seller.
Title insurance insures against nancial loss from defects in title, liens, or other matters. It protects both purchasers and lenders against loss by the issuance of a title insurance policy. Usually, during a purchase transaction the lender requests a policy (commonly referred to as the Lender’s Policy) while the buyers receive their own policy (commonly referred to as an Owner’s Policy).
It will protect against lawsuits if the status of the title to a parcel or real property is other than as represented, and if the insured (either the owner or lender) su ers a loss as a result of a title defect. The insurer will reimburse the insured for that loss and any related legal expenses.
While the purpose of most other types of insurance is to assume risk through the pooling of monies for losses happening because of unforeseen future events (like sickness or accidents), the primary purpose of title insurance is to eliminate risks and prevent losses caused by defects in title arising out of events that have happened in the past. To achieve this, title insurers perform a thorough search and examination of the public records to determine whether there are any adverse claims (title defects) attached to the subject property. These defects/claims are either eliminated prior to the issuance of a title policy or their existence is excepted from coverage. The policy is issued after the closing of your new home, for a one time nominal fee, and is good for as long as you own the property.
A title search is made up of three separate searches:
• Chain of Title – History of the ownership of the subject property
• Lien & Encumbrance Search – Discloses liens and encumbrances on the subject property
• Exceptions from Coverage Search –Includes Easements, Covenants, Conditions and Restrictions, etc.
After the three searches have been completed, the le is reviewed by an examiner who determines:
• If the Chain of Title shows that the party selling the property has the rights to do so.
• Whether there are any unsatis ed judgments on the Judgment and Name Search against the previous owners, sellers, or/and purchasers.
Rights established by judgment decrees, unpaid federal income taxes, and mechanics liens all may be prior claims on the property, ahead of the buyer’s or lender’s rights. The title search will only uncover issues in title that are of public record and therefore allowing the title company to work with the seller to clear up these issues and provide the new buyer with title insurance.
Once the searches have been examined, the title company will issue a commitment, stating the conditions under which it will insure title. The buyer, seller, and the mortgage lender will proceed with the closing of the transaction after clearing up any defects in the title that have been uncovered by the search and examination.
The examples below are typical. However, the real estate purchase agreement will ultimately determine who is paying for what expenses.
• Real Estate Commission
• Document preparation fee for Deed
• Payo of all loans in the seller’s name (or existing loan balance if being assumed by Buyer)
• Interest accrued to lender being paid o
• Statement Fees, Reconveyance Fees, and any prepayment penalties to Payo Lender
• Home Warranty (according to contract)
• Any judgments, tax liens, etc. against the seller
• Tax proration (for any taxes unpaid at time of transfer of title)
• Any unpaid Homeowners’ Association dues
• Recording charges to clear documents of record against seller
• Any bonds or assessments (according to contract)
• Any and all delinquent taxes
• Notary Fees
• Title Insurance Premium for Lender’s Policy
• Escrow Fee (one half)
• Document preparation (if applicable)
• Notary fees
• Recording charges for all documents in Buyers’ names
• Tax proration (from date of acquisition)
• Homeowners’ Association transfer fee
• HOA proration (from date of acquisition)
• All new loan charges (except those required by lender for seller to pay
• Interest on new loan from date of funding to 30 days prior to rst payment date
• Assumption/Change of Record fees for takeover of existing loan (if applicable)
• Bene ciary Statement Fee for assumption of existing loan (if applicable)
• Inspection Fees (roo ng, property inspection, geological)
• Home Warranty (according to contract)
• Fire Insurance Premium for rst year
• Any bonds or assessments (according to contract)
The distinction between personal property and real property can be the source of di culties in a real estate transaction. A purchase contract is normally written to include all real property; that is, all aspects of the property that are fastened down or which are an integral part of the structure. For example, this would include light xtures, drapery rods, attached mirrors, and trees and shrubs in the ground. It would not include potted plants, free-standing refrigerators, washer/dryer, microwave, bookcases, lamps, etc. If there is any uncertainty whether an item is included in the sale or not, it is best to be sure that the particular item is mentioned in the purchase agreement as being included or excluded.
DISCLAIMER:
This information is provided for informational purposes only and no warranties are made.
Ownership of property vested in one person rather than held jointly with another.
Parties need not be married; may be more than two persons.
Parties need not be married; may be more than two persons.
Also called sole tenancy.
The sole owner may use, encumber, rent, sell, and convey at their discretion.
The owner may transfer the property via a Will, Trust, or a Bene ciary Deed upon their death.
Each joint tenant holds an equal and undivided interest in the estate, unity of interest.
Upon death, the estate of the decedent must be “cleared” through probate or adjudication.
One joint tenant can partition the property by selling his or her joint interest.
Each joint tenant holds an undivided fractional interest in the estate. May be disproportionate interest e.g. 20% and 80%; 40% and 60%; etc.
Each tenant’s share can be conveyed, mortgaged, or devised to a third party.
Requires signatures of all joint tenants to convey or encumber the whole.
Requires signatures of all to convey or encumber the whole.
Estate passes to surviving joint tenants outside of probate.
No court action required to “clear” title upon the death of joint tenant(s).
Upon death, the tenant’s proportionate share passes to his or her heirs by will or intestacy.
Upon death, the estate of the decedent must be “cleared” through probate or adjudication.
DISCLAIMER – The foregoing contains informational examples only and is not to be construed as legal advice. Given the complexities involved in acquiring and holding legal title to real property, WFG strongly recommends that you seek legal advice from an attorney prior to doing so.

55 Madison Street, Suite 690
Denver, CO 80206 (720) 475-8325
NORTH
12050 N Pescos Street, Suite 110 Westminster, CO 80234 (720) 475-8350
8610 Explorer Drive, Suite 105
Colorado Springs, CO 80920 (719) 598-5355
7800 E Union Avenue, Suite 310 Denver, CO 80237 (720) 475-8300
WFG’s My Home
CC&R’s (if applicable)
The information contained is provided by WFG’s Customer Service Department to our customers, and while deemed reliable, is not guaranteed.


REPORT FOR 10/3/2025
Single-Family Homes
This week the median list price for Thornton, CO 80233 is $517,500 with the market action index hovering around 47. This is an increase over last month's market action index of 46. Inventory has decreased to 24.
This answers “How’s the Market?” by comparing rate of sales versus inventory.
In the last few weeks the market has achieved a relative stasis point in terms of sales to inventory. However, inventory is sufficiently low to keep us in the Seller’s Market zone so watch changes in the MAI. If the market heats up, prices are likely to resume an upward climb.
Market Segments
Each segment below represents approximately 25% of the market ordered by price.
$497,0001,9886,500 -
Again this week we see prices in this zip code remain roughly at the level they’ve been for several weeks. Since we’re significantly below the top of the market, look for a persistent up-shift in the Market Action Index before we see prices move from these levels.
In the quartile market segments, we see prices in this zip code have settled at a price plateau across the board. Prices in all four quartiles are basically mixed. Look for a persistent shift (up or down) in the Market Action Index before prices move from these current levels.
The market plateau is seen across the price and value. The price per square foot and median list price have both been reasonably stagnant. Watch the Market Action Index for persistent changes as a leading indicator before the market moves from these levels. 7-Day
Inventory has been falling in recent weeks. Note that declining inventory alone does not signal a strengthening market. Look to the Market Action Index and Days on Market trends to gauge whether buyer interest is changing with the available supply.
In the last few weeks the market has achieved a relative stasis point in terms of sales to inventory. However, inventory is sufficiently low to keep us in the Seller’s Market zone so watch changes in the MAI. If the market heats up, prices are likely to resume an upward climb.
Not surprisingly, all segments in this zip code are showing high levels of demand. Watch the quartiles for changes before the whole market changes. Often one end of the market (e.g. the highend) will weaken before the rest of the market and signal a slowdown for the whole group.
The properties have been on the market for an average of 48 days. Half of the listings have come newly on the market in the past 42 or so days. Watch the 90-day DOM trend for signals of a changing market.
It is not uncommon for the higher priced homes in an area to take longer to sell than those in the lower quartiles.









Instant access to
WFG’s MyHome® provides full transparency, real-time updates, and post-closing home information in a secure built with YOU in mind.
Contact information for
Sign up for an account at https://myhome.wfgtitle.com today!
Click Register for MyHome® account on a MyHome® email to https://myhome. wfgtitle.com
Complete a brief registration form. Use your email address on immediate access.

via text, email, or
for your transaction
your escrow team

TRANSACTION CLOSED
GATHER UP
SIGNING SCHEDULED
CLOSE TO SIGNING
TITLE CLEARED
UPDATER INVITATION
TITLE REPORT DELIVERED
TRANSACTION STARTED
MIDPOINT FEEDBACK
EARNEST MONEY

We believe these are the correct conditions and restrictions.
However, no examination of title has been made and WFG National Title assumes no liability for any additions, deletions or corrections.

















































