Architecture Portfolio 2023

Page 1

PORT FOLIO

Architecural works
MUTISYA TREVOR KIOKO
interior architecturerestaurant design 01 01 02 03 04 07 15 23 large gathering spaceacoustic design mombasa old town mixed used developmentarchitectural conservation lake elementaitaresidentail design

RESTAURANT DESIGN

THE BRIEF

NAIROBI STREET KITCHEN, THE LIBRARY RESTAURANT, KASHMIR

FURNITURE AND ARTS AND BALL POINT SOCIAL CLUB have decided to come together to create a public space that will be used to house an Art and Recreation Centre on the mezzanine floors of Hazina Trade Centre in the Central Business District of Nairobi.

The Clients require you to create one unified space that will seamlessly integrate these four activities: Eating, Reading, Exhibition and Entertainment.

CONCEPTUALIZATION

The themes are based on the subsets of Science Fiction which are Steampunk, Stonepunk, Cyberpunk and Retrofuturism

INTERIOR ARCHITECTURE

RESTAURANT DESIGN

THE BRIEF

NAIROBI STREET KITCHEN, THE LIBRARY RESTAURANT, KASHMIR

FURNITURE AND ARTS AND BALL POINT SOCIAL CLUB have decided to come together to create a public space that will be used to house an Art and Recreation Centre on the mezzanine floors of Hazina Trade Centre in the Central Business District of Nairobi.

The Clients require you to create one unified space that will seamlessly integrate these four activities: Eating, Reading, Exhibition and Entertainment.

CONCEPTUALIZATION

The themes are based on the subsets of Science Fiction which are Steampunk, Stonepunk, Cyberpunk and Retrofuturism

INTERIOR ARCHITECTURE
01

SEGER

SEGER

SITE HAZINA TRADE CENTRE MOKTAR DADDAH STREET NGINYO TOWERS FIRESTONE BAR AND GRILL SEGER RESTAURANT FIRESTONE BAR AND GRILL SEGER RESTAURANT PEBBLES CAFE FLAMIN' GARDEN HOUSE MEZZANINE 1 MAIN KITCHEN MUTISYA TREVOR KIOKO B02/137214/2019
RESTAURANT cyberpunk MOOD BOARD SURFACE FINISHES SNAKE LIGHTING WITH LED GLASS PARTITIONING WITH DIAGIONAL GYPSYM PATTERNS EMPHASIS ON UPLIGHTING EPOXY FLOORING WITH CUMPUTER BUSES PATTERNS GRAFFITI, WALLPAPER, COMICS AND MURALS ON SOLID WALLS AS FINISHING FURNITURE DESIGN FIXED TABLES AND TABLE TOPS, BOLTED TO SPECIFICATION FALSE MARBLE TABLE TOPS PLASTIC CHAIRS ON METAL SUPPORTS QUARTS TABLE TOPS FAUX LEATHER FOR BOOTH SEATING SIGNAGE WITH LED LIGHTING MUTISYA TREVOR KIOKO B02/137214/2019
RESTAURANT cyberpunk MOOD
SURFACE FINISHES SNAKE LIGHTING WITH LED GLASS PARTITIONING WITH DIAGIONAL GYPSYM PATTERNS EMPHASIS ON UPLIGHTING EPOXY FLOORING WITH CUMPUTER BUSES PATTERNS GRAFFITI, WALLPAPER, COMICS AND MURALS ON SOLID WALLS AS FINISHING FURNITURE DESIGN FIXED TABLES AND TABLE TOPS, BOLTED TO SPECIFICATION FALSE MARBLE TABLE TOPS PLASTIC CHAIRS ON METAL SUPPORTS QUARTS TABLE TOPS FAUX LEATHER FOR BOOTH SEATING SIGNAGE WITH LED LIGHTING MUTISYA TREVOR KIOKO B02/137214/2019
BOARD
cyberpunk
RETROFUTURISM SURFACE FINISHES LIME FLOORING WITH SEAMLESS FINISH INTO WALLING CREAM COLOURED STUCCO FINISH ON WALLS WITH SMALL GRAN EFFECT NATURAL STONE FINISH ON PLANTERS STONE PLANTERS HANGING ON RHS SUPPORTS FROM BOTTOM OF SLAB GYPSUM DROP CEILING WITH SPECIFIED FINISH HANGING ON RHS SUPPORTS WARM LIGHTING FIXTURES WITH SPECIFIED LIGHT DIFFUSERS GLASS BLOCK PARTITIONS CARPET FLOOR AT DESIGNATED AREAS TIMBER BAFFLED CEILING LOW HANGING ACCENT LIGHTS LOW HANGING WARM DOWNLIGHTS SURFACE FINISHES SNAKE LIGHTING WITH LED GLASS PARTITIONING WITH DIAGIONAL GYPSYM PATTERNS EMPHASIS ON UPLIGHTING EPOXY FLOORING WITH CUMPUTER BUSES PATTERNS GRAFFITI, WALLPAPER, COMICS AND MURALS ON SOLID WALLS AS FINISHING LIGHT BROWN CERDAR TABLES SOFAS WITH NUDE COLOURED FABRICS, WOODEN CHAIRS WITH WOVEN FURNITURE FOR FURNITURE DESIGN FIXED TABLES AND TABLE TOPS, BOLTED TO SPECIFICATION FALSE MARBLE TABLE TOPS PLASTIC CHAIRS ON METAL SUPPORTS QUARTS TABLE TOPS FAUX LEATHER FOR BOOTH SEATING SIGNAGE WITH LED LIGHTING MUTISYA TREVOR KIOKO B02/137214/2019 BAY5
PLAN SITE PLAN 2 SITE PLAN 1
SEGER RESTAURANT
MOOD BOARD FLAMIN’ GARDEN HOUSE
LOCATION
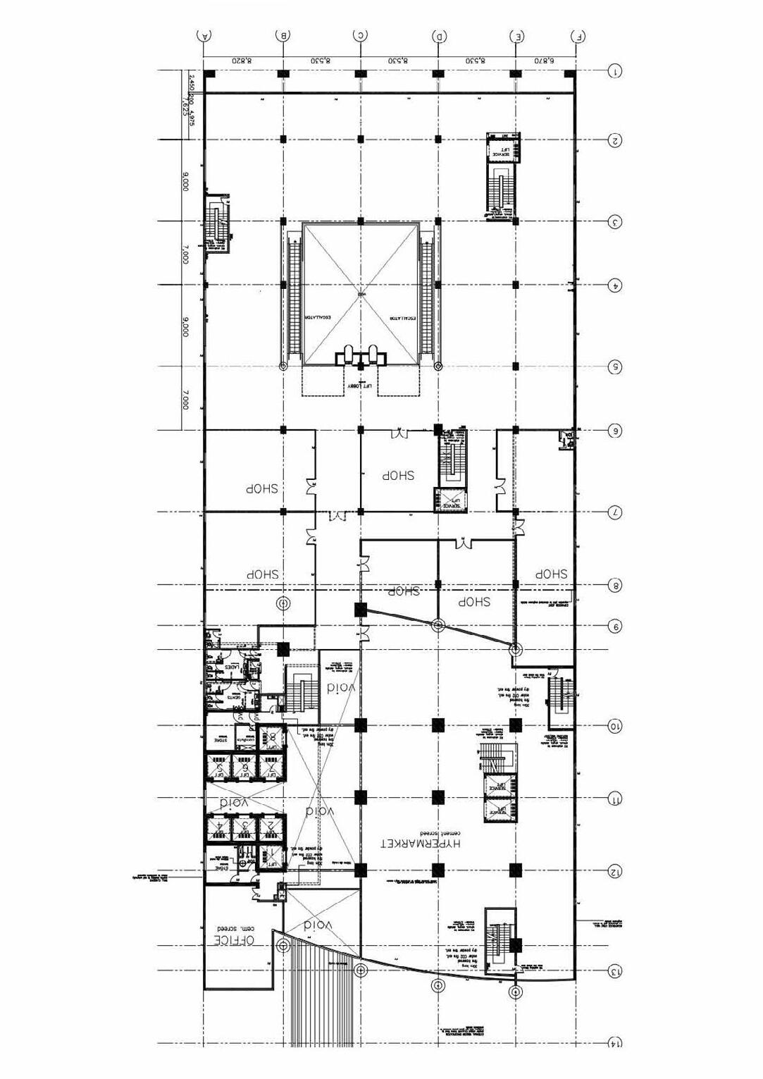
A B C D E F 2 04 04 700 600 700 600 80 4220 8100 2470 1000 2500 CLERK SERVICE LIFT MALE W/C FEMALE W/C FREEZER COLD ROOM DRY STORE GENERAL STORE CUTLERY MAIN COOKING AREA DIRTY KITCHEN VOID STARCH AND PASTRY MEAT PREPARATION 2500 UP DN servery VEG PREPARATION WEIGHING AREA STAFF BREAK OUT LIFT LOBBY 1400 4800 PEBBLES CAFE PEBBLES CAFE FLAMIN' GARDEN HOUSE 2400 2400 FINISHING KITCHEN GROUP READING AREA FINISHING KITCHEN ff: 600x600mm ceramic floor tiles ff: cream limestone tiles finish ff: non-slip ceramic tiles ff: brown terrazzo floor finish svp svp svp 8820 8530 8530 8530 6870 8820 8530 8530 8530 6870 7630 9000 7000 9000 7000 ff: 600x600mm ceramic floor tiles 13260 16000 MANAGER'S OFFICE poetry corner private reading booths 4250 SERVER ROOM 3400 3400 3400 3400 6450 1800 100 2180 130 5650 200 5050 200 3380 200 2200 200 1030 UP UP 3130 3720 41280 39630 41280 1830 2760 3940 5630 100 2800 2600 5970 2900 2630 3780 MAIN KITCHEN1 3 4 5 6 A B C D E F 2 04 3 04 2 7630 9000 7000 9000 7000 16630 7000 9000 7000 6000 6240 140 140 2850 350 2500 2000 5000 1360 250 6630 6630 VOID 2000 3000 UP DN LIFT LOBBY SEGER FIRESTONE BAR AND GRILL SERVICE LIFT FINISHING KITCHEN GAMING AREA BAND STAND FINISHING KITCHEN ff:brickinherringbonepattern ff:ethylene propylene diene methylene rubber ff: laminated floor boards with epoxy layer ff: 600x600mm ceramic floor tiles ff: non-slip ceramic tiles 8820 8530 8530 8530 6870 svp svp svp 32000 1630 41280 39630 41280 UP UP 240 2790 1000 2000 2020 5490 2570 17060 ff: powerfloated 15mm sand and cement screed on 150mm thick RC flooring 8820 8530 8530 8530 6870MEZZANNINE 1
03
PLAN MEZZANNINE 2 PLAN

40mm thick hollow Gypsum ceiling supporting lower ceiling

300mm x 1200mm

Dwnlighting

fixture bolted to the ceiling

White perforated laminate partitions to specification

Brown Terrazzo Floor FInish to Detail

sisal wooven chairs on cedar wood supports with rubber stoppers at the base

Finishing Kitchen

SECTION THROUGH PEBBLES RESTAURANT

4mm thick Acrylic sheet lettering

Reclaimed pallet wood panels finished with a dark wallnut stain finish to architect's spec

1730x

1000mm high upcycled iron sheets painted mustard yellow

SECTION THROUGH FLAMIN’ GARDEN HOUSE

Polyethylene Terephthalate Ceiling made by 3 dimensional printing, sealed and bonded to 40mm gypsum at 4600mm AFFL

40mm thick hollow gypsum ceiling with clothed with emerald fabric with pendant lighting to architect's approval suspended 3000mm AFFL

Mild Steel Framing Brackets to Detail

4mm thick Acrylic sheet lettering

Copper Pendant

Lighting

100mm thick particle board with aluminium supports with grey vinyl paint finish to architect's approval

1100mm high bottom glass fill aluminimum railing

100mm polished concrete partitioning

Mezzanine 1 5850 Mezzanine 2 11700 Roof 17550 STEAMPUNK RESTAURANT BAND STAND KASHMIR EXHIBITION STEAMPUNK RESTAURANT FGH Mezzanine 1 5850 Mezzanine 2 11700 Roof 17550 MAIN RESTAURANT STEAMPUNK RESTAURANT3 Mezzanine 2 11700
17550 2
Roof
1050 1650 3000
4600
5 6 Mezzanine 2 11700 Roof 17550
970mm Custom vinyl wall coverings to specification 200 1050 1250 1200 1000 1000 Light fixtures to schedule Steel grating planter with green fabric cover to detail 3200mm high AFFL cream limestone tiles floor finish 50 x 50 mm SHS Steel section baffle ceiling 4450mm AFFL Faux marble wall cladding 3000x 2500mm Custom vinyl wall coverings to specification Mezzanine 2 11700 200 200 200 200 200 200 200 200 200 200 200 200 1000 Custom wall coverings to specification Cedar table top with honey maple stain Corten steel chair support Woven peanut coloured seats with mattress padding iron sheet cladding painted mustard yellow bolted on the wall to detail 600 x 800mm thick pre-existing RC column walnut Crown stain and varnish on 200 x 200mm 5mm thick mvule full-body hardwood TnG panels nailed onto RC column 6mm thick 100mm dia corten steel channels with specified heights welded onto ceiling panel 5 layers of 4mm thick corrugated iron sheet supported by alluminium brackets on 25mm thick MS tension cables bolted onto RC slab soffit f: laminated floor boards with epoxy layer with TNG joints supported on floor with 15mm high 100mm thick timber skirting 150mm thick RC floor slab LED snake lighting wraped around 40mm thick hemp rope knoted onto hook that is welded onto iron sheets MAIN SECTION 1
MAIN SECTION 2
FLAMIN’ GARDEN HOUSE DETAIL FIRESTONE BAR AXONOMETRIC DETAIL

MEZZANNINE 1

AXONOMETRIC VIEW

MEZZANNINE 2

AXONOMETRIC VIEW

05

PEBBLES ENTRANCE

FIRESTONE ENTRANCE

FLAMIN’ GARDEN HOUSE

PROJECT GALLERY

LARGE GATHERING SPACE

ACOUSTIC DESIGN

THE BRIEF

The proposed project is primarily the design of a facility that houses two theatres, 200 and 400 pax, ancillary spaces, a cafeteria for 80, reception and administrative spaces, auxilliary spaces, a tower and parking with landscape design. The project should cater to design in an urban context, environmental design for the theatres, functional disposition of space and isuueas of wayfinding. You are hereby commissioned to design a suitable facility to house these activities in the city of Nairobi.

07

CONCEPTUALIZATION

The design of the facility is inspired by story telling, therefore the form resembles a book opening up to the heavens and is directly insipred by the GoDown Arts Centre therefore takes up a form that looks like a repurporsed go down/ factory.

started with the basic rectangular form

created a central atrium and decided the tower should be on the South (towards Reinsuarance Plaza)

reduction of the tower on the East; Aga Khan to reduce it to a more human friendly scale. Created an arcade to link Aga Khan to Taifa Road

created a secondary atrium in the tower to ensure cross ventillation, lighting and an overall narrow plan allround

LOACTION SITE PLAN
AGA KHAN WALK SUPREME COURT PARKING MAASAI MARKET REINSUARANCE PLAZA KENCOM HOUSE NKURUMAH LANE UCHUMI HOUSE L.R No. 209/4279 L.R No. 209/6527 L.R No. 209/6871 L.R No. 209/7405 L.R No. 209/8770 HILTON HOTEL INTERNATIONAL LIFE HOUSE CITY HALL WAY TAIFA ROAD INTERNATIONAL LIFE HOUSE PROPOSED SITE LR 209/9099/1 67400 99600 66100 97300
UP DN DN DN DN DN UP DN 11 10 16 15 14 13 12 17181920212223242526 10111213141516 28 27 26 25 24 23 22 21 20 19 18 17 REF. 26 25 24 23 22 21 20 19 18 17 16 15 14 13 12 11 10 7 312 12 11 11 10 10 9 9 8 8 7 7 6 6 5 5 4 4 3 3 2 2 1 1 M M L L K K J J H H G G F F E E D D C C B B A A 13 13 3000 6000 6000 6000 6000 6000 6000 6000 6000 6000 6000 3000 9000 9000 9000 9000 9000 9000 3000 9000 9000 9000 9000 N N 3000 66000 96000 66000 96000 3000 9000 9000 9000 9000 9000 9000 9000 9000 9000 3000 3000 6000 6000 6000 6000 6000 6000 6000 6000 6000 6000 3000 UP UP UP UP 24000 3200 2800 200 2900 2700 1600 F M CHANGING ROOMS 3000 3000 3000 3000 4000 KITCHEN YARD VAN PARKING PREP AREAS DIRTY KICTHEN CHEF'S OFFICE 2300 SERVERY BILLING 2200 2300 RESTAURANT 1 A103 STAGE RAKED SEATING MAASAI MARKET AND OPEN AIR RETAIL SPACE BUILDING ARCADE CONNECTING AGA KHAN walk AND TAIFA ROAD MAIN VEHICULAR ENTRANCE BUS PARKING BUS ENTRANCE VIP ACCESS AND BACKSTAGE SERVICING VIP LOUNGE BACKSTAGE THEATRE COURT VENTILLATION CHIMNEY VENTILLATION CHIMNEY waiting area SENTRY RAMP FOR BASEMENT ACCESS MAIN COOKING ISLAND DRESSING ROOMS for VIP storage area FIRE ASSEMBLY POINT FIRE ASSEMBLY POINT FIRE ASSEMBLY POINT AGA KHAN WALK CITY HALL WAY TAIFA ROAD PEDESTRIAN ENTRANCE PEDESTRIAN ENTRANCE ART GALLERY THEATRE LAYOUT PLAN REINSUARANCE PLAZA 1:15 RAMP UP UP 1:15 RAMP 2 a 15.12.24 d2400 5000 7600 7600 5000 2400 STORE STORE STORE STORE STORE STORE STORE STORE SECURITY AND RECEPTION DESK RECEPTION AREA TOWER LOBBY STAIRCASE AND LIFTS DRY GOODS VEG STORE COLD STORE GENERAL STORE WEIGHING AREA kitchennette up Dressing Areas M F M F ff: ribbed concrete to S.E's details steel speedbump to S.E's details steel speedbump to S.E's details 100mm high 600x 100mm wide RC curb Service yard entry gate 100mm high 600x 100mm wide RC curb 100mm high 600x 100mm wide RC curb NCC PARKING BAYS NCC PARKING BAYS NCC PARKING BAYS Retail stores 8900 UP 3600 4800 3800 8800 5800 200 8210 17800 200 2800 200 2800 200 11800 7200 200 200 12900 5000 4100 4800 5900 5900 200 8800 200 2800 8900 3 A103 07 DN DN UP 21 12 12 11 11 10 10 9 9 8 8 7 7 6 6 5 5 4 4 3 3 2 2 1 1 M M L L K K J J H H G G F F E E D D C C B B A A 13 13 N N VOID VOID STAGE RAKED SEATING CONTROL ROOM DANCE STUDIO PRIVATE ROOM WATER CLOSET MALE FEMALE SECURITY ROOM DATA CENTRE SERVER ROOM VOID RECEPTION AREA ACCOUNTANT CASHIER STAFF BREAKOUT ROOM OPEN PLAN OFFICE PERSONAL ASSISTANT ADMINISTRATIVE DIRECTOR MEETING ROOM ADMIN W/C F M 400 SEATER THEATRE foYER 200 SEATER THEATRE FOYER TOWER LIFT LOBBY LIFT LOBBY VENTILATION CHIMNEY TICKETING AND SNACK BAR WATER CLOSET MALE FEMALE stage raked seating control room RECEPTION VOID storage MUSIC REHEARSALS DRAMA M BACK STAGE AREA THEATRE LAYOUT PLAN CONTROL ROOM DETAIL VENTILATION CHIMNEY VOID EMERGENY EXIT 25mm thick brick on 6mm sand and cement screed on waterproofing and 150mm RC canopy high densiy sound absorbent fabric on 50mm mattress with FR=2hrs bolted onto 150mm thick masonry walling UP UP 12 12 11 11 10 10 9 9 8 8 7 7 6 6 5 5 4 4 3 3 2 2 1 1 M M L L K K J J H H G G F F E E D D C C B B A A 13 13 N N UP BASEMENT LANDING DRIVE WAY DRIVE WAY DRIVE WAY DRIVE WAY DRIVE WAY DRIVE WAY DRIVE WAY DRIVE WAY DRIVE WAY DRIVE WAY DRIVE WAY DRIVE WAY DRIVE WAY GENERATOR AND TRANSFORMER SERVICING GENERATOR ROOM TRANSFORMER ROOM SWITCH ROOM DRIVE WAY DRIVE WAY LIFT LOBBY TOWER LIFT LOBBY sump tank 1 2 3 4 5 6 7 8 9 10 11 12 13 14 15 16 17 18 19 20 21 22 23 24 25 26 27 28 29 30 31 32 33 34 35 36 37 38 39 40 41 42 43 44 45 46 47 48 49 50 51 52 53 54 55 56 57 58 59 60 61 62 63 64 65 66 67 68 69 70 71 72 73 74 75 76 77 78 79 80 81 82 83 84 85 86 87 88 89 90 91 92 93 94 96 97 98 99 100 101 102 103 104 105 106 107 108 109 110 111 112 113 114 115 116 117 118 119 120 121 122 123 124 125 126 127 128 129 130 BICYCLE PARKING 20 BAYS BASEMENT RAMP !:12 33 up fall fall fall fall fall fall fall fall fall fall fall fall fall fall fall fall fall fall fall fall fall fall fall fall fall fall fall 3 coats of yellow road paint applied in pattern shown to approval basement drainage slope of 1:80 falling to 300mm 450mm deep drainage channel to M:E's detail ff: ribbed concrete to S.E's details
FIRST
GROUND FLOOR PLAN 09
BASEMENT PLAN
FLOOR PLAN
100mm x 75mm aluminium channels angled at 30 degrees painted brown with 50mm RHS MS channels bolted on 200mm masonry walling 1000mm collonade RC columns witth smooth screed finish and 2 coats of vinyl gloss red Crown paint applied to architect's approval 200mm masonry walling with 25mm red burnt brick finish to specified patterns 150MM RC canopy with 25mm brick finish to architect's approval 100mm x 75mm Aluminium channels panted maroon angled 30 degrees with 50mm RHS aluminium channels bolted onto 200mm masonry wall to detail 1000mm collonade RC columns witth smooth screed finish and 2 coats of vinyl gloss red Crown paint applied to architect's approval 100mm x 75mm Aluminium channels panted maroon angled 30 degrees with 50mm RHS aluminium channels bolted onto 200mm masonry wall to detail 150MM RC canopy with 25mm brick finish to architect's approval 25mm thick brick cladding on 450mm thick RC column to S.E's and arch. specificaion 25mm thick brick cladding on masonry walling 25mm thick brick on 6mm sand and cement screed on waterproofing and 150mm RC canopy 6mm thick glazing on 1500mm x 1500mm red and brown spray paint finish sunshading detail NORTH ELEVATION EAST ELEVATION
WEST ELEVATION

2400mm

50x50mm rectangular hollow section sound reflector support frame suspended with steel tensile cables

THEATRE GALLERY WITH 450MM RISERS AND 1200MM TREAD RAKING

galvanized roof covering iron sheets, bolted on mild steel truss with 12mm bolts, nuts and washers WITH 12.5 DEGREE SLOPE storm water gutter to detail

200mm thick masontry walling with 3 coats of vinyl paint applied to architect's approval

BUILDING TOWER

galvanized roof covering iron sheets, bolted on mild steel truss with 12mm bolts, nuts and washers with 12.5 degree slope

600mm deep trusses supported end to end by 700 x 450mm deep ring beam

backwall to detail

200mm thick masonry walling with course finish to architect's approval

150mm RC canopy with 12mm brick finish to architect's approval

staircase and lift lobby

200mm thick RC lift shaft with 100mm thick masonry keyed and painted with 3 coats of Crown vinyl matte paint to approval

foundation depth to be determined on site to S.E's specs

GYPSUM BOARDS REFLECTIVE CEILING PANELS AT 9 DEGREE SLOPE

PERFORATED MEDIUM DENSITY FIBRE BOARD ON A LAYER OF HESIAN CLOTH, ON MINERAL WOOL SOUND INSULATION, ON 50X50MM ALLUMINIUM VERTICAL FRAMING SUPPORTED ON 200MM THICK MASONRY WALLING

200mm thick masonry walling with course finish to architect's approval

Rain water gutter to detail

ventillation louvres to expell air from theatre 150MM RC canopy with 50mm brick finish to architect's approval 600mm deep trusses supported end to end by 700 x 450mm deep ring beam

50X50MM RECTANGULAR HOLLOW SECTION SOUND REFLECTOR SUPPORT FRAME SUSPENDED WITH STEEL TENSILE CABLES

THEATRE FOYER

THEATRE FOYER BUILDING ARCADE

water closet

back stage

100X50mm thick mvule timber panels bolted on 150x75mm vertical mild steel rectangular hollow sections supported on 200mm thick vertical masonry walling

SOUND ABSORBENT FLOOR CARPET FINISH ON TWO COATS OF APPROPRIATE ADHESIVE ON 300MM THICK REINFORCED CONCRETE FLOOR SLAB TO STRUCTURAL ENGINEER'S DETAILS

450 mm wide x 400mm deep storm water drainage channel with steel grating to architect's detail

THEATRE HALL WITH RAKING AT 300MM RISER AND 1200MM TREAD

Ventillation louvres for genrator and transformer rooms

foundation depth to be determined on site to S.E's details

Level 0 0 GROUND FLOOR 1200 12 11 10 9 8 7 6 5 4 3 2 1 13 SECOND FLOOR 9000 FIRST FLOOR 5100 BASEMENT -3300 THIRD FLOOR 12900 catwalk stage seating hall GALLERY SEATING GENERATOR TRANSFORMER SWITCH ROOM BASEMENT LEVEL 4TH FLOOR 16100 5TH FLOOR 19300 6TH FLOOR 22500 ventillation chimney RESTAURANT SEATING KITCHEN KITCHEN STORES THEATRE WATER CLOSETS ATRIUM administration offices tower offices TRIPPLE VOLUME SPACE basement ramp entry 1:15 slope 4500 3900 3900 3900 3200 3200 3300 1200 3200 22600
ATRIUM ATRIUM ATRIUM ATRIUM ATRIUM
Level 0 0 GROUND FLOOR 1200 M L K J H G F E D C B A SECOND FLOOR 9000 FIRST FLOOR 5100 BASEMENT -3300 THIRD FLOOR 12900 N 4TH FLOOR 16100 5TH FLOOR 19300 6TH FLOOR 22500 7TH FLOOR 25700 3300 1200 3900 3900 3900 3200 3200 22600 3300 3200 GALLERY SITTING MAIN THEATRE HALL CONTROL ROOM THEATRE COURT OPEN TO AIR BASEMENT THEATRE LIFT LOBBY AND STAIRCASES
thick masonry walling with 3 coats
theatre
RESTAURANT OPEN PLAN OFFICES RECEPTIONSECURITY OFFICE THEATRE FOYER tower
R=150 T=300
x 1800mm glazed curtain panels with aluminium framing
BUILDING TOWER 3200 3200 3200 3200
CATWALK 1100 2800 Level 1200 BASEMENT -3300 4500 3000 3300 1200 400 450 mm wide 400mm deep storm water drainage channel with steel grating to architect's detail 450 Retained Earth 300 1000g high guage polythene damp proof membrane applied before laying of ribbed concrete basement slab 200mm dia perforated drain pipe hardcore backfill 50mm thick murram blinding 50 End footing of foundation to S.E's details 50mm alsphat laid between masonry and reinforced concrete outer wall 50 3 coast of white Crown vinyl matte craown paint applied to 12mm thick cement screed plaster on 150mm thick masonry walling 50mm thick mass concrete 150 x 300mm thick concrete paving blocks 0n 75mm blinding on 300mm compacted hardcore 500x 500mm wide vent with 50 x 50mm aluminium frame with 4mm thick 50mm wide channels 50 50 stone coping at 15 degree slope 450 700 1200 basement slab to slope towards sump slope=1:80
LONGITUDINAL SECTION 11
TRANSVERSE SECTION 1 BASEMENT AND WALKWAY DETAIL

TRANSVERSE SECTION 2 THEATRE VETILATION

20mm dia MS tension cable hosted on main rafters to support acoustic ceiling panels and the catwalk

125mm dia plate bolted on to rafter to secure the MS cable onto the rafter

for galvanized iron sheets

100mm dia steel rivet

50

galvanized roof covering iron sheets, bolted on mild steel truss with 12mm bolts, nuts and washers with 12.5 degree slope

100

Damp proof memrane waterproofing

CANOPY DETAIL

100

100

440 10

430 450

200mm thick parapet wall to S.E's details

ROOF GUTTER DETAIL

R.C canopy

12mm dia flat head screw

10mm thick stainless steel counter flushing screwed to beam and concrete parapet wall 210

700

140 x 210mm 6mm steel custom channels to support trusses on the ring beams to architect x S.E's specs

200mm thick masonry walling

Level 0 0 GROUND FLOOR 1200 M L K J H G F E D C B SECOND FLOOR 9000 FIRST FLOOR 5100 BASEMENT -3300 THIRD FLOOR 12900 N 400 THEATRE SEATING MAIN THEATRE 200 THEATRE SEATING THRUST TEATRE CATWALK STAGE BASEMENT PARKING AGA KHAN WALK RETAIL STORE RETAIL STORE 25mm thick 150 x 300mm thick mvule timber panels with TnG joints on 5mm andhesive on 150mm thick R.C floor slab 25mm thick 150 x 300mm thick mvule timber panels with TnG joints on 5mm andhesive on 100X50mm thick mvule timber panels with 125mm spacing end to end galvanized roof covering iron sheets, bolted on mild steel truss with 12mm bolts, nuts and washers WITH 12.5 degree slope 250 x 450mm thick RC beam to support stage walling to S.E's details Gypsum board acoustic ceilings to detail 600mm deep planter box on 200mm thick RC floor to detail 150mm thick ribbed concrete flooring with a fall of 1:80 to S.E/M.E'S detail Insulated theatre walling to detail 3900 3900 3900 1200 3300 GROUND FLOOR 1200 M FIRST FLOOR 5100 3900 450 450 25mm thick terrazo skirting and flashing on 50mm high upstand beam 450mm high downstand beam to S.E'S details 400 100 150 4TH FLOOR 16100 100 100 100 100 600 Main rafter of roof truss system 100mm wide 6mm thick tsection steel channels botled and welded to brace the two trusses to architect's x S.E's specification 600 MS roof battens at 600mm spacing end to end Flashing using damp proof membrane(rubber polyurethane) Base MS rafter galvanized roof covering iron sheets 300x 500mm wide vent with 50 x 50mm aluminium frame with 4mm thick 50mm wide channels 50 4 50 300 50 150 15mm thick solid sheathing
20
125
440 x 430mm RC rain water gutter to C.E's specs 140
DETAIL

300mm deep R beam to S.E's details

200mm thick masonry walling timber adhesive

STAGE FLOORING

Below theatre hall Theatre hall

Louvre Blade Baffle

150mm x 300mm reinforced concrete with step light to detai

Seat surface panelled with fine textured carpentry camphor wood medium grained and finished with polyurethane varnish

6mm Rubber polyuerthane composite vivoplastic floor finish to endure high traffic with density rating 100kg/m2 with approved friction resistance

Mvule Timber slats with Perforated medium density fibre board on a layer of hesian cloth, on mineral wool sound insulation, on 100x50mm alluminium vertical framing supported on 200mm thick masonry walling

Top side is unperforated in order to shade water

Lower side perforated exposing the fibre glass fill inside the blade

Perforated steel plate allowing clean air to penetrate the theatre hall

Louvre blades placed close to each other to increase static pressure losses

airflow

SECTION VIEW

mvule timber slats

Mineral wool insulation

Alluminium angle brackets screwed on 200mm thick wall

medium density fiber board sound absorbers with 125mm cavities

hesian cloth

200MMmasonry walling keyed to architect's sepcification

WALL SOUND INSULATION

FRONT ELEVATION VIEW

ROOM

150x75mm vertical and horizontalmild steel rectangular hollow sections supported on 200mm thick vertical masonry walling

100X50mm thick mvule timber panels with 125mm spacing end to end

Acoustic panels to detail

25mm thick 150 x 300mm thick mvule timber panels with TnG joints on 5mm andhesive on 150mm thick R.C floor slab

1100mm high glass bottom fill railing

Timber hand rail

Timber capping screwed into balcony upstand beam

450 Profiled RC upstand beam

Heavy duty leather lining

Black polyurethane floor finish

Mattress fill FR=4.5 hours

Line of beam below balcony seating

GALLERY SEATING PADDING

4 FIRST FLOOR 5100
150 0 150 600 1200 450 750 Ventillation louvres to detail
300 150
25 5
100 125 550
1200 1250 100 100 100 100 100 100 100 100 100 100 25 25 25 25 25 25 25 25 25 1250 1200
EXTERIOR
THEATRE HALL
5
4 C 1200 1200 750 450 750 450 1200 600 600 200mm masonry walling with 50MM brick face finish to architect's specification Column with fabric padding and 50mm mattress of FR= 4.5hrs 2100 2250 1800 Peripheral 150mm x450mm reinforcedconcrete with step light to detail Sound insulating side wall to detail 1200 350 600 600 560 600 Nominal aisle with heavy polyuerthane underlay ff 650 550 1200 6 SECOND FLOOR 9000 FIRST FLOOR 5100 Sound absorbent floor carpet finish on two coats of appropriate adhesive on 300mm thick reinforced concrete floor slab to structural engineer's details 8MM Alluminium equipment control room window to schedule Sound equipment control set to manufacturers details 600x600mm Sound absorbent acoustic ceiling panels horizontal alluminium framing suspended with mild
tensile cables and L channels bolted onto the wall concealted ductiong for mechanical ventillation 600 x 1950mm standard M.S server rack
DETAIL
steel
THEATRE RAKING PLAN
THEATRE RAKING SECTION DETAIL
DETAILS
DETAIL
DETAIL CONTROL
DETAIL
13
SEAT VETILATION DETAIL

PROJECT GALLERY THEATRE PERSPECTIVE

EXPLODED
AXONOMETRIC
15
ARCHITECTURAL CONSERVATION OLD TOWN MOMBASA MIXED USE DEV

THE BRIEF

The proposal is to design a sustainable Swahili Crafts and Tourist Centre. The design proposal to besuccessful, your design must demonstrate a deep understanding of traditional Swahili history, culture, site planning, and appropriate design scale to the local setting. Further, sensitivity in planning and revitalising the street frontage leading into Old Town and Fort Jesus as well as movement patterns in the adjacent Streets, is key. Your understanding of climatic responsive design, designing private and public spaces, pedestrianised movement patterns, structural framework and how it relates to the spaces, vertical circulation

CONCEPTUALIZATION

The design is centered towards preserving the Mombasa Old Town Swahili constants mainly, projected, highly decorative balconies and design elements, narrow plan buildings, central courtyards, traditional building materials- Coral masonry, order of privacy of functions and striaght staircases

functional disposition of spaces with private spaces on the North side and higher floors of the development with the public areas close to Nkurumah Road

NKURUMAH ROAD MAZRUI CEMETERY SITE MAKADARAROAD KCB KENYA LIMITED STANDARD CHARTERED BANK BURHANI GARDENS LR NO. 172/173 34200 72800 69000 29000 175 171 170 176 169 178 177 FORT JESUS COURT CHAMBERS LEGAL MANSION BANK OF INDIA MOMBASA COURT OF APPEAL COUNTY GOVERNMENT OFFICES G F E D C B A 1 2 4 5 6 7 8 9 10 11 12 A' 1' NKURUMAH ROAD MAZRUI CEMETERY COURT CHAMBERS LEGAL MANSION 173/172 175 171 178 177 168 34200 72800 69000 29000 SERVICE YARD BASEMENT RAMP ENTRANCE PEDESTRIAN ENTRY BEACON 3 BEACON 4 BEACON 1 BEACON 2 Building Outline Main roofing made of clay tiles with a pitch of 22.5 degrees COURT YARD COURT YARD PEDESTRIAN FOOTPATH PEDESTRIAN FOOTPATH ff:concretepavers ff:concretepavers ff:concretepavers SERVICE YARD entrance Storm water drainage channel Garbage disposal Garbage disposal Overhead street light Electrical Transformer Cable Cabinet MH MH MH MH Storm water drain pit MH MH MH MH RWDP 20 RWDP 21 RWDP 17 RWDP 18 RWDP 16 RWDP 15 RWDP 14 RWDP 13 RWDP 12 RWDP 11 RWDP 10 RWDP 9 RWDP 8 RWDP RWDP RWDP 5 RWDP RWDP RWDP RWDP RWDP 31 RWDP 30 RWDP 29 RWDP 28 RWDP 26 RWDP 22 RWDP 23 RWDP 24 RWDP 25 RWDP 34 RWDP 35 RWDP 36 RWDP 33 IC IC IC IC IC IC IC IC IC IC IC IC IC IC IC IC IC IC IC IC IC IC IC IC Connection to MCC Sewer 170 171 175 176 DN UP UP UP UP 10 18 15 28 27 24 21 18 17 14 10 32 29 22 19 32 26 25 22 18 12 11 31 26 25 20 19 18 12 11 DN DN G G F F E E D D C C B B A A 1 1 2 2 3 3 4 4 5 5 6 6 7 7 8 8 9 10 11 11 12 12 A' A' 1' 1' SN-006 4 SN-005 SN-006 6000 6000 6000 6000 5000 6000 6000 6000 6000 6000 6000 5600 5000 6000 4000 6000 6000 3000 6000 6000 6000 6000 5000 6000 6000 6000 6000 6000 6000 5000 6000 4000 6000 6000 3000 MPESA AGENTS FOREX BUREAU BACK OFFICE MAIN KITCHEN CHANGING ROOMS COLD CUTLERY GENERAL VEG STORE DAKA MAIN RECEPTION CLOTHES AND JEWELERY ARABIC ENGRAVING MEN'S W/C SCULPTURE AND CARVINGS TRAINING TRAINING WOOD DISPLAY WOOD WORKSHOP STALL 1 STALL 2 STALL 3 ART AND PAINTINGS DISPLAY STORE OFFICE SERVICE YARD BASEMENT RAMP SERVICE YARD ENTRY 1205 1205 NKURUMAH ROAD MAZRUI CEMETERY COURT
0 12 COURTYARD COURTYARD 1200 1200 EMERGENCY EXIT 65000 30000 65000 30000 veg prep meat prep pastry prep servery used to take food to restaurant washing area pot wash from basement FIRE ASSEMBLY POINT FIRE ASSEMBLY POINT ff: 6mm Thick polished Terrazo laid on lime motar screed 50% chops with 25x5 mm dividing srips set off to architect's approval p.v p.v p.v p.v p.v p.v p.v p.v p.v p.v p.v p.v p.v p.v p.v p.v p.v p.v p.v p.v p.v p.v p.v p.v p.v p.v p.v p.v p.v p.v p.v p.v p.v p.v p.v p.v p.v p.v p.v p.v STUDIO 600 2500 200 2900 200 5800 200 2400 200 3200 200 5600 600 4400 600 1000 200 1000 200 1300 200 1500 600 23400 600 5700 600 4400 1f 2a 3b 4f 1a 2a 3e 4c 1a 2a 3e 4c 5700 3700 21400 600 1025 1800 2575 600600 1010 1790 915 1085 600 11400 16700 12300 7000 2400 RC Basement staircase tread @300mm and riser @150mm to S.E details with mvule timber balustrades to detail 1600 34200 72800 29000 STAIRCASE-01 STAIRCASE-02 STAIRCASE-03 STAIRCASE-04 STARICASE-05 ST-06 STAIRCASE-07 UP UP UP UP UP UP T=300 R=150 T=300 R=150 T=300 R=150 T=300 R=150 T=300 R=150 fall fall fall fall fall fall fall fall fall fall T=300 R=150 Ramp 1 150mm thick R.C Slope 1:12 ff: ribbed concrete M.S speed bump to C.E's specification 300 enamel paint finish on 300mm wide stainless steel grating on 320 x 150mm deep storm water drain BEACON 3 BEACON 4 BEACON 1 BEACON 2 150mm thick coursed rubble and lime mortar stairs slab with mpingo timber finish 150mm thick coursed rubble and lime mortar stairs slab with mpingo timber finish 150mm thick coursed rubble and lime mortar stairs slab with mpingo timber finish 150mm thick coursed rubble and lime mortar stairs slab with mpingo timber finish 150mm thick coursed rubble and lime mortar stairs slab with mpingo timber finish 450mm dia MS fulbora drain to transfer storm water to basement level GT RWDP RWDP RWDP RWDP RWDP RWDP RWDP RWDP RWDP RWDP RWDP ELECTRICAL SVP SVP SVP SVP GT GT
SITE PLAN
PLAN 17
CHAMBERS
LOCATION PLAN
GROUND FLOOR

LONGITUDINAL SECTION 1

UP UP G G F E E D D C C B B A A 1 1 2 2 3 4 5 5 6 6 7 8 8 9 10 10 11 11 12 12 A' A' 1' SN-006 6000 6000 6000 5000 6000 4000 6000 6000 3000 6000 6000 3100 6000 6000 6000 6000 6000 6000 6000 6000 6000 6000 DRIVEWAY DRIVEWAY TUKTUK PARKING CAR PARKING TRANSFORMER ROOM SWITCH ROOM GENERATOR ROOM DRIVEWAY DRIVEWAY TUKTUK PARKING 1 2 3 4 5 6 7 8 9 10 11 12 13 14 15 16 17 18 19 20 21 22 23 24 25 26 27 28 29 30 31 32 33 34 35 -1800 30000 65000 65000 Fall Fall Fall Fall Fall Fall Fall Fall Fall Fall Fall 600 5400 600 600 5400 5400 600 5400 600 600 5400 2500 4400 600 600 5400 600 2084 300 5700 300 300 5700 300 5400 600 600 5400 5400 600 5400 5400 600 2550 2700 600 5400 600 5400 600 2000 2000 2000 2000 1000 1000 1000 1000 1000 2000 2000 3000 600 5400 600 600 5400 600 600 Basement ramp finished in Ribbed concrete to S.E's details RC Basement staircase tread @300mm and riser @150mm to S.E details with mvule timber 600mm wide shelf for electric gadgets in switch room ff; Ribbed concrete 6000 5500 5500 2700 5500 5500 2700 2700 6000 6000 4000 600 600 to sump pit Fall Fall Fall Fall Fall Fall 5 6 7 8 10 SUMP PUMP ROOM WATER TANK WITH ACCESS FROM GROUND FLOOR LEVEL NKURUMAH ROAD 1 3 10 ST-06 UP enamel paint finish on 300mm wide stainless steel grating on 320 450mm deep storm water drain 300 300 D02 D09 D09 MH IC 6mm thick MS 900mm high 50mm wide angle bars screwed onto RC Columns DN DN UP G G F F E E D D C C B B A A 1 1 2 3 3 4 5 5 6 6 7 8 8 9 9 10 10 11 11 12 12 A' A' 1' 1' SN-028 RESTAURANT MINI-SUITES HOTEL RECEPTION MANAGER FULL-BODY HENNA APPLICATION WOMEN'S W/C RESTAURANT EMERGENCY EXIT TOUR HOTEL BOAT AIRLINE TRAVEL LOUNGE/ CONCOURSE BANK ATM TELLERS CUSTOMER SERVICE MEETING ROOM VOID 1 VOID 3 VOID 2 6005 ACCOUNTS OFFICES MANAGER'S OFFICES 30000 4000 2150 SERVERY STAIRCASE-08 STAIRCASE-09 UP UP T=300 T=300 6000 150mm thick coursed rubble and lime mortar stairs slab with mpingo timber finish mortar stairs slab with mpingo timber finish 150mm thick coursed rubble and lime mortar stairs slab with mpingo timber finish 150mm thick coursed rubble and lime mortar stairs slab with mpingo timber 50mm high 150mm wide R.C upstand beam SVP SVP T=300 UP DN G G F F E E D D C C B B A A 1 2 2 3 3 4 5 5 6 6 8 9 9 10 10 11 11 12 12 A' A' 1' 1' SN-006 SN-005 SN-008 6000 6000 DOUBLE ROOM DOUBLE ROOM DOUBLE ROOM DOUBLE ROOM DOUBLE ROOM EXECUTIVE SUITE EXECUTIVE SUITE PUBLIC HOTEL LOUNGE EMERGENCY EXIT VOID 4 VOID 2/3 VOID 1 10205 10205 Fall 4000 STAIRCASE-12 UP T=300 T=300 R=150 10200 150mm thick coursed rubble and lime mortar stairs slab with mpingo timber 150mm thick coursed rubble mortar stairs slab with mpingo timber finish mortar stairs slab with mpingo timber finish fall fall fall fall fall RWDP RWDP RWDP RWDP RWDP RWDP RWDP RWDP RWDP RWDP SVP SVP SVP SVP G G F F E E D D C C B B A A 1 1 2 2 3 3 4 4 5 5 6 7 7 8 8 9 10 10 11 11 12 12 A' A' 1' 1' FALL FALL FALL FALL FALL FALL FALL FALL FALL FALL FALL FALL FALL FALL FALL FALL FALL FALL FALL FALL FALL 5000 6000 4000 6000 6000 3000 30000 6000 6000 5000 6000 6000 6000 6000 6000 6000 65000 6000 6000 6000 6000 6000 6000 6000 6000 4000 6000 6000 3000 25000 19607 11314 15895 16737 300mm wide steel galvanised gutter 150 dia. rainwater downpipe with 300x300 hopper clamped to wall and spray painted to approval OPEN TO SKY OPEN TO SKY OPEN TO SKY 22.5 degree pitch 22.5 degree pitch 22.5 degree pitch 22.5 degree pitch 22.5 degree pitch 22.5 degree pitch 22.5 degree pitch 22.5 degree pitch 22.5 degree pitch 22.5 degree pitch 22.5 degree pitch 22.5 degree pitch 22.5 degree pitch 22.5 degree pitch 22.5 degree pitch 22.5 degree pitch 22.5 degree pitch 22.5 degree pitch 22.5 degree pitch 22.5 degree pitch 300 300 300 300 300 BEACON BEACON 4 BEACON BEACON 2 RWDP RWDP RWDP 14 RWDP 13 RWDP RWDP RWDP RWDP RWDP RWDP 30 RWDP 27 RWDP 23 RWDP 33 -1800 2nd Floor 10200 3rd floor 14400 Roof 18000 1 2 3 4 5 6 7 8 11 12 COURTYARD COURTYARD EXECUTIVE SUITE TRAVEL LOUNGE ENTRY RECEPTION DAKA ARABIC WRITING AND ENGRAVING FOOD COURT DOUBLE ROOMS DOUBLE ROOMS NKURUMAH ROAD HOTEL MANAGER HOTEL REEPTION Coral aggregate entrance steps finished with screed and painted to arch's approval T=300 R=150 15mm thick clay roofing tiles at 22.5 degree pitch on 50x50mm imber purlins at 600mm c/c on underlay on 75 x 50 timber rafters on100x 150mm truss tile 100x150 mm wall plate at 1200mm c/c bolted onto 600mm ring beam 600mm square RC column 600mm x 450mm deep RC beams BASEMENT 6000 6000 6000 6000 5000 6000 6000 6000 6000 6000 6000 3600 4200 Composite water-proof basement walling composed of 200mm external wall Expansion joint to S.E's details 1500mm thick EDPM water proofed floor slab to structural Engineer's details on 500g DPM on 50mm thick murram blinding on 150mm (min) thick hardcore p.v p.v p.v p.v p.v p.v p.v p.v p.v p.v p.v p.v p.v p.v p.v p.v p.v p.v p.v p.v p.v p.v p.v R=150 T=300 R=150 T=300 R=150 T=300 450 450 FIRST FLOOR PLAN BASEMENT FLOOR PLAN
FLOOR
SECOND
PLAN
ROOF PLAN

25mm highly decorative mpingo fascia board treated and painted with three coats of clear varnish

150 x 150mm thick treated mvule timber balcony posts with timber floor boards fixed onto them

25mm thick mvule timber floor boards nailed onto 150mm SHS timber beams on 150x

1050mm x 75mm support balcony brackets treated with linseed oil and bolted onto the wall to architect's

x 450mm deep RC beams

15mm thick clay roofing tiles at 22.5 degree pitch on 50x50mm imber purlins at 600mm c/c on underlay on 75 x 50 timber rafters on100x 150mm truss tile 100x150 mm wall plate at 1200mm c/c bolted onto 600mm ring beam

AND MPESA SERVICES

600mm thick coral walling with 6mm interior and exterior offwhite limewash

LONGITUDINAL SECTION 2 TRANSVERSE SECTION

Basement Level -1800 2nd Floor 10200 3rd floor 14400 Roof 18000 1 2 3 7 8 9 10 11 12 DOUBLE ROOM DOUBLE ROOM RESTAURANT
EMERGENCY
TRAVEL LOUNGE EXECUTIVE
HOTEL RECEPTION FOOD COURT BASEMENT LEVEL FOREX
SPACE WITH SCREENS TO PROMOTE WIND MOVEMENT KITCHEN
EXIT STAIRCASE
SUITE
200mm banaa to detail
Raft Foundation to S.E' detail 600mm
detail
600mm square RC column 200x
finish
Wall Section R=150 T=300 R=150 T=300 Basement detail Basement detail Street Level 0 1200 Basement Level -1800 3rd floor 14400 18000 G F E D C B A WOOD WORKSHOP AND DISPLAY RESTAURANT PUBLIC HOTEL LOUNGE WOMEN'S W/C SCULPTURE AND CARVING LAUNDRY AREA MAIN STAIRCASE 15mm thick clay roofing tiles at 22.5 degree pitch on 50x50mm timber purlins at 600mm c/c on underlay on 75 x 50 timber rafters on100x 150mm truss tile 100x150 mm wall plate at 1200mm c/c bolted onto 600mm ring beam 150 x 150mm thick treated mvule timber balcony posts with timber floor boards fixed 600mm square RC column 600mm x 450mm deep RC beams 2000mm x 1000mm louvered mvule timber window with dark brown varnish finish 100mm deep RC window lintel 1500mm x 3000mm mashrabiya screen made of 25mm treated timber modules with intricate Swahili pattern 650mm square steel ventillation louvers for basement roof detail A 33(27) 002 R=150 T=300 R=150 T=300
NORTH ELEVATION 19
NKURUMAH ROAD BASEMENT ENTRANCE SERVICE YARD ENTRANCE MAIN ENTRANCE Elevation from Nkurumah Road 2nd Floor 10200 3rd floor 14400 4200 2400mm x 1200mm mvule louvered timber windows to schedule 150mm x 150mm 1100mm long mvule timber beam to detail 1000mm high Mvule timber handrail on mvule timber balustrades fixed 150mm c/c to architect's Detail L 33(34) 019 150 1915 2800mm high floral carving on timber balcony to craftsman detail 2800 150 415 520 WEST ELEVATION SOUTH ELEVATION BALCONY MODULE DETAIL

200x 25mm highly decorative mpingo fascia board treated and painted with three coats of clear varnish

BALCONY SECTION DETAIL

50mm thick floral Swahili arches on balcony to

WALL SECTION

Mvule

25mm thick mvule timber floor boards nailed onto 150mm SHS timber beams on 150x 200mm banaa to detail

150 x 150mm thick treated mvule timber balcony posts with timber floor boards fixed onto them 1050mm x 75mm support balcony brackets treated with linseed oil and bolted onto the wall to architect's detail 600mm x 450mm deep

50mm thick floral Swahili arches on balcony to craftsman detail fixed to timber supports by tongue and groove joint 150x150mm thick treated mvule balcony structural posts fixed to timber floor boards by tongue and groove joints

BRACKET DETAIL

2nd Floor 10200 12
RC
1000mm
150mm c/c to architect's Detail 1050 1000 1010 150 150 150 150 150 150 150 125
beams
high
timber handrail on mvule timber balustrades fixed
Bracket
12
detail
150mm thick RC foor slab
DOUBLE ROOM 1050 1100 600 Cornice detail 2nd Floor 10200 25mm thick mvule timber floor boards nailed onto 150mm SHS timber beams on 150x 200mm banaa to detail 1000mm high Mvule timber handrail on mvule timber balustrades fixed 150mm c/c to architect's Detail 1000 80 70 80 70 80 70 80 70 50 50 640 55 45 100 62 140 10 150 150 75 75 1050 1010 745 815 ø 220 ø 240 ø151 ø 131 ø121 ø 101 ø 89 ø 109 ø88 ø130 ø 150 ø80 ø 100 ø 47 ø 67 8 10 8 20 10 20 58 59 16 16 99 5 7 35 35 35 12 5 79 7 9 5 9 20 41 69 101 26 10 216 69 40 88 88 Street Level 0 Ground Floor 1200 Basement Level -1800 1st Floor 6000 2nd Floor 10200 3rd floor 14400 Roof 18000 12 3600 foundation footing to S.E' detail 200x 25mm highly decorative mpingo fascia board treated and painted with three coats of clear varnish 15mm thick clay roofing tiles at 22.5 degree pitch on 50x50mm timber purlins at 600mm c/c on underlay on 75 x 50 timber rafters on100x 150mm truss tile 100x150 mm wall plate at 1200mm c/c bolted onto 600mm ring beam hard earth surface with sufficient bearing capacity determined on site
BRACKET JOINERY DETAIL
21

COURTYARD 2 PERSPECTIVE

NORTH WEST PERSPECTIVE

PROJECT GALLERY

LAKE ELEMENTAITA RESIDENTIAL UNIT

23

THE BRIEF

Design a maissonette on a 100 x 100m plot with the following spaces

Large spacious double volume lounge

Open plan Kitchen

1 Main ensuite bedroom

2 ensuite normal bedrooms

1 guest room

Detached Servant’s Quarters

Extra services required

Consider environmental constraints and opportunites

Emphasis on the views towards the Lake

S I D E N T I A L U N I p r e s e n tat i o n d raw i n g s
R E

S I D E N T I A L U N I T

A K L M N TA I TA E
25 GROUND FLOOR PLAN
27
VIEW
PROJECT GALLERY WEST
FAMILY ROOM VIEW

ENTRY VIEW

SOUTH EAST VIEW

29

LIVING AREA VIEW

Turn static files into dynamic content formats.

Create a flipbook
Issuu converts static files into: digital portfolios, online yearbooks, online catalogs, digital photo albums and more. Sign up and create your flipbook.
Architecture Portfolio 2023 by mutisyat - Issuu