Portfolio - Mutiah Khairany

Page 1

contents contents Curriculum Vitae 1 Rumah Tropis 2 Architecture Competition Project Kids Bedroom 9 Interior Competition Project Pitados Coffee Shop 14 Interior Design Project Arlington Office 18 Interior Design Project F&B Booth 23 Architecture Project Cluster Green Semesta 26 Architecture Project Will’s Bakery & Eatery 31 Architecture Project GNTU Commercial Area 35 Architecture Project Early Bird 39 Interior Design Project JPM Office - Lobby 42 Interior Design Project Cardiac Pharma 45 Interior Design Project
1

Rumah Tropis

Merancang hunian yang cocok terhadap kondisi iklim tropis yang dapat memberikan kenyamanan maksimal bagi penghuni rumah dengan memperhatikan penataan ruang, sirkulasi udara, dan pencahayaan alami yang baik agar tercipta rumah tropis yang sejuk dan nyaman bagi penghuni meskipun berada pada lahan yang cukup terbatas. Namun juga tetap memperhatikan estetika pada bangunan rumah.

Architecture Competition Project (2018)
2

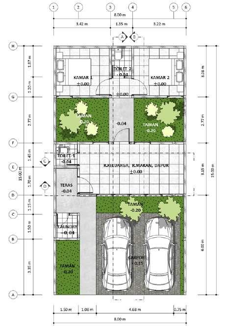
DENAH

legenda:

1. carport 2. teras

3. taman dan kolam

4. ruang keluarga

5. ruang makan & dapur

6. kamar mandi

7. ruang cuci & jemur

8. halaman belakang

legenda:

1. kamar tidur utama

2. wardrobe

3. kamar mandi

4. balkon

5. area santai/membaca

6. kamar tidur anak

3

POTONGAN

TAMPAK
4
5
Pada area eksterior rumah terdapat carport dan taman yang dilengkapi dengan kolam ikan serta tanaman hijau untuk memberikan suasana sejuk pada rumah. Penerapan konsep open space pada lantai 1 rumah dengan menyatukan area keluarga, ruang makan, dan dapur untuk memaksimalkan area yang ada dan memberikan keleluasaan area gerak.
6
Pada area ini juga terdapat void serta bukaan yang mengarah ke area taman depan, taman samping, dan taman belakang, sehingga ruangan memiliki sirkulasi udara dan pencahayaan alami yang baik.

Pada area lantai 2 terdapat area yang cukup luas yang dapat digunakan untuk bersantai, membaca buku, ataupun berkumpul.

Pada area lantai 2 juga terdapat kamar tidur utama dan kamar tidur anak yang pada masing-masing ruang kamar tidurnya memiliki jendela untuk memaksimalkan pencahayaan alami dan sirkulasi udara.

7

Pada bagian belakang rumah terdapat area halaman yang dapat digunakan sebagai tempat bermain anak maupun tempat bersantai dengan suasana yang nyaman, baik di saat siang maupun malam hari. Selain itu, pada bagian ini juga terdapat area untuk mencuci dan menjemur pakaian yang didesain compact untuk menghemat ruang dan untuk keleluasaan area gerak pengguna ruang.

8

Kids Bedroom

Interior Design Competition Project

Mendesain interior kamar tidur anak dengan mengambil tema dari salah satu karakter disney. Fokus utama dari desain adalah pada kreasi dinding dan berkreasi dengan cat seri disney dari Avian Brands pada dinding interior kamar.

9

Di masa pandemi seperti ini, anak-anak semakin banyak menghabiskan waktu di rumah. Oleh karena itu, keberadaan kamar tidur yang nyaman dan menyenangkan menjadi penting untuk diperhatikan agar anak tidak merasa bosan dan dapat membantu un tuk meningkatkan imajinasi serta kreatifitas anak.

Tema karakter disney yang diterapkan pada interior kamar anak berukuran 3 x 3 meter ini yaitu “The Jungle Book”. Dengan konsep hutan dan petualangan bersama mowgli serta teman-teman -nya. Sehingga anak mendapatkan ruangan dengan suasana baru yang menyenangkan dan nyaman untuk melakukan aktivitasnya sehari-hari.

10

Area ini merupakan area tempat tidur dan meja belajar. Pada dindingnya terdapat siluet mowgli bersama teman-temannya yang sedang berpetualang di hutan. Desain pada dinding sisi ini berbeda daripada tiga sisi lainnya, sehingga menjadikannya vocal point dari ruangan ini. Ketika ruangan gelap, ilustrasi bulan akan menyala karena menggunakan cat glow in the dark. Sehingga, tak hanya dapat memberikan kesan berpetualang dengan mowgli pada siang hari saja, tetapi saat malam hari pun juga dapat memberikan kesan berpetualang bersama mowgli.

Pada area meja belajar terdapat ilustrasi rumput berwarna hijau yang catnya sudah diformulasi untuk dapat menarik magnet, sehingga area tersebut dapat digunakan sebagai media bermain puzzle magnet ataupun untuk menempelkan notes.

Area ini merupakan spot untuk belajar dan bermain. Pada dindingnya terdapat pola-pola garis dinamis berwarna orange dan hijau yang identik dengan karakter mowgli dan hutan pada film the jungle book. Desain dinding yang simple untuk menyeimbangkan dengan sisi dinding lainnya agar ruangan tidak terlalu ramai dan tidak terkesan penuh.

Pada dinding bagian pojok kiri dapat digunakan sebagai media bermain puzzle magnet ataupun untuk menempelkan notes, karena pada cat dindingnya sudah menggunakan formulasi yang dapat menarik magnet.

11

Pada area ini terdapat cermin yang dikamuflase dengan ilustrasi beruang (Baloo the bear) yang sedang menari, sehingga memberikan kesan ceria dan suasana menyenangkan pada ruangan, terutama saat sedang bercermin. Selain itu juga terdapat pola-pola garis dinamis berwarna orange dan hijau yang identik dengan karakter mowgli dan hutan pada film the jungle book.

Pada area ini terdapat built in furniture berupa lemari pakaian, drawer, dan bench yang dapat digunakan untuk spot membaca. Pada dindingnya terdapat siluet mowgli bersama teman-temannya dan juga pola-pola garis dinamis berwarna orange dan hijau yang identik dengan karakter mowgli dan hutan pada film the jungle book yang selaras dengan sisi dinding lainnya.

12

Penggunaan cat glow in the dark yang dapat menyala saat ruangan gelap pada gambar bulan di dinding dan pada gambar bintang-bintang di plafon, serta penggunaan beberapa lighting pada ruangan membuat suasana baru yang menyenangkan dan nyaman untuk beristirahat saat malam hari.

13
suasana malam hari

Pitados Coffee Shop

Personal Project (2021)

Sebuah coffee shop dengan bangunan eksisting berupa ruko dua lantai. Konsep desain interior yang diterapkan yaitu minimalis-industrial dengan elemen interior yang dominan menggunakan material kayu, material besi, material ekspos, danpenggunaan warna-warna netral.

14
15
LANTAI 1
16
LANTAI 2
Cat Deco Wash
Vinyl Solid Surface Wood Panel HPL Wall Panel Aluminium Perforated Metal AXONOMETRI 17
Lantai

Arlington Office Interior Design Project

Lokasi : Bekasi, Jawa Barat

Area : 160 sqm

18
19
20
21
22
F&B Booth Architecture Project (2023) Lokasi : Pasar minggu, Jakarta Selatan
23
Area : 9 sqm
24
25

Lokasi : Semarang, Indonesia

Area : 120 sqm

Cluster Green Semesta Architecture Project (2023)
26
27
28
29
30

Lokasi : Depok, Jawa Barat

Area : 513 sqm

Will’s Bakery & Eatery Architecture Project (2023)
31
32
33
TAMPAK
POTONGAN 1ST FLOOR
34
2ND FLOOR GNTU Commercial Area Architecture Project (2023) Lokasi : SCBD, Jakarta Selatan
35
Area : 370 sqm
36
37
38

Lokasi : Manila, Filipina

Area : 57 sqm

Early Bird Club Interior Project (2023)
39
40
41

Lokasi : Manila, Filipina

Area : 52 sqm

JPM Office Lobby Interior Project (2024)
42
43
44

Interior Project (2024)

Cardiac Pharma
Lokasi : Slipi, Jakarta Barat
45
Area : 20 sqm
46
47

Turn static files into dynamic content formats.

Create a flipbook
Issuu converts static files into: digital portfolios, online yearbooks, online catalogs, digital photo albums and more. Sign up and create your flipbook.