Muthohhiron - Portofolio Arsitektur

Page 1


PORTO FOLIO

MUTHOHHIRON

Project 2021 - 2024

HALLO, Nama saya

S1 arsitektur dari

Institut Teknologi tuk mempelajari

hal - hal baru se mampuan terkait

ilmudasararsitekturdankonstruksisesuaipegalamansayaselamaini,dalam

sistempekerjaansayadapatbekerjasecaramandiriataupunsecaratim

BIODATA

Nama

Tempat/TanggalLahir

Agama

Jeniskelamin

Alamat

Email

WhattsApp/Phone

:Muthohhiron :Sukaraja/06Mei2001

:Islam :Laki-Laki

:JalankeramatJati,Cipayung, Jakartatimur,Jakarta :muthohironn@gmail.com

:+62(822)-6878-2422

PENDIDIKAN

INSTITUTTEKNOLOGI SUMATERA

( IPK 3.23/4.00)

SMANEGERI 1 SEMAKA (Jurusan IPA)

SMPNEGERI 1 SEMAKA

KEMAMPUAN

Autocad

Sketchup

Archicad

Enscape

Twinmotion

Microsoftoffice

PENGALAMAN KERJA

PTArthanovaOryzaMulia (Supervisor)

PT.SekawanChandraAbadi (PengawasProyekperluasanMallBoemiKedaton)

PENGALAMAN ORGANISASI

KEPANITIAAN DAN RELAWAN

HIMARS SWARNAPADAITERA, Staf PSDA

UKM Merpati Putih ITERA,Anggota

2019-2023

2016-2019 2013-2016

ARION 3.0 (Architecture Inaguration Night ) Staf K4 ( Korlap, keamanan, kesehatan, kosumsi)

ATHEN 5.0 (ArchitectureThe Heritage of Extraordinary Night), StafAcara

AURORA5.0, Ka-Subdiv ManajemenAcara

NUSAANTARA2.0, Ka-Subdiv Maket Pameran

ITERABERPIJAR, Relawan

PRESTASI

ACE.UI (Top15Archicare2022:This-Able NationalStudentDesignCompetition)

Juara2lombaminiaturepioneringtingkatprovinsi

April-Juni

2024 Juni-September 2022

- SPACE u LEANR 1 2 3 4

THELASTRO THE OFFICE TOMOE HOTEL

5 6

THELASTRO

TugasAkhirArsitektur

Proyek:

KantorSewaHematEnergidikota BandarLampung(2023)

DosenPembimbing

Dr.EngRendiPerdanaKhidmad,S.Pd.,M.Eng. YurimHatamaiyaSetyorini,S.T.,M.T.

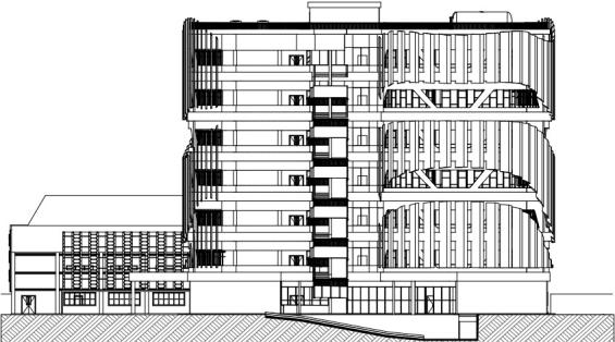
Dibangundiatastanahseluaskuranglebih15.450m2yang terletakdijalanCutNyakDienTanjungKarang,Kota BandarLampung,Lampung.Proyekinibertujuansebagai saranapenunjangperkembanganusahamasyarakatdiKota BandarLampung,terutamamasyarakatdisekitararea pembangunanyangdiharapkanmampumenjawabpersoalan kurangnyaareauntukkegiatanusahaataujassayangdidasari olehfaktorkurangnyalahanuntukmelakukanusaha tersebut.selainituterdapatpulaareabagimerekayangmau mengadakanacaranonformal.Bangunaninididesain denganmemperhatikannilai OTTVbangunanyangbergerak padapendekatanbukaandanorientasibangunan.dengan mengurangijumlahbukaan,diharapkanmampumengurangi panasyangmasukmelaluidindingtembuscahaya,agar kosumsienergiuntukpenghawaanruangandapatdikurangi

KantorSewaHematEnergidikotaBandarLampung

DENAH BASEMENT

KantorSewaHematEnergidikotaBandarLampung
DENAH GROUND FLOOR
KantorSewaHematEnergidikotaBandarLampung
KantorSewaHematEnergidikotaBandarLampung
DENAH LANTAI 1-2
DENAH LANTAI 3-6
KantorSewaHematEnergidikotaBandarLampung
PARKIR
RTH
RAMP MASUK BASEMENT
BANGUNAN KANTOR
GERBANG MASUK
GEDUNG SERBA GUNA
LOADING DOCK
KantorSewaHematEnergidikotaBandarLampung
KantorSewaHematEnergidikotaBandarLampung

THE OFFICE

StudioPerancanganArsitektur5

Proyek:

KantorSewadenganPendekatanThermalBangunan (2023)

DosenPembimbing

Dibangunpadalahansekitar9000m2,yangberlokasidi jl.TerusanRyacudu,LampungSelatan,Lampung. Bangunaniniadalahbangunan komersialyangberfungsi untukmewadahisegalakegiatanwarga sekitarmaupun pendatangyangberhubungandenganpekerjaan administrasiperkantoran.Padapembagianya,1bangunan kantorterbagiatas3zoningdenah,padaarea basementmerupakanareauntukparkirindoorbagipara pengunaterutama penyewayang datangPadalantai tepatdiatasbasement,terdapatareapenunjangseperti cafetariadanareapenunjanguntukkeperluanibadah, selainituterdapatpulaareasewayangdiperuntukanbagi parapenyewabesarLantaidiatasnyamerupakanarea ruang kerjakantorsewayangsecaraumumruangdapat disewakanper-ruangmaupunmerlantai,karenakanntor sewainimenggunakansistemkantorsewamajemuk, terdapattigaruangpokokyaitusmall,mediumdanlarge.

KantorSewadenganPendekatanThermalBangunan

DENAH BASEMENT

KantorSewadenganPendekatanThermalBangunan
KantorSewadenganPendekatanThermalBangunan
DENAH GROUND FLOOR
KantorSewadenganPendekatanThermalBangunan
DENAH TIPIKALLANTAI 1-8
RUANG HIJAU GEDUNG SERBAGUNA
GEDUNG KANTOR
KantorSewadenganPendekatanThermalBangunan
KantorSewadenganPendekatanThermalBangunan

TOMOE HOTEL

StudioPerancanganArsitektur4

Proyek:

TomoeHoteldanResortCircularAndCurve(2022)

DosenPembimbing

Dr.WennyArminda,S.T.,M.Sc.,Ph.D

Tomoehoteladalahsuatuproyekpembangunan

hoteldanresortyang terletakdiareayangberlokasi didaerahKalianda,LampungSelatan,Lampung. didalamproyekinimenyalikanpemandanganyang sangatindahyangmanamengarahkeviewlautdan jugagunungdisekitarareaproyekinididirikan. selainmenyediakanuntusaranahotel,areainijuga menawarkanwisatalainseperticampinggrounddan areasantai,bahkanjugaterdapatareaolahraga sepertibasketdanberennang.selainitudisini juga menawarkan wisatakulineryangdirasacukup untukmemuaskanpengunjunngdimanakapasitas restoranyangmampumenampung200orang.Dr. WennyArminda,S.T.,M.Sc.,Ph.D

TomoeHoteldanResortCircularAndCurve
DENAH HOTELLANTAI 1
DENAH HOTELLANTAI 2
DENAH HOTELLANTAI 3
DENAH RESTAURANT

areainidibangundiareayang dapatdibilangcukupcuram,yaitutitik tertinggipadaareainiterdapatdi84mdpldanarea terendahpada ketinggian68mdpl, untukmengatasihaltersebut,prosesdesaindilakukandenganmelakukan cutandfilpadaareabangunan,areaparkir,areacampinggrounddanarea olahraga,namundibeberapaareatetapmempertahankanketinggianuntuk memberikesan alami,sehinngga tetapsepertiberadadialam

LOADING DOCK
BANGUNAN RESORT HOTEL
CAFETARIA
CAMPAREA
Tomoe HotelCircular

PAMERAN

PengantarInterior

Proyek:

TugasBesarPengantarInterior

PameranMahasiswa(2022)

DosenPembimbing

RabitaAkbariSitompul,S.T.,M.Ars.L

PameraninidiselenggarakandiInstitut

TeknologiSumatera,tepatnyadigedungA dekatpintugerbang.pameraninididesain dengansirkulasisearahyangbertujuanuntuk membuatparapengunjungdapatmelihat keseluruhanpamerantanpaterlewat.di dalamnyadiisidenganberbagaipernghargaan yangtelahdiperolehselama10tahunterakhir, segalaunitkegiatanmahasiswayangsedang berjalan,rencanapembangunanInstitut

Teknologisumateradanberbahaikkaryayang dihasilkan.selainituterdapatpulaarea panggunguntuksesipertunjukanyangakan memamerkanprodukunggulanInstitut

TeknologiSumatera.

TugasBesarPengantarInteriorPameranMahasiswa|

LEANR

StudioPresentasiArsitektur3

Proyek:

LeanrLearningCenter (2021)

DosenPembimbing

Leanrlearningcenter,bangunanyangberdiridiataslahan lebihdari5000meterpersegidengangubahanmasa denganbentukdasarpersegidengantatananruangyangdi tatadengansedemikianrupasehinggasemuaruangan yangdiwajibkandapatterealisasikankedalamlearning centerini. Bangunanterbagiatasbeberapabagian yang dimaksudkanagarlearningcenterinidapatdibedakan zoningnyasecaramudahmelaluibangunanyangada Selainadanyaruangindoordisediakanpularuang kegiatanoutdoorsepertiruangbelajaroutdoryangmana dalamhalinidisediakanbeberapagazebosebagaitempat untukberteduhdisaaatbelajardiluarruang,sertaadi sediakanpularuangolahragaoutdooryangmanauntuk olahragalinidialokasikankepadalapanganvollydan fitnessoutdoor.kemudiandisediakanpularuangserba gunayangdapatdigunakanuntukacaraformalmaupun nonformalseperti acarapernikahan,pesta-pestaataupun untukolahragakarenadisediakan2lapalanganbulu tangkisdidalamnya

DENAH GED.ALANTAI 1
DENAH GED.ALANTAI 2
DENAH GED.ALANTAI 3
DENAH GED.B LANTAI 1
DENAH GED.B LANTAI 2
DENAH GED.C LANTAI 3
GEDUNGA
RUANG LUAR
GEDUNG SERBA GUNA
GEDUNG B
Tomoe Hotel

u- SPACE

PengantarLanskap

Proyek:

TugasAkhirPerancanganRuangLuar

PengantarLanskap (2021)

DosenPembimbing

u - SPACE

Mengusungkonseparsitekturorganik.kesederhanaan, ketenangan,humanityspirit,dannatureofmaterial yangmerupakanelemen-elemendariarsitektur organikyangdapatdigunakansebagaiacuandalam memberipengaruhdalamdesain.denganadanya paviliun,mencobamengaplikasikandiridari pendekatanarsitekturorganik.dibuktikandengan komposisiyangselarasdenganalamdanpenampilan yangharmonisyangtidakbiasasehinggadapat memberikankesannatural.Paviliundibangundengan kayusehinggastrukturbangunanjugadapatdengan jelastereksposyangmenjadikankesaanalamiyang semakinkuat

TugasAkhirPerancanganRuangLuarPengantarLanskap |
u- SPACE
TugasAkhirPerancanganRuangLuarPengantarLanskapu-

Turn static files into dynamic content formats.

Create a flipbook
Issuu converts static files into: digital portfolios, online yearbooks, online catalogs, digital photo albums and more. Sign up and create your flipbook.