


![]()





Hi! I’m Muskaan, a Lagos & New York City based designer. Having grown up in Nigeria and the UAE while also being of Indian descent, I’ve always been fascinated by how different cultures and environments infuence architecture and design. Living in the US, specifcally New York, has deepened my understanding of how ever-changing design really can be and how our surroundings shape that change. With a strong focus on sustainability and thoughtful, human-centered design, I’m excited to keep exploring new opportunities and growing in this career feld.








2020-2023
2019-2020
George Washington University | Washington DC
Bachelor of Fine Arts in Interior Architecture
GPA: 3.97
Honors: Summa Cum Laude, BFA Studio Award, Dean’s Honor List (Fall 2020-Spring 2023)
Involvement: Gensler University Connect Program, Indian Student’s Association
Brandeis University | Waltham, Massachusetts
Honors: Dean’s Honor List (Fall 2019-Spring 2020)
April 2025-June 2025
(Promoted to Designer)
August 2023-April 2025
(Affliate Designer)
June 2022-May 2023
OTJ Architects | New York City
May 2021-July 2021


Full-time Employee (Affliate Designer/Designer)
• Developed various construction drawings, mostly construction plans, schedules, fnish plans, elevations and details, with growing experience in creating power plans and RCPs, to create a comprehensive CD set
• Created tailored designs for a range of commercial projects (real estate frms, consulting frms, fashion accessories companies, etc) to enhance client satisfaction
• Designed presentations for each project phase (schematic design, design development) in Adobe Indesign
• Helped coordinate client interactions during projects to ensure a streamlined decision-making process
• Specifed appliances, equipment, plumbing fxtures and fnishes to meet ADA guidelines and sustainability requirements
OTJ Architects | Washington DC
Intern/Part-time Employee
• Applied Revit and Enscape to create construction drawings, test fts, 3D digital models and renderings
• Utilized Adobe Photoshop and Adobe Illustrator skills to create client presentations, edit material palettes and present them to clients
• Went on site visits and took measurements, notes, and photographs of a space to ensure accurate documentation of site conditions
C+C Design Studio | Dubai, UAE
Summer Intern
• Applied AutoCAD and Revit to design the company’s new offce space by creating orthographic drawings and 3D digital models
• Worked on creating moodboards and material studies, improved my presentation and communication skills and went on a site visit
Certifcations: April 2024
Skills
NCIDQ Interior Design Fundamentals Exam (IDFX) Council for Interior Design Qualifcation (CIDQ) NCIDQ Examination
• Passed the 1st of 3 NCIDQ Exams for Interior Design Qualifcation
• Revit/Enscape
• Autocad
• Adobe Photoshop & Illustrator
• Adobe Indesign
• Microsoft Offce
• Hindi, Spanish
• Sketching
• Bluebeam
• Studying for the NCIDQ Interior Design Professional Exam (IDPX)
• Volunteering at Pinnacle Children’s Place: A Montessori School
• Creating @thesoulofspaces; an Interior Design centered Instagram page
• Interests: Tennis, painting, sustainability, piano, Formula 1

05

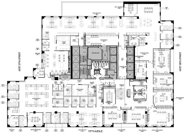
Corporate Offce New York City, NY
Firm: OTJ Architects
11

Education Brooklyn, NY
Firm: OTJ Architects


Fitness Center White Plains, NY
Firm: OTJ Architects




Tenant Suite
New York City, NY Firm:


Corporate Offce
New York City, NY
Firm: OTJ Architects

20,000SF
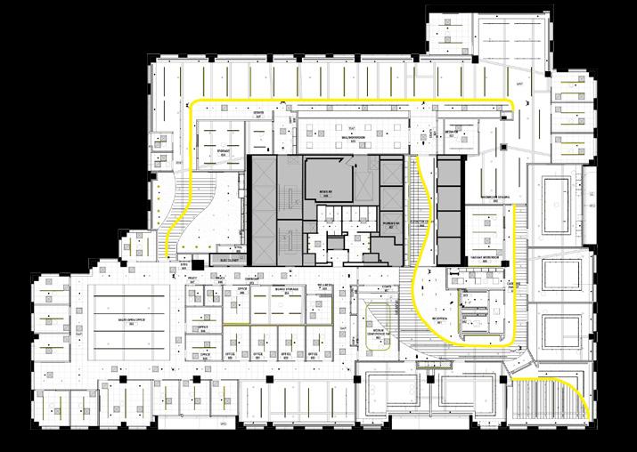
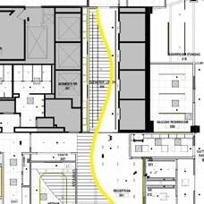
The design of Randa’s new NYC offce began whilst Randa Dallas’ new offce, also designed by OTJ, was slowly wrapping up. Building off of the aesthetic of the Dallas location, our aim was to translate the company’s history and values into this footprint, while also capturing the character and energy of New York City. Prioritizing fexible storage solutions and multiple product display options, we focused on creating a space that felt functional, effcient, and elevated.











Through studies of employee-centered spaces, we created distinct working zones connected by location and circulation, which maintained their identities while encouraging collaboration. f




To pay homage to Randa’s company history and creation of woven leather products, we created the concept ‘Weaving Together Our Legacy And Future.’ h





The ‘Randa Ribbon,’ a continuous light fxture, weaves through the project and is most prominent in the Work Café and Elevator Lobby/ Reception. f

Our concept came to life through details such as wired mesh, needle & thread inspired lighting and Randa’s signature blue branding.















Project Photography: Elevator Lobby & Reception



Project Photography: Primary Showroom

Project Photography: Design Workstations

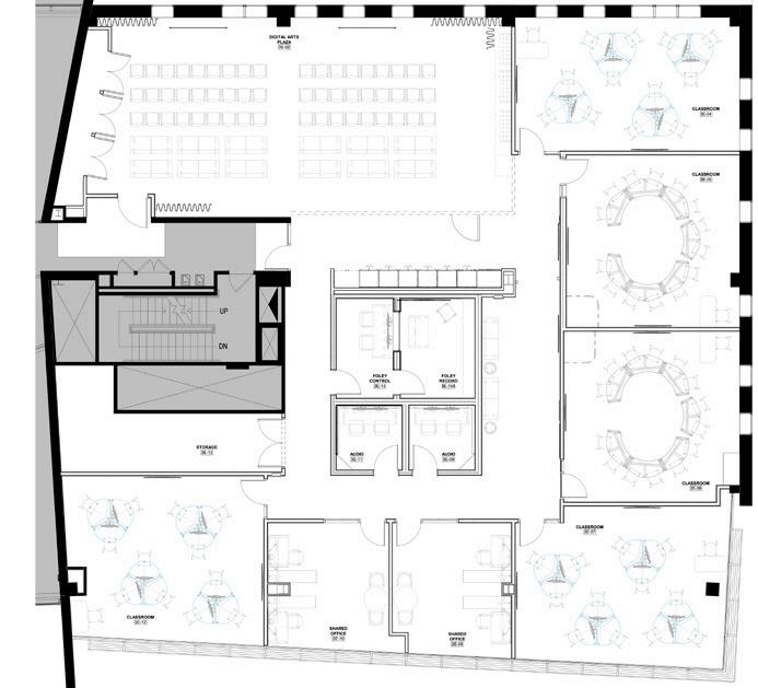
Brooklyn, NY
Firm: OTJ Architects

5,000SF
Our project at Pratt Institute involved redesigning the East Wing of one of their buildings to accommodate the Digital Arts and Animation department. The standout feature is the Digital Arts Plaza, which includes an operable partition to create fexible spaces—a presentation area or classroom when closed, and a display or gathering space when open. We collaborated with acousticians to meet the space’s acoustic requirements, particularly in the Audio/Foley Rooms, and worked with Pratt’s in-house designer to develop classroom layouts that addressed the department’s and students’ needs.
















Guided by our concept ‘Frame by Frame,’ we alined the Digital Arts & Animation Wing’s purpose with space planning, materiality and key design features.







The Digital Arts Plaza and Hospitality Counter, frequented by students, faculty and guests, offered the most potential for creativity and color exploration.





















Final Finish Selection: f















Finishes in the Audio/Foley rooms were kept muted and soothing to support extended use.




We explored several colorways for the baffes and edge-lit panels in the Digital Arts Plaza, ultimately selecting hues that combine vibrance with a sense of calm. f




4 Audio/Foley Rooms



Project Renderings: Presentation/Event Layout & Progress Install Image Bubble



SENTINEL
Fitness Center
White Plains, NY
Firm: OTJ Architects
4,600SF
The Fitness Center was built within of an existing space of a corporate offce building, intended for use by the building’s occupants. Our design had to address the challenge of the lower level, which lacks windows. To make this area feel as open as possible, we selected fnishes and light fxtures. The overall design was then shaped around the machines being procured for the space.




1 3 3






Project Renderings


For the Fitness Center, neutral cool tones and layered textures defned a palette that feels open and bright.








Tenant Suite
New York City, NY
Firm: OTJ Architects
Since BGO would be renting out the space to a future tenant, our key focus was fexibility. We designed a space with typical fxed elements of a tenant suite, such as a pantry and a conference room, while ensuring there was enough open, adaptable space to future-proof for whomever may occupy it. For the fnishes, we drew inspiration from our client’s existing spaces and branding palette, focusing on neutrality and subtlety, while still incorporating a mix of textures and patterns.




Our inspiration palette aimed to create a space that would feel open, airy, and welcoming to multiple different potential tenants.

















We prioritized open, fexible space, while minimizing the use of built-in fxtures as designators of space. f

Project Photography/Project Rendering Bubble




Project Rendering/Project Photography Bubble


Our primary design features were two custom millwork walls: One in the Elevator Lobby for future signage, and on in the Reception serving as a partition.
Project Photography

Healing Center
Washington DC
University Capstone Project
For my senior year Capstone Project, I created Oasis: A Healing Center. Located in Georgetown, Washington DC, Oasis is designed to present guests with an opportunity to release their stressors and leave the space feeling light and refreshed. Through activities such as sound healing, reiki, yoga, and meditation, Oasis emphasizes our innate power to heal our minds and inner selves, bringing life to the overall concept of ‘Healing from Within.’ Inspired by the nearby locks of the Chesapeake and Ohio Canal, guests are able to fow through various spaces, or locks, within Oasis, each uniquely contributing to a journey of healing.






Locks/Sections


The objective was to adapt an existing DMV building to our program. I selected a Georgetown site by the C&O Canal for its balance of nature and centrality.



































The overall palette was inspired by s muted hues, with accents drawn from the chakras and their healing properties.














Project Renderings: Cafe



Axon of one of the Reiki rooms, located in the most private part of the overall space.

Analytique Drawing
University Architectural
Drawing Class Project
For this analytique, we had to choose a building that we admire, and I chose the Taj Mahal. After putting together various images of both the interior and exterior of the Taj, I hand drew this analytique of the Taj Mahal consisting of two interior details, a foor plan detail, an exterior view, and a foral motif.













Thank you for your time.
