Architectural Portfolio - Muskaan Amlani

Page 1

Portfolio Architecture

MUSKAAN AMLANI 2019-2024

CV.

EDUCATION

• 2016 - S.S.C - 91.3%

M.C.S Public School Balaghat [Madhya Pradesh]

• 2018 H.S.C - 93.2%

M.C.S Public School Balaghat [Madhya Pradesh]

• 2019 B. ARCH - 8.46 CGPA [Till 7th semester]

Visvesvaraya National Institute of Technology, Nagpur [Maharashtra]

CO-CURRICULAR

• NASA

MUSKAAN AMLANI

HELLO!

I am an architecture student with good skills in design, problem-solving, and teamwork. I have gained experience in working collaboratively, managing deadlines, and communicating effectively with team members.

I am eager to bring my skills, creativity, and enthusiasm to a challenging architecture internship. I am glad to share with you my academic portfolio.

CONTACT INFO

Sneh Nagar, Balaghat [Madhya Pradesh]

6266112550

amlani.muskaan@gmail.com

SOCIALS

www.instagram.com/_muskaan2822/

www.linkedin.com/in/muskaan-amlani-5a53b2275

Participation in Reubins and ANDC trophy

• BAMBOO WORKSHOP

Participated in 2 day Workshop on Bamboo Construction and joinery details

• WORKSHOP COORDINATOR

Conducted the workshop on hand-drafting skills

EXPERIENCES

• MAG.COM [Literature club of VNIT]

Member of literary club of college College Magazine [Annual] Editor

• SUMMER INTERNSHIP

2 Months Internship at ‘Studio Habitect’ Nagpur

Contributed in preparing Working Drawings and Technical Details.

SKILLSET

• Teamwork

• Hardwork

INTERESTS
PAINTING MUSIC PHOTOGRAPHYREADINGWRITINGSWIMMING LANGUAGES
SKILLS INDESIGN AUTOCAD SKETCH-UP V-RAY PHOTOSHOP ENSCAPE MSOFFICE SOFT SKILLS
HINDI|ENGLISH|SINDHI SOFTWARE
CriticalThinking
Optimistic
• Organised

PREFACE

The drawings and all the datainsidethisportfoliois created by me and is true to my knowledge. It is the collection of work done in the year 2019-2023. Each section shows the different skills and experience gained throughout these four years of undergraduate my course.

CONTENTS DESIGNINGTECHNICALASSORTED

Unique values and lessons learnt in this span of time helped me evolve my skillset and personality. I’m glad to present my work to you.

MISCELLANEOUS CONVENTION CENTRE

ACADEMIC

CAMPUS PLANNING

ACADEMIC

LANDSCAPE DESIGN

ACADEMIC

RESIDENTIAL WORKING DRAWING

[ SEMESTER - 6,7 ]

WORK FROM PREVIOUS INTERNSHIP

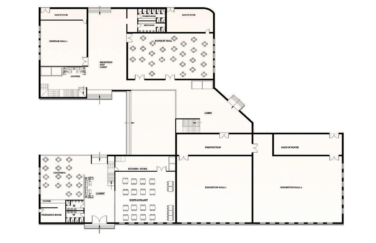
CONVENTION CENTRE

TYPOLOGY - Convention Centre/ Recreational space

LOCATION - Jaipur

SEMESTER - VI

TYPE - Academic

SITE - Udyog Maidan, JAIPUR | AREA - 5.56 ACRES

1

ABOUT THE PROJECT

The project aimed at designing a CONVENTION CENTRE with the Objective of designing a convention centre which addresses the socio-cultural dynamics of the city as well as its climatic conditions with adequate attention paid to the organization of positive and negative spaces within the site and adhere to standards as well.

LEGENDS

International convention centre with a welcoming entrance and incorporating the architectural features of the city enhances the micro environment.
SITE PLAN AND SITE SECTIONS
1] Site Entry 2] Kund 3] Parking 4] Sit Out 5] Site Exit 6] Convention Centre 7] Admin 8] Caretaker 9] Guest use
3 2 1 4 5 7 6 8 9 10
10] Service Entry

FLOOR PLANS

CONVENTION CENTREADMIN AND CARETAKER BLOCK

GROUND FLOOR PLANFIRST FLOOR PLAN

GROUND FLOOR PLAN FIRST FLOOR PLAN

SECTIONS

TYPICAL FLOOR PLAN

SECTIONS

GUEST HOUSE

GROUND FLOOR PLAN

FIRST FLOOR PLAN

SECOND FLOOR PLAN

Guest House - 30 Units of Single rooms

4 V.I.P Suites

4 Executives Suites

Caretaker House - 12 Units [1BHK]

SECTIONS

• Central Courtyard in the convention centre block connecting two main spaces of Restaurant and the functional spaces.

• Courtyard act as the transitional space for reducing the overcrowding and acting as a Transitional spaces having their own identity but at the same time provides symbolic connection to the two spaces that are trying to bring together.

SITE TOP VIEW

2

CAMPUS PLANNING

TYPOLOGY - Campus Planning

LOCATION - Bhuvneswar

SEMESTER - VII

TYPE - Academic

SITE - Kalinganagar, Bhubaneswar | AREA - 52 ACRES

ABOUT THE PROJECT

• The project aims at looking at spatial composition of Building complexes at an institutional scale. It also aims at looking beyond built and interaction amid the open spaces formed between and beyond the Building Blocks.

• Introduction to large scale site master planning process. Understanding contextual approach in campus design.

• By campus designing, the formal and informal spaces, connectivity and the proximity of the places, designong as per capacity and the service reachability to all the spaces was considered.

8] Girls Hostel

9] Guest house

10] Staff Quarters

11] Sports Complex

12] Auditorium and Amenities

13] Parking

550 56 m 39.3 97.08 478.36 353.84 15 M WIDE ROAD 15 M WIDE ROAD 58 m 60 m m62 64 m 66 m m68 70 m m72 98° 90° 92° 123° 140° SCALE - 1:1000 ALL DIMENSIONS ARE IN METRE 347.85
Library
Academic
OAT
Boys
1] Administration 2] Central Plaza 3]
4]
5]
6] Mess 7]
Hostel
SITE PLAN AND SECTIONS
LEGENDS

SECOND FLOOR

FLOOR PLANS

FIRST FLOOR

GROUND FLOOR

GROUND FLOOR

FIRST FLOOR

ACADEMIC BLOCK LIBRARY

SECOND FLOOR

FIRST FLOOR

GROUND FLOOR

ADMINISTRATION BLOCK

3 LANDSCAPE DESIGN

ABOUT THE PROJECT

SITE - Mor Bhavan [local bus stand], Sitabuldi, Nagpur

AREA - 2.2 Acres

TYPOLOGY - Transit Site

The typology of transit site was choosen as these are used by middle class people. As surrounding plays an important role for good or bad vibes, development of the landscaping in the transit places like this is necessary.

Landscape in these areas keeping the context, area, user group and maintenance in mind is important.

Pergolas

Drop off bays

Pavement connecting

Drop off and semi-open space

Double layer buffer with trees to avoid noise from commercial area.

Bus Depot

Fencing with creepers and climbers

Seating space for Bus drivers

Shrub/bush plantation to seperate the bus

Terminal and Depot

Drop-off Bays

Double layer buffer with trees to avoid noise from commercial area and smell from drain

Open to sky seating adjacent to cafeteria and near the drop-off

Built area of the Bus Stop

Lobby and Waiting areas

Flowering and Fragrant trees along the entrance walkway with bushes for easy wayfinding

Semi-open space allocated to the vendors

Bus Movement

Vehicular Drop-off

Vehicular Movement

Pedestrian Movement

SITE PLAN
LANDSCAPE DESIGN MATERIAL LAYOUT LIGHTING LAYOUT
Green Wall in the Bus Parking area behind seating Open to sky seating around the amaltas tree in the cafeteriaa

WORKING DRAWING, ELECTRICAL LAYOUT AND STAIRCASE DETAILS

BRIEF SPECIFICATIONS

STRUCTURE R.C.C FRAMED STRUCTURE

WALLING

OUTER WALL - 230 MM THICK INNER WALL - 115 MM THICK 12 MM THICK PLASTER OF CEMENT MORTAR

FLOORING MARBLE TILES

CERAMIC TILES FLOOR IN TOILETS

ANTI SKID TILES IN BALCONIES

WINDOWS AND DOORS

922 x 2100 TEAK WOOD DOORS

WINDOWS- ALUMINIUM FRAME WITH GLAZED PANELS

SCALE - 1:30

VERANDAH 2100 x 3155 LIVING ROOM 3155 x 4265 KITCHEN + DINING 3270 x 3250 BATHROOM 2065 x 1200 W.C. 1200 x 900 TOILET 2118 x 1200 BEDROOM 3155 x 3615 BEDROOM BALCONY 1000 MM WIDE BALCONY UP 3155 x 3615 BALCONY 1000 MM WIDE D1 D2 D2 D1 D2 D1D1 D1 W2 W3 W3 W2 W1 W3 W1 V V V 18 19 20 21 22 2324 25 27 28 2930 31323334 26 1000 MM WIDE 18000 10000 18000 10000 2000 230 3385 345 345 735 900 900 735 345 1000 1300 1800 820 345 900 1885 345 1333 230 1000 7000 2000 230 345 400 1800 820 375 450 375 225 450 225 345 735 900 900 1000 B C A B C 2 4 4 5 5 6 6 345 2925 345 345 2925 345 922 3020 345 900 345 3270 345 1000 1430 2180 900,86 615 2000
VERANDAH 2100 x 3155 LIVING ROOM 3155 x 4265 KITCHEN + DINING 3270 x 3250 BATHROOM 2065 x 1200 W.C. 1200 x 900 TOILET 2118 x 1200 BEDROOM 3155 x 3615 BALCONY 1000 MM WIDE BALCONY UP BALCONY
MM WIDE D1 D2 D2 D1 D2 D1 D1 D1 W2 W3 W3 W2 W1 W3 W1 V V V 19 2021 22 23 24 25 27 29 32 30 31 353334 26 1000 MM WIDE 230 3385 345 345 735 735 345 1000 1300 1800 820 345 900 1885 345 1333 230 1000 7000 2000 230 345 400 1800 820 375 450 375 225 450 225 345 735 1000 B C A 2 3 6 345 2925 345 345 2925 345 922 3020 345 900 345 3270 345 1000 1430 2180 615 1800 735 345 0 0 0 0 1800 3385 10000 1615 3385 3385 1615 2000 10000 1615 3385 3385 1615 18000 3115 2230 3365 1015 1430 3730 3115 18000 3115 2230 3365 1015 1430 3730 3115 1151015 1333 922 230 922 900230 1333 2128 115900 230 922 2233 28 36 BEDROOM 3155 x 3615 SB13 SB3 SB4 SB5 SB6 SB7 SB8 SB9 SB10SB11 SB12 SB14 10 12 13 14 15 20 22 23 24 25 26 27 16 17 18 19 SILL LEVEL FIRST FLOOR PLINTH LEVEL GROUND LEVEL 4560 3660 600 0 LB1 MB1 SB1 PB1 MB1 PB1 1980 3060 100 MM THICK P.C.C LAYER FIRST CLASS BRICK 230 MM WALL 170 MM RISER 230 x 300 R.C.C CASTED BEAM TEAKWOOD ROUND TOP HAND RAILING WINDOW 100 MM SKIRTING M.S RAILING 20 MM SQUARE BOX FIXED PROPER IN TREAD 11x 10 DIA. STAIR MAIN BARS UP 34 5 13 10 230 300 MM R.C.C COLUMN 385 250 250 250 250 250 250 250 250 230 C4 C2 C1 C2 3615 345 2970 300 B C 1 2 A A 20 MM NOSING TEAKWOOD ROUND TOP HANDRAIL M.S.RAILING 20MM SQUARE BOX FIXED IN TREAD 15 MM THICK PLASTER 230 MM THICK BRICK WALL 10880 20 MM NOSING 250 MM TREAD
1000
PLAN 22 23 24 25 27 18 28 30 31 34 35 36 38 39 41 42 43 46 48 49 50 52 53 54 13180 WATER TANK 12180STAIRCASE TOWER 10880PARAPET LEVEL TERRACE LEVEL 9780 LC1 LINTEL LEVEL SILL LEVEL SECOND FLOOR LINTEL LEVEL SILL LEVEL FIRST FLOOR PLINTH LEVEL G.L 8820 7620 6720 5760 4560 3660 600 0 LC1 LB1 LB1 LB1 MB1 MB1 MB1 SB1 LB1 SB1 SB1 SB1 PB1 SB1 SB1 SB1 SECTION A-A' MB1 PB1 PB1 13180 1980 3060 3060 4930

COMBINED TOILET PLAN

Details of toilet showing -

Working Drawing

COMBINED TOILET PLAN

heights

• Positions of Fixtures • Tiles
Sectional Elevation
Details TOILET 2118 x 1200 100 MM DIA. NAHANI TRAP 230 115 D 350 410 115 2118 630 570 1200 345 1200 345 590 750 115 TAP WASHBASIN WC 450x 450 INSPECTION CHAMBER 100 MM DRAINAGE PIPE 230x 230 MM THICK BRICK WALL 300x 300 FULL WALL CERAMIC TILES DADO 150x 150 GULLY TRAP 150 MM DIA MAIN SEWER LINE
Layout •
showing
of fixtures, cladding on walls
Material
C2 C2 450 230 230 75 MM WASTE WATER PIPE 200x 300 CERAMIC TILES FLOORING A A 450x 500 MM VENTILATOR V 393 5 4 4 5 A A B B V V BATHROOM 1200x 2085 C C 5 5 3 3 230 MM THICK BRICK WALL 4 4 450x 500 VENTILATOR C C D D FLOOR FINISH OF COMMON TOILET AND BATHROOM F F 300x 300 FULL WALL CERAMIC TILES DADO 25MM DIA PVC PIPE FROM OHT 230MM BRICK WALL CERAMIC TILES FLOORING 115 MM RCC SLAB SECTION A-A 2100 2100 400 265 115 765 WC 600 1700 300x 300 FULL WALL CERAMIC TILES DADO 25MM DIA PVC PIPE FROM OHT 230MM BRICK WALL 200X300 GLAZED CERAMIC TILES FLOORING SECTION B-B 750 2100 1965 2100 25 MM DIA WATER PIPE 115 MM RCC SLAB 265 115
TOILET 2118 x 1200 230 D 2118 345 1200 345 590 750 115 230x 230 MM THICK BRICK WALL 300x 300 FULL WALL CERAMIC TILES DADO C2 C2 200x 300 CERAMIC TILES FLOORING A A 450x 500 MM VENTILATOR V 5 4 4 5 A A B B E E 300x 300 FULL WALL CERAMIC TILES DADO 25MM DIA PVC PIPE FROM OHT GEYSER 20MM DIA HOT WATER PVC PIPE 230MM BRICK WALL 200X300 GLAZED CERAMIC TILES FLOORING SECTION D-D 750 294 2100 1965 2100 25 MM DIA COLD WATER PIPE 115 MM RCC SLAB 25 MM DIA PVC PIPE FROM OHT 230MM BRICK WALL 300x 300 FULL WALL CERAMIC TILES DADO 200x 300 CERAMIC TILES FLOORING 100MM SOIL PIPE 115 MM R.C.C. SLAB 'P' TRAP SECTION C-C 500 1600 115 435 2100 450x 500 MM VENTILATOR DOOR 265 115

INTERNSHIP WORK

In the Internship, the work done includes -

• Working Drawings of the floor plans

• False ceiling layouts

• Electrical and Switchboard layouts

• Tiling Layout

• Toilet details

• Furniture details

• Window and Grill detail

• Plumbing details etc.

ELECTRICAL LAYOUT

FURNITURE DETAILS

Exposed Brick Work Design
Details
Exposed Brick Work Site Work
Toilet
Reception Backdrop details [Polyclinic] Storage Unit [Polyclinic]

MISCELLANEOUS

WRITEUPS

PHOTOGRAPHY
ARTWORK
ARCHITECTURAL PORTFOLIO MUSKAAN AMLANI 6266112550 | THANK YOU amlani.muskaan@gmail.com

Turn static files into dynamic content formats.

Create a flipbook
Issuu converts static files into: digital portfolios, online yearbooks, online catalogs, digital photo albums and more. Sign up and create your flipbook.