Portofolio Muhammad Rizki 2024

Page 1


PORTOFOLIO

TENTANG SAYA

PENDIDIKAN
PENGALAMAN KERJA
RUMAH RW RUANG WUDHU AL AZHAR
WISATA
BANDAR UDARA BOLMONG
SAHLAN TOWNHOUSE
ALAM TIROTIKU

01

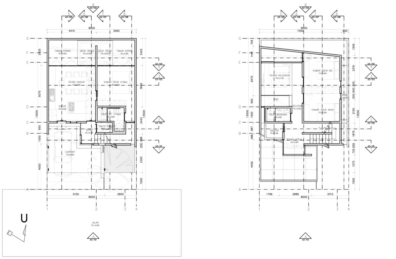
RUMAH RW

TIPE………………………….........…...RUMAH TINGGAL LOKASI…..............…BINTARO, TANGERANG SELATAN

TAHUN………………………………………..……….2021 STATUS……………………………………….TERBANGUN PRINSIPAL ARSITEK…….…M. FAIZAL SYAMSALAM, IAI ARSITEK…………………............…..MUHAMMAD RIZKI INTERIOR INTEREKA

DENAH LT. 1 & LT. 2

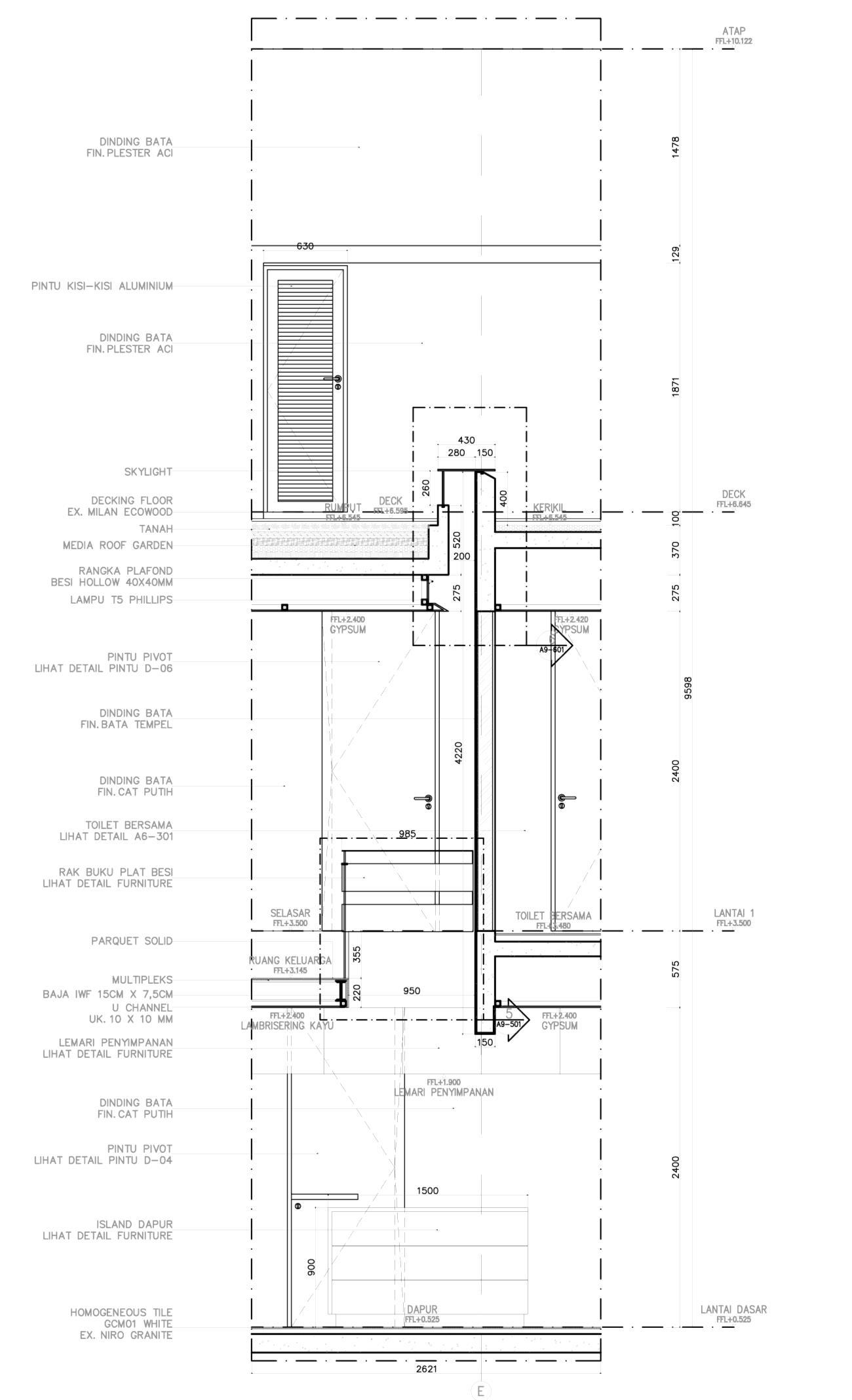
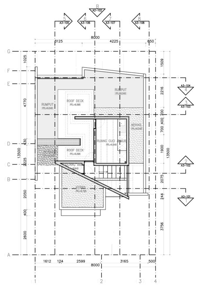
UTILITAS DAN SERVICE

DETAIL LAMPU TANGGA
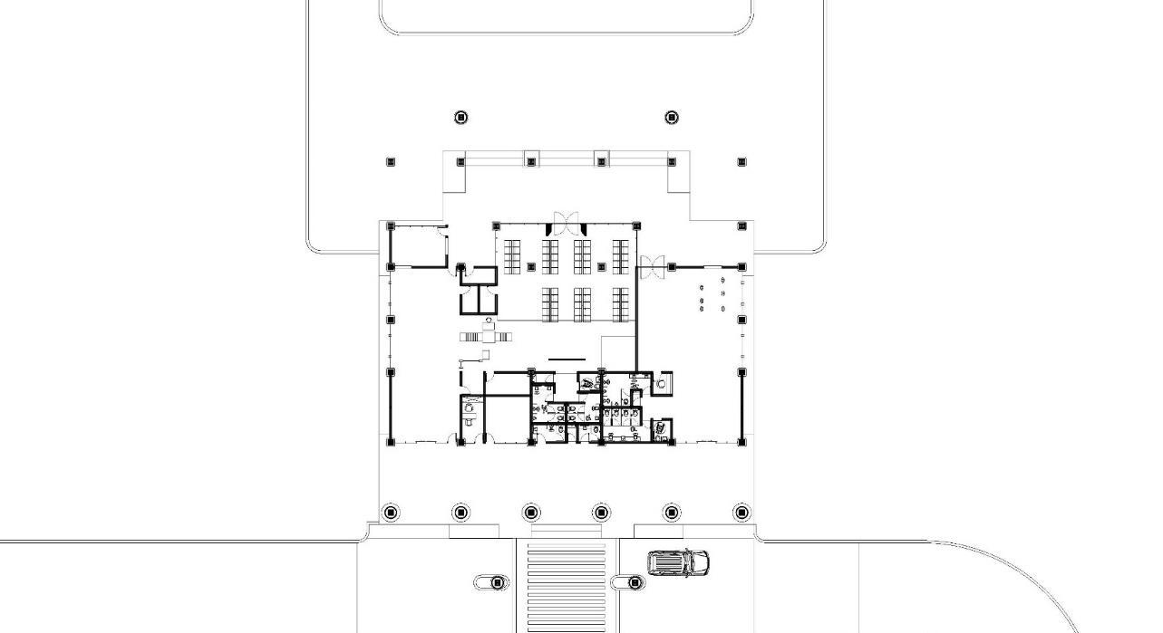
DENAH ROOF TOP

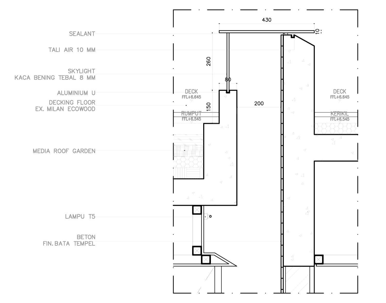
DETAIL SKYLIGHT

PENCAHAYAAN ALAMI

02 RUANG WUDHU AL AZHAR

TIPE……………………….........…...BANGUNAN PUBLIK

LOKASI....................…KEBAYORAN, JAKARTA SELATAN

TAHUN………………………………………..……….2019

PRINSIPAL ARSITEK…….…M. FAIZAL SYAMSALAM, IAI ARSITEK…………………............…..MUHAMMAD RIZKI

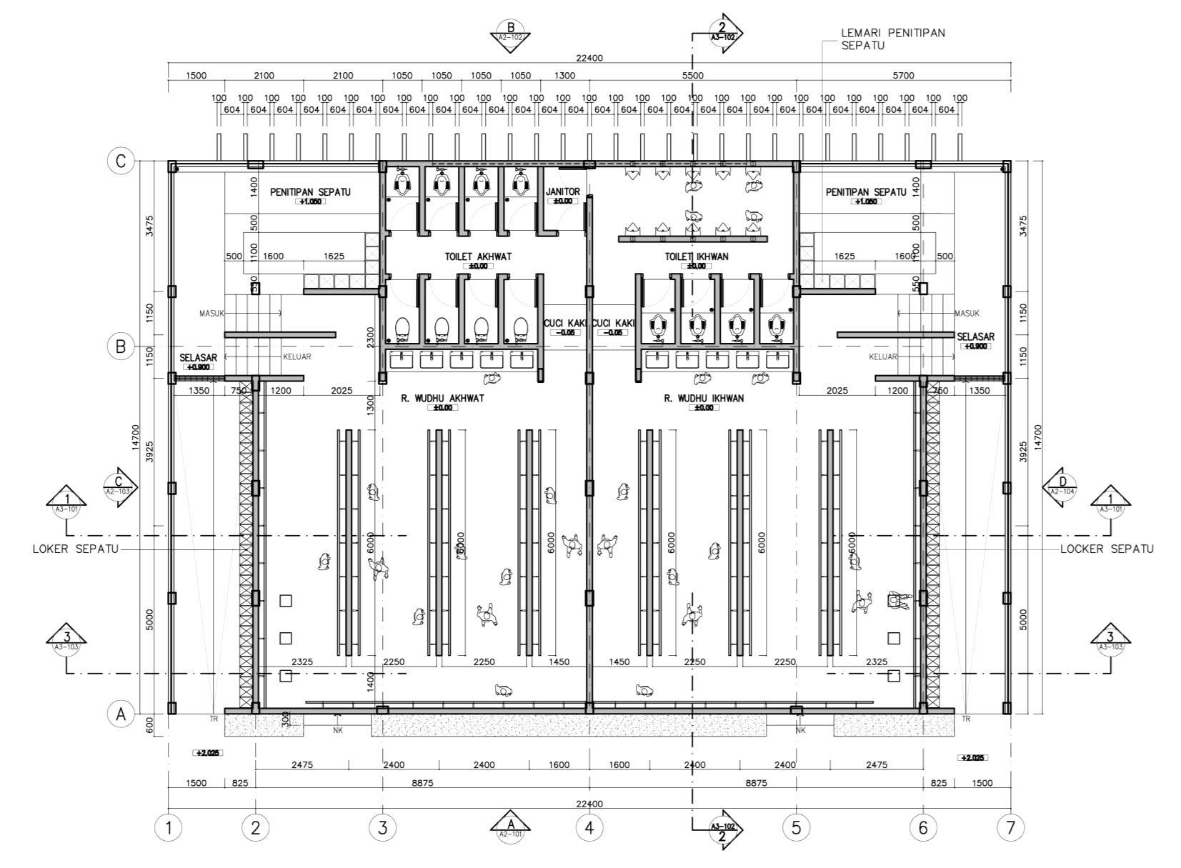
DENAH

DETAIL SIGNAGE

POTONGAN DETAIL WUDHU LUAR

DETAIL RAILING DETAIL

03 WISATA ALAM TIROTIKU

TIPE BANGUNAN PUBLIK LOKASI LOLAI, TORAJA UTARA

TAHUN………………………………………..……….2021

PRINSIPAL ARSITEK…….…M. FAIZAL SYAMSALAM, IAI

ARSITEK…………………............…..MUHAMMAD RIZKI

LEGENDA

1. PARKIR BIS

2. BANGUNAN INTI

3. RUANG CERITA FILOSOFI

4. RUANG CERITA PENDUDUK

5. KAFE

6. VIEWING DECK

MENIKMATI PROSES

PUSAT PERHATIAN

TAMPAK VIEWING DECK

KAYU ULIN KALTIMBER

DECKING SQUARE EDGES

TYPE CLASSIC SMOOTH

10MM PLAT BESI FIN. CAT HITAM

DETAIL CUSTOM BENCH

MENIKMATI PEMANDANGAN

04 BANDAR UDARA BOLMONG

TIPE BANGUNAN PUBLIK

LOKASI.....................…BOLMONG, SULAWESI UTARA

TAHUN………………………………………..……….2023

PRINSIPAL ARSITEK…..……….KHAIRUL ANWAR ANAS

ARSITEK…………………............…..MUHAMMAD RIZKI

WORKSHOP A2B

RUMAH POMPA AIR

RUMAH DAYA ME

4 RUMAH DINAS TIPE 36

1 RUMAH DINAS TIPE 50

LANDASAN PACU
TERMINAL PENUMPANG
APRON
AREA PARKIR
TUGU BANDAR UDARA
KANTOR OTORITAS
KANTIN
MUSHOLLA

TERMINAL PENUMPANG

1. DROP OFF
2. LOBI KEBERANGKATAN
3. LOBI KEDATANGAN
4. CS MASKAPAI
5. KONSESI
6. AREA TOILET
7. KONTER CHECK-IN
8. REKONSILIASI
9. AREA TUNGGU
10. AREA KEDATANGAN
11. RUANG GSE
12. RUANG SCP
01 AREA COUNTER CHECK IN
PINTU KEBERANGKATAN
LOBI
04 RUANG TUNGGU
05 AREA KEDATANGAN
06 AREA PROMOSI DAERAH

KETERANGAN

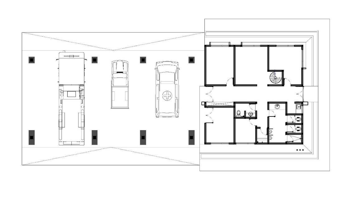
1. GARASI MOBIL

2. LEMARI ALAT

3. GUDANG ALAT

4. RUANG ISTIRAHAT

5. RUANG KANTOR KARYAWAN

6. TOILET

7. RUANG LOKER

8. JANITOR

9. TOILET

10. TANGGA PUTAR MENUJU LANTAI 2

11. RUANG KELAS

12. PANTRY

RUMAH DINAS

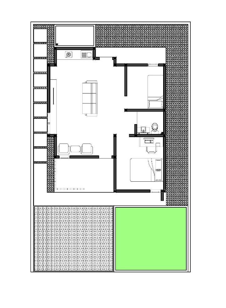
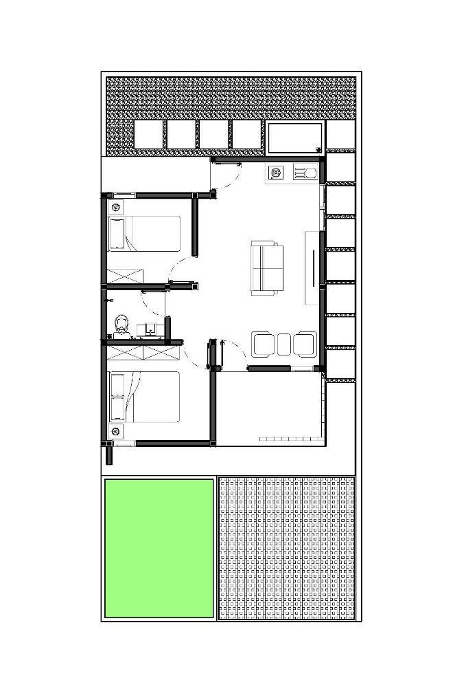
KETERANGAN

3. TERAS

4.

5.

6. TOILET

7. RUANG TIDUR ANAK

8.

9.

10.

1. PARKIRAN KENDARAAN
2. TAMAN
RUANG TIDUR UTAMA
RUANG KELUARGA
DAPUR
AREA CUCI JEMUR
JALUR SERVICE
11. TAMAN KERING KERIKIL

TUGU BANDAR UDARA

KETERANGAN
1. TUGU
2. KOLAM
3. TAMAN

05 SAHLAN TOWNHOUSE

TIPE……………………….........……...RUMAH TINGGAL

LOKASI..............................…GUNUNG PUTRI, BOGOR

TAHUN………………………………………..……….2024

ARSITEK………………… … MUHAMMAD RIZKI

KETERANGAN

1. PARKIR MOTOR

2. TAMAN

3. FOYER

4. KAMAR TIDUR TAMU/ANAK

5. TOILET

6. RUANG KELUARGA

7. DAPUR

8. RUANG CUCI & JEMUR

9. TAMAN KERING

10. KAMAR TIDUR UTAMA

DENAH
JALAN
JALAN TOWN HOUSE
DESAIN FOYER
DESAIN RUANG KELUARGA & DAPUR
DESAIN KAMAR TIDUR UTAMA
DESAIN FASAD RUMAH

PORTOFOLIO ARSITEKTUR & INTERIOR

Turn static files into dynamic content formats.

Create a flipbook
Issuu converts static files into: digital portfolios, online yearbooks, online catalogs, digital photo albums and more. Sign up and create your flipbook.