MAS+ Arquitectura 2022

Page 1

MIGUEL ANGEL SEVILLA SELECTED WORKS 2018-2021

I am an current graduate student at the Illinois Institute of Technology, I have a Bachelors of Science in Architecture from the University of Illinois in Chicago. Ever since I can remember I have been deeply in love with architecture and its never-ending potential to elevate every-day experiences, and the great responsibility that comes with this every optimistic endeavor. Studying at UIC has allowed me to expand on my original notion of architecture by introducing me to the conceptual and theoretical side of architecture. As I continue my architectural studies at IIT ‘s graduate program, it has allowed me to develop a more diverse outlook of the field. All in hopes that this will allow me to discover my role and future contributions to Architecture.

HORIZONTAL THINGS

RITUAL/HABIT GRADUATE_FALL 2021

FIRST YEAR_FALL 2017

GOLF- CITY FIRST YEAR_SPRING 2018

8840-54 S. COMMERCIAL AVE FOURTH YEAR_SPRING 2021

THE AVIARY GRADUATE_SPRING 2022

CHICAGO FRAME SECOND YEAR_FALL 2018

CARTHUSIAN MONASTERY THIRD YEAR_FALL 2019

PASSAGE

SECOND YEAR_SPRING 2019

CHICAGO FRAME SECOND YEAR_FALL 2018

GOLF -CIT Y

FIRST YEAR_SPRING 2018

MONASTERY THIRD YEAR_FALL 2019 CASINO THIRD YEAR_SPRING 2020

STUDIOS

1 2 3 4 5 6 1 2 3 4 5 6

RITUAL/HABIT

Fall 2021

This project began with the exploration of what ritual and habit is. These words were a direct product of the COVID 19 quarantine mandate. My group dissected what ritual and habit is and thus the diagrid was a direct product of this exploration, as habit can be seen as a pattern and ritual as a distrubtion that happends from time to time on the pattern. The build ing exemplifies the topic of the studio by generating a hostel and normal studio micro units that change from one to the other as the building rises. Most hostels are occupied for only a few days, usually used by travelers. For this reason we decided to carve a path of atriums along the edges of the building to represent the travelers “journey”. Each of these atrium spaces would be occupied with a different program that is out of the ordinary, a ritual. Whereas the units, would only represent a habit.

01
MIND • Learning Center • Computer Room • Work Area • Library SPIRIT • Lounge/Reading Area • Media/Music Area • Art Studio • Meditation Area BODY • Outdoor Workout Area • Small Gym • Basketball Court • Game Room 12 Communal Atriums RITUALS
HABIT HABIT HABIT HABIT HABIT HABIT HABIT HABIT HABIT HABIT HABIT HABIT RITUAL RITUAL R H H R R R H H H H HH H H H H H H H HH H H H UNITS HOSTEL UNITS MODULE UNITS HOSTEL UNITS MODULE COMMERCIAL UNITS DUPLEX UNITS Program Distribution Atrium Spaces Diagrid Design Development

ATRIUM

ATRIUM

HOSTEL

HOSTEL HOSTEL HOSTEL

HOSTEL HOSTEL

HOSTEL

HOSTEL HOSTEL HOSTEL HOSTEL HOSTEL HOSTEL HOSTEL KITCHEN

ATRIUM

HOSTEL UNIT UNIT UNIT UNIT

STUDIO UNITS FLOOR PLAN

UNITUNIT
RESTROOM
FLOOR PLAN

Detailed Aparment Section

Diagrid and Window Detail
Detailed Atrium Section

8840-54 S. COMMERCIAL AVE

Spring 2021

Curated by Ryan Palider

This was a group project proposal submission to Chicago’s RFP Invest South/West. This project is located on the corner of Commercial Ave and 89th St in the South Chicago neighborhood. The layout was de signed around an existing building that was connected to the proposed structure through a glass atrium. This atrium would allow the center core to form communal spaces, while the exterior would be affordable housing. All these new communal spaces would bring more foot traffic to Commercial Ave once again and give space to provide more resources for the community. The facade is meant to provide a different view to security curtain walls in these neighborhoods, what is seen as a negative notion is taken and made into a positive one by providing a new facade for the building. The facade is digitalized with perforations to represent brick and facade ornamentation seen throughout the surroundings of the building. The proposed facade also pays homage to what use to be a booming steel city. This is specially true when the facade lights up at night and stands like a ghost from the past.

02
Exterior Render
Section aa
89th Street Commercial Av e A A BB 89th Street Commercial Av e A A BB Second Floor Third Floor South Chicago 8840-8854 S. Commercial Ave. Floor Plans 89th Street Commercial Av e A A BB 89th Street Commercial Av e A A BB Ground Floor First Floor Site Plan housing vertical circulation horizontal circulation communal space balcony housing commercial atrium existing housing South Chicago 8840-8854 S. Commercial Ave. Project Diagrams Program Diagram KEY KEY
Facade System Section Facade System Elevation Day Time Render Night Time Render

THE AVIARY

Spring 2022

Curated by James Baird

As Chicago sits in between the Mississippi flyway it was crucial to design an aviary that would welcome and preserve some of these migratory birds. The main design of this aviary in Lincoln Park Zoo follows the form and fly pattern of a bird. The design strategies also welcomes visitors to have a personal and close experience with various bird species with out jeopardizing their habitat. The large open fly area allows that increase in ascending order allow the birds to have a larger flight height and feel less restricted. The idea behind the design is that their is a greater amount of importance placed on the birds and their habitats. The close experience with the birds allow the inhabitats to have a personal intimate learning experience.

03

EXHIBITION SPACES

EXHIBITION SPACES

PUBLIC SPACES

PUBLIC AMENITIES

EDUCATIONAL SPACES

EDUCATIONAL SPACES

CONSERVATION SPACES

CONSERVATION SPACES

MANAGEMENT SPACES

MANAGEMENT SPACES

SERVICES

SERVICES

Cafe

SITE FORM SPLIT

Development begins with placement of a block on the proposed site.

Division of block to create movement from either end of the site

MAXIMIZE VIEW OF THE POND CHANGE IN LEVELS

Placement of exhibition spaces to maximize the view of the pond and skyline of downtown Chicago.

Raising of the middle exhibition spaces while still maintaining the topography on either ends to maximize

Raising the height of exhibition spaces in ascending Form at the rear is bent to give the building some form of privacy and reduce noise pollution from Lake Shore Dr

Connecting the buildings with green space and public amenities.

Connecting with the rest of the park, retaining some existing site elements and the creation of new pathways for pedestrian and services.

ASCENSION OF EXHIBITION SPACES BENDING OF ‘BAR’ GREEN PUBLIC SPACE CONNECTION WITH LPZ

Transparency Fly through

Use of UV enhanced glass

PILKINGTON AVISAFE GLASS

Unlike humans, birds can see light in the ultraviolet spectrum.

It uses a unique patterned UV enhanced coating barrier to birds and preventing collisions while remaining invisible to humans.

DETAILS

CARTHUSIAN MONASTERY

Fall 2019

Curated by Abby Chang, Jimmy Carter, Francesco Marullo and Agata Siemionow

This studio began with the study of Carthusian monasteries and the very strict daily routine and solitary lives that the fathers and brothers follow. The monks are secluded from the outside world and are given only the essential items needed in their lives. In the design of this monastery, the main driving force was the idea of the steps becoming everything walls, seating, beds, doors, etc. For this reason every space from the cells to the chapter house, chapel, kitchen (found in the center) are constructed under the idea of the steps becoming useful in every way possible. For farming, terraces were constructed going down the steep hill with ramps for machinery to access them. The particular construction of this monas tery allowed the monks to be able to circulate all around the monastery while allowing them to experience new possibilities through the use of steps.

04
Shear Site Section Cut
Zoomed In Site Plan aa
Father Cell Exploted Iso Brother Cell Exploted IsoFather Cell Floor Plan Brother Cell Floor Plan Wood and Machinery Storage Barn Grain Storage and Roughage Animal Stalls Collective Areas Church and Main Cloister Monastery Plan Layout 1) Animal Grazing 2) Father Cells 3) Brother Cells 4) Church 5) Refectory 6) Kitchen 7) Chapter house 8) Road 9) Animal Stalls 10) Roughage and Silo 11) Barn 12) Wood/Machine Storage 13) Mixed Farming 14) Terrace Farming
Exterior Image
Exterior Image

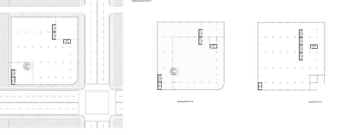
CHICAGO FRAME

Fall 2019

Curated by Paul Preissner

After the great Chicago fire, the Chicago steel frame enabled the construction of real skyscrapers that were fireproof, and the skeleton metal frame allowed the weight to be distributed evenly. This construc tion is meant to be used as office space but is also modified to house a center ball room that is open while challenging the amount of support that is needed for the structure to stand. The structure of this building is angled in elevation where the faces from the street facades meet at the top to create an open geometry in the center. This allows the ballroom to recieve natural sunlight from the top while allowing the structure to build itself around it. The facade has a colorful chamaleon dichroic film that changes color depending on the angle that the viewer is looking at the structure. This was done to highlight the particular geometry of the structure, while exposing its usage of I-beams.

05
Isometric Drawing Lobby Office Space Ballroom Elevators Emergency Stairs Program Distribution Diagram
Overall Model Photograph Side Elevation Model Photograph
Ground and Site Plan Event Space Plan Typical Plan a a
Section aa

GOLF-CITY

Spring 2018

Curated by Andrew Modrell

This studio began with the study of three, one mile by one mile blocks of land with different topography in Los Angeles (Suburban), New York (Urban), Texas (Rural). These one mile x one mile strips were then reduced to 1/3 of these blocks. The next step was to combine the three different types of topographic pieces of land to see which is most prom inent and expand its possibilities. In this case, the suburban construct of Los Angeles influenced the design of “Golf City” in which a golf course that was introduced by a mile block nearby completely took over the plot of land, allowing some of the residents to have a golf course right in their backyard. Alternatively, others were completely taken over by this physical construct but were given a more secluded area for those that inhabit it.

06
Site Plan Section aa a a
Zoomed In Drawing
MIGUEL A SEVILLA 773 672 9868 masevilla.arq@gmail.com

Turn static files into dynamic content formats.

Create a flipbook
Issuu converts static files into: digital portfolios, online yearbooks, online catalogs, digital photo albums and more. Sign up and create your flipbook.
MAS+ Arquitectura 2022 by msevillaArquitectura - Issuu