

PORTFOLIO MRUNMAYI SANGAMNERKAR
I am a Designer and with a soft spot for the environment, looking for an opportunity to employ my skills

201/139 Parramatta Road Homebush 2140
mrunmayi9212@gmail.com 0414509933
Work Samples:
ArtMade Architects - Aug 2022 - June 2024
EMK Architects - February 2022- July 2022
Beehive Design - June 2021 - February 2022
Baiss Design - November 2020 -June 2021
SOFTWARE SKILLS
Revit
Sketchup
Autocad
Microsoft Office
Design Builder Photoshop




ARTMADE ARCHITECTS
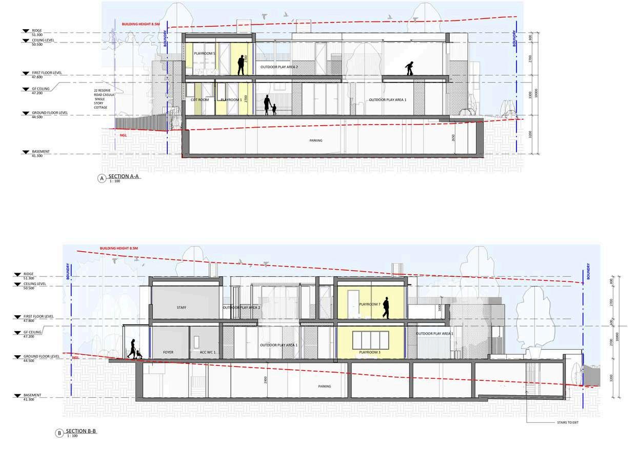
Child Care Centre - DA Renders




ARTMADE

















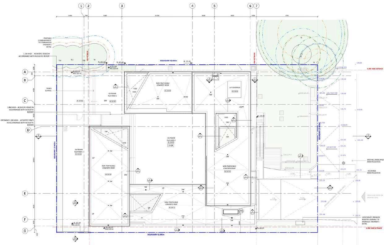
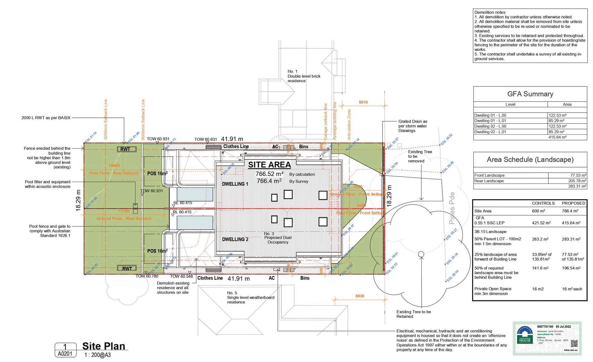
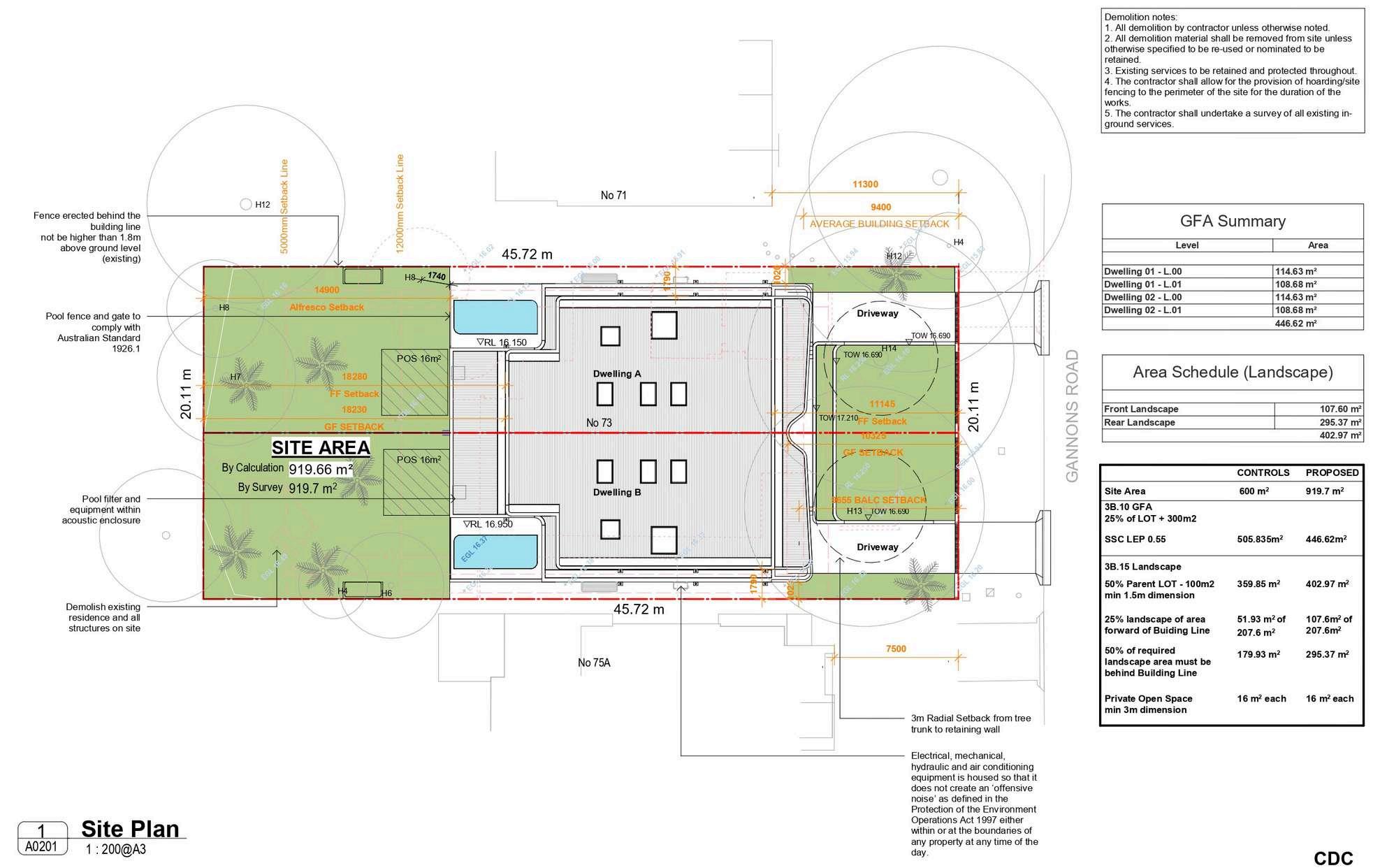
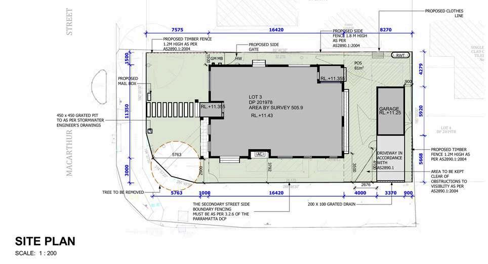
SITE PLAN : NTS

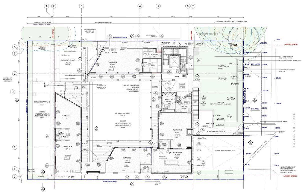
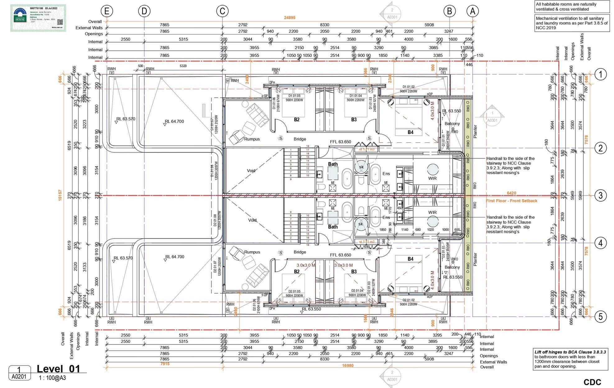
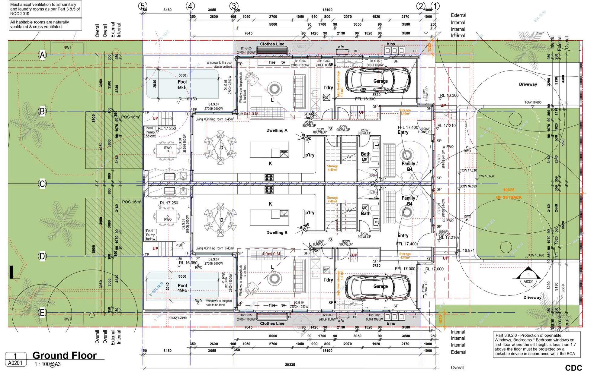
GROUND FLOOR PLAN : NTS
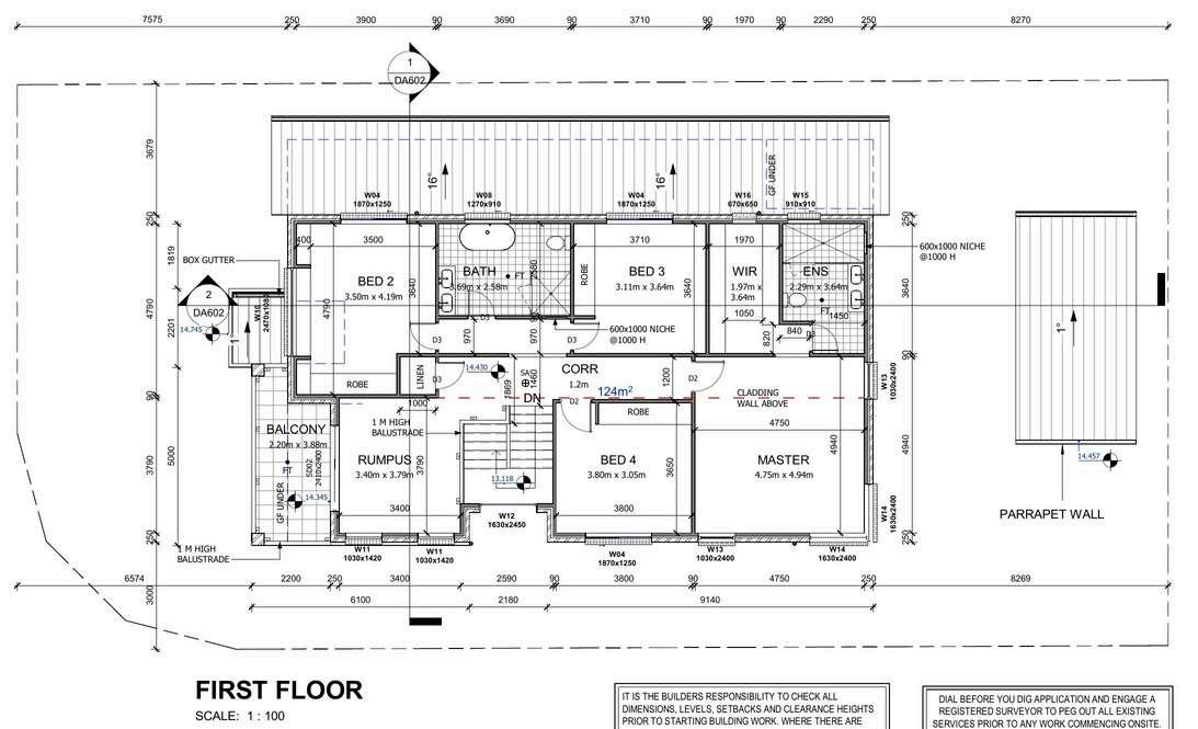
ARTMADE ARCHITECTS


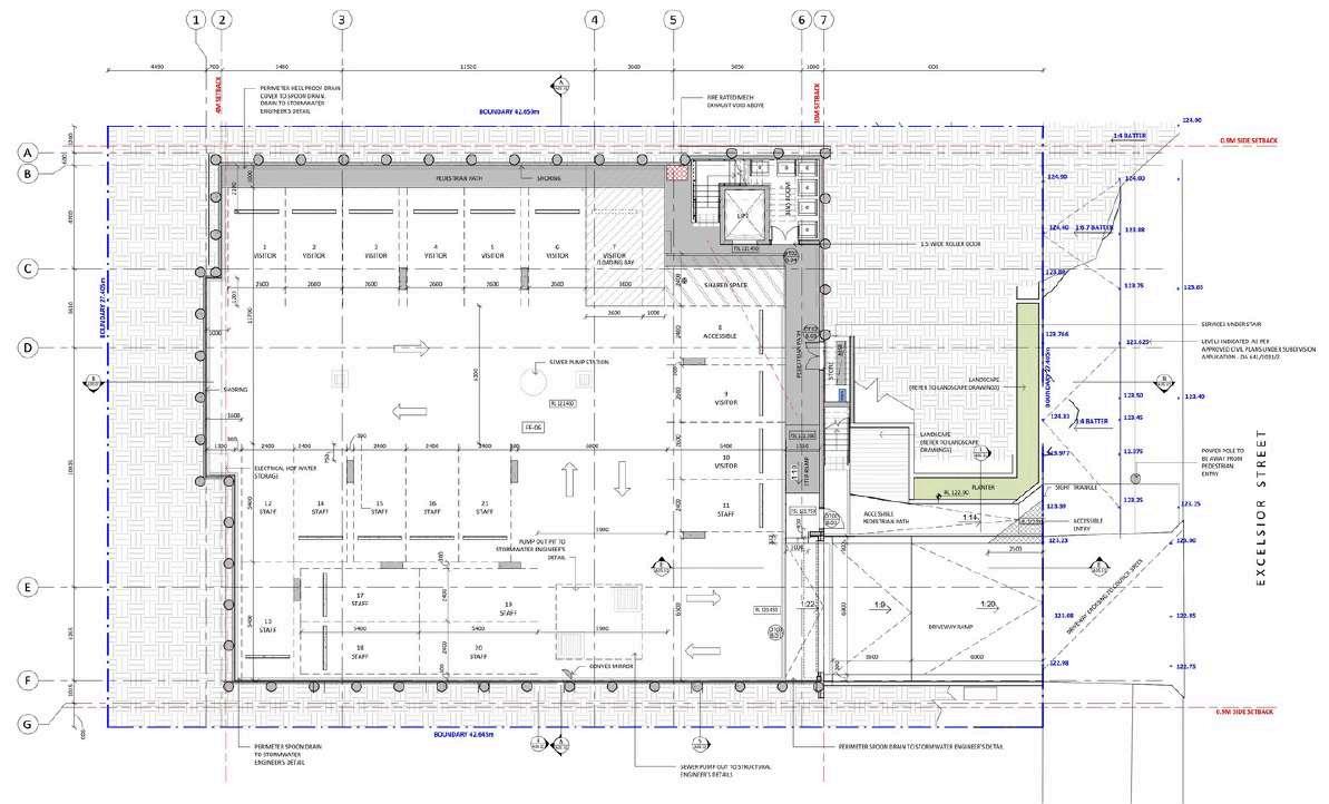
BASEMENT PLAN : NTS FIRST FLOOR PLAN : NTS
Care Centre - S4.55/




ARTMADE ARCHITECTS
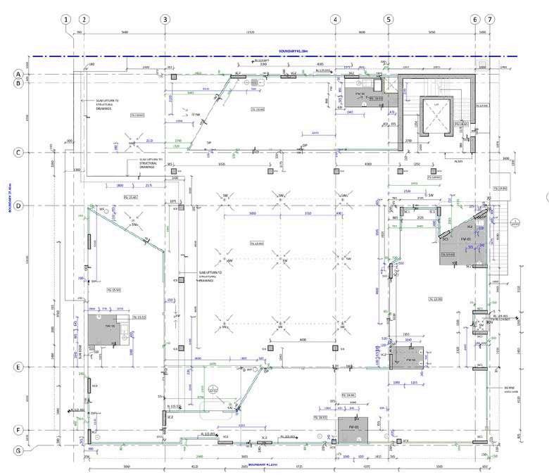
SETOUT PLAN : NTS Child Care Centre - S4.55/

WALL SETOUT PLAN: NTS WALL
CONCRETE

ARTMADE

ARTMADE




ARTMADE




ARTMADE





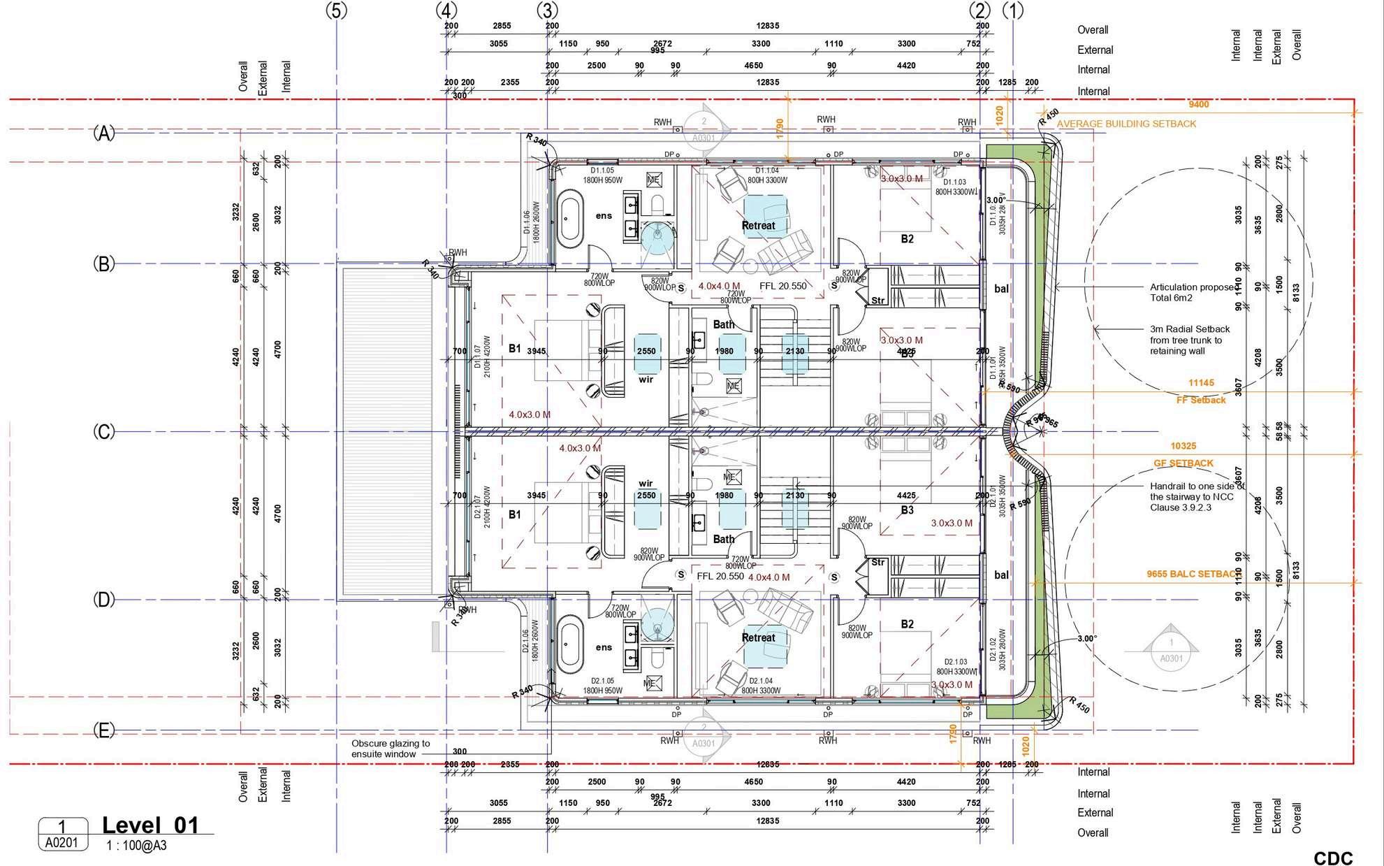
ARTMADE ARCHITECTS

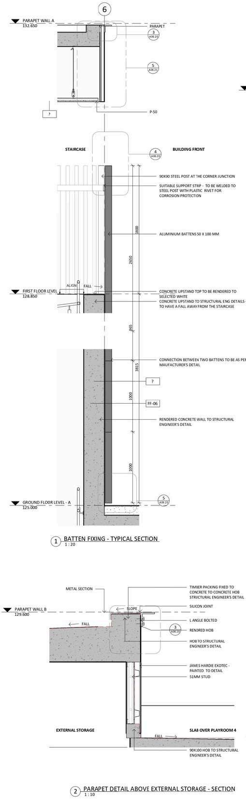
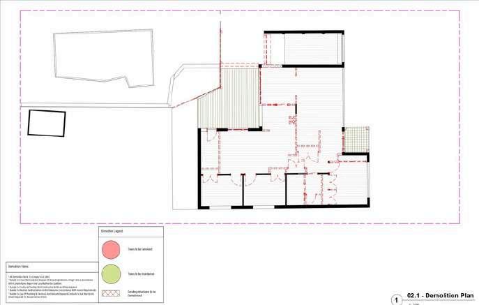
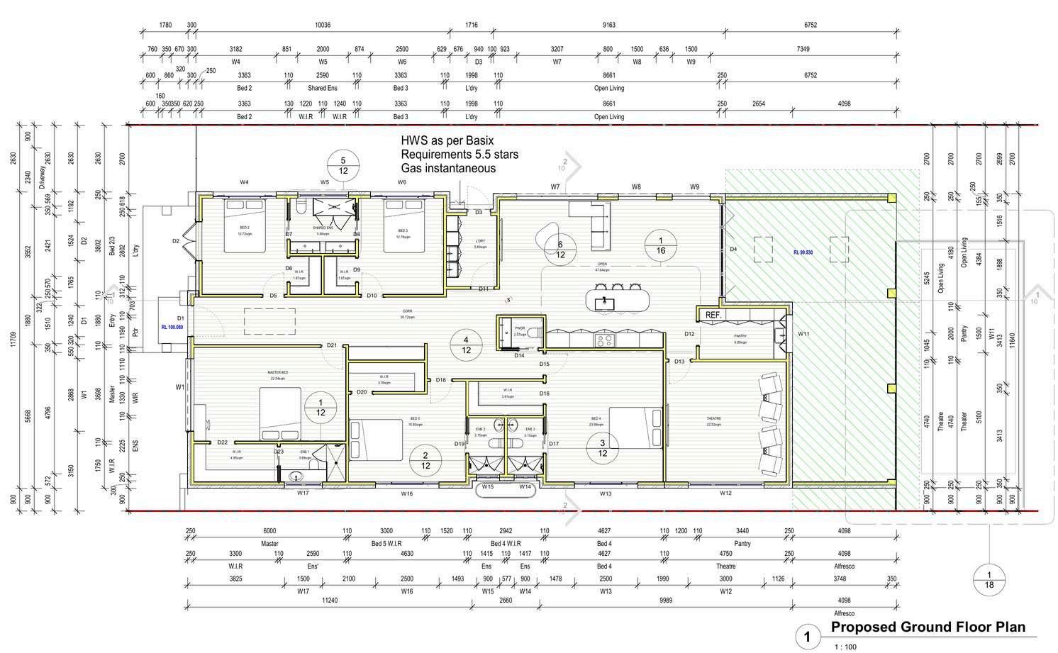
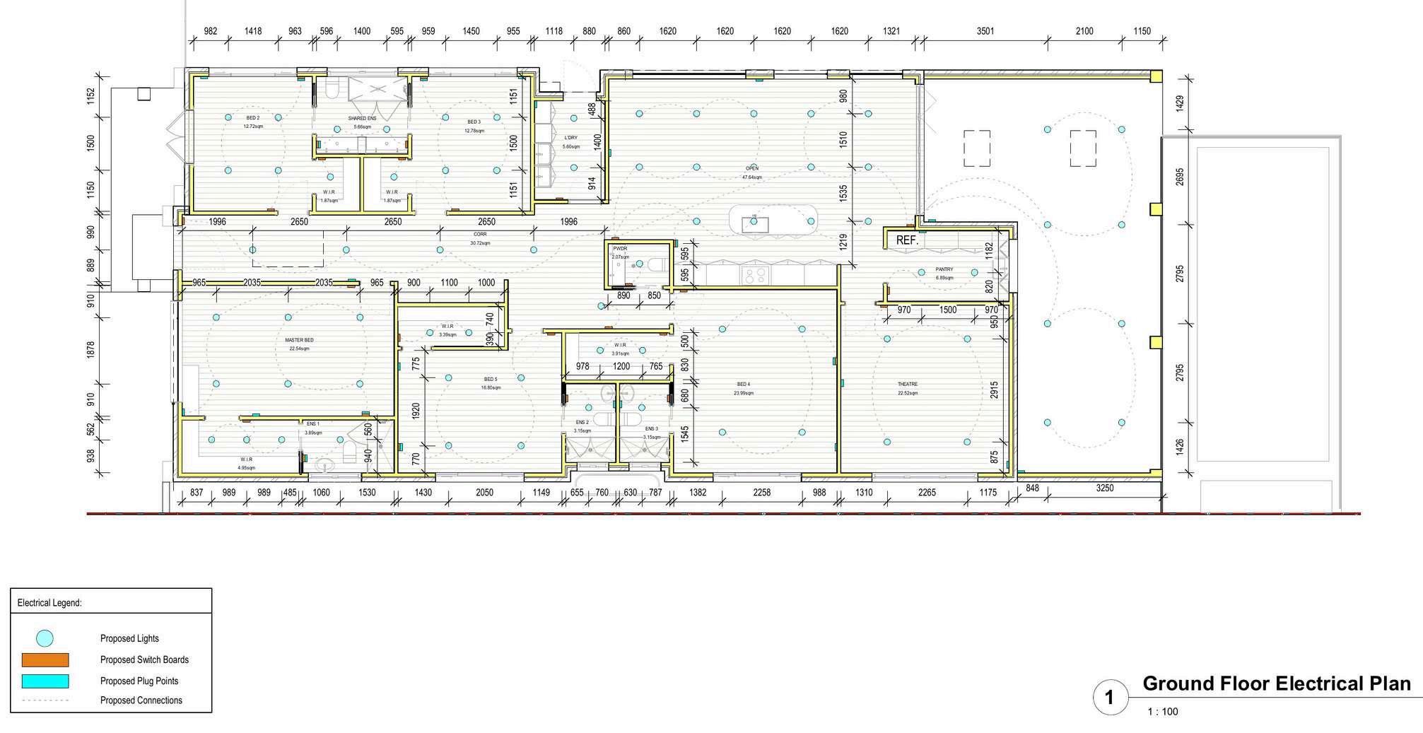
Child Care Centre - CC/CD



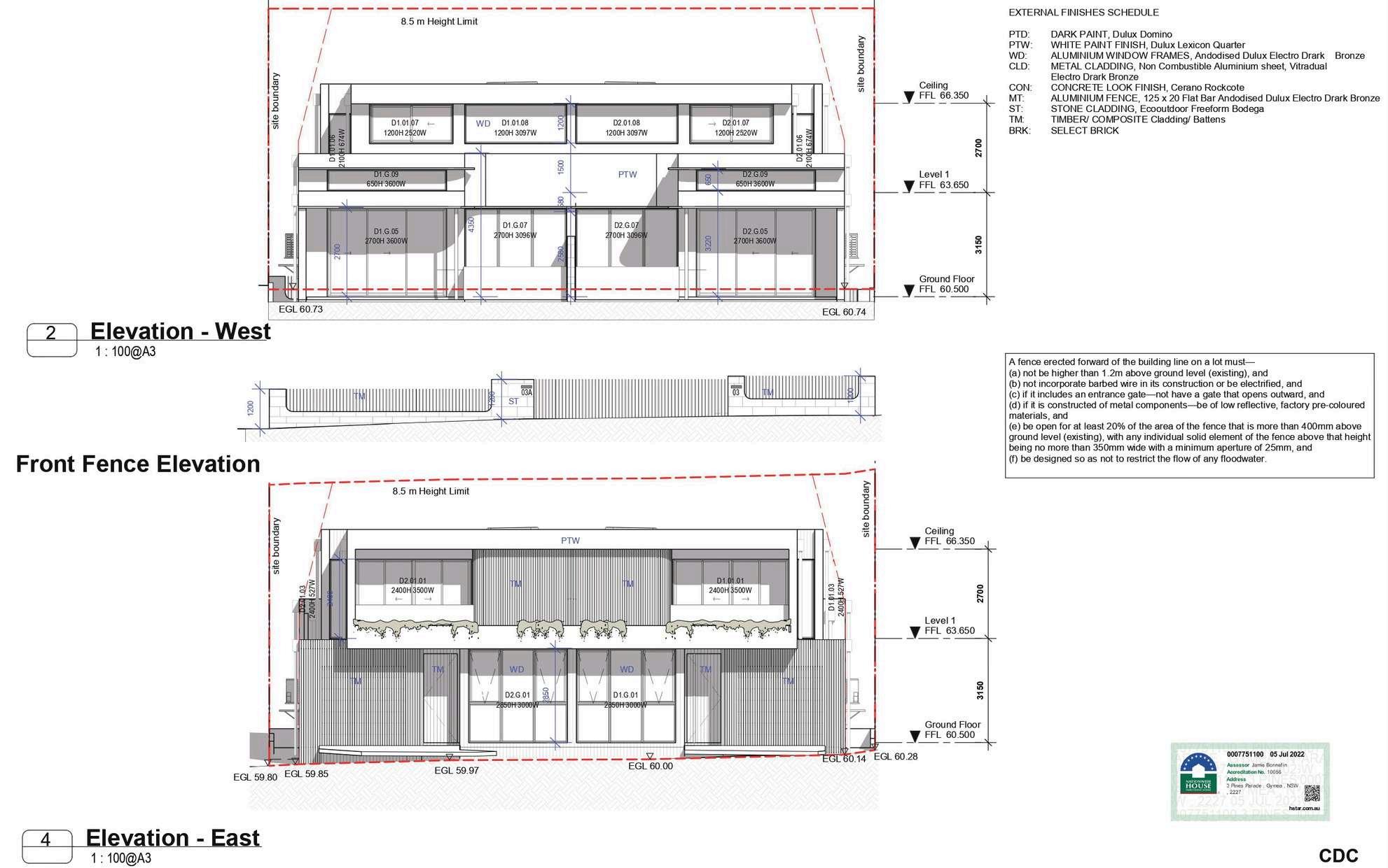
ARTMADE ARCHITECTS

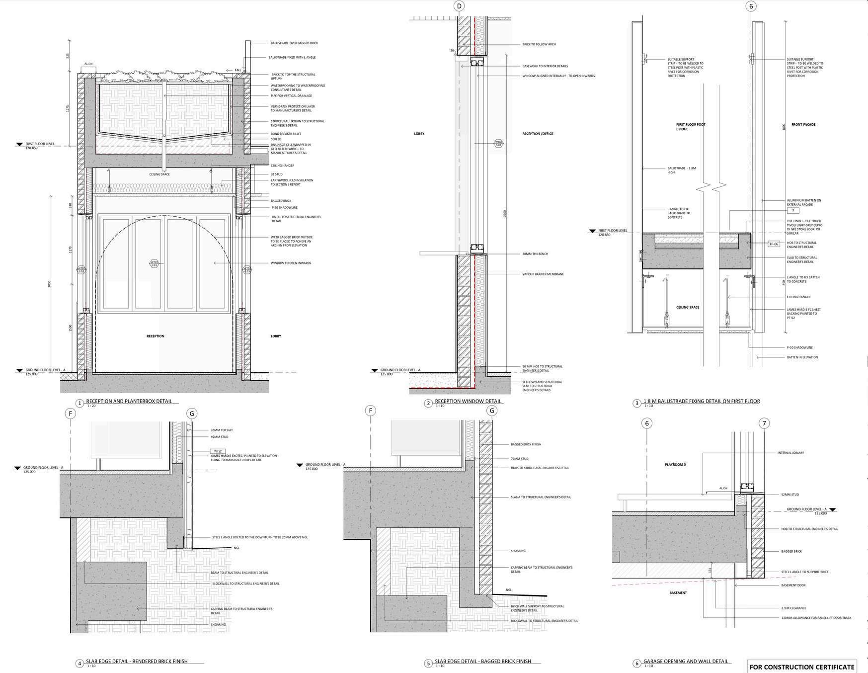
Child Care Centre - CC/CD



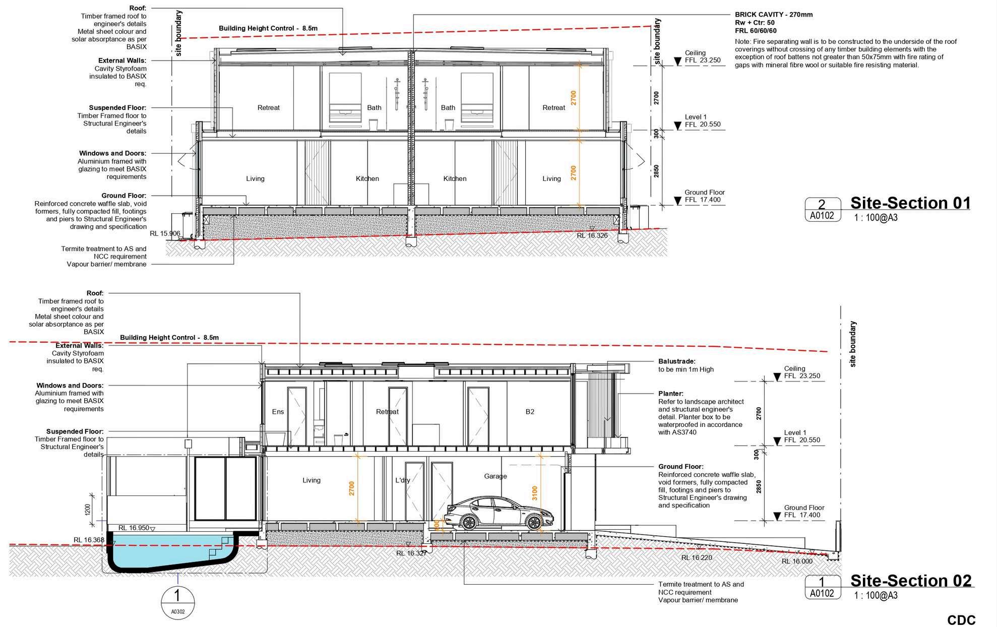
ARTMADE ARCHITECTS

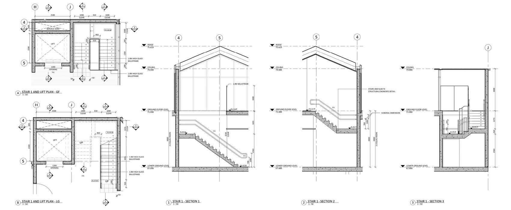
Child Care Centre - CC/CD






































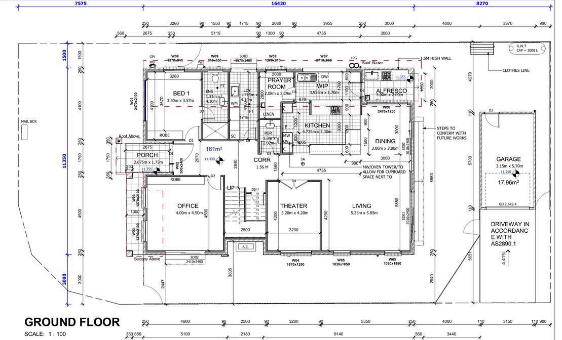
BAISS



BAISS
