PORTAFOLIO





![]()





Estudiante de Arquitectura de noveno semestre de la Universidad Nacional de Colombia, sede Medellín. Desde pequeño fui muy curioso y me he interesado por aprender de muchos temas, lo cual me llevó a la carrera de Arquitectura, en donde muchos temas confluyen. Esta curiosidad constante me ha llevado a interesarme por varios campos, desde urbanismo, el patrimonio e historia, el diseño de interiores, el pensamiento bioclimático, el paisajismo y ecología, entre muchos temas que exploré y que en el futuro iré aprendiendo y descubriendo.
mruab@unal.edu.co maruabe2002@gmail.com
+57 300 306 1546
Universidad Nacional Sede Medellín
Pregrado Arquitectura
2020 - Actualidad
I.E. Enrique Velez Escobar Bachiller Académico
2019
Idiomas
Ingles Intermedio (B1)
Español Nactivo











N D I C E
06 PAG 16 PAG
VIVIENDA

El espacio doméstico: La forma de la residencia Proyectos 8
VIVIENDA - EDIFICIO PÚBLICO

Conjuntos de vivienda social multifamiliar sostenible Proyectos 6
Centro de Bienestar El Volador
EDIFICIO PÚBLICO - REHABITACIÓN 28 PAG
EDIFICIO PÚBLICO

Edificio público y el espacio urbano
Proyectos 7

El proyecto arquitectónico como transformación Proyectos 9
Elementos producto de otras actividades académicas
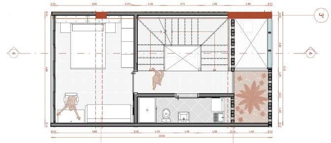
El espacio doméstico: La forma de la residencia
Edificio mixto comercial, dotacional y de vivienda, ubicado en el barrio Las Palmas, está conectado por un espacio público interno vinculado a las otras edificaciones de la manzana, allí se albergan actividades para participar, el proyecto busca a través de la modulación, adaptarse a los diferentes modos de vida que se contemplan en el proyecto, con esta misma modulación el edificio se escalona en diraccion a la que cae la montaña buscando resaltar la pendiente.
Compañeros proyecto Urbano:
GRUPO 1
Laura Angel Muñoz
Mateo Rua Bedoya
GRUPO 3
Sergio León González
Jean Carlo Quintero
GRUPO 2
Rebeca David Sánchez
Fabian E. Conde Mendoza
GRUPO 4
Hernan Garcia O.
Danny Palacio R.

Ámerica - Colombia
Continente - País

Colombia - Antioquia
País - Departamento

Antioquia - Medellín Departamento - Municipio

Nuestro proyecto en la manzana grupal
- La Candelaria Municipio - Comuna

-
- Barrio

Acceder y conectar con el interior de manzana
Extruir en torno al vacio Horadar y escalonar


Lavandería
Apto Tipo D
Apto Tipo B
Apto Tipo A
Apto Tipo C
Apto Tipo D
Acceso a Vivienda
Apto Tipo C Comercio
Fundación
Parqueadero y Zonas Técnicas

Aporticado en Concreto Losa Nervada





Aumento de homeoffice, además se piensa en la independización de poblacion joven

1 o 2 personas
1 O 2 PERSONAS.
Trabajo Remoto en casa
TRABAJO REMOTO EN CASA
Mueble multifuncional
MUEBLE MULTIFUNCIONAL.
MUEBLE DE ACTIVIDAD


MUEBLE DE SERVICIOS

IMAGINARIO



ALMACENAMIENTO, SOFACAMA Y MESA DESPLEGABLE MUEBLE DE SERVICIOS






En el barrio se observó gran poblacion de adultosmayores y personas con movilidad reducida

2 a 4 personas
2 A 4 PERSONAS.
Para adultos mayores o usuarios en sillas de ruedas
Espacios amplio y accesibles


CIRCULACIONES AMPLIAS Y APTAS MESA PLEGABLE








En la zona es muy comun los mal llamados Inquilinaros (Habitaciones alquiladas a corto plazo)

Para personas transitorias
Modulares y fucionables
Mueble jerarquizador
HABITACIONES COMBINABLES















Vivienda que crecera con la persona o familia que la ocupe
SEGUNDO PISO

1 a 5 personas
1 A 5 PERSONAS
Para jovenes
P A R A J Ó V E N E S .
Vivienda contene -
V I V I E N D A
C O N T E N E D O R Y
dor y progresiva
P R O G R E S I V A
Productiva
P R O D U C T I V A




INDEPENDIZAR COMO APARTAESTUDIO Y VENDIBLE ZONA PRODUCTIVA AMPLIABLE

IMAGINARIO

















Maqueta Urbana 1:500
Maqueta Programa y Arquitectonica 1:250


Conjuntos de vivienda social multifamiliar sostenible Proyectos 6
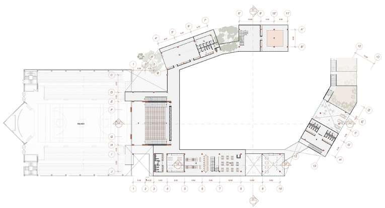
Habit(arte) es una pieza del plan urbano que busca mejorar la sostenibilidad del polígono conformado por las zonas Calle Nueva, Parques del Río, Alpujarra 1 y 2 de Medellín a partir de la Proyectación de una escuela de artes ubicada en la zona centro-oriental del campus, al costado de la avenida Carabobo, y que, a su vez busca paramentar la avenida mencionada y generar espacios urbanos sig nificativos. Esta escuela que se complementa del comercio y la vivienda, busca convertirse en un nodo cultural del sector, mediante la generación de espacios urbanos con dinámicas urbanas no solo a nivel de calle sino a niveles superiores mediante la cinta e inferiores mediante cráteres y plie gues, y también espacios arquitectónicos significativos al interior, mediante la generación de relaciones con el entorno y diversas atmosferas.
VIVIENDA - EDIFICIO PÚBLICO
Compañeros proyecto Urbano:
GRUPO 1
Juan Esteban Giraldo B.
GRUPO 3
N. Daniel Ramírez C.
Manuela Osorio C.
GRUPO 5
Paula A. Ramirez S.
Jose D. Botero G.
GRUPO 7
Laura Ángel M.
David Sánchez B.
GRUPO 9
Sara Ossa E.
GRUPO 11
Juan David Farelo H.
Alejandro Restrepo R.
GRUPO 2
Paula A. Ramirez S.
Jose D. Botero G.
GRUPO 4
Esteban Giraldo G.
GRUPO 6
Alejandro Gomez V.
Mateo Rua B.
GRUPO 8
Isabella Tobón P.
GRUPO 10
Natalia Varon A.
Santiago Gómez G.
Compañero: Alejandro Gómez Valencia


Ámerica - Colombia
Continente - País

Colombia - Antioquia
País - Departamento

Antioquia - Medellín Departamento - Municipio











Aumentar el porcentaje de sostenibilidad del polígono conformado por las zonas Calle Nueva, Parques del Río, Alpujarra 1 y 2 de Medellín de 45% (sostenibilidad media) al 75% (sostenibilidad alta) aproximadamente, a través de un proyecto de complementación de usos y ampliación de la morfología urbana, a través de una centralidad de caracter automotriz predominante, configurada por un campus paramentada por medio de una cinta y torres libres que incluye el comercio e implementa vivienda, educación, reciclaje y energías renovables, a la vez que se conecta con la estructura ecológica de la ciudad a través del parque de la Avenida 33 y Los Huesos.


Reducir fachada hacia la calle (Carabobo) y aumentar hacia el campus.

Disponer volumenes siguiendo la geometría, generando vacios y llenos.

Recortar las esquimas para más visuales y mejorar la geometria interna.

Contraponer los siguientes volumenes, alternando llenos y vacios.

IInternarnos hacia el campus y desplazar cubierta inclinando la fachada.

Continuar la secuencia y generar la conexión por cinta.

Enterrar el volumen y levan los bordes para aumentar dinamicas urbanas.

Pasando ya después por el proceso de estructura y lenguaje
Aporticada

Aporticada con columnas inclinadas


Elementos de Protección contra Radiación Solar
Balcones y vegetación
Aporticada con muros de contención

Balcones y vegetación

Conexión Escuela de Artes y Cinta de Espacio Público
Escuela de Artes
Escuela de Artes y Zonas Comerciales Soterradas
Parqueaderos



Maqueta General

Actividad en Primera Planta

Zoom a la intervención nuestra








Edificio público y el espacio urbano
Proyectos 7
Se plantea conectar el campus El Volador de la Universidad Nacional Sede Medellín con el Cerro el Volador, buscando romper el borde para mejorar la continuidad urbana mediante un espacio público elevando que se aprovecha de terrazas, un puente y la topografía. Además se adosa al coliseo complementándolo y dotando al sitio de actividades que brindan bienestar y de espacion de reunion y espacimiento para la comunidad estudiantil y aledaña, también busca que con la atracción de población se logre mejorar la relación de la universidad con este borde tan abandonado.
EDIFICIO PÚBLICO
Compañera: Laura Angel Muñoz

Ámerica - Colombia
Continente - País





Colombia - Antioquia
País - Departamento

Antioquia - Medellín Departamento - Municipio

- Robledo
Municipio - Comuna

Comuna - Barrio

Situación Actual Claustro adosado al Coliseo Quebrarlo, perforarlo y generar patios
Postal Condicion de la u


















Sección S1

Sección S2

Imaginarios



El proyecto arquitectónico como transformación
Intervención que busca renovar el Edificio de La Compañía, esto lo hace dándole al edificio un frente sobre la Avenida El Poblado, ya que actualmente se aisla de esta, esto mediante un volumen permeable con un programa cultural - educativo que busca reactivar el borde que a su vez sube por el ala norte de la torre y gtenerando una tensión en la terraza con un rooftop bar con espacios de esparcimiento que permite así que la población general tenga acceso a las privilegiadas visuales. Además sobre el edificio de La Compañía que se conserva se busca mejorar su relación con el clima, implementando un juego de patios y vacios en altura en toda la torre y una chi menea solar aprovechando el vacío con el que cuenta el edificio, asgturando así una ventilación activa en la edificación
EDIFICIO PÚBLICO - REHABITACIÓN
Compañero: David Sánchez Blandón

Ámerica - Colombia
Continente - País

Colombia - Antioquia
País - Departamento

Antioquia - Medellín Departamento - Municipio




Municipio - Comuna








Volumenes que conecten y paramenten con Av. Pobalado
Actual

Llevar el escalonamiento a fachada y sección del volumen

Continuar ejes y generar vacios


Llevar el vacio a la altura e implementar chimenea solar

Democratizar el edificio como espacio público

Recorrido Público en el Edificio












Recorrido Público en el Edificio






Vacios en el Edificio











Planta Urbana















Sección Transversal


Sección Longitudinal


Sección Transversal




Esta division contiene:
Milimetro dorado. Infografía de mi creacion producto de un trabajo academico en la creación de una revista para la materia de Historia y Teoría 2.
EDIFICIO PÚBLICO - REHABITACIÓN


La revista toma su nombre del prisma el cual al recibir un rayo de luz la refracta y muestra el espectro arcoiris que compone la luz visible, de esta idea se le asigna un color a cada artículo en relación al tema que aborda, dandole un orden cromarico a la revista. Y adicionandole al final el blanco y negro como absolutos de la suma de colores, en el cymk y en el rgb respectivamente. Cada artículo e infogtrafía debía tener su pregunta problematizadora, resumen, conceptos claves y bibliogtrafía
Es una infografia que aborda los decorados y sus componentes del estilo rococó en una revista que se desarrollaba por equipos, en la cual cada integrante debía desarrollar un articulo escrito y otro infografico abordado temas al rededor del renaciomiento, el manierismo, barroco, rococó neoclasicismo y romantisismos, estos en torno a la arquitectura que dichos estilos/periodos fueron abordados en la materia de Historia y Teoría 2.



