P
O
![]()
O
T F O L I O
O L I O

Für die Träume, die uns Flügel verleihen.

+49 1575 433 0285
mohamedprince.abdelalim@outlook.com Linkedin: linkedin.com/in/mrp9799/
Master of Arts (M.A.) in Architektur DIA - Hochschule Anhalt
Studienfach Entwurf, Computational Design, BIM, KI
Bachelor of Science (B.SC.) in Architektur - Ain Shams Universität
Abschlussarbeit Hochwasserresistentes Krankenhaus in Charleston, USA.
Amerikaner Diploma (Gymnasium) - Al Oruba Internationale Schule Aktuell
Abschlussnote A+ | Rang 3. Platz im Abschulssjahrgang.
BERUFSERFAHRUNG
Visualisierer bei Core Studios
• Erstellung von fotorealistischen 3D-Renderings.
• Entwerfen Fassaden, Plätze, und Grünflächen.
• Koordination mit Visualisierern im Team
Projekt Architekt bei Eco Arch Consultants
• Erstellung von Entwurfspräsentationen, Bauzeichnungen, und Leistungsverzeichnissen.
• Koordination mit TGA- und Tragwerksplanern zur Erstellung des Ausschreibungspakets.
• Teilnahme an Besprechungen mit Bauherrn, Auftragnehmern, und Anbietern.
• Baustellenbesuche zur Überprüfung der Arbeiten der Auftragnehmer.
Entwurfsarchitekt bei Mohamed Talaat Architects (MTA)
• Erstellung von Entwurfspräsentationen und Teilnahme an besprechungen mit Bauherrn.
• Abstimmung der Entwürfe mit der Technikabteilung des Teams.
WETTBEWERBE
Zero Energy Residential Unit (ZERU) Internationaler Studentenwettbewerb
Mitarbeitete in einem interdisziplinären Team. Entwarf Grundrisse, recherchierte Baukonstruktionen und Materialien, schätzte in Zusammenarbeit mit Elektrotechnik-Kollege.
ZERTIFIKATE
EDAC Zertifikat
Eine Prüfung, die vom Center for Health Design in den USA angeboten wird und bescheinigt, dass der Prüfling mit dem Konzept des evidenzbasierten Designs vertraut ist und dieses zur Gestaltung von Gesundheitseinrichtungen anwenden kann.
KENNTNISSE
Software
Revit AutoCAD
3DS Max Photoshop
Sprachen
Deutsch - B1, und wird noch verbessert Englisch - C1 (IELTS 8.0) Arabisch - Muttersprachler
9 Monate
Bei Eco Arch begann ich meine Arbeit an diesem Projekt in der Ausführungsplanung Phase. Zunächst war ich mit der Neugestaltung der Fassade und der Erstellung von Renderings beauftragt. Anschließend arbeitete ich an der Koordination mit den Ingenieurbereichen wie TGA und Tragwerksplanern, um die finalen Zeichnungen und das Leistungsverzeichnis für die Ausschreibung abzuschließen.
Hauptaufgaben waren:
Fassadendesign und Rendering Ausschreibungspaket Erstellung Koordination mit TGA




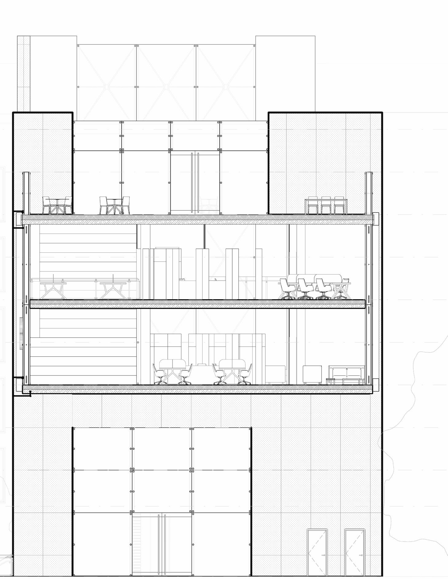
Haupteingang Fassade
Noteingang Fassade


























































































Diese Bibliothek ist als ein neue soziale und lehrreiche Ort konziptiert. Sie kombiniert traditionelle Bibliotheksräume mit innovativen Räumen und Aktivitäten. Die Bibliothek soll ein errinerungwürdiger, unterhaltsamer und offener raum für jeder der Moabiter Gemeinschaft sein.
Moabit ist ein alter und bedeutender Stadtteil von Berlin. Es handelt sich hauptsächlich um ein Wohngebiet, das eine große Migrantengemeinschaft beherbergt.




Lageplan

Schwarzplan

Nutzungsplan

Grünplan
HOODNEIGHBORBAZAAR
LIBRARY COMMUNITY CENTER
JUNGEND PLATZ

SPITIRUAL SPACE SPIRITUALGARDEN
LOWERING THE BRIDGE OUTDOOR SPACE
Formfindung
FRAMINGTHEVIEW
SPACESCONNECTING THE ATRIUM ENTRANCE
STAGERRING THE LEVELS

Stock

Westfassade

Nordfassade





Explodierte Axo
Ich erhielt die Ausführungsplanung vom Auftragnehmer und anschließend ein vollständiges Ausschreibungspaket zusammen mit dem Leistungsverzeichnis lieferte. Ich unterstützte den Auftragnehmer weiterhin, indem ich auf Anfragen zur Klärung (RFI) antwortete und Werkstattzeichnungen sowie Musterfreigaben uberprüfte.
Hauptaufgaben waren:
• Entwurf der Kliniken
• Bauzeichnungen
• Leistungsverzeichnis
• Koordination mit der Auftragnehmer

















































































Kliniken und Intesivstation Grundriss
DECONTAMINATION SHOWER
Ende der Projekte.
Empfehlungsscreiben für Mohamed Abdelalim als Praktikum, Junior Architekt und BIM-Koordinator


gemeinsamen Datenumgebung, nämlich einer „distributed Common Data Environment“ laut ISO 19650. Die

, M.Arch. Marco Mondello (MBA)

Juanfra García Guillén Reseracher
DIA Studio Master Teacher Hochschule Anhalt
Anhalt University of Applied Science
Fachbereich 3 - Architektur, Facility Management und Geoinformatik
Building Envelope Research Group (berg) Seminarplatz 2a
06846 Dessau I Germany
Website: www.hs-anhalt.de/berg
Tel: +49 (0) 17677410478
Email: juan.garcia-guillen@hs-anhalt.de
To whom it may concern,
I had the opportunity to work with Mohamed Prince Abdelhalim for four months during the winter semester of 2023/24, in the course "Master Studio: Computational Architectural Intelligence," which I taught at DIA (Dessau International Architecture - Anhalt University of Applied Sciences). Throughout the course, we focused on several key areas, including:
• Advanced Computational Design: Grasshopper for Rhino 3D
• Artificial Intelligence: shifting paradigms in architecture
• Exploring new methodologies: integrating AI and Computational Design
Prince showed commendable dedication and a solid grasp of complex subjects. He went beyond the basic course expectations by taking part in additional research and contributing meaningfully to class discussions. His insights greatly contributed to the positive results of his own project and the course as whole. Furthermore, Prince's communication skills, responsibility, and organization made him an active participant during the semester.
I am confident that Prince will make a strong addition to any academic or professional environment he chooses to pursue. His enthusiasm for learning, commitment to his work, and ability to collaborate effectively distinguish him as a competent professional.
Should you require further information, feel free to reach out to me at the email address provided above.
Sincerely,
Juanfra García Guillén

Dessau
18th of October, 2024

