Portfolio

![]()

ST24 Tower
pg. 3 - 6
Park Edge Development
pg. 7 - 10
Vineyard Community Center
pg. 11 - 14
SF23 Towers
pg. 15 - 18
Photography
pg. 19 - 20
Curriculum Vitae
pg. 21 - 22
April 2024
Directing Organization: Earthquake Engineering Research Institute
Typology: High-Rise Mixed Use Development
Location: Downtown Seattle, WA
Objective:
Students design a 19-story tall tower with unique elevation and plan constraints Building form design criteria required two broad cantilever steps at increasing elevations Building design also needed to conceal a structural system capable of resisting high seismic loads while still maximizing rentable floor area.
Approach:
The tower features a clean facade design inspired by the lines and colors of new age design prominent in the space needle and projects of the 2040 district. Seismic resisting shell sits at the exterior of the tower footprint and intersects the volumes as the building height and area increase. Building facade promotes high-performance design through solar shade fins and mesh solar shades for energy efficiency as well as rainwater harvesting


Section III
Floors 13-19

Section II
Floors 8-13

Section I
Floors 1-8

Wire mesh solar shades rain water harvesters
Angled solar shade fins Naturally controlled indoor environment


February 2024
Directing Organization: University of Utah Real Estate Challenge
Typology: Mixed Use Urban Development
Location: Ballpark District, Salt Lake City, UT
Objective:
University students from across the state work in multi-disciplinary teams to design a proposal for an urban development within an identified region. The proposal is accompanied with calculations for costs and financial projections Winning proposals are selected as being most financially feasible and maximizing attractive rented space.
Approach:
Park Edge was designed to emphasize sustainability for building owners and users The site location was chosen specifically to take advantage of the proximity to the local light rail transit station and the resulting pedestrian traffic to the local ballpark fairgrounds. This allowed for a unique corridor to drive movement along the commercial spaces and enhance desirability in the residential units. The residential volumes are formed in such a way to maximize energy performance from solar exposure





December 2023
Directing Organization: CFM 333 - Sustainable Design & Architecture
Typology: Civic Building
Location: Vineyard, UT
Objective:
Students in the sustainable design studio work through the design process starting with meeting with stakeholders, creating a charrette and building a program for a local project Designs must meet local users and stakeholders needs for a community center featuring an ample sports complex, administrative offices, and spaces for fostering community learning and gathering. Studio criteria required designs to adopt high-performance or other sustainable design principles
Approach:
The Vineyard Community Center design celebrates the rich industrial and agricultural heritage of the area through the prominent roof slopes and elevation style akin to the Geneva company steel mill Design adheres to the wide angle formed by the intersection of roads at the site allowing three building sections to each skew at a unique angle. The building features several angles roof monitors and clerestory windows for natural lighting and thermal regulation while the sports complex includes an evaporative cooling tower for environmental control.




Low-angle sunlight through clerestory windows and roof monitors
Functioning indoor slide playfully reminiscent of mill feed chutes

Natural grasses in planters celebrate agriculture in the wetland area
April 2023
Directing Organization: Earthquake Engineering Research Institute
Typology: High-Rise Mixed Use Development
Location: San Francisco, CA
Objective:
Students design a 19-story tall tower with unique plan and elevation constraints. Building form design criteria required two identical towers connected periodically by sky-bridges at varying elevations. Building design also needed to conceal a structural system capable of resisting high seismic loads while still maximizing rentable floor area
Approach:
The tower features a classic art deco facade design inspired by the lines and patterns of golden age design prominent in the Golden Gate Bridge. Seismic resisting braces and frames line the exterior of each tower and are rigidly braced periodically at each abutting sky-bridge The west tower features spaces designed for commercial occupants while the east tower houses residential spaces and light retail spaces occupy each sky-bridge.


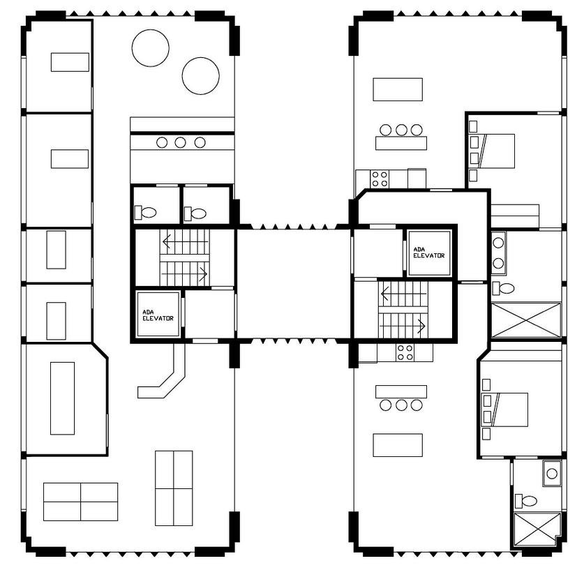
Sky-Bridge Story Plan


Circulation corridors centered between towers and bridges

As a student of design, I enjoy seeking thoughtful composition through a camera lens My favorite subjects to capture have been thoughtfully designed structures, but like many who have come before me, I have developed a fond attraction to the work of Frank Lloyd Wright.
Among other frames that I’ve captured, none have informed my opinion on design greater than what came from my visit to the Taliesin in Spring Green, WI. As my most recent outing, I include those as I consider the intimate details of project.








Sep 2019 - Apr 2024
Dec 2022 - Jan 2024
Jan 2022 - Present
Sep 2023 - April 2024
Apr 2022 - Apr 2023
Bachelor in Civil Engineering
Brigham Young University
Architecture Association President
Brigham Young University
Structural Project Engineer
Acute Engineering, INC Orem, Utah
Teaching Assistant
Sustainable Design and Architecture
Brigham Young University
Program Research Assistant
Bachelor of Architectural Engineering
Brigham Young University