PORTFOLIO

Page 1

+966567784939

+971503684309

Academic Work

• Eco Ajloun Village

• Gated Compound

• Hospital

Aref Sadeq Design Consultants

• Residential Villa

• Residential Villa

• Banquet Hall

• Gym

STS

• AL-MURJAN HOSPITAL

• AL-MOGHRABI HOSPITAL

Freelance

• 3D Shoots

• Warehouse

Content

Academic Work

Eco Ajloun Village
Gated Compound
Hospital

ECO AJLOUN VILLAGE

SUSTAINABLE GREEN TOURISM RESORT

Graduation Project

Project Concept :

The resort was chosen in the embrace of nature (the forests of Ajlun), the kingdoms of the Romans, to restore the vitality of people and to get away from the rhythm and routine in the city life and escape to the forests , the elements of nature and a healthy climate which is free of pollution, where the site is characterized by perennial trees and explosive springs And breathtaking views, take the toaurist to a world away from chaos and congestion and pollution. Therefore, the design approach will be green and sustainable for the environment friendly (sustainable green resort). Therefore, the chalets will be distributed along with the topography lines,and the trees will be used as part of the design, so that the beautiful views of the site will be realized and the culture of the area will be the basis for preparing the exterior facades to reflect on the interior spaces and benefit from the land for agriculture to achieve the environment friendly.

Location :

Ajloun – Ajloun- Jordan

Site Area : 57,000

��2

Base Map :

Master Plan :

3D Shoots :

Section :

Elevation :

Visitor Center :
Plan : Structure plan :

Structure plan :

Chalets Type I :

Plan :

3D Shoots :

Section :

Elevation :

Chalets Type II :

Plan :

3D Shoots :

Structure plan :

Section :

Elevation :

Chalets Type III :

Plan :

3D Shoots :

Section :

Structure plan :

Elevation :

: Elevation : 3D Shoots : SPA : Plan :
Structure plan : Section

Infrastructure :

Structure Types:

Waffle Slab

Wastewater Reuse

Parking Plan:

Two-Way Slab

Bathroom :

Restaurant :

3D shoots :

3D Shoots :

Gated Compound

Project

Project Brief :

Population 1000.

Average number of family members (5 members )

Number of family's ( 200 family)

Location :

Abdoun , Amman , Jordan

Site Area : 66,600

��
2
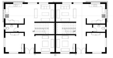
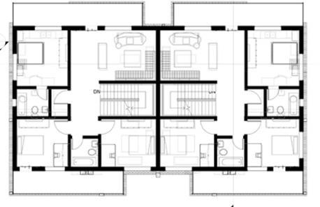
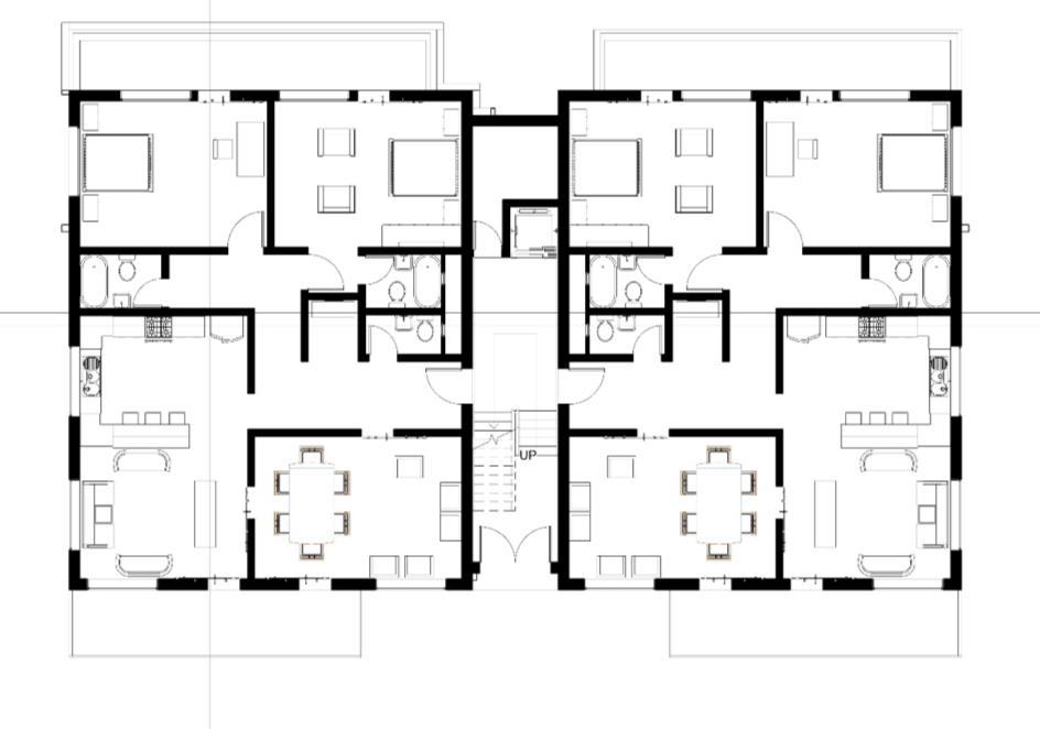
Master plan :
Attached villas
Apartments Villas

Apartment plan :

Plan :

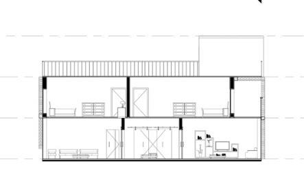
Section : Elevation
3D shoots Villa Elevation 3D shoots Plan : Section : Ground floor First floor Attached Villa Plan : Section : Elevation 3D shoots Ground floor First floor

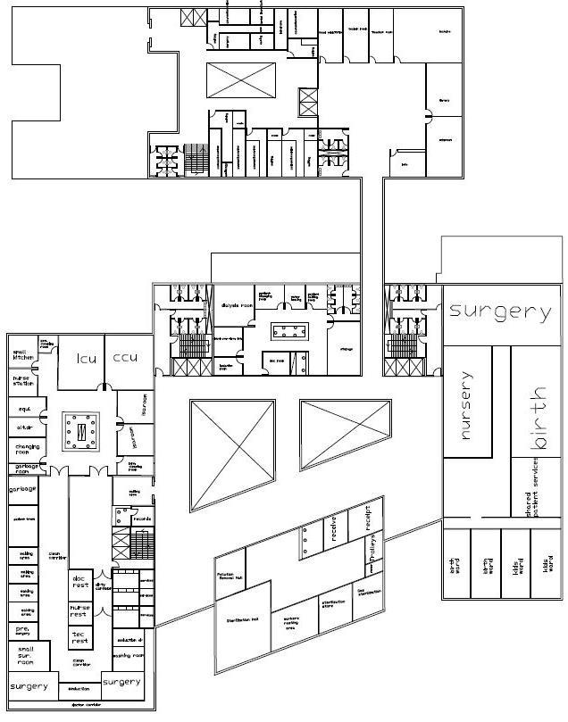
General Hospital

Project

Project Brief :

Hospital in the city of Salt in Jordan, capacity of 100 beds,

sections :

Department of General Surgery (30 beds)

Department of Internal Medicine (30 beds)

Obstetrics and Gynecology (20 beds)

Children's section (20 beds)

Location :

Al-Salt - Jordan

Site Area : 35,000

Project Area : 17,500

��2
��2

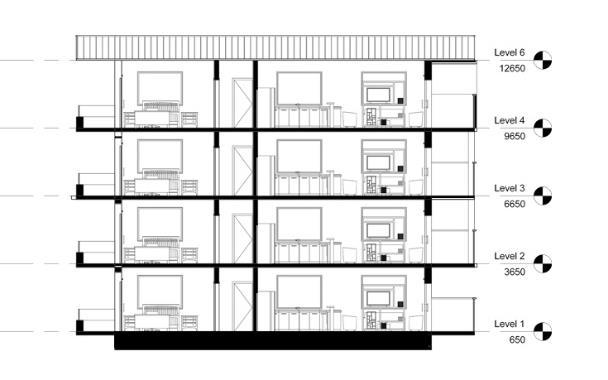
Section : Vertical Circulation :

Master Plan :

Basement

Ground floor

Plans

First Floor

Second Floor

3D Shoots :

:
Elevation

Aref Sadeq Design Consultants

• Residential Villa

• Residential Villa

• Banquet Hall

• Gym

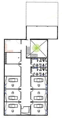
Residential Villa :

Ground floor

First floor

3D Shoots :

Ground floor

First floor Residential Villa :

Banquet Hall : Plan

Elevation

Toilet Details :

Section :
Walls & Stairs Details :

GYM Plan Layout

GYM :

STS

AL-MURJAN HOSPITAL

AL-MOGHRABI HOSPITAL

AL-MURJAN HOSPITAL:

Plan
SINGLE PATIENT ROOM:

AL-MOGHRABI HOSPITAL

WET AREA DETAILS:
Freelance
• 3D Shoots • Warehouse
3D Shoots :
Warehouse : plan
Elevation
+966567784939 +971503684309

Turn static files into dynamic content formats.

Create a flipbook
Issuu converts static files into: digital portfolios, online yearbooks, online catalogs, digital photo albums and more. Sign up and create your flipbook.