Portfolio Design d’intérieur

Page 1


PORTFOLIO

Architecture / Design d’intérieur

01

03

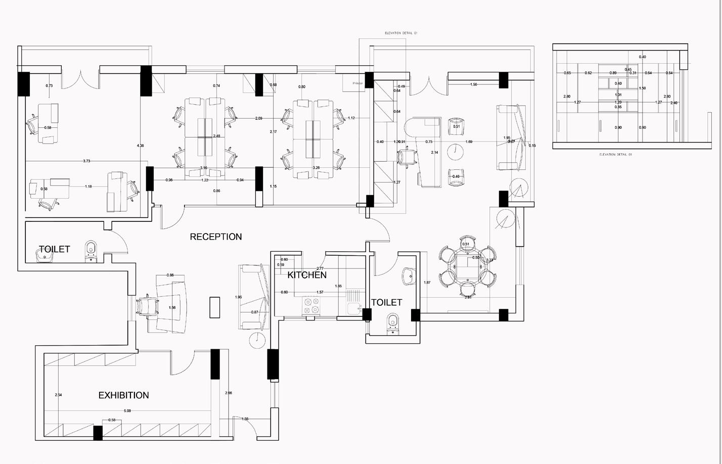
Le projet concerne la conception et l’aménagement d’un espace de bureaux de 210 m². L’objectif est d’optimiser le confort des collaborateurs tout en créant une ambiance élégante et dynamique. La palette de couleurs vert olive, gris foncé et gris clair apporte une atmosphère à la fois apaisante et sophistiquée, idéale pour un environnement de travail productif.

Aménagement d’un espace de bureaux 210 m²

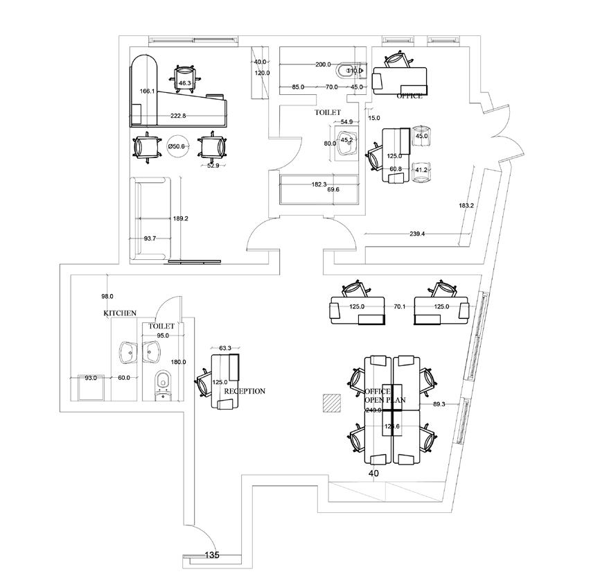
Aménagement d’un espace de bureaux 135 m²

Ce projet concerne l’aménagement d’un espace de bureaux de 135 m², où l’optimisation de l’espace et le confort des utilisateurs sont au cœur de la conception. L’objectif est de créer un environnement fonctionnel, moderne et agréable, favorisant à la fois la concentration et les échanges professionnels.

02

Ces moodboards illustrent une approche moderne et naturelle, où les teintes pastel comme le beige et le gris créent une ambiance douce et apaisante. La végétation s’intègre harmonieusement, apportant fraîcheur et équilibre aux espaces. Les matériaux aux textures authentiques renforcent cette atmosphère sereine, mêlant minimalisme et nature avec élégance.

Moodboards et inspirations

Aménagement d’un Appartement Boho Chic 110 m²

Nichée sur la magnifique côte du Nord, cette résidence de 110 m² incarne l’essence du boho chic, un style à la fois naturel, chaleureux et raffiné. L’harmonie des matériaux et des couleurs crée une atmosphère apaisante et sophistiquée, idéale pour un cadre de vie confortable et inspirant.

04

Présentation

Le projet concerne la conception et l’aménagement d’un espace de bureaux de 210 m². L’objectif est d’optimiser le confort des collaborateurs tout en créant une ambiance élégante et dynamique. La palette de couleurs vert olive, gris foncé et gris clair apporte une atmosphère à la fois apaisante et sophistiquée, idéale pour un environnement de travail productif.

Style

La palette de couleurs – vert olive, gris foncé et gris clair – apporte une atmosphère à la fois apaisante et sophistiquée, idéale pour un cadre de travail équilibré. Ces nuances sont mises en valeur par l’intégration du bois, qui apporte une touche chaleureuse et naturelle à l’espace. Utilisé pour le mobilier, les revêtements ou certains éléments décoratifs, ce matériau crée un contraste subtil avec les tonalités froides et renforce l’élégance du design.

logiciels utilisés

Autocad / 3DS Max / Corona / Adobe Photoshop

Aménagement d’un espace de bureaux moderne

Présentation

Ce projet concerne l’aménagement d’un espace de bureaux de 135 m², où l’optimisation de l’espace et le confort des utilisateurs sont au cœur de la conception. L’objectif est de créer un environnement fonctionnel, moderne et agréable, favorisant à la fois la concentration et les échanges professionnels.

Style

La palette de couleurs – bleu, gris et beige – instaure une ambiance à la fois apaisante et raffinée. Le bleu, synonyme de sérénité et de concentration, est associé au gris pour une touche contemporaine et au beige pour un rendu plus chaleureux. Ces nuances sont mises en valeur par l’intégration du bois, qui apporte une touche naturelle et élégante à l’ensemble.

Logiciels utilisés

Autocad / SketchUp / Enscape / Adobe Photoshop

Ce moodboard reflète un design moderne et épuré, mettant en avant des espaces fonctionnels et équilibrés.

Les tons gris clair et beige doux instaurent une ambiance calme et sophistiquée, tandis que l’utilisation de matériaux lisses et de formes simples renforce une esthétique minimaliste et contemporaine.

Inspiré par la nature, ce moodboard met en avant une palette organique et apaisante, où les nuances de vert doux et de beige se marient harmonieusement.

La végétation joue un rôle clé, apportant fraîcheur et vitalité aux espaces, tandis que les matériaux naturels comme le bois et le lin renforcent cette sensation de bien-être.

Élégance Naturelle Pastel Chic

Ce dernier moodboard allie textures authentiques et design moderne, en mettant en avant des matériaux tels que le bois brut, la pierre et le coton.

La combinaison des teintes neutres et terreuses évoque une atmosphère chaleureuse et intemporelle, où chaque élément contribue à une esthétique équilibrée et apaisante.

Les couleurs pastel sont au cœur de cette composition, créant une ambiance lumineuse et délicate. Des teintes subtiles de rose poudré, bleu gris et sable insufflent une touche de douceur et de raffinement.

Ce style s’inspire des intérieurs scandinaves et contemporains, jouant sur la simplicité et la luminosité pour un espace accueillant.

Appartement

Présentation

Nichée sur la magnifique côte du Nord, cette résidence de 110 m² incarne l’essence du boho chic, un style à la fois naturel, chaleureux et raffiné. L’harmonie des matériaux et des couleurs crée une atmosphère apaisante et sophistiquée, idéale pour un cadre de vie confortable et inspirant.

Style

Le bois, élément central du design, apporte une touche d’authenticité et de convivialité. Il se décline à travers des meubles aux lignes épurées, des poutres apparentes et des finitions texturées qui subliment l’espace. La palette de couleurs, dominée par des tons marron, beige et gris, enveloppe chaque pièce d’une douceur naturelle et intemporelle.

logiciels utilisés

Autocad / 3DS Max / Corona / Adobe Photoshop

Turn static files into dynamic content formats.

Create a flipbook
Issuu converts static files into: digital portfolios, online yearbooks, online catalogs, digital photo albums and more. Sign up and create your flipbook.