ACADEMIC PORTFOLIO



Academic Work
Architecture
Dignity in the Dark: Architecture for the Unsheltered
Technology Elective: The Architecture of Hogwarts
Design in a Global Context: Center for Lagoon Ecology and History
Community Studies: Downtown Republic Revitalization
Design Integration: Route 66 Museum
Graphic and Digital Design
Personal Brand Design
Modular Type
Jose Loco’s Brand Guide


Architecture Projects

Dignity in the Dark: Architecture for the Unsheltered
Our users have spent the day walking in a city that is often inhospitable to pedestrians, and they are looking for a warm meal and a place to rest. As it is illegal for them to lay their heads down in the city’s public spaces, many are drawn to the nightly respite afforded for the unsheltered at the REVIVE 66 Campgrounds on the west end of Springfield, Missouri. Donations here cover the nightly cost of a small teardrop camper with privacy and comfortable bedding, protected from the elements.
Just as the subtle glow and reflections in a snowy Thomas Kinkade painting help uplift the hopeful souls of weary travelers, so too does the play of light, shadow, color and texture in this small cottage. Providing a warm and safe place to rest, even on the coldest of nights, the structure’s form welcomes, lifts, and holds its visitors.



As a semester-long studio project, we weren’t finished after the initial design phase of the cottage. We then began determining final materials including a color study to create a soothing and uplifting atmosphere. Creating construction documents, we also made a 3D model of the framing plan to better understand the construction process. After running into material shortages and long lead times, we took the opportunity to design and build our own windows to ensure that the project finished on schedule. As well as providing us the opportunity to accurately carry out our vision of providing a subtle glow with the cottage.









Technology Elective: The Architecture of Hogwarts
We developed virtual-reality videos for kids confined in hospital settings to help them escape their environment for 5 minutes. The goal of the project was to develop immersive architectural VR experiences exploring well-known buildings and spaces.
My video focused on fictional architecture with the Hogwarts Castle from the Harry Potter movie franchise. In the video, you arrive at Hogwarts to take the boats across the lake and enter the Great Hall. Throughout the experience, learning about the set design to create a magical world that seems real and the real-world influences that inspired the designers.
Link to the Youtube Video: https://youtu.be/938FtE4j2F8




Design in a Global Context: Center for Lagoon Ecology and
History
Located outside the main islands of Venice, on Sant’Erasmo Island. An hour vaporetto ride away from the main island, Sant’Erasmo has a serene and peaceful ambiance. It has salt marsh fringes and shore crustaceans, while the interior has many neat vegetable farms. The building responds and complements the site similar to the Venice main island.
The program features two main parts, research and exhibition. The research contains artifacts of the nearby Lazzaretto Nuovo for researchers to better understand the lagoon’s history. The exhibition spaces featuring a rotation of these artifacts, brings tourists outside of the main island and into the lagoon. Giving tourists a fuller understanding of Venetian history and culture.


















Community Studies: Downtown Republic Revitalization Study
As a team project, we partnered with the City of Republic in Missouri to conduct a revitalization study of their historic downtown. Through city workshops, we meet with local residents and downtown business owners to conduct interviews and group exercises to gather insights and identify key opportunities.
Our plan for Republic’s Historic Downtown includes a series of phased interventions. Each intervention aims to “promote new private investment to revert Main Street back to a thriving live, work, play, district that reflects Republic’s small-town identity” - a quote generated from the first community workshop. To achieve the small-town identity that once defined Main St., establishing a space that promotes community engagement was of utmost importance. By enhancing Main St. to increase accessibility, safety, and activity, Republic’s downtown can foster an environment conducive for community engagement.




PHASE ONE
• Improve safety at I-174/Main St. intersection Widen Main St. sidewalks to enhance accessibility, safety, and activity
• Extend trail network through Main St. Establish Downtown identity with new signage
• Restore Downtown facades
PHASE TWO
• Infill street to sidewalk height for a seamless public space
• Eliminate parking on Main St.
• Border traffic with guardrails and planters for beauty and drainage
• Define adaptable spaces for events like vendors or pop-up stands
PHASE THREE
• Extend Downtown area past railroad
• Establish a zoning district to create a cohesive master plan
• Add new building developments that complement the old but do not copy
Improved vehicular and pedestrian access to Main St.

Beautify Main St. as an extension of an existing park network

Create an activated public space for the community



Existing Characteristics
Phase One upgrades Main Street with wider sidewalks, corner bump-outs for safety and accessibility, and replaces angled parking with parallel parking or flexible activity spaces. Public seating, garden beds, and facade guidelines enhance vibrancy and support building restoration.

Revitalization Facade Guidelines
• 100% masonry construction (brick, stone, concrete masonry units (CMU), stucco, EIFS)
• At least 3 architectural elements from below:
• Any restoration of original characteristics
• Decorative cornice
• Decorative horizontal and/or vertical element
• Arched windows
• Window hoods
• Awnings/Canopy with removal of posts
• 30% Storefront transparent
• Other architectural decorative features
• Establish a property-maintenance code, 2018 IPMC
Proposed Revitalized Existing Elevations





Phase Two raises the street to sidewalk level, eliminates parking, and narrows Main Street to 24 feet, promoting slower traffic and discouraging semi-trucks from speeding through downtown. Guardrails enclose flexible activity spaces for vendors, pop-up stands, street art, and community events, enhancing the area’s use and safety.




Existing Characteristics
Phase Three establishes a Historic Downtown Expansion and Zoning District to support growth, aligning with Republic’s development. A zoning overlay will clarify guidelines for new and renovated buildings, ensuring they integrate with downtown’s character and vision for a cohesive master plan.

Design Guidelines
The design guidelines aim to ensure that new construction respects and harmonizes with the existing streetscape. Drawing inspiration from the characteristics and styles of existing buildings, the guidelines establish the following required elements:
• 100% masonry construction of the follow materials:

• At least 3 architectural elements from below:
• Decorative cornice
• Decorative horizontal and/or vertical element
• Arched windows
• Window hoods
• Awnings/Canopy with no posts
• 30% Storefront transparent
• Other architectural decorative features
• No mechanical equipment visible from pedestrian view
• Establish a property-maintenance code, 2018 IPMC
Proposed New Construction Elevations




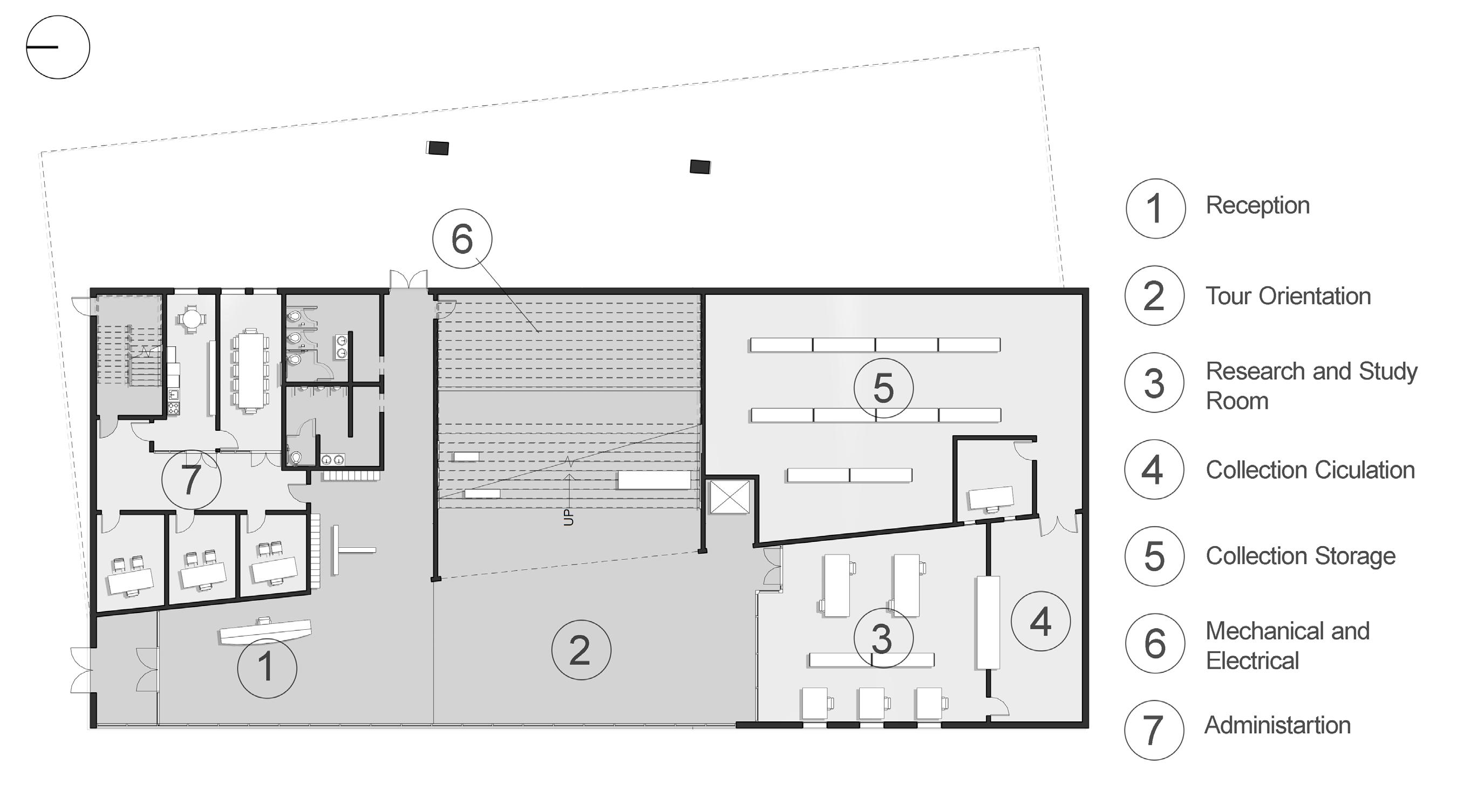
Design Integration: Route 66 Museum
The Route 66 Museum located in Springfield, Missouri, where the spirit of motion meets the art of engineering. From the development of the automobile to the evolution of highways, the engineering behind Route 66 transformed the way Americans traveled and connected with each other. As you step through the site and building, the users embark on a journey that explores the remarkable innovation and ingenuity that helped shape one of the most iconic roads in American history.
The engineering of a building, like the engineering of a car, relies on seamless integration of multiple systems to provide a cohesive design. The structural system provides the framework to support the building, like a car’s chassis. The mechanical system regulate temperature and airflow, mirroring a car radiator. The plumbing system is responsible for the distribution of water can be compared to a car’s fluid system.







Looking Under the Hood
Exposed Engineering








Graphic & Digital Design Projects
Color Primary- Primary-
Morgan Gullette Designer
Color Secondary-
morgan gullette designer designer
morgan gullette
morgan gullette morgan gullette
Icon Text
B/W Primary-
B/W Secondary-
morgan gullette designer designer
morgan gullette morgan gullette morgan gullette
Icon Text
Personal Brand Design:
Logo Design and Panel
Adobe Illustrator
For this project, a personal logo design and logo panel was developed.
The personal logo design centers on integrating the my initials of ‘m’ and ‘g’ into a cohesive symbol. The letters are lowercase for a modern style and the last stem of the ‘m’ seamlessly connecting into the tail of the ‘g.’ The chosen color palette of red, black, and white reflects personal significance, symbolizing elements that have been represented throughout my life. The logo panel highlights the different use of the logo, along with the chosen colors, and different representations of the logo.

Modular Type: Font and Poster
Adobe Illustrator and Glyphs
For this project, a typeface that can be used in Adobe products along with a poster to advertise the typeface was developed.
The modular typeface was designed using a grid system, simplifying the letters into a basic, “blocked” shapes that emphasize their geometric form. The poster displays this design approach by incorporating a blueprint-inspired aesthetic, reflecting the grid-based process behind the typeface.

Brand Guide
Jose Loco’s Brand Guide: Logo Design, Assets, and Brand Guide
Adobe Illustrator and InDesign
For this project, we developed a new brand guide was created including: logo designs, color & type, and assets.
Jose Loco’s is a Mexican restaurant located in Springfield, Missouri. With their brand mission in mind, a new logo was developed centered on the emblem of silhouette of the owner’s wife with a rose in her hair, a reference to the old logo, centered in a azulejo tile. Along with the new logo, a vibrant color palette and playful typeface was used connecting back to Mexican heritage. A series of assets helps create a cohesive brand with a new advertisement poster, social media posts, menu design, and more.
Link to full brand guide: https://issuu.com/morgan_gullette/docs/gullette-jose_loco_brand_guide

Jose Loco’ s
primary logo, seen the previous page, is designated for use across official documents.
standard logo, the medallion emblem logo positioned at the top, is the choice for a diverse of placements, from menus and t-shirt designs take-out containers and website banners.
Should the standard present legibility challenges the secondary options come into
With vertical spacing constraints, the icon logo situated in the middle is preferred alternative. Oppositely, for situations horizontal spacing, name logo positioned the bottom is the preferred substitution.
Restaurant
Lunch Specials
1.
2.
3.
4.
5.
6.
7.
8.
10.
11.
13.
14.
17.
18.
19. Speedy Gonzales Taco, Enchilada 20. Burrito Goyo Ground Beef and Bean Burrito with Refried Beans on the Side
Tacos
Steak Tacos
3 Tacos Asada - Comes with Beans, Guacamole, and Pico Carnita Tacos
3 Tender Pork Tacos - Comes with Beans, Guacamole, and Pico
Tacos Al Pastor

Jose Loco’ s

3 Pork Tacos w/ Adobe Sauce - Comes with Beans, Guacamole, and Pico
Fajita Tacos
3 Fajita Tacos (Beef or Chicken) - Comes with Beans, Guacamole, and Pico
“Pick 2” Dinners
Just pick any 2 items from the list below with Tender Rice, Refried Beans, always Hot and Crispy Chips and Rosa’s Fresh Salsa!
Taco (Beef or Chicken)
Burrito (Beef or Chicken)
Enchilada (Beef or Chicken)
Quesadilla (Beef or Chicken)
Flauta
Tamale
Chili Relleno
Dinner Combos
Jalisco Special
A Taco Chalupa, Chile Relleno, Enchilada and Tamale with Tender Rice and Refried Beans
Plata Loca
A Taco, Chalupa, Chile Relleno, Burrito, Enchilada with Tender Rice and Refried Beans
Taquitos Mexicanos
Four Fried Corn Tortillas Rolled and Filled with Chicken or Beef with Fresh Salad
La Superior
A Chile Relleno and a Burrito with Tender Rice and Refried Beans
La Favorita
One Beef Burrito, a Chicken Enchilada, and a Guacamole
Salad
La Rancherita
A Chicken Burrito and a Chicken Enchilada
La Bandera
Three Enchilada, One with Chicken, One with Beef, and
One with Cheese served with Tender Rice and Fresh Salad
El Dorado
One Chimichanga, One Flauta, and One Quesadilla with Guacamole Salad
Chimichanga Dinner
Beef or Chicken with Tender Rice and Refried Beans
Chimichanga Asada Dinner
Carne
Restaurant Jose Loco’ s

Restaurant
In instances where legibility is compromised due to background complexities or limited color printing options, it is advisable to opt for the single-color alternatives presented on the

Nachos










