Morgan Campbell Portfolio Fall 2024

Page 1


Portfolio

Architectural Selected Works

Education

2016-2020

Blue Valley High School

2020-Present

University of Kansas, School of Architecture (M. Arch Program-Expected in 05/2026)

Software Skills

SketchUp + Lumion + Photoshop + Enscape + AutoCAD + Revit + Technical Skills drawing + model making + photography +

2016

Peggy Sweany Award

2020

CTE scholarship

Experience

2022 - 2023

Five Bleow Associate May 2024 - present Stepping Stones Inc.

Refrences

pg. 6-11

pg. 12-15

Pheonix House A Place for Contemplation templation

pg. 16-23

pg. 24-31

Kasitytalo IVERSIDE APPARTMENTS

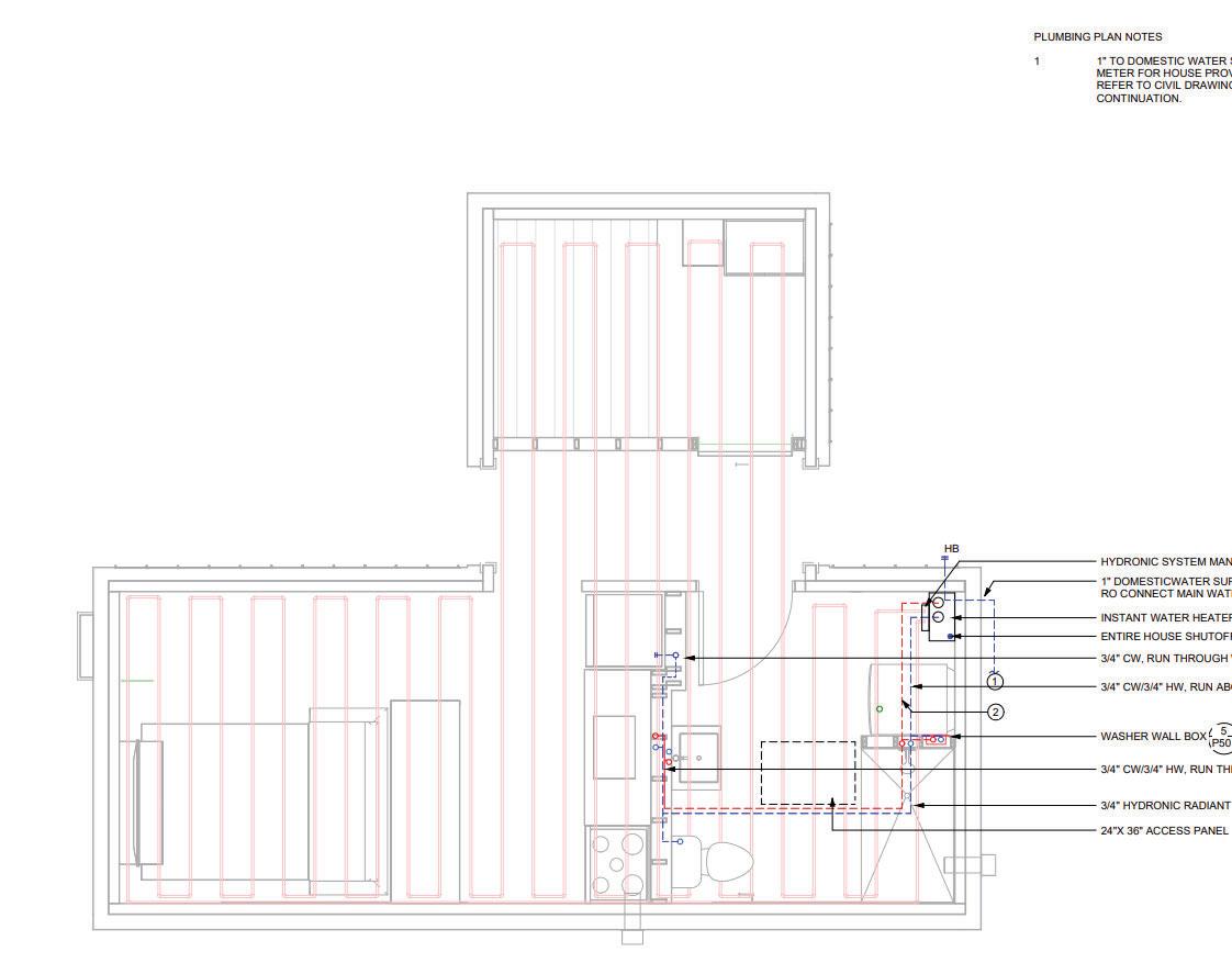
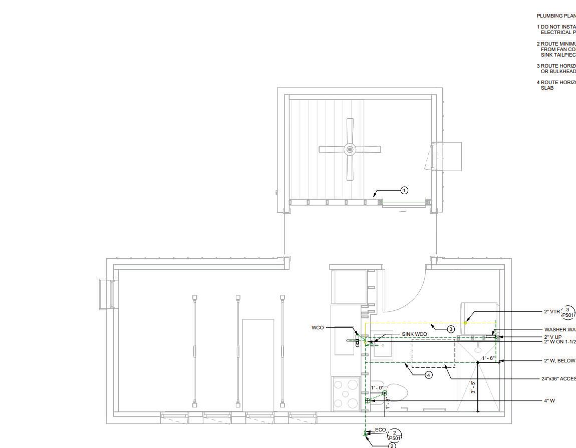
01 Pheonix House

ARCH 509 / Fall 2023 / Chad Kraus

1140 Oregon St, Lawrnce, KS

Software: Revit

Dirt Work Studio students were asked to create a one bedroom 450 sq ft house, Working alongside Tenants to Homeowners. Photogrpahs done by Chad Kraus , Plumbing documents done by Morgan Campbell.

02 The Cynosure

ARCH 208 / Fall 2022/ Kent Spreckelmeyer

Location: 2201 Irving Hill Rd, Lawrence, KS 66045

Software: Sketchup, Lumion, Photoshop

Students were asked to create a functional space for contemplation. This space can be used for weddings, religious purposes, or funerals.

03 Riverside Lofts

ARCH 608 / Fall 2024/ Steve Padget

Location: 6th and Massachusetts St, Lawrence, KS

Software: Revit, Enscape, Lumion, Photoshop, LookX

Students were asked to create a multi-use apartment building, located on The space needed to be functional for residents as well as guests.

CAFE INDOOR SPACE

APARTMENT LIVING SPACE APARTMENT CHILDRENS ROO

PUBLIC GYM

Water collection off solar panels. Water brought down through the clear drains

Water is stores in a tank located under the parking garage.

ONE BEDROOM ADA APARTMENT

ONE BEDROOM APARTMENT

TWO BEDROOM ADA APARTMENT

TWO BEDROOM APARTMENT

28’ Residential Floor (2 Levels) (14’ > 7’6” Floor to Ceiling) I (BC 2021 1003.2)

28’ Residential Floor (2 Levels) (14’ > 7’6” Floor to Ceiling) I(BC 2021 1003.2)

16’ < 7-6” Commercial Plinth (IBC 2021 1003.2)

16’ < 7’6” Commercial Plinth (IBC 2021 1003.2)

16’ < 7-6” Underground Parking (IBC 2021 1003.2)

16’ < 7’6” Underground Parking (IBC 2021 1003.2)

THREE BEDROOM APARTMENT

FOUR BEDROOM APARTMENT

04 Kasitytalo

ARCH 509 / Spring 2024 / Chad Kruas

Location:Helsinki, Finland

Software: Revit, Enscape, Lumion, Photoshop, LookX

Students were asked to create a mass timber multi-use building that includes a makers space, apartments, galleries, and outdoor space. This building uses CLT, wood louvers, wood structure, etc.

SOLAR PANELS

LOUVERS GREEN ROOF

PASSIVE ENVIORNMENTAL SYSTEMS

SPACE USES, PRIVATE VS. PUBLIC

LIFE SAFTEY AND EGRESS

Turn static files into dynamic content formats.

Create a flipbook
Issuu converts static files into: digital portfolios, online yearbooks, online catalogs, digital photo albums and more. Sign up and create your flipbook.
Morgan Campbell Portfolio Fall 2024 by morgan.riley.campbell - Issuu