Portfolio Architektura | Monika Machut

Page 1

Portfolio Monika Machut
machut.monika@gmail.com 792100598 Monika Machut

O MNIE

Nazywam się Monika Machut i jestem absolwentką Wydziału Architektury Politechniki Poznańskiej. Lata spędzone na uczelni, oraz praktyki w biurze architektonicznym nauczyły mnie tworzenia projektów dopracowanych, ciekawych i jednocześnie funkcjonalnych. Jestem osobą pracowitą, dobrze zorganizowaną, która szybko się uczy, łatwo odnajduje się w nowym środowiku, potrafię szybo zmieniać piorytety oraz efektywnie pracować w zespole.

DOŚWIADCZENIE

08.2020

Praktyki | Grupa Projektowo Inwestycyjna BASS

Gdańsk, Polska

Weryfikacja dokumentacji projektowej oraz projekt witraża do nowego kościoła w Kowalach.

01.202403.2024

Konsultacje architektoniczne | Sabre Medical Pty Ltd

Sydney, Australia

Przygotowanie propozycji poprawy wizualnej budynku przemysłowego, poprawa czytelności oznakowania dla kierowców samochodów dostawczych, konsultacje dotyczące materiałów izolacyjnych mające na celu ograniczenie zużycia energii elektycznej.

EDUKACJA

2021-2022

2017-2021

angielski | C1 polski | ojczysty

Studia Magisterskie Politechnika Poznańska

Wydział Architektury

Studia Inżynierskie | Politechnika Poznańska

Wydział Architektury

ZNAJOMOŚĆ JĘZYKÓW
AutoCad Revit SketchUp Fusion360 Lumion Photoshop InDesign UMIEJĘTNOŚCI

Centrum zdrowia psychicznego dla dzieci i modzieży Adaptacja szkoły szybowcowej

2022 | praca dyplomowa magisterska Monika Machut

rzut 1 piętra rzut 2 piętra północna elewacja południowa elewacja wschodnia elewacja przekrój B-B przekrój C-C przekrój A-A

północna elewacja

przekrój B-B

przekrój C-C

Inwentaryzacja szkoły szybowcowej 2022 Monika Machut TEMAT ±0,00=2,08m n.p.m. LEGENDA: Inwentaryzacja stanu istniejącego prof. nadzw. dr hab. inż. arch. Piotr Marciniak PROWADZĄCY PRAKTYKI dr hab. inż. arch. Grażyna Kodym-Kozaczko 1. Wszystkie wymiary podawane są w centymetrach a rzędne w metr technikę - rzędne terenu podano w wysokościach bezwzględnych od 0,00 m naturze. jakiejkolwiek zmiany lub różnicy zauważonej między projektem faktycznym Wykonawca zobowiązany jest przekazać tę informację projektowego. 2. Ze względu na sposób zaokrąglania wymiarów w użytym programie wystąpić niewielkie niezgodno彡 sumy wymiarów cząstkowych wymiarem elementu. W takich przypadkach decydujący jest wymiar 3. Rzuty pomieszczeń przedstawiono po obrysie podłogi. odwzorowanie pomieszczeń zawarte zostanie w projekcie wykonawcz Budynek podcieniowy szkoły szybowcowej zlokalizowany przy ul. Szybowcowej 2 w miejscowości Piekło Górne w gminie Przywidz Zakład Historii, Teorii Ochrony Dziedzictwa Wydział Architektury Politechnika Poznańska 61-131 Poznań Jacka Rychlewskiego 2 zachodnia elewacja 1 ARCHITEKTURA NR PROJEKTU FAZA PROJEKTU BRANŻA NAZWA RYSUNKU TEMAT A.06 INWENTARYZACJA RZUT PIĘTRA Inwentaryzacja stanu istniejącego prof. nadzw. dr hab. inż. arch. Piotr Marciniak PROWADZĄCY PRAKTYKI dr hab. inż. arch. Grażyna Kodym-Kozaczko inż. arch. Monika Machut 2022-01-27 1:100
UWAGI: LEGENDA: LOGO PROJEKTU: 1. Wszystkie wymiary podawane są w centymetrach a rzędne w metrach, zgodnie z Polską Normą PN-70/B-02365 - w opisach okien zawarto wielko懈 otworu w stanie surowym, - h.p. oznacza wysoko懈 parapetu liczoną od wykończonej posadzki do niewykończonego dołu otworu okiennego, - powierzchnie podano w stanie surowym ze względu na technikę zliczania pomieszczeń, - rzędne terenu podano w wysokościach bezwzględnych od 0,00 m n.p.m. Obowiązkiem Wykonawcy jest sprawdzenie wymiaru w naturze. W wypadku jakiejkolwiek zmiany lub różnicy zauważonej między projektem a stanem faktycznym Wykonawca zobowiązany jest przekazać tę informację do biura projektowego. 2. Ze względu na sposób zaokrąglania wymiarów w użytym programie CAD mogą wystąpić niewielkie niezgodno彡 sumy wymiarów cząstkowych ze zbiorczym wymiarem elementu. W takich przypadkach decydujący jest wymiar sumaryczny. 3. Rzuty pomieszczeń przedstawiono po obrysie podłogi. Szczegółowe odwzorowanie pomieszczeń zawarte zostanie w projekcie wykonawczym

rzut parteru

faktycznym Wykonawca zobowiązany jest projektowego. 2. Ze względu sposób zaokrąglania wymiarów wystąpić niewielkie niezgodno彡 sumy wymiarów wymiarem elementu. W takich przypadkach decydujący 3. Rzuty pomieszczeń przedstawiono

rzut 2 piętra

368 1 SKALA DATA NR PROJEKTU BRANŻA NR OPRACOWANIE NAZWA RYSUNKU 1:100 INWENTARYZACJA RZUT KONDYGNACJI UWAGI: ±0,00=2,08m LEGENDA: LOGO PROJEKTU: Inwentaryzacja stanu istniejącego JEDNOSTKA OBIEKT prof. nadzw. dr hab. inż. arch. Piotr Marciniak KIEROWNIK PROWADZĄCY PRAKTYKI dr hab. inż. arch. Grażyna Kodym-Kozaczko 1. Wszystkie wymiary podawane są w centymetrach zgodnie z Polską Normą PN-70/B-02365 - w opisach okien zawarto wielko懈 otworu w - h.p. oznacza wysoko懈 parapetu liczoną niewykończonego dołu otworu okiennego, - powierzchnie podano w stanie surowym pomieszczeń, - rzędne terenu podano w wysokościach bezwzględnych Obowiązkiem Wykonawcy jest sprawdzenie jakiejkolwiek zmiany lub różnicy zauważonej faktycznym Wykonawca zobowiązany jest przekazać projektowego. 2. Ze względu na sposób zaokrąglania wymiarów wystąpić niewielkie niezgodno彡 sumy wymiarów wymiarem elementu. W takich przypadkach decydujący 3. Rzuty pomieszczeń przedstawiono po odwzorowanie pomieszczeń zawarte zostanie Budynek podcieniowy szkoły zlokalizowany przy ul. Szybowcowej miejscowości Piekło Górne w inż.
Zakład
2022-01-27
arch. Monika Machut
Historii, Teorii Ochrony Wydział Architektury Politechnika Poznańska 61-131 Poznań Jacka Rychlewskiego 2
hp=99
±0,00=2,08m
inż. arch. Piotr Marciniak PROWADZĄCY PRAKTYKI dr hab. inż. arch. Grażyna Kodym-Kozaczko 1. Wszystkie wymiary podawane są w centymetrach zgodnie z Polską Normą PN-70/B-02365 - w opisach okien zawarto wielko懈 otworu w - h.p. oznacza wysoko懈 parapetu liczoną niewykończonego dołu otworu okiennego, - powierzchnie podano w stanie surowym pomieszczeń, - rzędne terenu podano w wysokościach bezwzględnych Obowiązkiem Wykonawcy jest sprawdzenie jakiejkolwiek zmiany lub różnicy zauważonej
po odwzorowanie pomieszczeń zawarte zostanie Budynek podcieniowy szkoły zlokalizowany przy ul. Szybowcowej miejscowości Piekło Górne inż. arch. Monika Machut Zakład Historii, Teorii Ochrony Wydział Architektury Politechnika Poznańska 61-131 Poznań Jacka Rychlewskiego 2
UWAGI:
LEGENDA: LOGO PROJEKTU: Inwentaryzacja stanu istniejącego OBIEKT prof. nadzw. dr hab.
przekrój A-A 1 NR PROJEKTU BRANŻA NAZWA RYSUNKU INWENTARYZACJA RZUT PIĘTRA UWAGI: ±0,00=2,08m LEGENDA: Inwentaryzacja stanu istniejącego OBIEKT prof. nadzw. dr hab. inż. arch. Piotr Marciniak PROWADZĄCY PRAKTYKI dr hab. inż. arch. Grażyna Kodym-Kozaczko 1. Wszystkie wymiary podawane są w centymetrach zgodnie z Polską Normą PN-70/B-02365 - w opisach okien zawarto wielko懈 otworu w stanie - h.p. wysoko懈 parapetu liczoną niewykończonego dołu otworu okiennego, - powierzchnie podano w stanie surowym ze pomieszczeń, - rzędne terenu podano w wysokościach bezwzględnych Obowiązkiem Wykonawcy jest sprawdzenie wymiaru jakiejkolwiek zmiany lub różnicy zauważonej faktycznym Wykonawca zobowiązany jest przekazać projektowego. 2. Ze względu sposób zaokrąglania wymiarów wystąpić niewielkie niezgodno彡 sumy wymiarów wymiarem elementu. W takich przypadkach decydujący 3. Rzuty pomieszczeń przedstawiono po obrysie odwzorowanie pomieszczeń zawarte zostanie w projekcie Budynek podcieniowy szkoły szybowcowej zlokalizowany przy ul. Szybowcowej miejscowości Piekło Górne w gminie inż. arch. Monika Machut Zakład Historii, Teorii Ochrony Wydział Architektury Politechnika Poznańska 61-131 Poznań Jacka Rychlewskiego 2 2022-01-27 1:100

Plac w Gorzowie Wielkopolskim

od górnej lewej strony: widok na fontannę na głównym placu, widok na amfiteatr, widok na mniejszy plac zabaw, widok na większy plac zabaw, widok na fonntanę w parku, widok na skatepark 2021 Monika Machut | Weronika Okoń

zieleń niska

zieleń średniowysoka

drzewa liściaste

droga pożarowa

ścieżka rowerowa

chodnik betonowy

droga nieutwardzona żwirowa

Communication
Function
Greenery

Dom dla starszego małżeństwa

2018 Monika Machut

rzut parteru elewacja zachodnia elewacja północna rzut 1 piętra przekrój elewacja południowa elewacja wschodnia

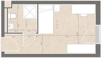
Dom studencki w Mediolanie

rzut parteru

rzut piętra powrarzalnego

2022 Monika Machut | Aleksandra Musiał | Weronika Okoń
B
E28 E4 E9 E12 E13
detal pokoju jednoosobowego pzrekrój A-A południowa elewacja

Hala Sportowa w Wigancicach Żytawskich

przekrój B-B

elewacja wschodnia

północna elewacja

kort tenisowy magazyn sprzętu sportowego miejsce na odpady miejsce na instalacje techniczne
2021 Monika Machut
1 2 3 4
rzut parteru

2021

Monika Machut | Aleksandra Metzler | Weronika Okoń

rzut piętra

Manufaktura obuwia
5 5 6 6 7 7 9 9 10 10 A A B B D D E E F F G G 150 186 875 1505 393 395 663 1191 2630 3 3 2 2 1 1 H H 8 840 210 690 690 810 810 810 810 C C 4 162 2430 2446 849 1040 3910 780 1.30. 1.9. 1.17.1.11.1.12. 1.19. B B rzut parteru UP 5 6 7 A A B B D D E E F F G G 11 790 635 150 2.10. 545 1191 264 435 191 3 2 1 H H C C 4 162 840 900 690 810 810 810 810 5723 1035 3910 780
wschdnia elewacja
2020 | praktyki Monika Machut Witraż
Osiedle jednorodzinne w Swarzędzu

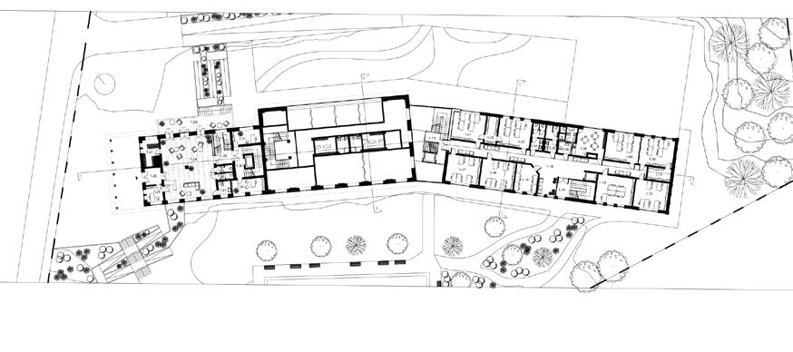
Pensjonat przy ul. Mickiewicza

2020 | praca inżynierska Monika Machut

strefa techniczna parking podziemny

strefa wejściowa

strefa konferencyjna strefa administracyjna restauracja pokoje hotelowe komunikacja

rzut parteru

rzut 1 piętra

1 1 2 2 3 3 5 5 C C D D B B A A 10 10 7 7 9 9 8 8 4 4 6 6 B.02 B.04 B.06 B.08 B.10 B A B A 1 1 2 2 3 3 5 5 C C D B B A A 10 10 7 7 9 9 8 8 4 4 6 6 D C.01 C.05 C.14 C.15 B A B A
2 3 1 7 4 6 5 7 8 przekrój A-A
east elevation west elevation

Centrum Wola

2019 Monika Machut | Aleksandra Metzler | Weronika Okoń

Agroturystyka w Szklanej Górze

2020 Monika Machut

rzut parteru

1 1 2 2 3 3 4 4 B B A A 1700 555 490 429 130 90 78 519 799 381 1064 388 90 80 90 65 351 155 90 91 90 277 15 98 92 491 660 160 427 248 804 101 15 196 90 189 90 183 359 300 359 200 450 789 784 458 1 2 3 4 5 7 8 9 D4 200 D4 180 200 D1 90 200 D2 90 200 D3 90 200 D4 90 200 D3 90 200 D3 90 200 D3 D3 O1 90 160 O1 O1 90 160 O1 O1 O1 90 O1 90 160 O1 90 160 O1 O1 O1 90 160 17 x 17,5 30 O2 500 270 O2 O2 270 S1 S2 S3
elewacja wschodnia elewacja południowa elewacja zachodnia elewacja północna

added greenery flower beds lake herb garden/field

przekrój

cegła klinkierowa wełna mineralna bloczki wapienno-piaskowe tynk gipsowy 12 cm 15 cm 24 cm 1,5 cm

owners’ house guesthouse cosmetic workshop shop garage

S1- ściana zewnętrzna tynk gipsowy bloczki wapienno-piaskowe tynk gipsowy 24 cm 1,5 cm 1,5 cm S2- ściana wewnętrzna nośna tynk gipsowy pustaki tynk gipsowy

road for cars pedestrian walkway

owners’ house is on the side for better privacy guesthouse is close to the forest cosmetic worhshop, shop and garage creates the square

1 1 2 2 3 3 4 4 B B A A 389 872 111 430 223 10 11 12 13 14 430 17 x 17,5 30 O1 O1 90 160 O1 90 160 O1 D3 90 D3 D4 90 200 D4 90 200 S1 S3 B A S1 S1 P1 P2 P3 Zestawienie pomieszczeń Numer Nazwa Poziom Powie rzchni a 1 wiatrołap Poziom 1 7 m² 2 kuchnia + jadalnia Poziom 1 33 m² 3 pokój dzienny Poziom 1 65 m² 4 sypialnia Poziom 1 16 m² 5 łazienka Poziom 1 7 m² 6 gabinet Poziom 1 11 m² 7 pomieszczenie techniczne Poziom 1 4 m² 8 WC Poziom 1 2 m² 9 sypialnia Poziom 2 43 m² 10 sypialnia Poziom 2 38 m² 11 pralnia Poziom 2 13 m² 12 łazienka Poziom 2 13 m² 13 korytarz Poziom 2 11 m²
10 cm 1,5 cm 1,5 cm S3- ściana wewnętrzna działowa parkiet dębowy wylewka cementowa 6 cm 3 cm P1- strop między kondygnacjami wełna mineralna płyta żelbetowa 15 cm 6 cm parkiet dębowy wylewka cementowa styropian podłogowy 6 cm 3 cm P2- podłoga na gruncie płyta żelbetowa 15 cm 20 cm 15 cm płyta żelbetowa zagęszczona podsypka piaskowa 15 cm dachówka ceramiczna łaty drewniane kontrłaty drewniane 3 cm P3- dach łaty drewniane 3 cm 18 cm 3 cm krowkie/ wełna mineralna suma 250 m² ± 0,00 + 3,00 + 2,70 + 5,90 + 8,60
rzut 1 piętra

Opakowanie na musli

Monika Machut | Weronika Okoń

2021
Contact: monika.machut@gmail.com 0493 635 005

Turn static files into dynamic content formats.

Create a flipbook
Issuu converts static files into: digital portfolios, online yearbooks, online catalogs, digital photo albums and more. Sign up and create your flipbook.