Architecture Portfolio | Monika Machut

Page 1

Portfolio Monika Machut

machut.monika@gmail.com 0493635005 Monika Machut

I am a graduate of Poznań University of Technology in Poland, where I recently completed my Master of Architecture. I have experience working both independently and in teams, designing architectural projects across a number of fields, including residential, commercial, urban planning and industrial design. A portfolio of selected works is available upon request. In addition to my architectural training I am interested in fine arts and have taken a number of courses in painting and drawing in pursuit of this interest.

Internship in Grupa Projektowo Inwestycyjna BASS (BASS Investment Project Group)

I was responsible for review and editing of project documentation and design of a novel stained glass window for a new church in Kowale, Poland.

Master of Architecture Poznan University of Technology Thesis: Mental Health Center for Children and Youth - the repurposing of a Hitler Youth aerospace academy in Piekło Górne, Gdansk district

Bachelor of Architecure Poznan University of Technology Thesis: Mickiewicza St Guesthouse

European driving licence Fluent in English AutoCad Revit Sketchup Lumion Photoshop InDesign About me: Experiance: Education: Software: Additional info: Aug-Sep 2020 2021-2022 2017-2021
4

Mickiewicza St Guesthouse

The designed building of the guesthouse is located in Poznań, in the Jeżyce district, at the intersection of Mickiewicza and Krasińskiego Street. Characteristic of this district are the historic buildings from the 19th and 20th centuries and the urban layout that combines the tenement houses with city villas. Due to its location, the building is well connected to the city.

Nearby, there are tram and bus stops, the Main Railway Station and one of the main roads in Poznań. There are also many neighbouring tourist attractions, such as the Poznań International Fair, the Zamek Cultural Center and the Old Town. The building design features a 5-story building with an underground car parking lot. On the ground floor there is a conference center and a restaurant. Access to the restaurant is also available people entering from the street. The floors are designed for different types of rooms. The building has a green roof to maximize green space.

The building has cut terraces from the side of Krasińskiego Street and the corner of the building, so that it fits best into the existing development. The fifth floor on the side of Mickiewicza Street is cut to fit in line with the cornice line of the building next door. The façade of the building is clad with sandstone. The stone has a shade of light beige, so the colors will not differ from other buildings. The corner is cut, which is a reference to the tenement house opposite the designed building, on the other side of Krasińskiego Street.

01 5
functional diagram 6

admin area restaurant hotel rooms corridors, staircase

7

C C D D
B
10
B A
C
D
A
1 1 2 2 3 3 5 5 ground floor plan
B
A A 10
7 7 9 9 8 8 4 4 6 6 B.01 B.02 B.03 B.04 B.05 B.06 B.07 B.08 B.09 B.10 B.11 B.13 B.14 B.15 B.12 B.18 B.17 B.21 B.16 B.20 B.19
B A 1 1 2 2 3 3 5 5
C
B B A A 10 10 7 7 9 9 8 8 4 4 6 6 D C.01 C.02 C.03 C.04 C.05 C.06 C.07 C.08 C.09 C.10 C.11 C.12 C.13 C.14 C.15 C.16 C.17 C.18 C.19 B
B A
technical area underground parking entrance hall conference are
1st floor plan

east elevation

2 3 1 7 4 6 5 7 8
A-A cross-secion 8

west elevation

masterplan
9
10

Housing Estate in Swarzędz

The designed area is located in Swarzędz near Poznań. It is located between Działkowa St, Stawna St, Poznańska St and Sośnicka St. The entire area of the urban layout is approx. 30 hectares. A great advantage of the estate is the lakes, which provide residents with a place for recreation and activity. The new buildings have been designed with respect for the existing natural layout. Among them there are detached, semi-detached, terraced, triple and quadruple houses. The project also includes service development, mainly along Poznańska St, as well as by the lake in the northern part of the site and on designed squares. The squares are a meeting place for residents and integral parts of the estate. Green space also plays an important role, being an important element of the layout and has many functions. In the north-western part of the area it creates a park, in the squares it creates a form of an avenue of trees, in the eastern part it harmonizes with the lake, and in the south it separates the housing estate from the busy Poznańska St. The newly designed complex is an attractive complement to the undeveloped part of Swarzędz.

02 11
12
13
14
axonometry - view of a east part of the estate
15
axonometry - view of a south west part of the estate
16

Footwear workshop

The project’s goal was to create a design of the factory that produces footwear using vegan materials such as pinatex and apple leather. The designed area is 28 ha. It’s located in Poznań, at the intersection of Gołężycka St and Sarbinowska St. The green zone is over 20,000. m2, which gives as much as 73% of the area of the entire complex. The workshop is divided into three adjacent buildings with separate zones: the representative zone with the office part is located in the most exposed part of the factory - from the south-west. The production hall is located from the east, and the warehouse zone which stores the materials and the finished products is located from the north. Inside the whole complex there is a courtyard with green walls and trees. The designed buildings place great emphasis on pro-ecological solutions. That is why, in addition to green walls in the inner courtyard, greenery was also used on the facades of the representative part and also on the green roofs over the representative and storage parts. The project assumes additional space for the expansion of the workshop and a retention reservoir.

03 17
18
west elevation

building + numbers of storeys

paved ground- aphalt paved ground - concrete lawn trees reservoir bike racks external lighting benches trash cans main entrance to the area doki załadowcze loading docks border of the designed area space for expansion

19
B-B cross-section
5 5 6 6 7 7 9 9 840 900 690 810 10 10 A A B B D D E E F F 840 600 510 510 810 70 2570 G G 190 11 150 190 186 150 875 846 1505 610 393 395 663 1191 1640 2630 3 3 2 2 1 1 H H 8 840 210 690 690 810 810 810 810 C C 840 600 510 510 810 70 2570 810 810 810 4 162 5725 2430 2446 849 826 2510 2650 1040 3910 780 849 2487 2650 5986 1.16 KURTYNA POWIETRZNA 4950 5991 1.4. 1.7. 1.6. 1.5. 1.8. 1.30. 1.31. 1.32.
1.29. 1.27. 1.25. 1.26.
1.1. 1.9. 1.17.1.11.1.12. 1.14. 1.13. 1.15. 1.17. 1.18.
1.2. A B B A 0 -5 -5 214 1.3.
ground
20
1.33. 1.34.
1.24. 1.23.
1.19. 1.20. 1.21. 1.22.
south elevation
floor plan
UP 5 5 6 6 7 7 9 9 10 10 A A B B D D E E F F G G 11 835 790 635 150 2.6. 2.2. 2.4. 2.5. 2.1. 2.7. 2.8. 2.9. 2.10. 2.11. 485 545 160 1191 560 264 435 191 3 3 2 2 1 1 I I H H 8 C C 4 162 840 900 690 810 840 600 510 510 810 70 2570 840 210 690 690 810 810 810 810 840 600 510 510 810 70 2570 810 810 810 5723 2430 2446 847 5984 824 2510 2650 1035 3910 780 847 2487 2650 5984 2.3. 2.12. 5725 A B B A 420 214 1st floor plan A-A
21
cross-section
22

Park located within a Housing Estate

The designed area is located in Gorzów Wielkopolski in the European housing estate. The subject of the study is the design of the central square with green access roads and a park. The proposed concept consists of four parts and each has its own individual, functional and spatial character. The main objective of the project is to create a common public space for leisure and recreation, while maintaining the largest possible green zone. The central square has been divided by main communication routes connecting green passages. In this way, green islands were created, which were then divided into smaller polygons filled with greenery, their additional function being the seating areas. The diagonal axis of the square connects the service area with the illuminated floor fountain and the amphitheatre. The main function of the mentioned amphitheater are occasional performances, but it is also a meeting place. The surface of amphitheatre has been gradually lowered and hidden behind the rows of trees, creating an atmospheric space.

The northern green access road has playgrounds for the nursery and kindergarten located nearby. The remaining part is made up of polygons with the benches, referring to the divisions introduced in the central square. In the southern green access there is a skatepark, an outdoor gym and a stream ending with a retention reservoir.

The southern part forms a link between the nature reserve and the central square, which is why it has a character of a park. In the central part there is a spatial dominant in the form of a fountain. Next to it there is a space with designed melliferous greenery and plants attracting butterflies. There is also a lounge area with sun loungers. Lanterns have been placed along the main communication routes.

04 23

water/fontain lawn trees bushes/perennials

paved ground - concrete semipermeable ground - gravel designed area border 24

urban detail of central square

cross-section of central square

25

from the left: view of the main square fountain, view of the amphitheatre, view of the smaller playground, view of the bigger playground, view of the park fountain, view of the skatepark

26

lawn bushes/perennials deciduous trees

Function

Communication

fire trail bicycle path paved ground - concrete semiperameable ground - gravel

Greenery 27
28

Sports Hall in Wigancice Żytawskie

The designed building is located in the Lower Silesian Voivodeship, in the Bogatynia commune, in the village of Wigancice Żytawskie. This village was demolished in 1999 as a result of the expansion of the Turów mine. The project was based on the created concept of the local plan, the aim of which is to restore the development of the village. The designed building is a sports facility with a handball, basketball and volleyball hall. The auditorium was designed to fit 200 people. The building also has additional exercise rooms and a gym. A small cafe has been designed at the main entrance. The facility has an area of 334.4 m². The shape of the building refers to the local mountainous topography. An important detail is the arrangement of muntins in the windows, which are supposed to resemble timber walls framing in Upper Lusatian houses. In front of the building there is a parking lot for 51 cars, including 4 for the disabled and 4 for buses. The designed area also includes a football and basketball field, an athletics track, two tennis courts, and an additional building for sports equipment next to them. Behind the designed building there are places for waste storage and technical installations. The designed area has a total area of 1891.4 m².

05 29

B-B cross-section

east elevation north elevation

south elevation

30
31
ground floor plan

concrete pavement gravel pavement asphalt road lawn bushes/perennials trees tennis court sport equipment storage building waste storage area technical instalation area designed area border

1 2 3 4
32
33
34

Student dorm in Milan

The designed building is located in Milan. From the south, it borders on a park, where in the times of Ancient Rome there was an amphitheater. Main entrance, a cafe, toilets and a gym are located on the ground floor. In the corners of the building there are a bicycle storage room and a garbage storage room. The upper floors are divided into a room zone and a public zone. The rooms are divided into single and double rooms. On the 5th floor there is also an apartment for a visiting professor. All rooms have access to the loggia. The public zone includes public kitchens, social areas and study rooms. In the masterplan, from the north, all existing trees have been preserved, due to the lack of greenery in the city. On the southern side, by the park, there is a space for recreation in the form of round islands of greenery, which are surrounded by the benches.

06 35
B B A 36
ground floor plan
37
E25 E26 E28 E27 E1 E2 E3 E4 E5 E6 E7 E8 E9 E10 E11 E12 E13 E14 E15 E16 E17 E18 E19 E20 E21 E22 E23 E24 F24 F1 F2 F3 F4 F5 F6 F7 F8 F9 F10 F11 F12 F13 F14 F15 F16 F17 F18 F19 F20 F21 F22 F23
6th floor plan A A A A B B B B 38
repetable floor plan

south elevation north elevation

A-A cross-section
39

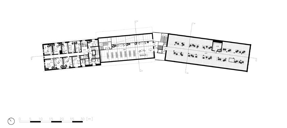
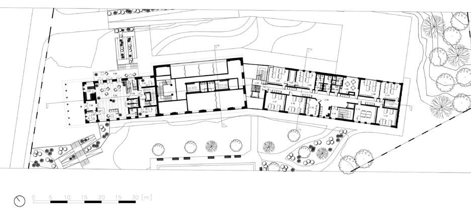
Mental Health Center for Children and Youth

The repurposing of a Hitler Youth aerospace academy in Piekło Górne, Gdansk district 2021 | master thesis Monika Machut

The object of the project is the adaptation of the historic building of the gliding school in Piekło Górne, in the Przywidz municipality in the Gdańsk’s county and adapting it to the newly selected function - a mental health center for children and adolescents. The facility was selected because of its significant impact on the landscape of the Przywidz municipality. The function of a psychological care center for children and adolescents was chosen due to its current condition in Poland.

As part of the project, research was carried out on Nazi architecture as the facility was built to train Hitlerjugend. The regional architecture of Żuławy Wiślane was analyzed, because the style of the building refers to the arcaded houses in this region. Due to the facility location in Kashubia, the architecture of this region was also analyzed. The existing building was examined and an inventory measurement was carried out, what was necessary to create the design concept. Research on the state and structure of psychiatric and psychological support centers for children and adolescents in Poland has exposed why it is important to create facilities with a therapeutic function, caring for mental health, especially of the minors. The design concept was created based on the research and analysis. The land development plan combines therapeutic and recreational functions. Elements of the spatial development were incorporated into the existing, diversified terrain. The facility is divided into three buildings: with an arcade, a former hangar and a newly designed building. The historical part of the concept has a therapeutic function as well as an administrative and technical. The new facility has an educational function Efforts were made to design the form of the existing gliding school inscribed in the local landscape, so that it would be visibly contemporary and refer to the historical sytle of the existing building.

07

border of the designed area paved ground - asphalt semipermeable ground lawn trees benches sports field pond amphitheatre playground vegetable garden car park waste storage area

north elevation

ground floor plan 1st floor plan

west elevation

2nd floor plan

3rd floor plan

south elevation east elevation

view of the entrance hall

A-A cross-section

B-B cross-section C-C cross-section

view of the class room

Stained glass window

The design of the stained glass window was created for the parish of St. Kinga in Kowale. It was placed in the presbytery of the church. The aim of the project was to create an abstract design so that it would not be associated with anything.

08
Contact: monika.machut@gmail.com 0493 635 005

Turn static files into dynamic content formats.

Create a flipbook
Issuu converts static files into: digital portfolios, online yearbooks, online catalogs, digital photo albums and more. Sign up and create your flipbook.
Architecture Portfolio | Monika Machut by monikamachut - Issuu