
Monika Mitic Architecture Portfolio 2024
![]()

Monika Mitic Architecture Portfolio 2024
Master in Architecture
Toronto Metropolitan University | Toronto, Ontario, Canada 09/2021 - 09/2023
Architectural Course Union (ACU)
Fourth Year Representative 09/2020 - 07/2021
Architectural Course Union (ACU) Co-President 09/2018 - 07/2019
ACU Mentorship Program
Mentoring students in first and second year 09/2018 - 07/2019
Architectural Course Union (ACU)
Secretary Executive Postion 09/2017 - 07/2018
Architectural Course Union (ACU)
First Year Representative 09/2016 - 07/2017
DAS Year End Show
New Center for Architecture Studio Project 05/2018
DAS Year End Show
Kiosk Pavilion Studio Project 05/2017
Ryerson Entrance Scholarship Scholarship 09/2016
Rhino 5.0 Revit 2024
SketchUp 2024
AutoCAD 2024
Adobe Photoshop 2024
Adobe Illustrator 2024
ALEA+ | Junior Architect
04/2024 - Present Belgrade, Serbia
At ALEA+, with offices in Belgrade, Niš, and Dubai, I’ve enhanced my bilingual skills in Serbian and English while contributing to luxurious villa designs based in Dubai. My role encompasses all design phases—concept, schematic, and detail—where I utilize AutoCAD and Revit to create innovative solutions. Collaborating with diverse teams, I actively learn and contribute to seamless project delivery, gaining valuable experience in adapting to a dynamic, international environment.
Main Architects | Junior Architect
01/2024 - 03/2024 Belgrade, Serbia
This role marked my first professional experience in Serbia, where I worked in a Serbian-speaking environment. I contributed to diverse projects, including office, industrial, interior design, and residential spaces. My responsibilities included creating realistic renders using 3D software such as SketchUp and Enscape, while enhancing my proficiency in AutoCAD. I also had the opportunity to work on a Konkurs located in Serbia.
Asquith Architecture | Co-Op Student
01/2020 - 05/2020 Toronto, Ontario, Canada
At Asquith Architecture, a boutique firm specializing in residential buildings, I gained valuable experience working closely with clients on residential building additions, renovations, and interior design projects. Utilizing SketchUp and Vray, I created realistic renderings that played a key role in client presentations. Additionally, I contributed to Construction Document drawings using AutoCAD, further enhancing my skills in architectural documentation.
Giaimo | Co-Op Student
05/2019 - 12/2019 Toronto, Ontario, Canada
Giaimo is a small architectural firm that focuses on a wide variety of different projects including residential, commercial, heritage and more.My role involved direct collaboration with clients, contractors, and sub-consultants to design projects using AutoCAD, Adobe Suite, Vray, Rhino 3D, Revit, and VR technologies. From conceptual sketches to detailed construction plans, I contributed to a wide range of projects, enriching my experience across all stages of the design process. I worked on a variety of phases of design including Preliminary Design, Schematic Design, and CDOCs.
Giaimo | Summer Internship
05/2018 - 07/2018 Toronto, Ontario, Canada
Focused on producing detailed architectural drawings using Rhino3D, Adobe Suite, Vray, and AutoCAD for the firm. These visuals were prominently featured on the company’s website and utilized in client presentations. This experience marked my initial immersion into the architecture industry, significantly enhancing my skills and insights.
63 Keefer Ct I Renovation Project
08/2020 - 09/2021 Individual Project
63 Keefer Ct is an interior renovation project located in Vaughan. I developed 3D models, floor plans, and renderings to help guide the project. I also worked with the clients on finalizing finishes.
ComeUpToMyRoom 2019 | Fraktur
09/2018 - 01/2019 Fabrication Team
CUTMR is an annual design-build competition held at the Gladstone Hotel. The installation consisted of a group of Ryerson DAS students who designed and fabricated the project, which ultimately lead us to win the Juror’s Choice Award.
BATA Shoe Museum | Canada 150
Assisted in fabrication process
05/2017 - 07/2017
The colourful floral design is displayed at the front of the BATA Shoe Museum celebrating Canada 150. I was given the opportunity to work on the fabrication process of the design.
Parklet TO 05/2017 - 07/2017 Assisted in fabrication process
While assisting in the fabrication process of Parklet TO, I was able to work with power tools at the Ryerson woodshop to help build the project.
CANstruction 2017
Assisted in fabrication process
Science Centre Installation
Adobe InDesign 2024
04/2017
12/2016 - 05/2017 Assisted in design process
Bachelors of Architectural Science | Co-Op Ryerson University | Toronto, Ontario, Canada 09/2017 - 05/2021 Buildner Office #2 Competition
Shortlisted Project Buildner Modular Home Competition 2021
Shortlisted Project
Volzero Tiny House 2020
Participated in
in competition
Participated in competition Steel Competition
Participated in competition
2
3

Academic - Thesis
Location: Queen St W and Bay Street, Toronto, Canada
Course: Master of Architecture, Thesis
A B S T R A C T
Toronto’s financial district has experienced a staggering 50% decrease in foot traffic and significant vacancy rates in its office buildings since the onset of the COVID-19 pandemic. Street retail remains shuttered, while newly completed Class A office buildings conceived pre-pandemic, open with empty plazas and lobbies. This is a phenomenon in the centres of many global cities. With numerous companies now embracing remote work as a new norm, this high-density, transit-connected, fifteen-block radius, known for generating the city’s highest value in property revenue, is a repository of underutilized infrastructure. This thesis will look at the history of the transformations of how we have housed the workplace as buildings and districts and seek opportunities to reconceive this urban infrastructure to address both the housing crisis and the demise of the core post-pandemic.

















Academic
Location: 156 Sterling Rd, Toronto Ontario Course: ASC 620 - Integration Studio II
Collaborators: Arash Ghafoori
OCAD Satellite is a school of design that sits within the Junction Triangle. The industrial area is made up of many different architectural typologies, and the site sits next to the MOCA. The intent of the design is to create a relationship between the school, students, and public with the park located South of the site. The massing of the building is organized into two separate private and public spaces, where the public is made up of a lecture theatre, classrooms, library, and gallery space while the private is made up of the student’s studio spaces. The South facade showcases the importance of the park, where daylighting is considered and taken into advantage.

Site Plan 3 - Site Relation to Context
















Second Floor Axonometric


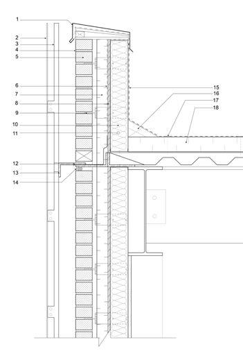
Academic Location: 156 Sterling Rd, Toronto Ontario Course: ASC 623 - Principles of Detailing Collaborators: Arash Ghafoori
The third-year studio project OCAD Satellite is analyzed further in detail for the final project of the course Principles of Detailing. Students were given the task to focus on specific areas of their studio project and to provide an intricate detailed section and axonometric drawing showing the construction of the proposed design.


Professional Experience
Position: Summer Internship
Role: Produced Graphical Drawings
Location: 1523 Niagara Stone Rd, Virgil
Silversmith Brewery is an existing brewery located in Niagara made up of a new addition that acts as the primary focus of the project. The project is made up of three major buildings: a historical church, an addition created in 2007 located on the left side of the church, and the newest addition located on the back of the church. These three building types are fused together and work cohesively creating shared spaces for the overall brewery.




Professional Experience
Position: Co-Op Student
Location: Velocity At The Square, 252 Victoria St, Toronto Ontario
Velocity At The Square is a residential building located near Dundas Square. I was given the task to redesign the front building signage where I had created white acrylic and white vinyl lettering along with a halo sign of the building’s logo. Furthermore, a secluded lounge area was recreated into a lobby storage unit where packages can be stored for the residence.





Professional Experience
Position: Co-Op Student
Role: Created 3D Model and Renderings
Location: 42 Brooklyn Ave, Toronto Ontario
The interior renders displayed above best represent the interior renovation developed for a residential project located in Toronto. The programs used were SketchUp, Vray, and Adobe Photoshop.



Professional Experience
Position: Co-Op Student
Role: 3D model and Renderings
Location: 11a Grandview Ave, Toronto Ontario
The interior renders highlight the potential room layout for a third floor addition project developed for a residential project located in Toronto. The programs used were SketchUp, Vray, and Adobe Photoshop.

quite difficult to find the perfect landscape and the right conditions to capture it. Hence, this movea getaway for artists looking to explore the great Canadian outdoors and capture the scenic surwas created through the exploration of transformable architecture and the idea of being able to to any desirable location. The house is built from local materials, primarily oak and timber, in orharmonious relationship with the environment and be lightweight for effortless transportation. orientation of the structure relies heavily on north light to ensure consistent and ideal ambient lighting itself is designed to maximize workspace while simultaneously maintaining comfortable sleeping, areas. The house has moveable components in the bed and table to guarantee quality spatial configuA hinged system is likewise incorporated into the deck allowing it to be folded upwards to protect travel.
Personal: Competition
Completion: 12/2020
Collaborators: Maskim Cuturilo
Pop Art is a transformable tiny house designed as a getaway for artists to paint in the scenic and secluded landscapes of Ontario. This tiny house makes up 300 sqft and consists of movable partitions that make up the bed, counter, and deck to allow for comfortable and efficient use of space. The roof-line is angled to enhance the importance of the North ambient light, ideal for any artist using the space. As the house frames views, it also ensures great indoor and outdoor workspace for any artists who desires to work in both environments.






Personal: Competition
Award: Shortlisted Project
Completion: 09/2021
Collaborators: Yara Ragab
For the Modular Home 2 design competition, the following proposal explores the displacement of climate migrants in North Africa that seek refuge in European nations. Climate change is an increasing reason for creating displaced people all around the world. With this in mind, Yara and I challenged ourselves to come up with a modular home for such individuals facing great obstacles.










eliminate the commmute. what about the suburbs?




































Personal: Competition
Award: Shortlisted Project
Completion: 05/2022
Collaborators: Patricia Diaz







































































































































































The Office #2 design competition focuses on the idea of what is the future of the office? Patricia Diaz and I focused on the suburban area of King City in Ontario. With thousands of individuals commuting to work within downtown Toronto, we question is there an ability to create office ‘hub’ spaces that allow individuals to work within designated spaces within the premise of their neighbourhood?
OPPOSITE


The past year was filled with a series of violence and arguments and politics that has lead people into doubting today’s society. Our design demonstrates the idea of two opposing opinions that have caused between each other’s beliefs. One may see the difference of opi the contrast in color and depth in space. Merging these two opi to a better solution than what was initially proposed.



























Renders and Axonometrics done by Shengnan Gao
Personal: Design Competition
Completion: 12/2017
Collaborator: Shengnan Gao




















WinterStations is an annual design-build competition displayed at Woodbine Beach. Applicants are to design an interactive installation that would wrap around the lifeguard chairs located along the shoreline. The design proposal demonstrates the idea of two opposing opinions that have caused an uproar between each other’s beliefs.


Personal: Design-Build Competition
Completion: 01/2019
Collaborators: Arnel Español, Henry Mai, Adrian Chîu, Casey Li, Mimi
ComeUpToMyRoom is an annual design-build competition held at the Gladstone Hotel. Fraktur consists of eight undulating walls that react when an individual walks passed them. This installation acts as a reminder that our actions cause a reaction to nature and the environment. It is crucial for people to reflect upon their actions and understand how it may harm our delicate environment.







