Portfolio_Monika Smorag-Maksymiak

Page 1


Monika Smorag - Maksymiak PORTFOLIO

selectedworks2016-2025

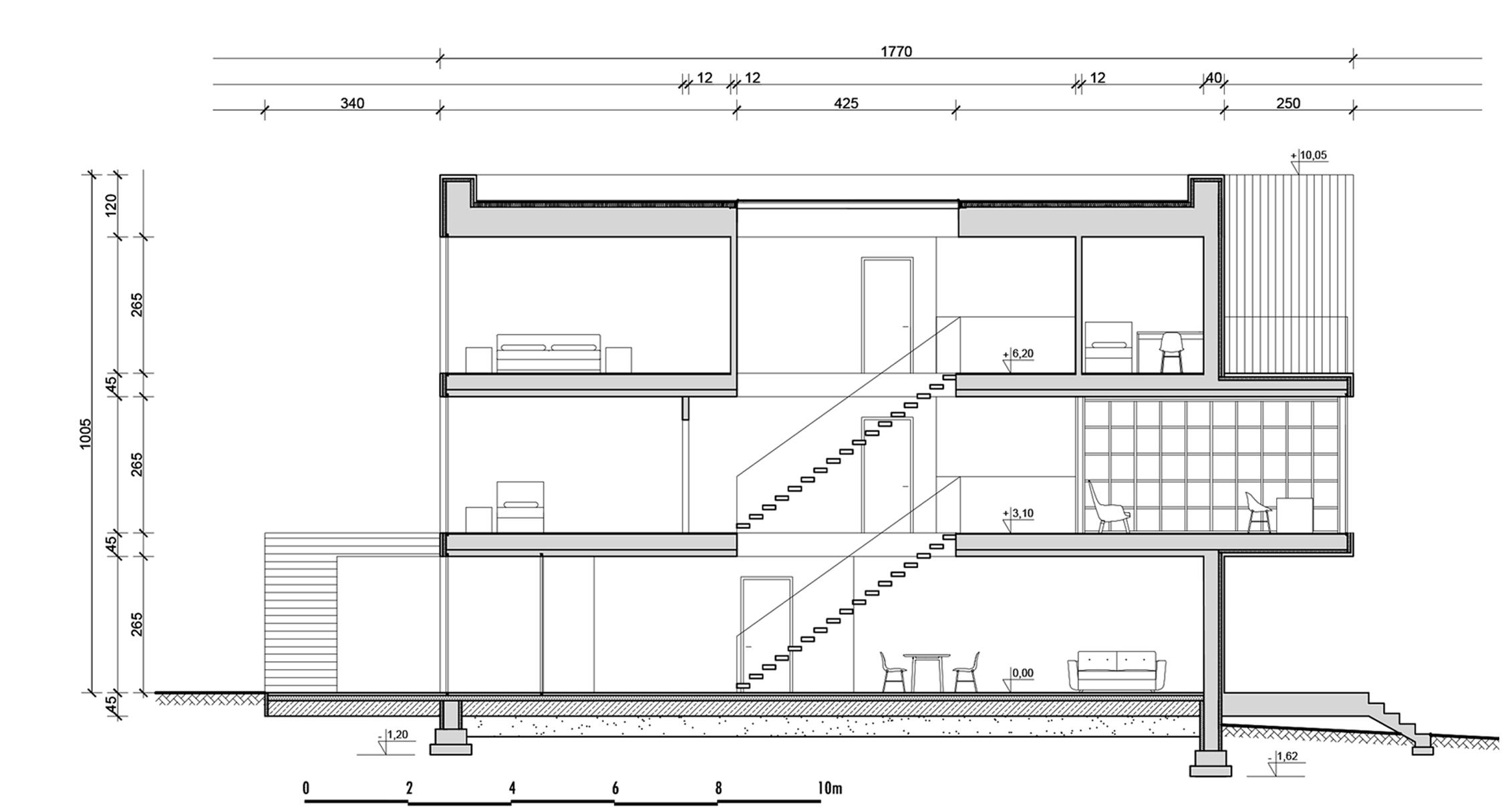
Curriculum Vitae Monika Smorag-Maksymiak

Malina Kindergarten Kindergarten

Being Away Competition with CCHE Zurich

Music School Competition with Studio SLAS architekci

Office Building Competition with PORT

Terraced House Design class - first cycle degree

School with a vineyard Master Thesis

MAST

The Building 4Humanity Resilient Design Competition

Herbert’s Pavilion Workshop Project

Domesticating architecture

Design Class Universidad CEU San Pablo Madrid

Apartment at Staszic Square Interior design

Tadzio’s Room Kid’s room / Interior design

Chwasty i Kontrasty Florist studio / Interior design

Re-Draw Competition

More Graphics, Drawing, Art

I’m an architect and interior designer with a strong passion for aesthetics, functionality, and meaningful, peoplecentered design. I see architecture not just as building spaces, but as shaping experiences and emotions. Every project is an opportunity - to discover new places, connect with future users, and create something lasting and thoughtful.

What I value most is the harmony between beauty and usability - always tailored to the individual needs of each client. I approach every new challenge with curiosity and responsibility, knowing that good design can truly improve how people live and feel in a space.

Teamwork is essential to my process. I enjoy sharing ideas, learning from others, and creating collaboratively. In recent years, I’ve developed a strong focus on interior architecture, including custom furniture and detailed technical drawings.

Ambitious, open-minded, and driven, I constantly seek inspiration beyond the drafting table - through travel, people, and my love for West Coast Swing dancing, which feeds my artistic side and keeps me connected to rhythm, movement, and community.

Monika Smorąg-Maksymiak 26|04|1994 Katowice, Poland Mellingen, Switzerland work permit B (+41) 767 568 887

monika.smorag94@gmail.com www.linkedin.com/in/monika-sm

LANGUAGES

Polish - native

English - fluent

German - B1 level (in progress)

Spanish - basic

DESIGN & TECHNICAL SKILLS

BIM/CAD:

ArchiCAD, AutoCAD, Revit

3D & Concept:

SketchUp, physical model making

Graphic & Presentation: Photoshop, InDesign, layout design, free hand drawing

Technical Documentation: construction drawings, detailing Joinery & Furniture: bespoke furniture design & detailing Materials & Specification: selection, finishes, supplier coordination

Competitions: concept development, visual boards, fast-paced collaboration

Standards: working knowledge of Swiss SIA guidelines

COURSES & WORKSHOPS

- German Language CourseLevel B1 (ongoing)

- Social Media Strategy & Instagram for Business (in progress)

- ProtoLAB | Wroclaw University of Science and Technology | 2018

INTERESTS

Art | Fashion | West Coast Swing

EXPERIENCE

2024 - 2025 | CCHE Zürich | Switzerland | Architectural Intern

- Supported concept design (SIA 21–32) through analyses, diagrams, and urban models.

- Produced plans, sections, and elevations in various scales. (SIA 31-32, 41,51)

- Created 3D models and presentation materials for competitions.

- Developed graphic layouts for design submissions.

- Contributed to residential and mixed-use competition projects.

- Prepared façade studies, design details, and refurbishment documentation.

- Conducted as-built surveys and drawings for remodelling projects.

2021 - 2024 | Neatsmith | London, UK | Designer

-Produced detailed furniture drawings for high-end clients in the luxury interiors sector.

-Part of a high-performing team that contributed to the expansion of the company’s showroom network in London.

-Used AutoCAD and company-specific dedicated software to create accurate technical documentation and production drawings.

2020 - 2021 | Kohlrabi & Panda Studio | Wrocław, Poland | Architectural Assistant | Interior designer

-Worked alongside Filip Symonowicz across two studios on diverse interior design projects.

-At Panda Studio: contributed to the executive design package for a hotel project.

-Developed functional layouts, cohesive visual concepts, and bespoke furniture solutions. -Produced precise technical documentation and oversaw on-site implementation with contractors.

-Created custom design details in collaboration with suppliers and artists.

-Contributed to projects featured in Architektura & Biznes, LABEL Magazine, and WhiteMAD.

2018 - 2019 | PORT pracownia | Wrocław, Poland |

Architectural Assistant

-Played a core role in designing the Montessori Kindergarten in Opole, nominated for EUmiesaward and ArchDaily BOTY 2022, including full documentation and material coordination.

2017 - 2018 | Neatsmith | London, UK | Designer

2016 | SLAS architekci | Katowice, Poland | Architectural Intern

-Collaborated on the award-winning Music School expansion in Jastrzebie-Zdrój, contributing to concept refinement and visual material.

EDUCATION

2018 - 2019 | Master of Architecture | Wrocław, Poland

2018 - 2019 | ERASMUS+ exchange | Madrid, Spain

2013 - 2017 | Bachelor of Architecture | Opole, Poland

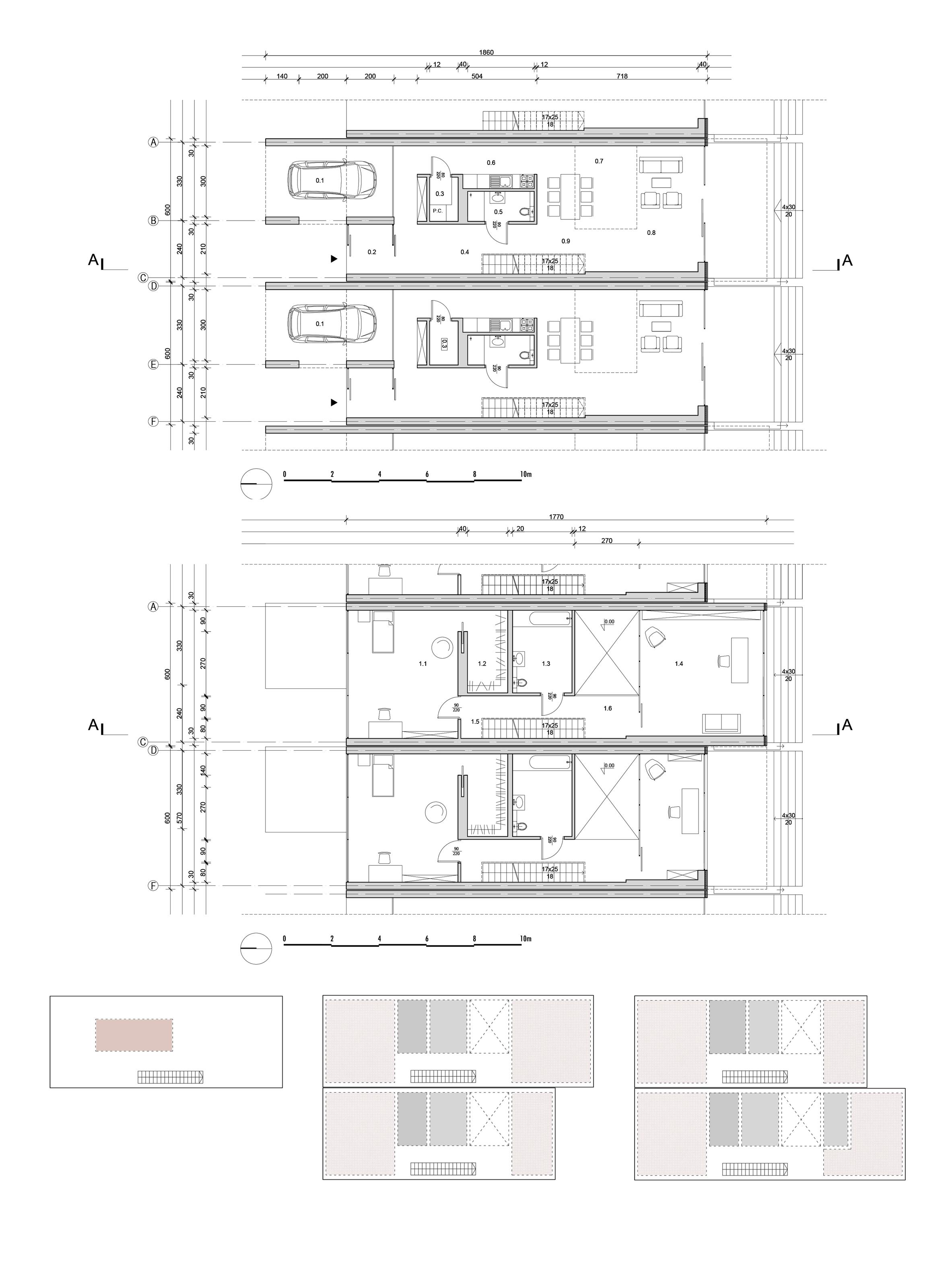
MALINA KINDERGARTEN

KindergartenandworkshopinOpole,Poland completed

PORT

pracownia i studio architektury: MARCIN KOLANUS, JÓZEF FRANCZOK, MONIKA SMORĄG-MAKSYMIAK, MATEUSZ MIKOŁAJÓW & ZOFIA FEDORÓW

My role

Site survey / Bestandsaufnahme / SIA 31

Concept design / Konzeptentwurf / SIA 32

Functional layouts / Variantenstudie / SIA 31-32

Execution drawings / Ausführungsplanung / SIA 51

Building permit documentation / Baugesuch / SIA 41

Architectural and technical detailing / Technische Details / SIA 51

Visualizations, graphic presentation / Visualisierungen / SIA 32-33

Client consultations / Kundengespräche / alle Phasen

Interior selection / Innenausstattung / SIA 51-52

The kindergarten and school in Malina, Opole, follow the Montessori method. The kindergarten building, once the oldest school in Malina over a century ago, now fosters joy and exploration, helping children understand the world and build their identity.

The project preserved the existing layout with a courtyard between buildings.Anewmodernvolumewithfull-heightglassconnectstheinterior with the greenery outside, reflecting Montessori’s emphasis on nature.

The site represents typical rural development, and the buildings were renovated to maintain this character. The workshop building supports creativity and passion for preschoolers and students. Its interior retains raw historic elements, with restored vaults and bright, open spaces that encourage independent learning.

completed: 2020

photos by Stan Zajaczkowski

BEING AWAY

CompetitionRAD-Areal,Zurich,Oerlikon

CCHE

HANNES EHRENSPERGER, CHRISTOPH SCHMID, JOEL ENGLER, MONIKA SMORĄG-MAKSYMIAK, LOUIS DESPLANQUES, STEFANY VELASQUEZ SARRIA

My role

Analysis of competition brief / Analyse der Wettbewerbsunterlagen

Architectural concept design / Entwicklung des architektonischen Konzepts

Concept sketches and models / Konzeptskizzen und Modelle

3D modeling / 3D-Modellierung

Architectural drawings (plans, sections, elevations) / Architektonische Zeichnungen (Grundrisse, Schnitte)

Layout and graphic design of competition boards / Gestaltung der Wettbewerbstafeln

SIA Phase 31-33

The RAD site’s exceptional urban and topographic location — framed by natural features to the south and striking industrial buildings to the north and east — sets the foundation for a strong, identity-forming urban element. The design responds to the large-scale, orthogonal industrial structures with a long, linear building along Gertrud-Kurz-Strasse. By preserving and repurposing an existing building, the project efficiently accommodates the required program, creating two distinct urban spaces: a lively, urban alley to the north and a nature-oriented garden to the south.

The alleyway engages in dialogue with its industrial surroundings, offering seating areas, green zones, and spaces for social interaction. All entrances to the new building are oriented toward this alley, strengthening its role as a social hub. The northern façade, designed with subtle projections and recesses, establishes a rhythmic and calm architectural presence next to the surrounding industrial landmarks.

The southern garden follows the vision of Gustav Ammann’s welfare gardens, creating a „green oasis” that contrasts with the urban environment and offers a sense of retreat and relaxation. This semi-private green space, accessible yet intimate, extends into the Gustav Ammann Park, forming a continuous green corridor that improves ecological quality and enhances the district’s livability.

On the eastern side, a listed historic building will be converted into attractive residential units overlooking the garden, preserving its historical value while integrating it into the new urban context. Altogether, the project creates a vibrant, balanced quarter that connects the past and future, urban life and natural retreat.

MUSIC SCHOOL

CompetitionforNationalMusicSchoolextensioninJastrzebieZdroj Firstprize

My role

Analysis of competition brief / Analyse der Wettbewerbsunterlagen

Urban and site context research / Standort- und Kontextanalyse

Architectural concept design / Entwicklung des architektonischen Konzepts

Concept sketches and models / Konzeptskizzen und Modelle

3D modeling / 3D-Modellierung

Architectural drawings (plans, sections, elevations) / Architektonische Zeichnungen

(Grundrisse, Schnitte...)

Layout and graphic design of competition boards / Gestaltung der Wettbewerbstafeln

SIA Phase 31-33

Idea: The heart of the project lies in shaping strong, clear relationships between the concert hall, foyer, and public space—anchoring them within the existing urban fabric. It’s a composition of scale, rhythm, and flow.

Public Space:The design is born out of in-depth urban analysis and multiple spatial scenarios. The chosenconcept allows for a natural, uninterrupted flow of pedestrians between the historic National Music School and the new concert hall. Between the volumes, a central square emerges—a new civic space at the core of the complex. On the lower level, facing Kosciuszki Street, the square becomes a formal and symbolic entrance—an urban stage for the concert hall. It connects to a smaller, greener plaza that invites pause and recreation, while also serving users arriving from the parking area. The upper level, more intimate in scale, extends the school’s social life outdoors. It functions as a café terrace, a second entrance, and a quiet zone for students and visitors.

Backstage Flow: All technical functions are discreetly handled via Zeromskiego Street—ensuring efficient delivery and service without disrupting the public realm.

Impact: With its careful placement and dialogue with the surroundings, the new concert hall doesn’t just add a building—it creates a destination. It redefines the urban space, layering it with meaning, movement, and music.

completed: 2022 photos by Maciej Lulko

Technical entrance

Entrance / cafe

Main entrance

Balconies

Entrance „B”

Stage

Cafe

Lift

Entrance „A”

Entrance „C”

Backstage

Evacuation stairs

Foyer / cafe

Entrance to balconies

Foyer / cloakroom

Backstage

Wardrobes

Technical facilities

Toilets

Cloakroom

Info / ticket offices

Existing building

Square

OFFICE BUILDING

CompetitionfortheOfficeBuildingonthePortPopowiceEstateinWroclaw Secondprize

PORT

pracownia i studio architektury: MARCIN KOLANUS, JÓZEF FRANCZOK, MONIKA SMORĄG-MAKSYMIAK MATEUSZ MIKOŁAJÓW, ARTUR NITRIBITT, ZOFIA FEDORÓW, BARTOSZ KOŁODZIEJCZUK, KLAUDIA KOZIOŁ, MARTA WŁÓCZYK & MARIA KĘSY

My role

Analysis of competition brief / Analyse der Wettbewerbsunterlagen

Urban and site context research / Standort- und Kontextanalyse

Architectural concept design / Entwicklung des architektonischen Konzepts

Concept sketches and models / Konzeptskizzen und Modelle

3D modeling / 3D-Modellierung

Architectural drawings (plans, sections, elevations) / Architektonische Zeichnungen (Grundrisse, Schnitte...)

Layout and graphic design of competition boards / Gestaltung der Wettbewerbstafeln

SIA Phase 31-33

The concept assumes creating an economically and ecologically rational building, using the plot’s potential and maximally flexible in the face of dynamically changing needs for office spaces.

According to research, the largest global corporations are not able to determine how their employee profile and demand for office space will look in two years.

The reasons for this are: the changing nature of work, social structure of the young generation and the expectations associated with it, as well as the changing goals and priorities among young people. Therefore, one of the most important goals for modern office buildings is their broadly understood flexibility.

One of the main arguments that companies will try to attract good employees will be a modern, ecological, comfortable and flexible space where various activities and work organization can be created, including recreational and sports spaces basketball court, climbing wall, garden, secure bicycle parking.

The building is located at a busy flyover and from this side is a showcase of the PORT POPOWICE estate, the rawness of the designed building refers to the character of the estate and the industrial history of the place, functionally the building is a working multifunctional machine in line with the latest trends.

/Currently, in the spring-autumn period, about 5-10% of the employed staff commute to work by bicycle - the right infrastructure of the office building is the basis. Due to the increase in the number of these people, a ramp, bicycle racks and a connection with a pedestrian-bicycle route towards the main hall were designed.

/Servicing core - designed in the center of the building does not take the necessary light, fulfills the role of communication and its other fragments can be used freely depending on the needs of a given floor and tenants.

/Opening between floors - the ability to create offices of one company on two levels - vertical communication - connections, networks - adaptation of offices to work.

/Creating places.

/Diversity of working environment.

/Co-working.

/24/7 - the opportunity to work at any time - contact with foreign customers around the clock.

/ work area: 60% work zone 40% support zone.

/Main entrance with a view of the newly designed housing estate - larger glazing, wide window sills providing adequate shade in the summer.

/Facade made of dyed cement fiber.

/Big opening to the newly designed square.

/The ratio of glass to the wall surface - increasing the surface of the full wall due to the proper acoustics in the interior.

/Opening the view of the national road No. 5 - city rush - living city.

/Views from the window - if the view offers a connection with nature, positive effect on productivity growth.

/Plan - part of Port Popowice in Wroclaw

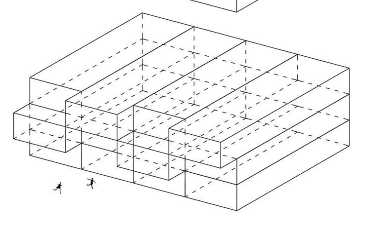
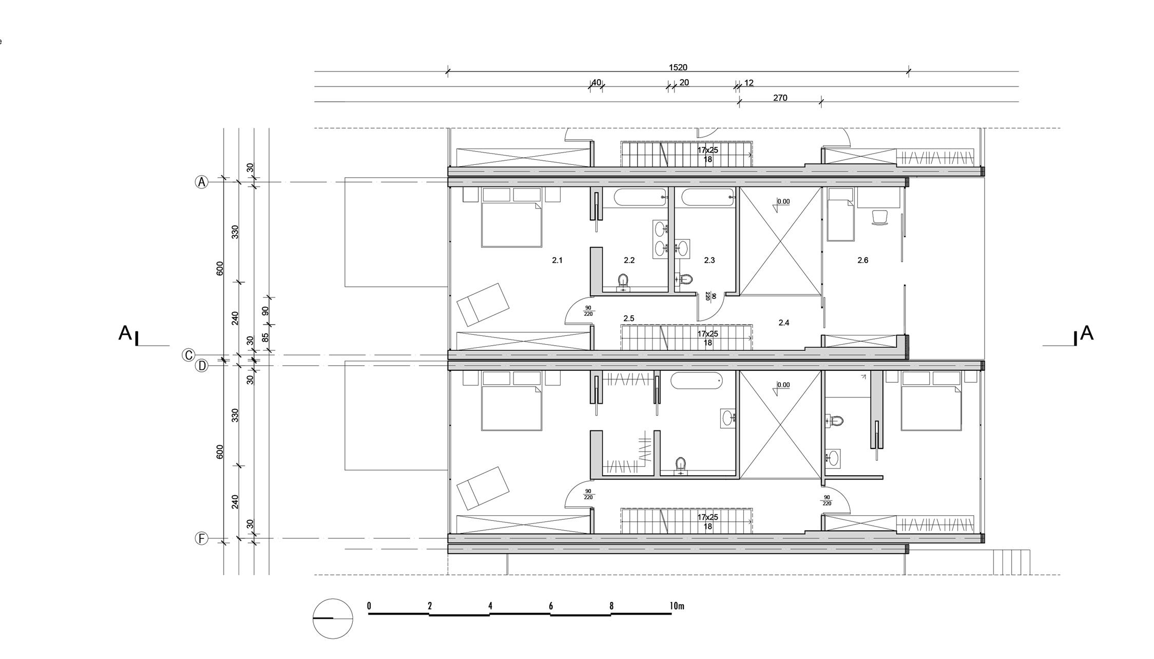
TERRACED HOUSE

DesignClass-firstcycledegree

MONIKA SMORĄG-MAKSYMIAK

Mentor

My role

Student Project - Architectural Design

Preliminary studies / Vorprojekt / SIA 31

This student-designed architectural project embraces the concept of serene living through a series of single-family homes nestled on a small elongated plot. The key focus of the design is to provide residents with both privacy and a strong connection to nature, achieved through expansive terraces and well-designed gardens.

The thoughtful arrangement of these row houses ensures a harmonious blend of individual space and communal living. Each residence boasts a unique layout that maximizes natural light and ventilation, creating a comfortable and inviting atmosphere. The large terraces serve as extensions of the living spaces, offering residents the opportunity to enjoy the outdoors in a private setting.

The exterior facade showcases a creative use of various brick types, adding texture and character to the ensemble. This intentional choice not only enhances the aesthetic appeal of the development but also contributes to a sense of identity for each unit.

//1. A simple form of storey using the plot area, adhering to all restrictions.

//2. Repeat the module on the following levels.

3. Extension of one of the modules - balcony and partial terrace roofing.

4. Extensions - different levels - building form.

//Basic site.
//
//
//NORTH ELEVATION
//SOUTH ELEVATION
//WEST ELEVATION

SCHOOL WITH A VINEYARD

Theareaafter”Ugly,DirtyandBad”.Recerationandschoolwithavineyard. MasterThesis

My role

Concept development / Konzeptentwicklung

Site and context analysis / Standort- und Kontextanalyse

Spatial and functional planning / Räumliche und funktionale Planung

Urban and architectural design / Städtebaulicher und architektonischer Entwurf

3D modeling and visualizations / 3D-Modellierung und Visualisierungen

Design research / Entwurfsforschung

Graphic design and layout / Gestaltung von Präsentationsunterlagen

Project storytelling and presentation / Projektpräsentation und -erzählung

SIA Phase 31-33

The project presents the concept of developing a park with a vineyard in Rome and a new building for the IT school Agrario Domizia Lucilla. The development area is the scene from the Italian film „Ugly, Dirty and Bad” from 1976 in the background of St. Peter’s Basilica. Every year, an increasing number of people move to cities. Often, the search for a better job and a better life means that we run somewhere, forgetting about our own health, as well as about realizing ourselves and listening to what our body tells us. In large cities, we are exposed to noise on every day basis, which is why it is so important to take care of parks and urban greenery. Green spaces are becoming the only springboard from concreted streets, high skyscrapers and crowds of strangers. Monte Ciocci Park and its vineyards can become a peaceful place for the citizens of Rome, where they will be able to realize themselves socially and individually, caring for their traditions. The building complex can serve not only the IT school Agrario Domizia Lucilla, but workshops and activities in this area can reach a larger audience, realizing the importance of taking care of nature. It is here, looking towards St. Peter’s Basilica, you can feel the real Italy and get inspired by the rural and urban idyll.

Film scene from „Ugly, Dirty and Bad”directed by Ettore Scola, Italy 1976.

1.Terrazza del Gianicolo|2.Terrazza del Pincio|3.TerrazzaViale del Belvedere|4. St. Peter’s Doe,Vatican|5. Castel Sant’ Angelo|6. Giardino degli Aranci|7. ‘La Grande Bellezza’ Rooftop|8. ’La Grande Bellezza’ Rooftop|9. RooftopTerrace at Hotel Raphael |10. Lo Zodiaco |11. Ponte Umberto I |12. Parco Monte Ciocci

Axonometry - existing state.

Tiber

The study area is over 27ha, including over 24 ha biologically active aea, with various types of plants, trees and grasses.

Patio
solid - concept one square - interior
arcades - colonnade
entrance to the vineyards | view | frame
technical blocks | ventilation room | roof exit

MAST

ModularAffordableSustainableTemporaryhousing

MONIKA SMORĄG - MAKSYMIAK, RUI

RAMALHEIRA & MAŁGORZATA ZIELONKA

Mentor prof. Juan Manuel Ros Garcia

My role

Analysis of competition brief / Analyse der Wettbewerbsunterlagen

Architectural concept design / Entwicklung des architektonischen Konzepts

Concept sketches and models / Konzeptskizzen und Modelle

3D modeling / 3D-Modellierung

Creating collages / Erstellen von Collagen

Researching material solutions / Materialrecherche und -lösungen

Exploring structural solutions / Entwicklung konstruktiver Lösungen

Architectural drawings (plans, sections, elevations) / Architektonische Zeichnungen (Grundrisse, Schnitte...)

Layout and graphic design of competition boards / Gestaltung der Wettbewerbstafeln

SIA Phase 31-33

Good design is important, but when it goes to supporting communities, we have to go far beyond just a good design. The main driving force behind MAST is to recreate what people from Indonesia would have experienced in a normal situation. Our goal is to allow residents to build the houses themselves and then pass on the knowledge to other communities. Using locally sourced renewable material, like bamboo, we can improve they knowledge about sustainability and by cultivating, processing and trading the product, that is very easy to harvest, we can raise money for another houses.

The

Building

4Humanity Resilient Design Competition FINALIST

An international competition organized by the NGO Building 4Humanity and supported by the 8th International Conference on Building Resilience (ICBR Lisbon 2018).

MODULARITY

In order to adapt to the needs of it’s inhabitants MAST comes in 3 sizes: S, M and L. Modules, measuring 1.2 meter x 1.5 meter, can be easily assembled and disasebled.

FLEXIBILITY

By creating modular, transformable spaces we want the house to react to the changing needs of building occupants. MAST is made from 1.2 meter wide segments, that can easily be connected and disconnected, to make the house highly flexible. Moreover, the segments can be reused over and over again and are recyclable.

SUSTAINABILITY

The special roof shape of the MAST enables an effective, natural ventilation, at the same time as it collects the rain water. All the rain water that falls on it to flow down into a gutter. This gutter, made of bamboo, is linked to an other bamboo that recuperates all the water into a 200L tank where the water is filtered and ready to be used. One module can recuperate 82L of water over a year so the three modules used to make the tiny house allow us to recuperate 248L.The exterior features a grid of solar panels, depending on the number of modules used from 2 to 4 solar panels, which can generate up to 4,000 kWh per year, roughly the amount of energy needed to power the home.

MOBILITY

Due to the fact that Indonesia consists over 17 thousand islands and the refugees are spread across the whole country the house has to be portable. Therefore the elements of the structure don’t exceed 1,7 x 5,5m and can be easily transported. The segments will be made in a workshops and when ready can be transported and connected on the spot in one day. With an aproxiamted weight of only 500 kilos per segment MAST can be placed wherever is necessary.

TRADITION

Architecture in Indonesia is mostly influenced by cultural diversity, history, and geography. Indonesia has 33 provinces, each of Indonesia’s ethnic groups has its own distinctive form of the traditional vernacular architecture, known as rumah adat. Traditional homes of Indonesia share a number of characteristics such as timber construction, varied and elaborate roof structures. Our aim was to incorporate the traditional Inodesian architecture into XXI century, connecting the heritage with modern development.

Roof is one of the most important elements in the building, maximizing the use of natural conditions and creating a link to traditional Indonesian architecture. Raising the structure of the roof allows natural ventilation, while the flexure helps to collect the rainwater and creates the optimum tilt for solar panels.

Wall is made from two elements, bamboo panel visible from the outside and playboo facing the interior, separated by a distance of 10 cm allowing better thermal insulation. Elements are connected with columns through zinc plates and tied with horizontal elements with vegetal/steel cords and metal anchores.

Columns are made from bamboo with a measure of Ø100mm providing the main distribution of weight.

Zinc plates attached to main columns are strengthening the bamboo and allowing the connection of columns with exterior walls.

The floor construction is raised 50cm from the ground to prevent the building inundation during the frequent floods. Horizontal structure elements are made from Ø 100mm bamboo and connected to the vertical structure using traditional techniques with vegetal/steel cords and metal anchores.

Foundations are made from prefabricated elements: concrete base and zinc connectors allowing to easily bind them with the structure. It also allows quick disassembly and mobility.

CONSTRUCTION

Houses can adapt to any area. The project concerns the island of Lombok, however, it can be implemented throughout Indonesia thanks to repetitive and easy to transport elements, eveything is based on a module 1,2 meters x 1,5 meters so people can mix the options to create a house that fulfill their needs the best. The aim of MAST is not only to serves its purpose as a shelter and support for the people in need but also, when multiplied, to give people a chance to create community by providing them their own private space, a home to live in and a neighborhood to meet with others.

FORM

A major concern in Indonesia is unresolved conflict and its impacts, in particular the increasing number of people living in refugee camps. The number of refugees may increase, not only because of the endless conflict, but also because of natural disasters such as floods and typhoons. The main driving force behind the project was to somehow recreate what these people would have experienced in a more normal situation. To not only provide a shelter for the people in need, but give them a sense of home, architecture they are familiar with.

HERBERT’S PAVILION

Paviliondedicatedtotheworkof poetZbigniewHerbert

PAWEŁ BALCER, SZYMON CIUPIŃSKI, MAŁGORZATA DENYSIUK, JOANNA GRONOSTAJSKA, AGATA JASIOŁEK, PATRYCJA JĘDRA, JUSTYNA KAŹMIERCZAK, ELŻBIETA KŁECZEK, DAMIAN KUNA, MACIEJ MARSZAŁ, KONRAD NIEDŹWIEDZIŃSKI, AGNIESZKA OWCZAREK, MONIKA SMORĄG-MAKSYMIAK, JULITA TAMOSIUNAITE, WOJCIECH WIŚNIEWSKI, AGATA WITCZAK, YURI ZABUZHKO, MAŁGORZATA ZIELONKA

Mentors: PhD Jerzy Ładka prof. Romuald Tarczewski

My role

Concept design / Konzeptentwicklung

Material selection / Materialauswahl

Material testing under various weather conditions / Materialtests unter verschiedenen Witterungsbedingungen

On-site pavilion construction / Bau des Pavillons vor Ort

Artistic curation – selection of poems displayed on paper strips / Künstlerische Gestaltung – Auswahl der Gedichte auf Papierstreifen

Graphic development of the concept / Grafische Ausarbeitung des Konzepts

SIA Phase 31-33 / 52-53

The inspiration of the pavilion form was the forest, that is a perfect, finite ecosystem, whose features was synthesized to give it the properties of the building. The basis idea was to separate the pavilion into three integral parts: the base - forest undergrowth, pillarstree trunks, and roofing - tree crowns. Each part was to receive its own unique organic character - the base was to take a round shape, the poles were to deviate from the vertical, and the roof was to allow the light clearance. The last factor affecting the form of the pavilion was the perception of dynamic form. The forest remains in constant motion, to recreate this sense of movement paper belts were placed hanging from the roof. They have three basic functions: visually complement the solid - give it a visual weight, bring a sense of ephemerality and volatility by movement and became the carrier of the exhibition.

That’s how FOREST was created.

IDEA

Our goal was to create an object that can be rediscovered with every visit, where you can search for it and discover what kind of man Zbigniew Herbert is, but also have time to focus on his poems. Nineteen panels placed in the roof contain information about Herbert’s life and work, quotes from his poems, as well as his photographs and hanging strips are printed with Herbert’s poems.

CONTRUCTION

Before constructing the pavilion, a number of strength tests were carried out in the laboratory of the Faculty of Construction. Both the detail of column joints and previously prepared composites made of corrugated board or honeycomb panels have been tested. The research results provided confirmation of the legitimacy of the solutions adopted at all times have been optimized in terms of effectiveness, ease of implementation and minimization of the costs of materials used. This continued until the completion of the construction of the pavilion.

PUBLICATIONS

https://www.youtube.com/watch?v=d3rjAIcLtOE https://pwr.edu.pl/uczelnia/aktualnosci/studencki-pawilon-dla-zbigniewa-herberta-10943.html https://www.rmf24.pl/kultura/news-tekturowy-pawilon-poswiecony-zbigniewowi-herbertowi-stanal-n,nld,2607685 https://wroclaw.wyborcza.pl/wroclaw/7,35771,23684283,papierowy-dom-herberta-studenci-zaprojektowali-i-zbudowali.html https://www.wroclaw.pl/go/wydarzenia/sztuka/1265455-otwarcie-pawilonu-zbigniewa-herberta http://booklips.pl/newsy/studenci-politechniki-wroclawskiej-zbudowali-papierowy-pawilon-dla-zbigniewa-herberta/ https://radiogra.pl/papierowy-pawilon-z-tworczoscia-herberta.html https://instytutksiazki.pl/aktualnosci,2,studenci-politechniki-wroclawskiej-w-holdzie-herbertowi,1457.html

DOMESTICATING ARCHITECTURE

EcologicalresidentialsettlementlocatedinMadrid,Spain CEUSanPablo

MONIKA SMORĄG-MAKSYMIAK

Mentors: prof. Maria Auxiliadora Galvez Perez prof. Valerio Oriol Canals Revilla

My role

Student Project - Architectural Design Preliminary studies / Vorprojekt / SIA 31

The project of the new community in the neighborhood of Avenida de Daroca is based on creating a self-sufficient place, producing goods, providing civic, ecological, environmental values. It is also a place for victims of domestic violence and their children, which is why it is so important that this place is for them a new start to a better future, teaching how to take care for this piece of land. This area is currently being used mainly as a wasteland, but it has potential to become a place where people of all ages can gather as a community.

Site

The Site is located in Avenida Daroca, next to a cemmentary, this area is currently being used mainly as a wasteland, but it has potential to become a place where people of all ages can gather as a community. The site was being significantly changed through time, where new routes and paths had being made, trying to accomodate its users. Although it is near areas that has been know to be crowded, this site tends to be forgotten and only a small amount of users can be found in certain areas of the site.

The site has a rich topography consisting of deeper areas, enclose by their landscapes, where people can be able to see the biodiversity of the place and have contact with nature. Higher points also serve as viewpoints to watch the whole city in the distance.

Inspiration

„Sensitive Chaos” by Theodor Schwenk is a very good example about water. More than ever before, today we need the „water consciousness”. The spiritual, formative processes are gradually brought to light. Creative Word in the universe.

Program

Around our area, we have found many organizations and associations that can help us implement the project. Specialists in the field of ecology, psychology and education will significantly influence the activities carried out, thanks to which we expect better results in the conducted works. We would like to involve the residents very much. They will spend the most time in this place. Specialists are to help in the implementation of systems and be educators for current and future residents so that their knowledge can be passed in the form of workshops and then appropriately educated people will be able to teach future generations how to live in harmony with nature and other people.

APARTMENT AT STASZIC SQUARE

Wroclaw,Poland completed

KOHLRABI: FILIP SYMONOWICZ, AMELIA SYMONOWICZ & MONIKA SMORĄG-MAKSYMIAK

My role

Client consultation, needs and lifestyle analysis / Kundenberatung, Bedarfs- und Lebensstilanalyse

Concept design: functional layout, moodboards, style direction / Konzeptentwurf: Variantenstudie, Moodboards, Stilrichtung

Material, furniture, and color selection / Auswahl von Materialien, Möbeln und Farben

Lighting and equipment planning / Planung von Beleuchtung und Ausstattung 3D modeling and visualizations / 3D-Modellierung und Visualisierungen

Technical drawings: plans, elevations, details / Technische Zeichnungen: Pläne, Ansichten, Details Cost estimation and tendering / Kostenschätzung und Ausschreibung

SIA Phase 31-33 / 41

The flat design for a young student fascinated by the Milburn house from the TV series Sex Education. The series is about modern times, but the aesthetic of the set design may remind us of the 1980’s. The patterned, floral wallpaper by Morris & Co or Cole & Son’s helps to bring us back to a completely different world. This is what captivated our client and she really wanted her first independent flat to have a similar vibe. The apartment is located in an old townhouse in Wroclaw. We were able to keep the old door frame between the kitchen and the living room and it has now been given a new colour. Due to the height of the rooms, it was decided to use a loft space with a bed and a chest of drawers. The space underneath the mezzanine is used for storage and a work area.

TADZIO’S ROOM

Child’sRoominWroclaw,Poland inprogress

KOHLRABI: FILIP SYMONOWICZ, AMELIA SYMONOWICZ & MONIKA SMORĄG-MAKSYMIAK

My role

Client consultation, needs and lifestyle analysis / Kundenberatung, Bedarfsund Lebensstilanalyse

Concept design: functional layout, moodboards, style direction / Konzeptentwurf: Variantenstudie, Moodboards, Stilrichtung

Material, furniture, and color selection / Auswahl von Materialien, Möbeln und Farben

Lighting and equipment planning / Planung von Beleuchtung und Ausstattung

3D modeling and visualizations / 3D-Modellierung und Visualisierungen

Technical drawings: plans, elevations, details / Technische Zeichnungen: Pläne, Ansichten, Details

Cost estimation and tendering / Kostenschätzung und Ausschreibung

SIA Phase 31-33 / 41

Tadzio’s room is one of the first projects I had the opportunity to work on at the Kohlrabi studio. Tadzio himself does not yet have a favourite theme or hobby, but he is very fond of animals. The space the boy needs now and for the next few years has to be functional and grow with him. The room includes a wardrobe with two handle heights so that the boy can already open it himself. There is also a desk and bookcases - first for toys and in the future for books. The standout feature is the wallpaper with the safari motif and the monkey-shaped lamp located on the same wall.

CHWASTY I KONTRASTY

WeedsandContrasts- floriststudioinWroclaw,Poland completed

MONIKA SMORĄG-MAKSYMIAK

My role

Client consultation, needs and lifestyle analysis / Kundenberatung, Bedarfs- und Lebensstilanalyse

Concept design: functional layout, moodboards, style direction / Konzeptentwurf: Variantenstudie, Moodboards, Stilrichtung

Material, furniture, and color selection / Auswahl von Materialien, Möbeln und Farben

Lighting and equipment planning / Planung von Beleuchtung und Ausstattung

3D modeling and visualizations / 3D-Modellierung und Visualisierungen

Technical drawings: plans, elevations, details / Technische Zeichnungen: Pläne, Ansichten, Details

Cost estimation and tendering / Kostenschätzung und Ausschreibung

Site supervision and coordination with contractors / Baustellenaufsicht und Koordination mit Auftragnehmern

SIA Phase 31-33 / 41 / 51-53

Chwasty i Kontrasty is a project created for amazing friends who decided to quit their corporate jobs and open their own flower shop to follow their dreams. The service venue is small in size, with a tiny back room and a rather small sales area. Due to the limited budget, shelving and other furniture was designed using simple and inexpensive building materials. Geometric shapes and colour on the walls were used to brighten up the interior. However, the colours of the flowers and the greenery of the plants are to play the main role. The counter was made of wooden plywood and terrazzo panels. In the back of the sales area, there is a bespoke folding table for art workshops for 6 people.

RE-DRAW

Graphics,Collage

RE-DRAW Competition

Casa da Musica Experimental Architecture Representation

finalists

MONIKA SMORĄG-MAKSYMIAK & JUSTYNA KAŹMIERCZAK

Graphics,Drawing,Art

MONIKA SMORĄG-MAKSYMIAK

During the years of studies and professional work I had the opportunity to work on various projects and at various stages. Architecture for me is also a different approach, a different perspective, transferring thoughts and ideas onto paper, on quick sketches, more refined works as well as collages and graphics.

monika.smorag94@gmail.com

(+41)767568887

(+48)694155662

Turn static files into dynamic content formats.

Create a flipbook
Issuu converts static files into: digital portfolios, online yearbooks, online catalogs, digital photo albums and more. Sign up and create your flipbook.