Portafolio de Arquitectura

Page 1

PORTAFOLIO

Mónica Lozano de la Garza

20 23

MÓNICA LOZANO

monicalozano1600@gmail.com

+52 (81) 1025 5752

issuu.com/monica.lozanodlg

monicalozano.arq

SOBRE MÍ

Actualmente soy estudiante residente en México que busca formar experiencias profesionales y continuar aprendiendo de arquitectos de alrededor del mundo. Siento fortuna de poder encontrar mi aspiración en la arquitectura y de poder dedicarle mi tiempo a esta forma de arte que muestra la historia y cultura humana. Pienso que mi misión como arquitecta es crear un futuro en el que cada construcción deje un impacto positivo al entorno y la comunidad.

CURRICULM VITAE

EXPERIENCIA AGGA

EXTRACURRICULAR

GANADORA 1ER LUGAR EN “LO MEJOR DE LO MEJOR”

ORGANIZADORA DE EVENTO PROYECTA

PARTE DEL COMITÉ DE COMAS

EDUCACIÓN

TECNOLÓGICO

SOFTWARES AutoCAD

Adobe Programs

(Photoshop, Illustrator, InDesign)

Sketchup

IDIOMAS ESPAÑOL

C2 - Lengua Nativa

INGLÉS

C1 - Muy competente

FRANCES

B1 - Intermedio

Revit Vray Lumion ArcGIS Opus Microsoft Programs
ARCHITECTS
profesionales 2021 NEWNESS STUDIO
profesionales y auxiliar 2022 LIDEC Creación de contenido 2023
Prácticas
Prácticas
MONTERREY
terminada
DE
Preparatoria
2019
UANL - UNIVERSIDAD AUTÓNOMA DE NUEVO LEÓN Facultad de Arquitectura 2024
ÍNDICE 01 FILORMA CENTRO CULTURAL 02 ALANOSIS VIVIENDA ASEQUIBLE 03 LOTUS REFUGIO PARA MUJERES 04 SAN BERNABÉ REINTEGRACIÓN URBANA

01 FILORMA

CENTRO CULTURAL

Es un centro cultural que tiene como objetivo que los usuarios puedan participar y vincularse dentro de espacios multi-funcionales, a través de actividades culturales, artísticas, de desarrollo personal y encuentros sociales. Considerando que este proyecto es de vivencia personal y accion colectiva, se busca crear un lugar de libertad y de belleza arquitectónica para la población.

- Ubicación: Arboledas de San Roque, N.L.

- Tipo: Comunitario

- Área: 9,500 M2

- Año: 2022

PLANTA DE CONJUNTO

VISTA INTERIOR - RECEPCIÓN

COMPOSICIÓN

La idea principal es que exista una circulación coherente entre espacios polifuncionales, creando una integración de módulos de distintos tamaños y con espacios de escala monumental.

PLANTAS ARQUITECTÓNICAS

PROGRAMA ARQUITECTÓNICO

Planta Baja

Planta Alta

Circulación principal Circulación secundaria

Acceso a escaleras

Áreas verdes

Zonas de agrupación Áreas para talleres Áreas de servicio

Zonas de exhibición

Zonas de estudio

Planta Baja Planta Alta

CORTES EN AXONOMETRÍA

INTEGRACIÓN SUSTENTABLE EN EXTERIOR

Zonas de descanso y sombra natural. Aquí se integra el mobiliario urbano (bancas, luminarias, botes de basura, etc.)

Pozo de absorción como solución para el drenaje de agua pluvial

Filtro Watergen. Un sistema tecnológico que logra captar el aire, filtrarlo y condensarlo para generar agua que se almacena y utiliza para el huerto.

Huerto comunitario. Utiliza composta orgánica, el sistema de riego es automático con el agua captada en el filtro de aire.

02 LOTUS

REFUGIO PARA MUJERES

El objetivo del refugio es que pueda proporcionar aspectos esenciales de protección, servicios y recursos que permitan a las mujeres a sobreponerse de la violencia. Las personas que utilicen el espacio se encontrarán en un proceso para potencializar el ejercicio pleno de sus derechos, autonomía y sus habilidades, con un modelo basado en el desarrollo de acciones de índole psicosocial y socio jurídico

- Ubicación: Guadalupe, N.L.

- Tipo: Residencial comunitario

- Área: 13,000 m2

- Año: 2022

CONCEPTUALIZACIÓN

El acomodo de los espacios rodea los patios, con el fin de que exista una mejor ventilación e iluminación

Enfoque principal en áreas verdes, para que exista una conexión al exterior pero que al igual se mantenga privado el espacio

En la segunda planta aún se pueden apreciar los jardines del nivel inferior

PROPUESTA DE EXTERIOR

Fachada oculta, que se integre con el contexto urbano

Celosía de ladrillo, un material sostenible y que al igual ayuda a la circulación de viento natural

Utilización de color rosa, como simbolismo de la mujer mexicana

Módulo de vigilancia

Circulación de espacios amplios Sistema de seguridad fijo

VIVIENDA Y ESPACIOS DE MEJORA

Los espacios se han implementado con estrategias que consideran los traumas que los usuarios pudieron haber experimentado, para que el interior del edificio pueda ayudar en el proceso de curación. Utilizando un nuevo concepto llamado “TiD”, el entorno físico del proyecto se filtra a través de información que nos otorga la psicología, neurociencia y la fisiología para que puedan tener una sensación de seguridad, respeto, conexión, comunidad, dignidad y alegría dentro de sus factores culturales.

PLANTA BAJA
PLANTA ALTA
PROGRAMA ARQUITECTÓNICO

03 ALANOSIS

VIVIENDA ASEQUIBLE

El desarrollo para el proyecto de usos mixtos (habitacional con comercio) ofrece una oportunidad de vivienda digna, cómoda y económica para mejorar la calidad de vida de las personas y crear una regeneración urbana integral. Mediante un análisis detallado del sitio, considerando su entorno natural y la información sociodemográfica, hemos creado un diseño que maximiza la sostenibilidad y el bienestar de los residentes.

- Ubicación: Casco Urbano SPGG, N.L.

- Tipo: Residencial con comercio

- Área: 3,6900 m2

- Año: 2023

PLANO MACRO MAESTRO

CONCEPTUALIZACIÓN

01

Se propone una estructura que siga una retícula

Estrategias

Implementación de un diseño inclusivo

Vías multimodales para vehículos, peatones y ciclistas

Conceptos rectores

Integración de accesos para zonas principales.

02

Se propone la orientación adecuada para generar confort.

03

Se generan sustracciones para remarcar la circulación.

Mejora de banquetas con zonas de descanso

Integración de más rutas y paradas de transporte público

Pozos de absorción como solución para agua pluvial

Iluminación LED con tecnología “Tunable White”

04

Se integran parasoles en la cancelería y en muros.

Se plantea una orientación del edificio que pueda captar luz natural con protección al calor.

Crear áreas de encuentro comunitario, incluyendo mobiliario urbano confortable, como bancos y mesas.

PLANTAS ARQUITECTÓNICAS

PLANTA BAJA - COMERCIO

TIPOLOGÍA DE DEPARTAMENTOS

ZONA SOCIAL

TIPO 1 TIPO 2 TIPO 3

ZONA COMERCIAL

CORTE LONGITUDINAL

CORTE TRANSVERSAL

04 SAN BERNABÉ

REINTEGRACIÓN URBANA

En México se ha vuelto común vivir en una residencia que perjudique constantemente el bienestar del habitante. En Enero del 2022, la colonia San Bernabé fue consuida por un incendio que ocasionó la pérdida de 102 hogares para 37 familias. El propósito del proyecto es reubicar a las víctimas del incencio en viviendas prácticas, con aspectos de confort y que sean económicas.

- Ubicación: Valle de San Bernabé, N.L.

- Tipo: Viviendas Sociales

- Área: 22,300 m2

- Año: 2021

ANÁLISIS DE SITIO

Factores climaticos

La temporada calurosa es de Mayo a Septiembre, con una temperatura máxima de 35 ºC y mínima de 24 ºC

La temporada más fresca es de Noviembre a Febrero, con una temperatura máxima de 22 ºC y mínima de 10 ºC.

Industrias

Almacén/Transporte

Servicios

Comercios

370 comercios se dedican al negocio de comercio minorista, generando alrededor de $524 millones de pesos en ingresos anuales y empleando alrededor de 1200 personas

Comercial

Comercial habitacional

Habitacional media densidad

Habitacional baja densidad

Parque

Cuerpo de agua

Equipamiento religioso

Privado

Área de enfoque

Se estima un aproximado de más de 60 viviendas. El área fue victima de un incendio en Enero de 2022, provocando la pérdida de las viviendas

de calor 17ºC - 19ºC 20ºC - 22ºC 23ºC - 25ºC 26ºC - 29ºC 30ºC - 32ºC 33ºC - 35ºC
de invierno
Denue Islas
Sol
Sol de verano
Casa Habitacional Terreno Baldio Casa Habitacional Casa Habitacional

MASTERPLAN

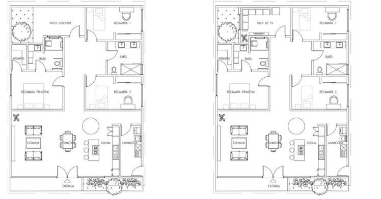
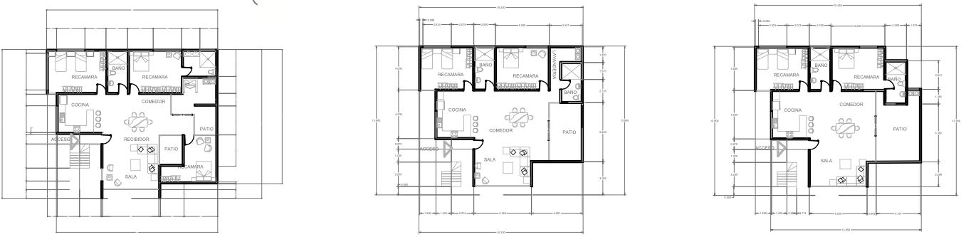
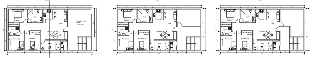
TIPOLOGÍA HORIZONTAL

Planta Baja Planta Alta

Planta 3 Planta 3 (Opcion 2) Elevaciones

TIPOLOGÍA 1

Planta Baja Planta Alta Elevación

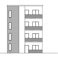
TIPOLOGÍA VERTICAL

TIPOLOGÍA 2

TIPOLOGÍA 3

TIPOLOGÍA 4

Fase 1 Fase 2 Fase 3 Elevación Fase 1 Fase 2 Fase 3 Elevaciónes

Turn static files into dynamic content formats.

Create a flipbook
Issuu converts static files into: digital portfolios, online yearbooks, online catalogs, digital photo albums and more. Sign up and create your flipbook.
Portafolio de Arquitectura by monica.lozanodl - Issuu