Architecture Portfolio - Momena Hamid

Page 1

P O R T F O L I O MOMENA HAMID 2023

MOMENA HAMID

My design approach revolves around a harmonious integration of form and purpose, where each element tells a unique story. I aspire to craft spaces that seamlessly blend functionality and aesthetics.

I believe in creating environments that not only serve their intended functions but also evoke emotions and resonate with the people who inhabit them

With a strong academic foundation in designing structures, I deliver my skills to not only the style but also the substance of any project.

EDUCATION

2020- Present: Amity University Dubai, UAE

Bachelor of Architecture (B.Arch)

2018-2020: Cambridge International School, Dubai,UAE

Higher Education/ A levels

ANALOGUE SKILLS

Design and Relevant Research

Editorial Design

Hand Sketching

Insight Mining

Collaborative Planning

Resourceful Design

LANGUAGE PROFICIENCY

Dubai, UAE

+971 545353682

momenahamid@icloud.com

English

Urdu / Hindi

French

Arabic

SOFTWARE SKILLS

EXPERIENCE

2021 - Present: PRETTYLITTLETHING, Creative design team, Creative Executive, Dubai Market

2022: CION Lighting and Design Company, Sharjah, UAE (participant and winning team).

2019- 2022: SIVVI by Noon, Dubai MENA, Brand Ambassador

SOFT SKILLS

Detail-oriented

Observant

Hard-working

Analytical

Flexible

Communicative

Decision-making Leadership

95% 70% 60%
CONTENTS RESILIENT RESIDENCE HISTORICAL HAVEN RESIDENTIAL LANDSCAPE 01. 02. 03. 04 10 18

RESILIENT RESIDENCE

Karama, Dubai, UAE

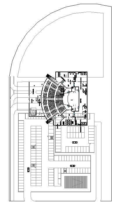
In the macro perspective of the residential housing project in Karama, Dubai, the focus lies on the repeated, staggering layout and its ability to achieve resilience, optimizing structural integrity against environmental challenges.

The design incorporates angled placements of studio, one, two, and three-bedroom apartments, creating a diverse urban fabric that encourages community engagement.

The integration of retail, commercial spaces, and landscaped areas within the site enhances the neighborhood's vibrancy, fostering a resilient and interconnected living environment.

01
04
RESILIENT RESIDENCE 05
STRUCTURE MASSING :
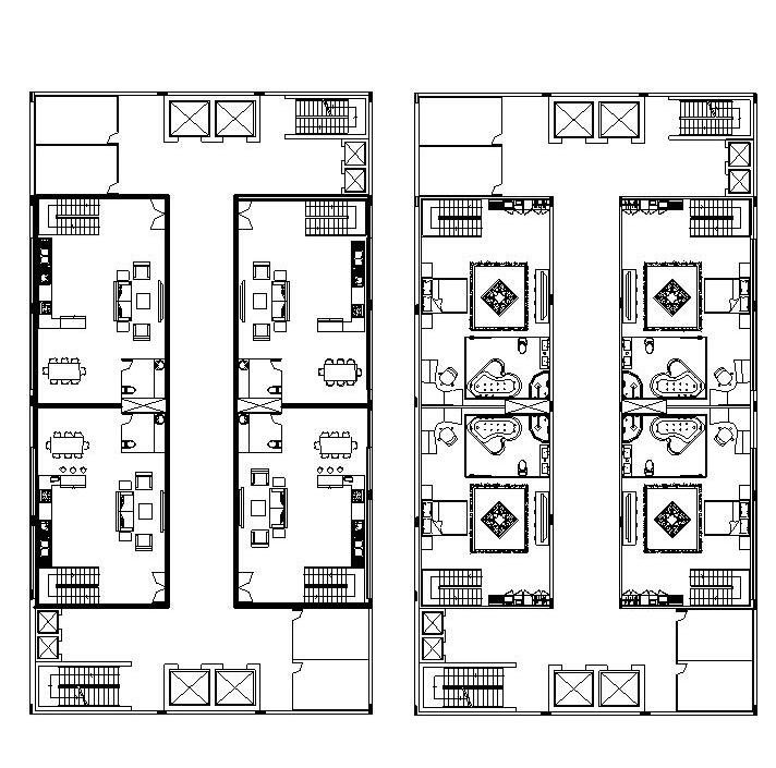
STUDIO 1 BHK 2 BHK
APARTMENT FLOOR PLAN RESILIENT RESIDENCE 06
3 BHK

TYPICAL FLOOR LEVEL LAYOUT

RESILIENT RESIDENCE 07
Studio Apartment
BHK Apartment
BHK Apartment
BHK Apartment Commercial Retail Communal Leisure Parking Entrance/ Exit MASTER PLAN RESILIENT RESIDENCE 08
1
2
3
Studio Apartment 1 BHK Apartment 2 BHK Apartment 3 BHK Apartment Commercial Retail Communal Leisure Parking Entrance/ Exit SITE LANDSCAPING RESILIENT RESIDENCE 09

02

HISTORICAL HAVEN

Downtown Cairo, Egypt

The project is briefed to include mixed-used functions of both high-rise and low-rise structures that include luxury, upperclass identity.

My conceptual approach to this design program is the ‘Transition of History’ seen in Egypt throughout its beautifully lived years. The building facades are the primary focus, delivering a duality of modern classy styles seen in Egypt today, with a more traditional, rural style seen before its urbanization.

10
HISTORICAL HAVEN 11
UNDERGROUND BASEMENT STRUCTURES
BASEMENT LEVEL 1 BASEMENT LEVEL 2
SECTION SECTION HISTORICAL HAVEN 12
BASEMENT LEVEL 3

MAIN OFFICES AND LOBBY

HISTORICAL HAVEN 13
UPPER LEVEL FLOOR PLAN LOWER LEVEL FLOOR PLAN
HISTORICAL HAVEN 14
UPPER LEVEL FLOOR PLAN LOWER LEVEL FLOOR PLAN HISTORICAL HAVEN RESTAURANT AND EXHIBITION CENTRE 15
SECTIONS HISTORICAL HAVEN HIGH-RISE LUXURY APARTMENT TOWER 16
FLOOR
PLAN
HISTORICAL HAVEN 17
03 RESIDENTIAL LANDSCAPE 18

SITE 01:

AL- MUHAIWAT, AJMAN, UAE

Al-Mowaihat is a community located towards the south of Ajman, near the Sharjah – Ajman border.

The community is divided into three sectors which are Al-Mowaihat 1, Al-Mowaihat 2, and AlMowaihat 3. One of the defining features of this community is that to its immediate west, is the AlTallah community.

19 RESIDENTIAL LANDSCAPE - SITE 01
3D
RESIDENTIAL LANDSCAPE - SITE 01 20
RENDER OF LANDSCAPE
RESIDENTIAL LANDSCAPE - SITE 01 21
3D RENDER OF LANDSCAPE
3D RENDER OF LANDSCAPE RESIDENTIAL LANDSCAPE - SITE 01 22

Bentgrass

Season: Cool

Texture and color: Soft and dense; medium green

Maintenance: High

Sun Exposure: Full-time

Water requirement: Regular

Season: Cool

Texture and color: Fine and lush, deep dark green

Maintenance: Regular

Sun Exposure: Full-time

Water requirement: Regular

Perennial ryegrass Agrostis stolonifera Lolium perenne FOLIAGE PLACEMENT KEY:
P L A N T P A L E T T E RESIDENTIAL LANDSCAPE - SITE 01 23
Dispersed throughout site

Wood Panel Gazebo

Color: Honey Oak

Dimensions L:140 W:40 H:42 cm

Material: Electroplated Stainless Steel

Color Khaki

Dimensions: 13 Ft W x 9 7 Ft D

Material: Metal, Polyester

Grove Hanging Swing

Color: Beige Grey

Dimensions: 36X110X195 cm

Material: Aluminum frame, tweed rope

Fountain

Color: Gray

Dimensions: Panel-4x180 Basin-270x45x30cm

Material: Granite

outdoor seating Couch

Color White, cream

Material: Metal, wood

Outdoor Set Table

Color White

Dimensions: 36X110X195 cm

Material: Wood, metal, PVC

01 02 03 04 05 06
01 02 03 04 05 06 M A T E R I A L B O A R D RESIDENTIAL LANDSCAPE - SITE 01 24
RESIDENTIAL LANDSCAPE - SITE 01
25
3D RENDER OF LANDSCAPE

SITE 02

NADD AL SHEBA 1, DUBAI

Nad Al Sheba is a residential community by Nakheel with villas in Dubai.

Nad Al Sheba is perfectly located south of Dubai Creek. In the North, it borders with Al Markada (part of Bur Dubai) and Bu Kadra residential complex. In the West - with Al Quoz, known for its vibrant art community.

26 RESIDENTIAL LANDSCAPE - SITE 02
RESIDENTIAL LANDSCAPE - SITE 02 27
3D RENDER OF LANDSCAPE
3D RENDER OF LANDSCAPE RESIDENTIAL LANDSCAPE - SITE 02 28
3D RENDER OF LANDSCAPE RESIDENTIAL LANDSCAPE - SITE 02 29

Geranium

White camelia

Season Year-round

Texture and color: Velvety, light pink or white.

Maintenance: Moderate

Sun exposure: Partial

Water requirement: Moderate

Season: Winter to Spring

Texture and color: Glossy, white

Maintenance: Low

Sun Exposure: Partial

Bluegrass

Wter Requirement: Moderate

Season: Deciduous

Textureandcolor: Delicate and dense muted green

Maintenance Moderate

SunExposure Full-time

Waterrequirement Moderate

Season: Cool

Textureandcolor: Fine, muted green

Maintenance Low

SunExposure: Full-time

Waterrequ rement Moderate

Bentgrass

Season: Cool

Texture and color: Soft and dense; medium green

Ma ntenance: H gh

Sun Exposure Full-time

Water requirement: Regular

Season: Cool

Textureandcolor: Fine and lush deep dark green

Ma ntenance: Regular

SunExposure Full-time

Waterrequirement Regular

Golden Robinia Camellia japonica FOLIAGE PLACEMENT KEY: Flower Bed Dispersed throughout site Pelargonium hortorum Perennial ryegrass Poa pratensis Robinia pseudoacacia 'Fr s a Agrost s stolonifera
P L A N T P A L E T T E RESIDENTIAL LANDSCAPE - SITE 02 30
Lolium perenne
01 02 04 05 06 01 02 03 05 06 Grey pavement tiles
bed Garden screen Color: Charcoal Grey Weight: 15kg Material: Sone Color Stone grey Dimensions: 4x8x 5cm Material Br ck Color Cedar Dimensions: 1200x600x20mm Material: Wood
outdoor hub
2 25
White Dimensions: 1200x600x20mm Material Concrte 03 M A T E R I A L B O A R D RESIDENTIAL LANDSCAPE - SITE 02 31 04
Potting
Concrete steps walkway Sunroom
Outdoor dining seating Color: Grey, sage green Material: Mixed mataerials Color White We ght
kg Material Polypropylene Alum num Glass, Polycarbonate Color

DESIGN SPEAKS FOR IT’S ITSELF.

Turn static files into dynamic content formats.

Create a flipbook
Issuu converts static files into: digital portfolios, online yearbooks, online catalogs, digital photo albums and more. Sign up and create your flipbook.