Molly Kinghorn - Landscape Architecture Portfolio

Page 1

LANDSCAPE ARCHITECTURE

P O R T F O L I O

Molly Kinghorn

LANDSCAPE DESIGNER

PERSONAL PROFILE

I am a landscape designer dedicated to creating exciting and sustainably designed landscapes I am a quick learn hold myself and my work to very high standards, and take great pride in my organizational skills

ACADEMIC BACKGROUND

Rutgers University | New Brunswick, NJ

Bachelor's in Landscape Architecture

GPA: 3.7

Atlantic City High School | Atlantic City, NJ High School Diploma

GPA: 39

CONTACT

Highland Park, NJ

480-299-5970

mollykinghorn13@gmailcom

1

1 2 3 4

TABLE OF CONTENTS

Urban Park Design

NEW BRUNSWICK WAR MEMORIAL PARK REDESIGN

Sustainable Design

DRUMTHWACKET SUSTAINABLE ACTION PLAN

Planting Design

RUTGERS SCHOOL OF ENGINEERING

DRONE PLAYGROUND

Community Design

EMSCHER MARSH OBSERVATORY

5 6

Urban Community Design

MOTT CENTRAL AT THE MOTT

Community Documentation

MOTT HAVEN: THE UNTOLD STORIES

2

WAR MEMORIAL PARK REDESIGN

For this project, we were asked to create a park at a busy intersection in downtown New Brunswick. After meeting with community members they placed a heavy emphasis on wanting the park to be more family-friendly, visually appealing, and above all else, safe.

Project Highlights:

Water feature mirrors the path of the local Raritan River

Interactive water gates & splash area for children

Hills for winter sledding or summer sunbathing

Circular shaded seating for 360° view of the park

Vibrant colors to celebrate the local Hispanic culture

Local Red Raritan Riven Blocks retaining walls

Section 1 Section 2
3
1
Plan View URBAN PARK DESIGN 4

DRUMTHWACKET SUSTAINABLE ACTIO 2

For this project, we were asked to continue an ongoing project with the Drumthwacket Foundation at the Governor’s Mansion in Princeton, NJ. The Drumthwacket Foundation wanted to reinvigorate the grounds around the estate and provide visitors with sustainable practices they could implement in their own backyards. At the conclusion of this project, we were fortunate enough to attend a meeting with First Lady, Tammy Murphy, to discuss how the Drumthwacket Foundation could begin implementing these design proposals at the Governor’s mansion for the future. Since then the rain garden featured below has been installed and several beehives have been relocated onto the Drumthwacket property!

Project Highlights:

Perennial meadow to replace the existing lawn and lower maintenance over time

On-site beehive to raise awareness and educate visitors on pollinators

Formal rain garden located in front of the mansion

Compost pile to recycle lawn and leaf waste from grounds

Addition of Garden State Parkway wildflower mix to brighten up the entry sequence

Filling in the existing pool and replacing it with a pollinator garden

Addition of a Diversity garden to reflect the immigrant population in New Jersey

OC
IV
CP
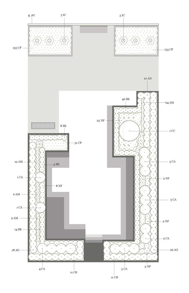
Rain Garden Planting Plan
(19)
(10)
(55) Blueflag Iris (Iris versicolor) Cinnamon Fern (Carex pensylvanica) Pennsylvania Sedge (Osmunda cinnamomea) 3-5" Delaware River Stone
The Governors Mansion 5
Above Ground Downspout Channels Drainage to Retention Pond

SUSTAINABLE DESIGN

Proposed Action Plan

Compost Pile

Beehive

Meadow

GSP Wildflower Mix

Pollinator Garden

Diversity Garden

6

RUTGERS SCHOOL OF ENGINEERING DRONE PLAYGROUND 3

For this project, we were asked to transform a walled in courtyard nestled in the center of an academic building used by the Rutgers School of Engineering. They frequently use this space for testing drones and hosting social gatherings so they desired a flexible design that could transition depending on the activity or occasion. To accommodate this request we suggested the installation of amphitheater style seating with built in planters along the top most tier.

Project Highlights:

Landing areas padded with Carex pensylvanica

Texture with Stachys byzantina

Scent with Nepeta x faassenii & Clethra alnifolia ‘Sixteen Candles’

Winter Interest with Andropogon gerardii ‘Red October’ & Calamagrostis brachytricha

Feature wall with Parthenocissus tricuspidata

Spring Seasonal Planing Schedule Summer Fall Winter 7
Planting Plan

PLANTING DESIGN

Rendering of Suggested Courtyard Design

8

EMSCHERGENOSSENSCHAFT MARSH OBSERVATORY 4

Plan

View

In this project, we were asked to create a community space for visitors to utilize as they explored the newly constructed wetland designed by the Germany based company, Emschergenossenschaft. This site is located at the meeting point between two rivers in the Lower Rhine Region and runs directly through the small rural town of Dinslaken.

Project Highlights:

A marsh observatory dome in the mouth of the wetland to allow viewing without disturbing the developing ecosystem

Two points of entry at either side of the river - one letting out in front of the existing cafe

A grated walkway with a stream of water running beneath the feet of the visitors

Blue neon lights lining the interior of the tunnel to match the companies signature color & provide visu l d d

Rendering of Walkway 9

COMMUNITY DESIGN

10
Rendering of Masch Observatory Dome

MOTT CENTRAL AT THE MOTT 5

For this project we partnered with South Bronx United, a community organization, looking to implement a design that would connect their upcoming community housing project with the rest of their neighborhood of Mott Haven. They wanted to place a special emphasis on revitalizing the waterfront and better preparing the neighborhood for future storm events by implementing various stormwater management practices.

Project Highlights:

Modular shipping containers designed to host a variety of uses for the community such as a music studio, a greenhouse, a kitchen, a community library, etc

The freedom for residents to create these spaces and dictate what they want in their community and how they want it to look

A flood protection system using a network of rills connecting to the street, a rain garden that surrounds the site, and a partially floodable basin at the center of the proposed design

Section from Water Front to Street Shipping Container Greenhouse at Hub Zurich Shipping Container stage at Box Park
11
Shipping Container Library at Waterfront Container Library

Phasing Diagrams

URBAN COMMUNITY DESIGN
12

MOTT HAVEN: THE UNTOLD STORIES 5

This short video was created to bring to life the stories captured by the Mott Haven Oral History Project that began in 2007. My partner & I had the opportunity to meet with Columbia Professor, Amy Starechecki, who has been spear heading the entire project. We took clips from her interviews with three Mott Haven locals and set them to historic and modern photos taken during our site visit to the Bronx.

13
All photos taken by Molly Kinghorn
COMMUNITY DOCUMENTATION 14 Scan to watch!

Turn static files into dynamic content formats.

Create a flipbook
Issuu converts static files into: digital portfolios, online yearbooks, online catalogs, digital photo albums and more. Sign up and create your flipbook.