MJ
Mollie Joice Interior Design
Portfolio
ASSISTED LIVING
QUARTERS


![]()


Canterbury Court, located in Atlanta, GA, is an assisted living facility which aims to ensure independent living in a safe environment.
Canterbury Courts goals include creating a nurturing environment for everyone to thrive, create lasting relationships between its residents and foster a sense of community.
This project was designed to create a new Common Area Wing for the residents.


To create a space that feels like the residents are in a real home and not a facility.
To create community spaces where large and small groups can gather for events.
To empower residents to live independently and feel like they have a support system.
To make the facility feel welcoming to those visiting and new residents.




Spaces that were meant to be open to everyone at all times are connected so that the people in these areas do not disturb the more private areas.

Spaces that should have natural light are not the same as the level of privacy they should have. Light is necessary in spaces that are meant to provide wellness and a serene environment.

Just like each space has a different purpose they each have a different noise level they will have or need. Keeping areas of similar noise level together will help people relax in each space.
























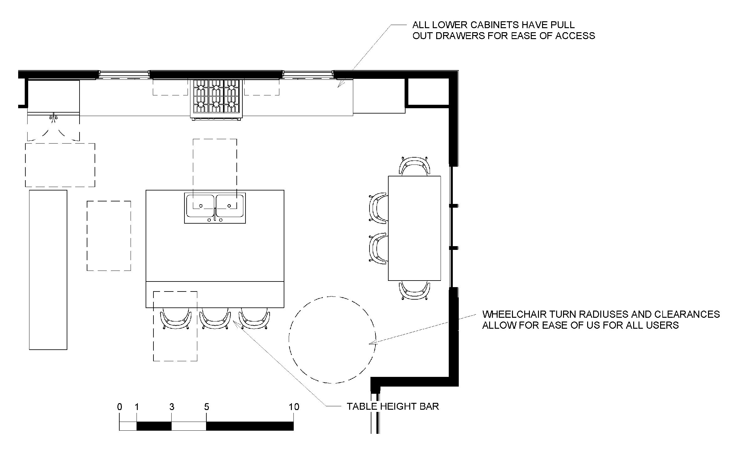
All doors have an 18” - 24” clearance for wheelchair approach
The same type of flooring is used throughout the space, this allows for little to no transitions
Restrooms have a 5’ - 0” turn radius, grab bars around the toilet and clear space under the sink Areas of circulation allow for two people in wheelchairs to pass by without interference
All seating in the eating area have wheelchair clearance of 30” x 48”
The reception area being off to the side allows residents to receive help if they need it while feeling independent in their own space





Yuan and Ling have been married for 58 years and have three children and seven grandchildren. They decided to settle at Canterbury Court to be close to there family and to be able to be involved in their lives.
They decided to move to an assisted living facility because they did not feel confident living on their own. Yuan currently uses a cane and in the coming years may have to use a wheelchair. While Ling has diabetes that has become more difficult for her to control without help.
Yuan will need a place that will be able to adapt to using a wheelchair in the future and Ling needs plenty of room to be able to store her medication and testing equipment.
To have a space that can adapt to their changing medical needs.
Provide spaces for them to entertain family and other residents of Canterbury Court.
To have clear sight lines in the public areas of the unit so that medical staff can quickly evaluate any situation when they enter.
Meet ADA guidelines through a barrier free environment while not feeling like an institutional environment.
Provide a space that the occupants can set out an medication or testing equipment without interference.


All public areas are connected to each other with the semi public and private areas branch off of the public areas.

By eliminating barriers in the public areas it allows for these rooms to all benefit from natural daylight and the surrounding views.

Since each area of privacy is nearby or adjacent to each other the noise levels with not interfere with the different areas.

The open barrier free space allows the users to change the furniture based on their future needs and allows the next tenants to be able to customize the space for themselves.
Open space allows for the users to be able to entertain large groups of people and
large walk ways allow for anyone using a mobility device to navigate through the space.
The barrier free environment allows for medical staff to be able to quickly see where they are needed when they enter the space.
Large work areas in the kitchen allow the users to be able to set out and organize and medication or medical testing equipment for easy use.



One vanity has an open space to allow for a wheelchair user in the future, the second vanity panel can also be removed if both users require a wheelchair.
ADA grab bars are located in the shower, bath tub and toilet area.
Open clearance for the shower allows for a wheelchair to go into the shower.
Shower bench allows for the user to sit while taking a shower but not use medical equipment.
Hand held shower head allows a seated user to be able to wash without standing up.
Design elements allow for the user to be physical helped without adding extra elements to the space.



Large walkways allow the users to be able to navigate through even if they are using a mobility device.
Multiple seating areas allow for large groups to be able to gather together.
Walkways exceed the ADA minimum width.
ADA clearance under the sink allows for a wheelchair user to use the sink.
Limited upper storage allows everyone to access essential areas.
Pantry cabinet has shelves that roll out and upper shelves that pull down for easy access.


KITCHEN



Age of Users: Middle School and High School Students
Gender Ratio of Vincennes:
Female - 50.63% (8,654),
Male 49.37% (8,437)
Population: 16,427 (2022 estimate)
2020 Median Household Income: $39,994
2020 Median Property Value: $77,400
2020 Poverty Rate: 24.2%
2020 Unemployment Rate: 5.2%
To have a space that teenagers can come to relax away from the stresses of home and school
To have a space where students can come to work on homework and receive tutoring
Support the physical and mental health of the users of the space by offering counseling and meeting WELL Building Standards
Teenagers are often expected to act like adults and are treated like children. They are in a place in their lives where they are finding themselves and figuring out their personal boundaries with themselves, their friends, and their families.
This community center aims to give teens a place to be themselves, interact with others their age, and figure out who they are. This center will give them the freedom to have fun in a safe environment and find their own confidence.























































































































































Air
A01 Fundamental Air Quality

A02 Smoke Free Environment
A03 Ventilation Effectiveness
A05 Enhanced Air Quality
A07 Operable Windows
A08 Air Quality Monitoring and Awareness




















Water
W01 Fundamental Water Quality
W02 Water Contaminants
W04 Enhanced Water Quality
W06 Drinking Water Promotion
W08 Hand washing

























Nourishment
N01 Fruits and Vegetables
N03 Refined Ingredients
N06 Portion Sizes
N07 Nutrition Education
N13 Local Food Environment































Light
L02 Visual Lighting Design
L04 Glare Control
L05 Enhanced Daylight Access
L06 Visual Balance















Movement
V01 Active Buildings and Communities
V02 Visual and Physical Ergonomics
V06 Physical Activity Opportunities

V08 Physical Activity Spaces and Equipment

Mind
M01 Mental Health Promotion
M02 Access to Nature

V10 Enhanced Ergonomics

































































OFFICE & RETAIL
Blick is expanding in Atlanta and is designing a store that allows for young children to come and take classes. BLICK wants to be involved with the local community and support young children as they explore different types of art. This location is right across the street from the High Museum of Art so they have the potential to do collaborative events.
Children do not always feel confident when it comes to learning new things and an art store can be overwhelming so by being able to learn about these products they become future customers to the store.
To have a space that children feel like they can express themselves in.
Provide learning spaces so that children can master there artistic skills.
To provide retail space for products meant for children and student artists.
To have the retail and office space interact with each other but still have privacy.






















































































www.linkedin.com/in/mollie-joice-6723a317b
molliejoice@gmail.com