Architeture Portfolio

Page 1

ARCHITECTURE

PORTFOLIO

Mohammed Ibrahim | Italy,Ravenna B.sc Architectural Eng| M.sc Eng of Building

01

CONTENTS

CURRICULUM VITAE

ARCHITECTURAL DESIGN Resedinetial Building Resedinetial Building Resedinetial Building Resedinetial Building

02
ABOUT

MOHAMMED IBRAHIM

Ravenna 48123 , Italy

TEL : (+39)3272199879

Email :Bin_kamal@hotmail.com

04

EDUCATION

CURRICULUM VITAE

Ghinelli Architettura | Rimini,Italy | Internship| Oct 2020-Feb 2021

• Worked with team to design and renovation of various small scale residential Projects.

• developed 3D Models and construction details .

• Field trip and Architecture survey .

• Metric calculations .

Università di Bologna | Italy | Sep 2018- Feb 2022

Master of Engineering of Building Processes and Systems. Thesis : Building Sustainability Assessment with LCA and LCC for Residential Buildings , Average 99/110 .

Khartoum College of Applied Studies | Sudan| Nov 2009-Aug 2014

Bachelor of Architectural Engineering. Project : House of the union Professional music , Average V. Good .

SOFTWARE

ArchiCad | Revit | AutoCad | Cinema 4D. Photoshop | In Design . Microsoft Office. Python (Beginner) | Rhino (Beginner)| Lumion (Begineer)

SKILLS

• Architerctural : Building Information Modelling (BIM), 3D modelling , rendering & visualization , Construction Details .

• General office administration and management .

• Ability to work independently or as part of a team.

• Ability and speed in learning architecture software.

• Responsibility and remain efficient and calm even under

COURSES

National Taiwan University, Online | Sep 2020

BIM Fundamentals for Engineers : The course is designed to learn the essential concepts of BIM, and the basic technical skills to create and manipulate a BIM model.

https://coursera.org/share/0d1f083ba8ac5385939324f5977fc9aa

Delft University of Technology, Online | 2022-Present

Buildings as Sustainable Energy Systems Institutions : The certif icate contains 4 courses ; Energy Demand in Buildings , Energy Supply Systems for Buildings, Comfort and Health in Buildings , Efficient HVAC Systems.

LANGUAGES

Arabic (Native). English (B2). Italian (A).

05
EXPERIENCE

Residential Building

About Year : 2020.

Team : Ghinelli Architettura . Type : Renovation. Role : Design, 3D Mudle & visualization. Status : Constructed. Software : ArchiCad | Cinema 4D | Photoshop

This project is the renovation of an ordinary house in Rimini , Italy with area 150 m2. The renovation work is intended to make better use of the building space by redesigning the floors.

Mohammed Ibrahin 06
Selected works 07
Mohammed Ibrahin 08
Selected works 09

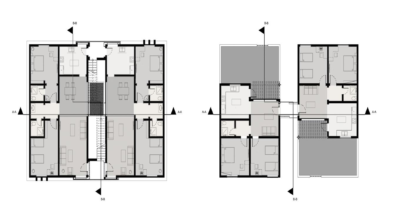
Residential Building

About Year : 2022. Team : Ghinelli Architettura .

Type : Rehabilitation & Renovation. Role : 3D Modeling & visualization. Status : Constructed. Software : ArchiCad | Cinema 4D | Photoshop

The histrical Building built on 78.13 m2. The build ing has undergone various interventions the most recent of which was performed on the structure by Archi Ghinelli 2016 . The building is old, so sever al construction techniques and materials were used.

Mohammed Ibrahin 10
Selected works 11
Mohammed Ibrahin 12
Selected works 13

About Year : 2022.

Team : Ghinelli Architettura .

Type : Rehabilitation & Renovation.

Role : 3D Modeling & visualization. Status : Constructed.

Software : ArchiCad | Cinema 4D | Photoshop

Mohammed Ibrahin 14
Selected works 15

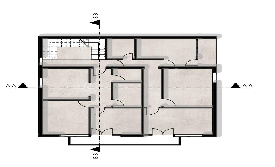
Residential Building

About Year : 2018.

Team : Freelancer .

Type : Designing Project.

Role : Design |3D Modeling | visualization.

Status : Constructed.

Software : ArchiCad | Cinema 4D | Photoshop

Residential Building was constructed on an area of 80.50 m2 in Khartoum, Sudan. The kitchen, toilet , setting, dining area, and living room are on the ground floor, while the second floor is equipped with three bedrooms.

Mohammed Ibrahin 16
Selected works 17 GSPublisherVersion 0.0.100.100

Turn static files into dynamic content formats.

Create a flipbook
Issuu converts static files into: digital portfolios, online yearbooks, online catalogs, digital photo albums and more. Sign up and create your flipbook.