MONASTERY
Sited in Ruidosa, Texas
Term: Spring 2024 | 2nd Semester
Instructor: Andrew Lucia







![]()
Sited in Ruidosa, Texas
Term: Spring 2024 | 2nd Semester
Instructor: Andrew Lucia







Sited in Basque Country, Spain
Term: Spring 2024 | 2nd Semester
Instructor: Catherine Wilmes







In Collaboration with: Chad Jacobs and Franklyn Yadaicela
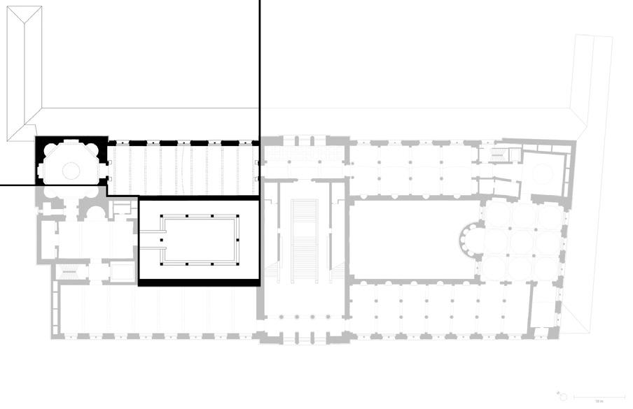
Term: Fall 2024 | 3rd Semester
Instructor: Mark Cruvellier
1:50 recreation of the northeast portion of Berlin’s Neues Museum, emphasizing its structural systems with the design’s interplay between neoclassical and David Chipperfield’s modern intervention.






Conceptual Design
Term: Fall 2023 | 1st Semester
Instructor: Imani Day







Project Team under Cornell University Sustainable Design
Terms: 2023-2024 | 1st-3rd Semester
Supervisor: Sirietta Simoncini
Projects: Modular K-8 School and National Teachers Training Institute



Teachers Training Institute in Bandipur
Site Massing Proposal and Site Analysis




Sensory Room in Collaboration with Julian Cardoso (Rendering/Site Plan Credits: SEN)
Drainage Details in Collaboration with Andrew Wheat
Fieldwork and Self-Guided Freehand Drawings
Terms: Summer 2022 (Part-Time) and Summer 2024 (Full-Time)
Organizations: Habitat for Humanity (2022) | KSN Customs Inc. (2024)







