
1 2 3 4 5 6
![]()

1 2 3 4 5 6

The town planning project, spanning 261 acres in Badarpur, Delhi, aims to create a unique art and craft village surrounded by residential housing. This conceptual stage project, commissioned by NTPC, seeks to establish a vibrant community where the main attraction is the integration of local arts and crafts into the village's fabric, offering both cultural enrichment and aesthetic appeal. The vision is to achieve a harmonious blend of artistic expression and residential comfort, making it a distinctive and engaging environment for residents and visitors alike.









1.
2. CULTURAL HUB
3. ARTISAN MARKET
4. COMMERCIAL HUBS
5.
6.
7. MASS HOUSING
8. EWS HOUSING






1.CULTURAL HUB

2.ARTISAN MARKET/ SMALL SCALE INDUSTRIES
3.COMMERCIAL HUBS
4.ARTISAN VILLAGE
5.HOUSING

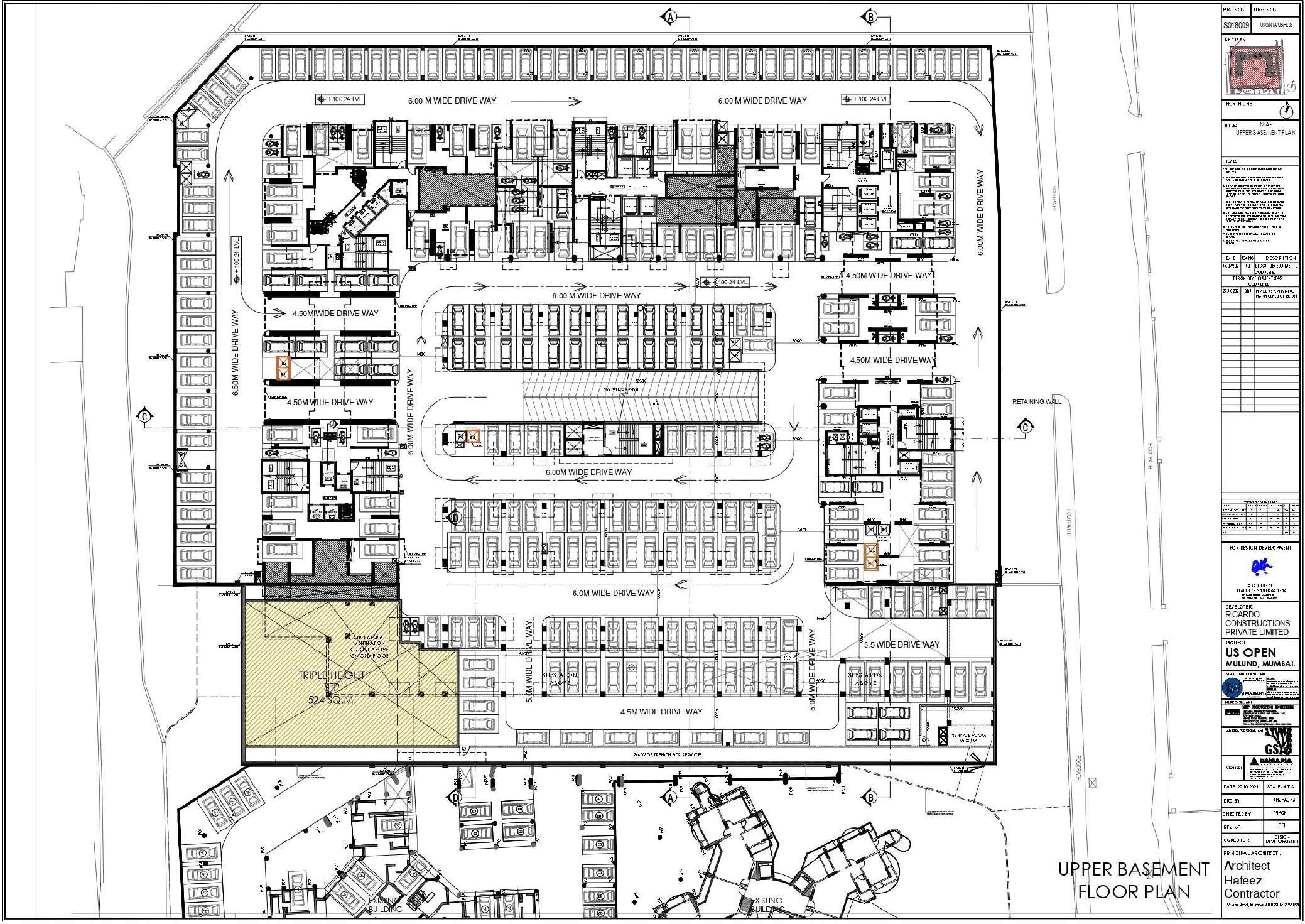
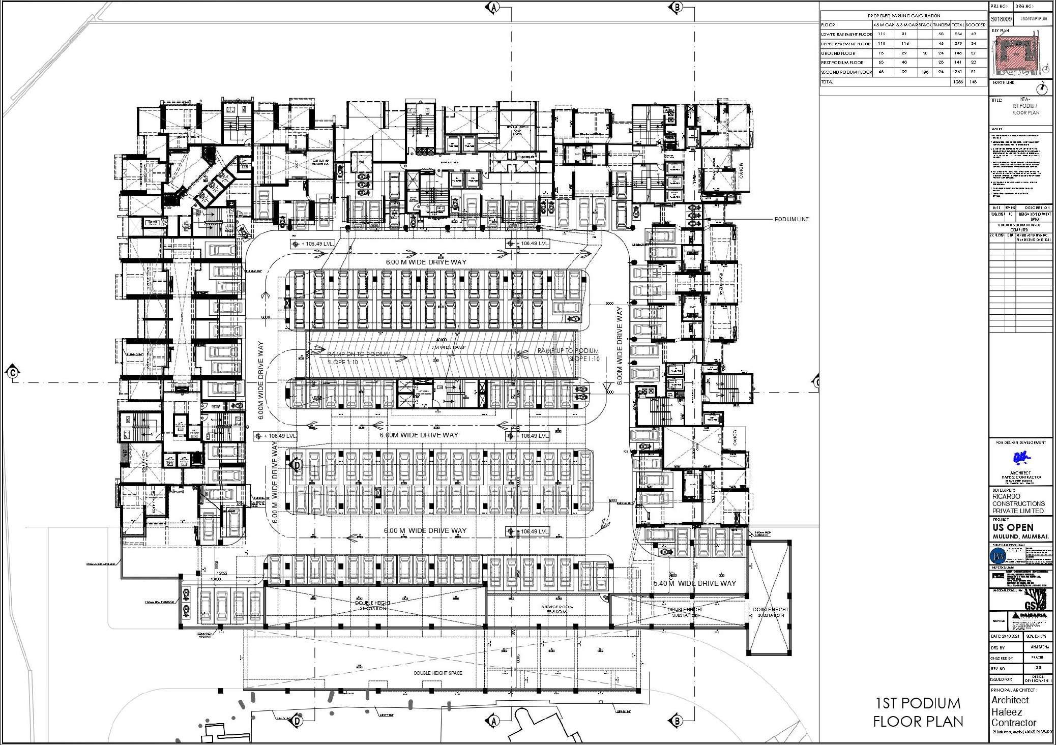
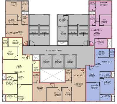
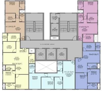
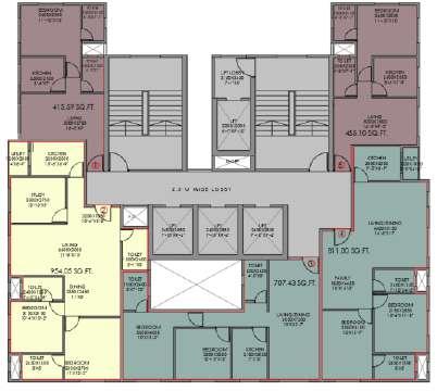
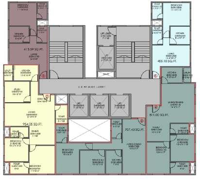
The residential project located in Mulund, Mumbai, is a prestigious development by Shapoorji Pallonji, currently under construction. The project features five wings, each with a unique tennis-themed name, such as Wing A: Ace Point and Wing B: Game Point. The structure includes a ground floor, three levels of podium parking, and 40 levels of residential units. The concept focuses on providing amenities that reflect the project's tennis theme, creating a cohesive and engaging living environment. This innovative approach aims to offer residents a unique lifestyle experience, centered around the dynamic spirit of tennis.






REFUGE FLOOR PLAN

SECTION






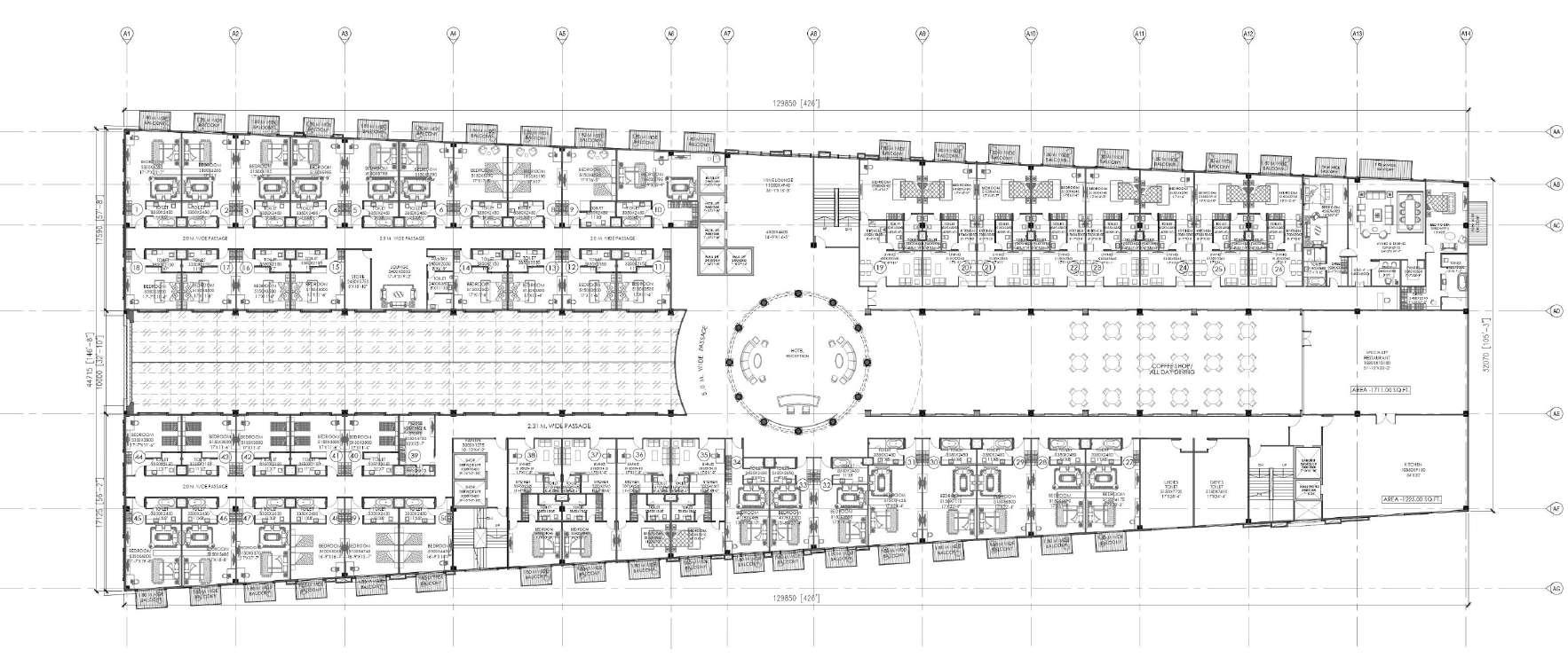
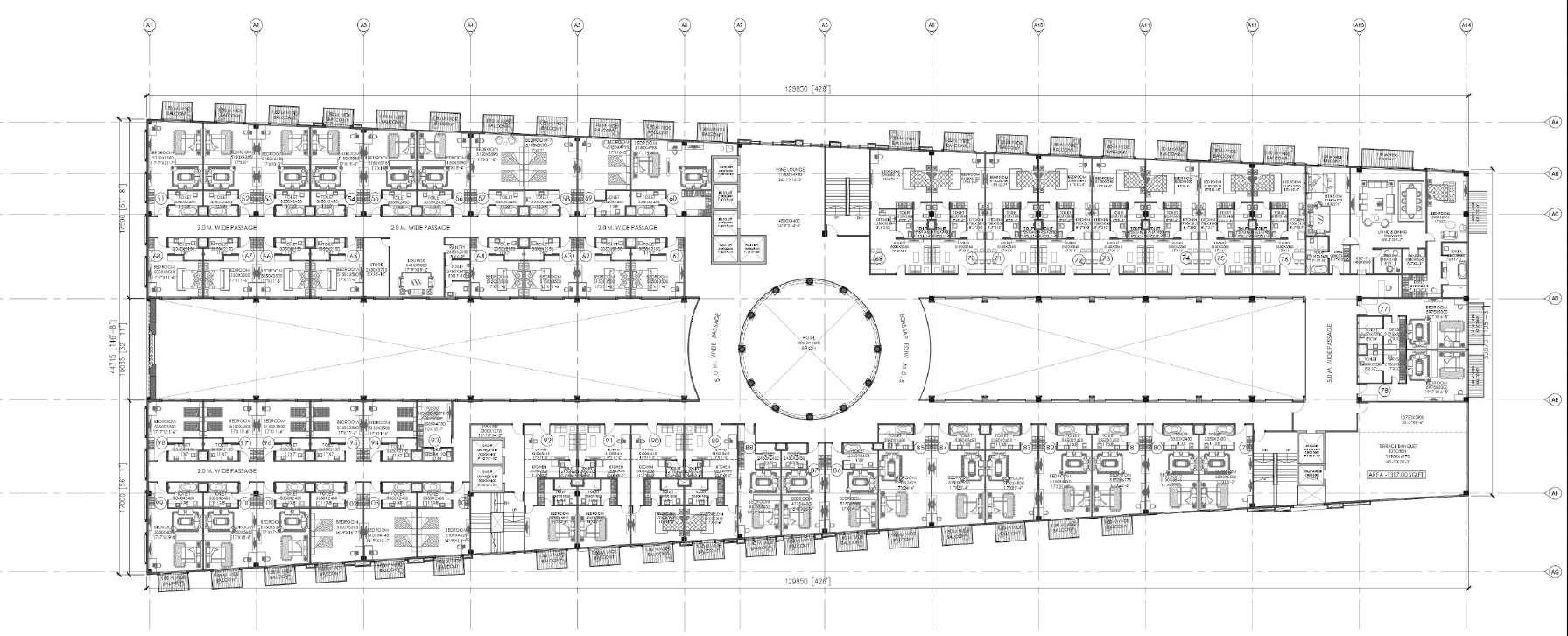
The upcoming residential project in Delhi promises to be a landmark development, featuring 45 floors spread across three impressive towers. This luxurious apartment complex is designed to offer high-class amenities, including a maximized landscaped area and a stunning swimming pool. The project is set to redefine upscale living in the city, providing residents with a blend of comfort, elegance, and modernity. As it prepares for its much-anticipated launch, this development is poised to become a premier destination for those seeking an unparalleled lifestyle in the heart of Delhi.












The mixed-use redevelopment project by Sainath Developers in Mulund, Mumbai, is an ambitious G+50 development currently at the conceptual stage. Featuring two towers, the ground floor is dedicated to retail shops, while the first five floors accommodate parking and office spaces. An additional e-deck level provides communal amenities. The project includes 45 floors of residential units, with one tower designated for sale and the other for residents, integrating five societies into a single tower. This presents an extremely challenging task in space allocation, demanding innovative and efficient design solutions to seamlessly fit all apartments together.








MEMBERS TOWER IS OF 44 FLOORS IN IT
38 FLOORS BELONG TO MEMBERSS & 7 FLOORS TO SALE


38 FLOOR MEMBERS
7 FLOOR SALE SITE SECTION





























The redevelopment residential project in Chembur, Mumbai, is set to transform the area's skyline with its two towers, each standing at G+18 floors. One tower is designated for sale, while the other is reserved for residents. The design prioritizes maximizing the apartments' views of the adjacent golf course, leveraging this scenic landscape as a significant advantage. This project aims to offer residents not only modern living spaces but also breathtaking vistas, blending luxury and natural beauty seamlessly.






• FEW APPARTMENTS ARE NOT GETTING VIEW OF GOLF COURSE.
• NOT ABLE TO ACHIVE PARKING EFFICIENCY.
3.






• SOME BUILDING VIEWS ARE OBSTRACTED BY ADJACENT DEVELOPMENT.
• NOT ABLE TO ACHIEVE PARKING EFFICIENCY.






• FEW APPARTMENTS ARE NOT GETTING VIEW OF GOLF COURSE
• LESSER GREEN AREA.

4.




• LESSER GREEN AREA.
• ARRIVAL EXPERIENCE IS COMPROMISED




GOLF COURSE VIEW
• BUILDING BLOCKS REORIENTED TO ACHIEVE GOLF VIEW FOR ALL APPARTMENTS.
• EXCESSIVE EXISTING TREE CUTTING
• ARRIVAL EXPERIENCE COMPROMISED
• MAXIMUM EXISTING TREES RETAINED.
• UNOBSTRUCTED VIEW OF THE GOLF COURSE TO ALL APPARTMENTS.
• ENHANCED ARRIVAL EXPERIENCE








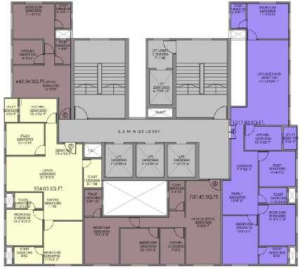
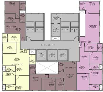
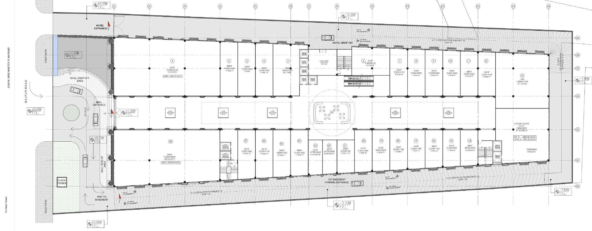
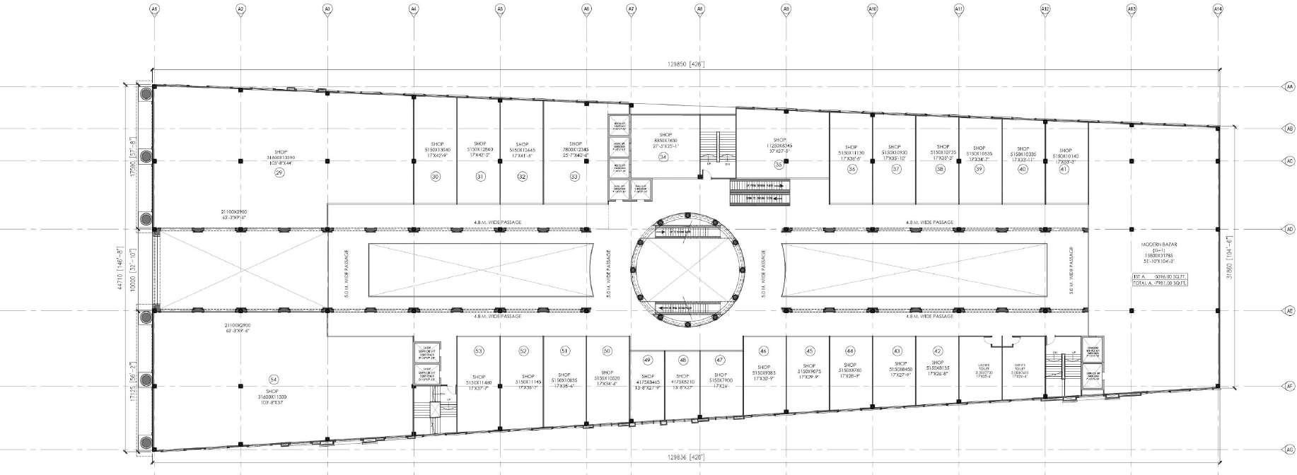
The commercial project in Dehradun, spearheaded by Bajaj Realty, involves designing a G+5 classical iconic mall. Currently in the coordination stage, the project aims to create a landmark destination that blends timeless architectural elegance with modern amenities. The mall is set to become a major attraction, offering an unparalleled shopping and entertainment experience. The design focuses on achieving a harmonious integration of classical aesthetics and contemporary functionality, making it a standout feature in Dehradun's urban landscape.
















