Architecture Portfolio | Mohammad Saffarini (2017 - 2022 )

Page 1

2017 - 2022 MOHAMMAD SAFFARINI PORTFOLIO

Revit Autodesk Adobe Photoshop Lumion AutoCad SketchUp Microsoft Office ABOUT ME SKILLS Free hand sketcher Manual rendering skills Time management Team player LANGUAGES Arabic (Native) English (Very good) EXPERIENCES Lecturer Of Engineering Drawing to improve students architectural drawing skills 2018 2020 Free Lance Designer 2018 present Member in CATCH22 Academic Volunteering Team 2017 2022 Member of " To be an architect " 2018 2019 WORK EXPERIENCE University Training at "Seyam Architects" Office Personal Information MohammadYousefAl Saffarini 4th,Jan,1999 +962788886209 mohammadsafsaf99810@yahoocom MHM0170459@juedu o wwwfacebookcom/MohammadAlSaffarini wwwinstagramcom/MohammadAlSaffarni Software SKILLS Other Al falahave,Az zarqa,Jordan University Of Jordan, Jordan 2017 2022 Bachelor of Architecture Al Shamleh, Jordan, 2015 2017 High School Scientific Major EDUCATION I am a 23 year old engineering graduate. I am a hard worker, honest and responsible person. My hobby is drawing and learning new things.

INDEX 01 MarkaRecycleHouse:RecyclingandAwarenessCentre Graduation Project 17 TheFourthYear,Design6 professional associations complex 33 TheFourthYear,Design5 5 Stars Hotel 45 TheThirdYear,Design3 Commercial Building 53 TheFourthYear,UrbanPlanning2 The New Scrap 63 TheFifthYear,Design7 Urban Design 73 Sketches,Free Lance,Modeling,Rendering Graphics Presentations & Skills

Marka Recycle House

3

4

5

6

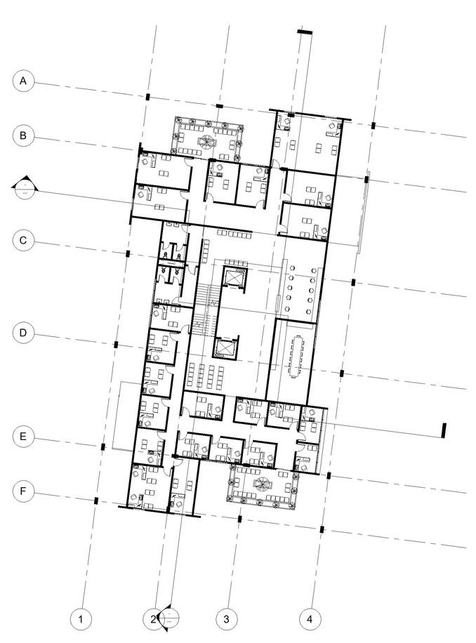
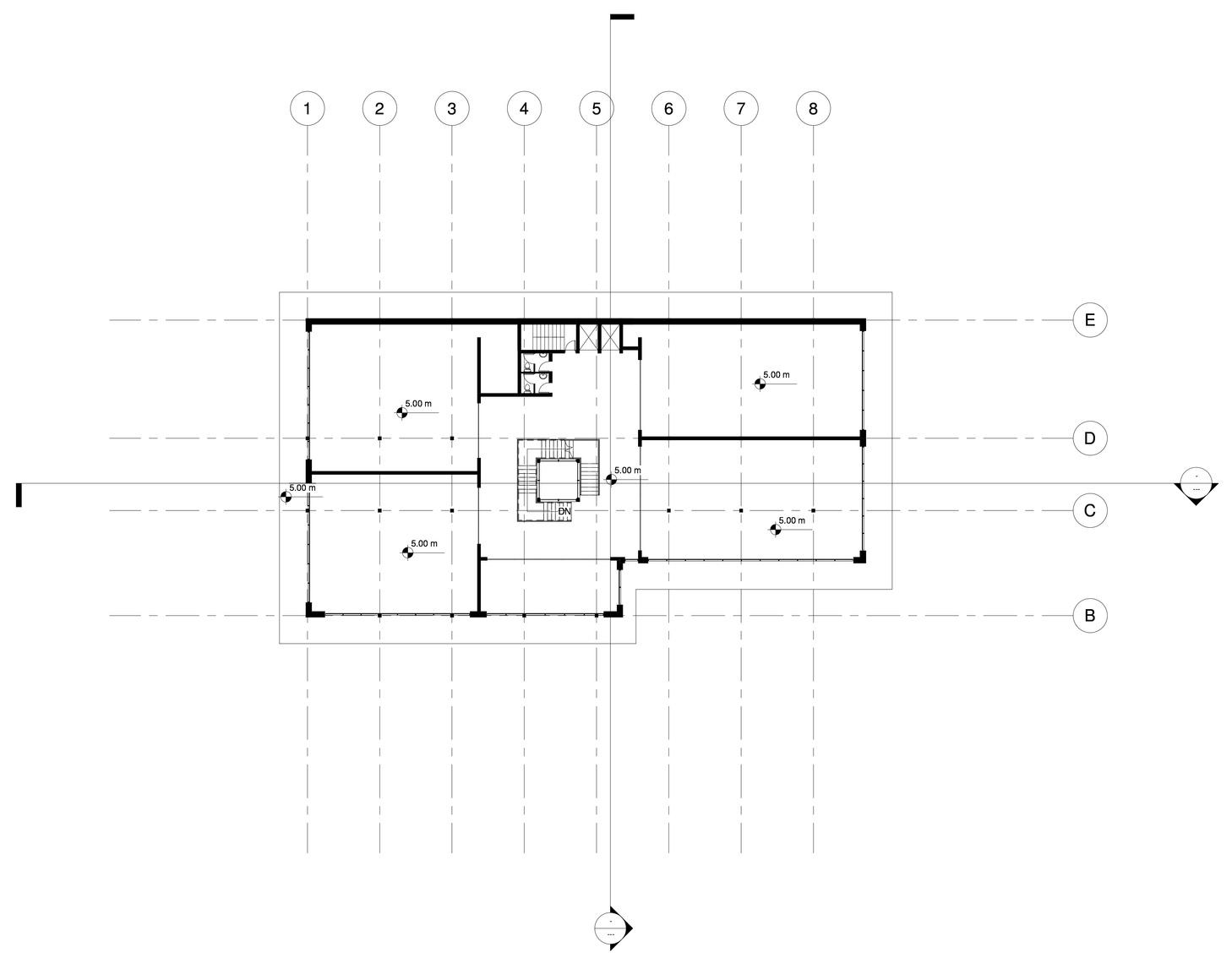
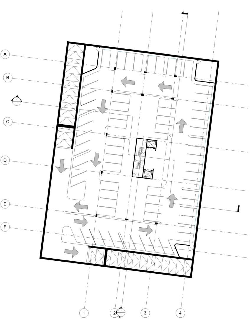
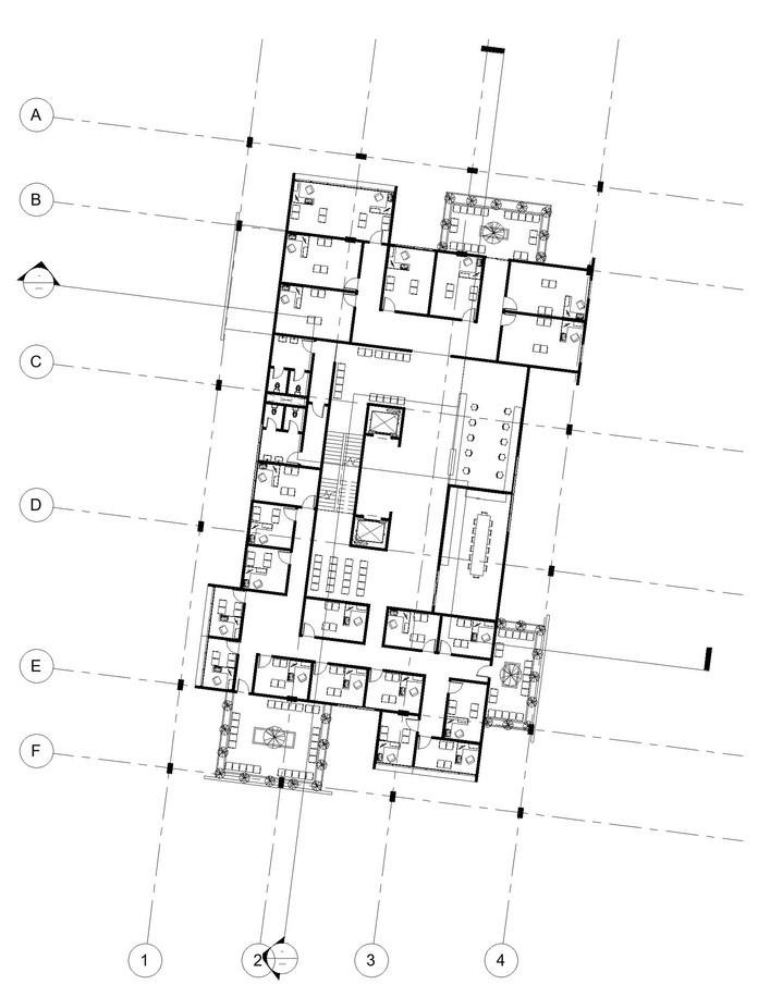
Basement Plan Ground Floor Plan 7

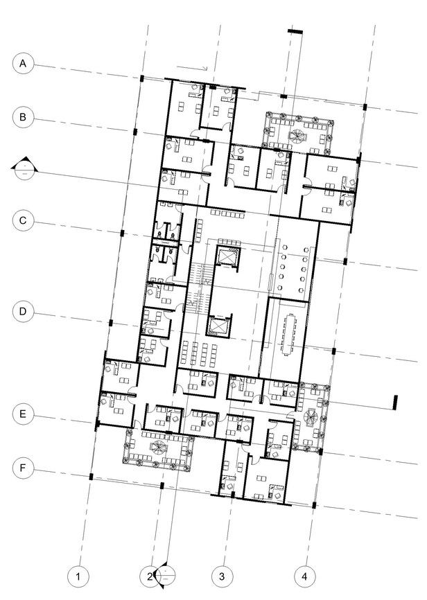
1st Floor Plan 2nd Floor Plan 8

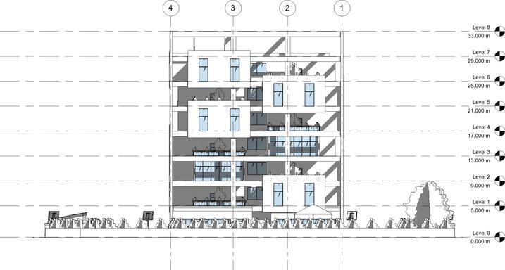
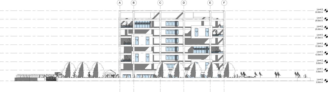
North Elevation Section A-A 9

South Elevation Section B-B 10

11

12

13

14

15

16

professional associations complex

THEPROFESSIONALASSOCIATIONSCOMPLEX OBJECTIVES GENERIC GOALS MYGOALS EXPERINCEHOWTOMAKE SUSTAINABILITYHOWTOMAKE HOWTOMAKECONTRAST GOALS 43214321GREENERYCONTRASTSUSTAINABILITYEXPERINCE....SAFTYECONOMYFUNCTIONALITYRESPECTTHESITE OPENCIRCULATIONSPACES FOLLOWLEEDSSTEPS MATERIALS HOWTOMAKEGREENERYEXTERNALSTRUCTURE THE MAIN IDEA IS THE EXISTENCE OF A MAIN MASS, WHICH REPRESENTS THE CORE AND CONNECTS MORE THAN ONE MASS IN A CENTRAL WAY IN ORDER TO CREATE AN INTERNAL EXPERIENCE AND LINK THE ASSOCIATIONS WITH EACH OTHER. THE RATIOS USED ARE THE ORIGINAL SITE RATIOS, WHICH ARE 1: 2 19

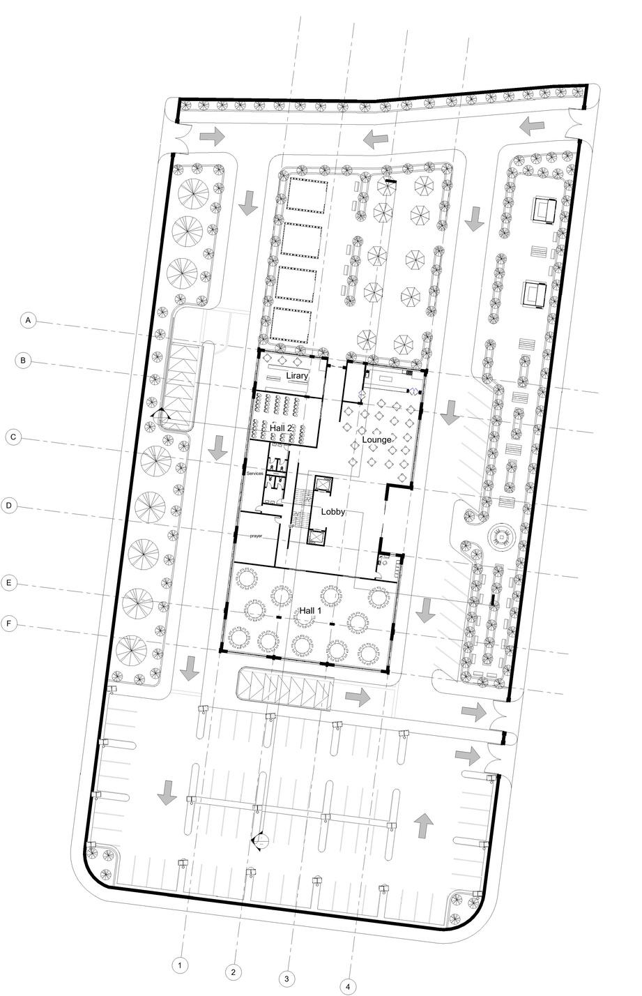
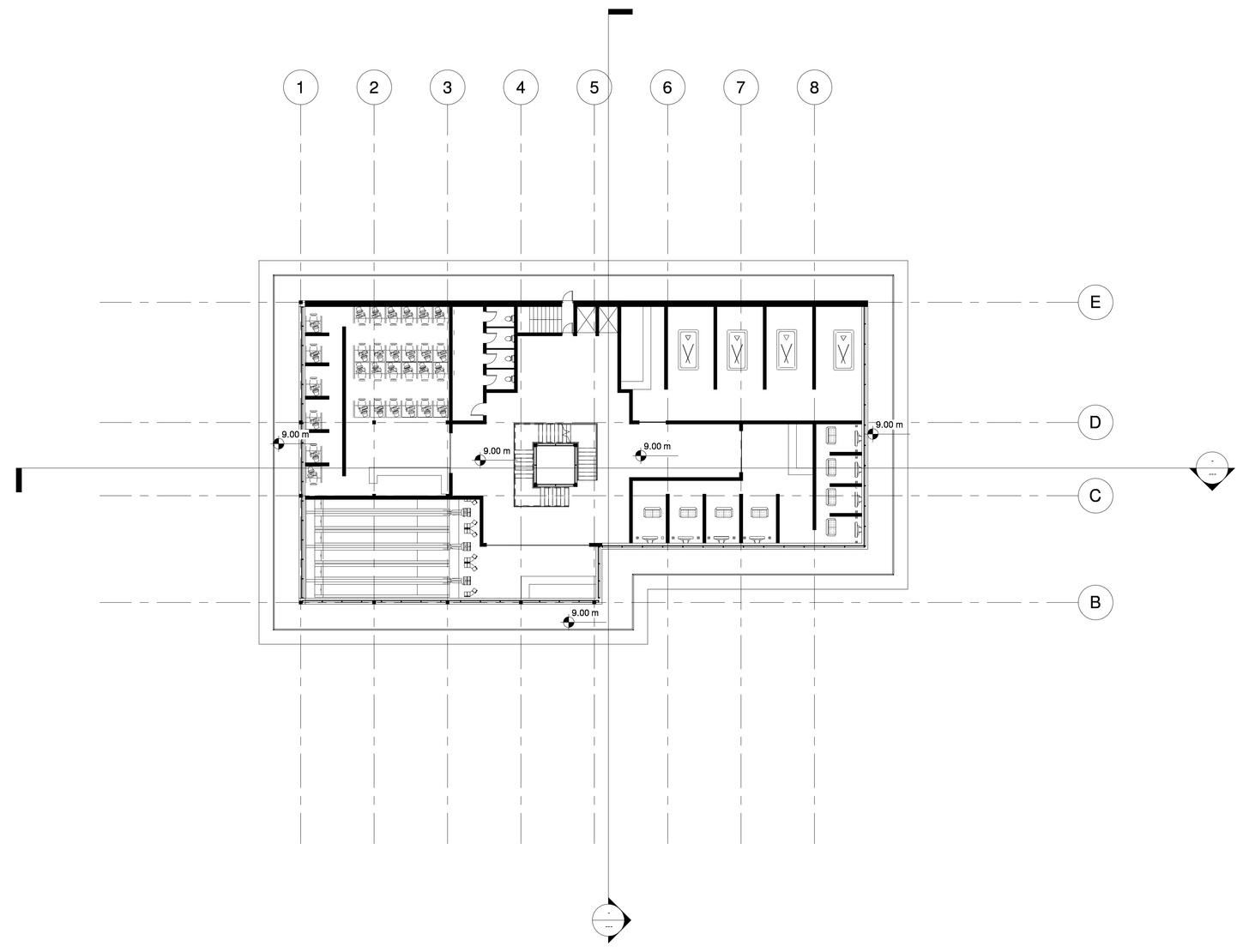
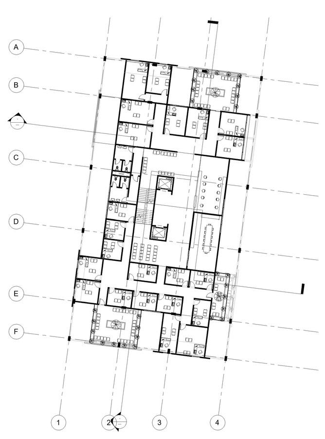
LOBBY RECEPTION WAITING AREA HALL HALL LIBRARY LOUNGE KITCHEN SEATING AREAPRAYER SERVICES W.C STORAGE MECHANCAL GROUNDFLOOR OFFICES GENERALADMINSTRATION PUBLIC AREA MEETING ROOM WORK SSPACE ERVICES W.C STORAGE TYPICALFLOOR SITEPLAN THE BUILDING STREETS SERVICES PGRENERY ARKING FUNCTION LOBBY RECEPTON WAITINGAREA MULTIPURPOSEHALL LIBRARY PRAYER LOUNGE CIRCULATIONMECHANICALCAFETERIAW.CSTORAGESERVICES UNITSDIMENSIONSAREAPERUNITTOTALAREA GROUNDFLOOR 5*58*85*5mmm 2%5%2%=26m2=65m2=26m2 1330m2 20%=263m2 1 10*20m 200m2 200m2 2 10*25m 125m2 250m2 1 10*10m 100m2 100m2 1 10*5m 50m2 100m2 1 1010m 100m2 350m2 SEATNGAREA 1 10*25m 250m2 380m2 FUNCTION OFFICES ADMINISTRATION GENERAL MEETNGROOM WORKCENTRE KTCHENRTTE SPECFICPUBLC AREAANDWATING AREAS CIRCULATIONSTORAGEW.CSERVCES UNITSDIMENSIONSAREAPERUNITTOTALAREA FIRSTFLOOR 11 4*44*4mm 1441616m2m2m2 826m2 28(6) 5*5m 25m2 390m2 1 6*5m 30m2 30m2 1 6*4m 24m2 24m2 1 16m 6m2 6m2 1 10*20m 200m2 200m2 152520) 34m 12m2 176m2 1ST FLOOR 2ND FLOOR 3RD FLOOR 4TH FLOOR 5TH FLOOR 6TH FLOOR TOTAL AREA 5650 m2 DENTISTS 16% LAWYERS 16% DOCTORS 12% AGRICULTURE 14% PHARMACIST 14% ENGINEERS 18% 850 m2 850 m2 650 m2 750 m2 750 m2 1000 m2 20

MAIN MASS ( CORE ) 1ST & 2ND POSETION AFTER EXTERNAL STRUCTURE BEAM AND COLUMN SYSTEM 0.4 * 0.6 * 4 m COLUMN BEAM WEIGHT 40 kg/m 10 * 5 m COLUMN GRID 1 2 BA 0.4 * 0.6 * 5 m 21

site plan 22

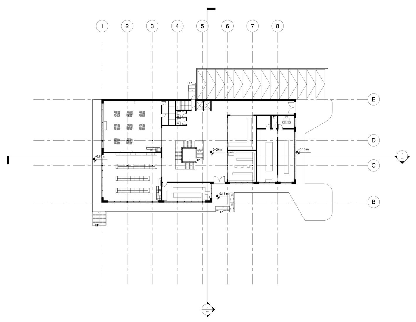
UNDERGROUND FLOOR GROUND FLOOR 23

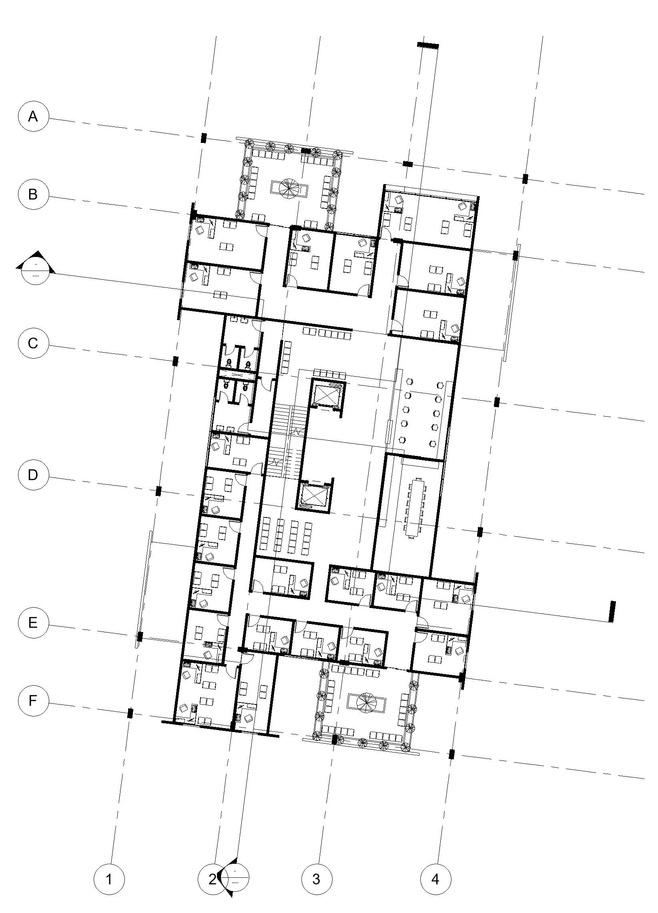
level 1 level 2 24

level 4 level 3 25

level 6 level 5 26

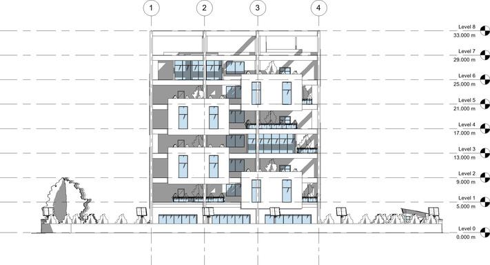
EAST WEST SOUTH NORTH elevations 27

SECTION A-A SECTION B-B SECTONS 28

29

30

31

32

5 Stars Hotel

site plan 35

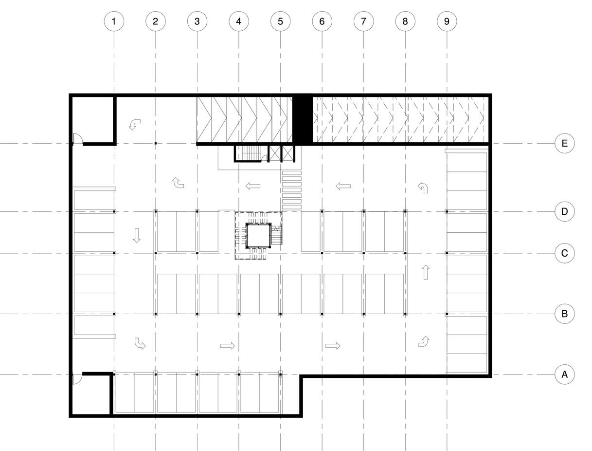
basement plan GROUND FLOOR 36

LEVEL 1 LEVEL 2 37

LEVEL 3 TYPICAL LEVEL 4-10 38

EAST WEST SOUTH NORTH elevations 39

SECTION A-A SECTION C-C SECTION B-B SECTONS 40

43

44

Commercial Building

site plan basement 1 plan 47

basement 2 plan GROUND FLOOR 48

LEVEL 1 LEVEL 2 49

LEVEL 3 LEVEL 4 50

elevations AND SECTION EAST SOUTH NORTH SECTION A-A 51

52

The New Scrap

Notpedestrianorientedorfriendlyintheslightestforaplacecrowdedwith humanactivities. Scrapiscloggingthesite'saccessibility

ULTIMATELY,THEOVERALLVISIONOFMARKADISTRICT’SFUTUREISAPLOTTHATALLOWSGROWTHAND DEVELOPMENT,WELCOMINGAHEALTHYENVIRONMENTFORCURRENTANDFUTURERESIDENTSASVITAL ECONOMIESWILLSPUROUTTHROUGHINDUSTRIALZONESANDHIGHQUALITYOFLIFEFORALLAGEGROUPS ANDGENDERSBYPROMOTINGREVITALIZATIONOFYOUTHENERGY,JOBOPPORTUNITIESANDADDINGA FORMALLAYOUTOFTHEDISTRICTASWELLASHAVINGGOODACCESSTOWELLSERVICEDRESIDENTIALZONES.

Amenities they require as well as acquiringthepublic'ssafety Focusing ontheyouthasabigforcethat'llshape theorganization. Keepingupwiththeindustrialzones and increasing the job opportunities fortheresidentsandnonresidents. Rehabilitation of roads to give an organizedorderandfollowingastreet hierarchy. Redesigningtheinfrastructurethat'll accommodate the necessary needs outsideandinsidethesuggestedplot forabetterqualityoflifefortheyouth 55

VISION

HIGHQUALITY

Disregardedtopographicalelementofthesite. Unavailabilityofactivitiesfortheyouth,noentertainmentcenters. Providingvarioustypesofservicesnotonlyfortheplotbutalsoforthecamp acrossandthesurroundingdistrict. Encourageanurbanenvironmentthatsupportshealthyandactive living

OFLIFE

VITAL ECONOMIES REVITALIZATION

GROWTHAND DEVELOPMENT

PROBLEMSTATEMENTS

GROWTHANDDEVELOPMENT

GOAL: GOAL:

GOALSANDOBJECTIVES

Locatingtheprivacygradient:

OBJECTIVES 4 UsingSchneller’scampasamajor forcetohaveconnectingbridgesto andfro 5 Increasing hospitals, schools, commercials and industrials to accommodatethemasses. 6 Connectwiththeindustrialzoneof Tatweerdistrictthatleadsupwardto Zarqa'sindustrialdistricts 7.Newbusroutewillconnectdistricts of Amman including Marka and the plannedstopsofplotwithZarqa'sbus stop

HIGHQUALITYOFLIFE

GOALSANDOBJECTIVES

Promotetheredevelopment ofthelayoutorganizationofthe district. GOAL: Integratingandconnecting surroundingurbanspaces Reinforcethesenseofplace andgivestructureandorientationto theurbanexperience

OBJECTIVES 8. Creating an appropriate sensetothetypologyofMarka tonotimpose. 9. Acquiring new unique facilitiesthat’llbenefitboth residenceandnonresidence. 10. Enhance intuitive way finding and a sense of orientationanddestination.

OBJECTIVES

private,semiprivateandpublicwith multipletransportationoptions GOAL: Enhancetheyouth’s orientationandbehavior Enhancetheenvironmental awarenessandspectrum GOAL: GOAL: OBJECTIVES 11 Communityparksandgreenbelts will create buffer zones between residentsandscrap 12 Addingmoreschoolsandmaking the district compounded with the differentactivitiesforchildren 13 Providing public transportation nodes and Improve and enhance bicycleandpedestrianroutesinthe community 14.Theresidentiallandusemustbe awayfromscrapandnearservicesand thegreenzones OBJECTIVES 15 Encouragephysicalactivities through youth athletic complexes. 16.Promotejobopportunitiesin commercials and industrial sectors 17 Insertingnewentertainment sectorsthattakesadvantageof steeptopography. OBJECTIVES 18 Creating sustainable water harvesting systems using the steep topography and near connectedsites.(FarahParkﺔﻛﺮﺑ ﻲﺴﺒﻴﺒﻟا) 19 Using the cultural aspect in recyclingtolessenthepollution 20. Design green belts around industrialzoneforenvironmental andvisualpurposesaswell 56

Usinga300x300mgridsystemto create super blocks that’ll organizethelanduseandbreak fromtheinformalsettlements Placing nodes on the intersectionofthegridsystem to create a public zone for transportation Create zones for the local servicesonthecollectorstreets inagoodwalkabledistance 1 2 3.

Suggestedstreetshaveahierarchy that'llbetakenadvantageofasit createsagridsystemaswellas establishingprivacylevelsfor differentlanduses. Highwayroads Mainroads Collectorroads Localroads Serviceroads METHODOLOGY:PRIVACYMEASUREMENTS PRIVATE SEMIPUBLIC PUBLIC Usingthegradualprivacytoasa layoutforthelandusesuggested: Residential Neighborhoodparks Greenbelts Hospitals Schools Residential Industrialzone Entertainmentcenters Youthathleticcomplexes Communityparks Commercials Openparkingspots 57

METHODOLOGY:STREETHIERARCHY

METHODOLOGY:GRID&NODES

300X300mgridtocreatesuperblocks hasbeenissuedtoconnectthe streetstogetherandinsertnodesin theintersectionsforbetter transportationsystems,traffic organizationandlanduse orientation 80 100metersfortraffic control 60 80incentralareas withlargenumberof pedestrian Spacemanagement forCPTEDhence superblockgrid methodisusedas wellastomakethe designformal.

SCHEMATIC

RESIDENTIAL PARKS INSTITUTIONAL CIVILUNIT OPENPARKINGLOT MEDICALCENTER Industrialsectorhasbeenmovedtotheothersideofthe streetwithaddedbufferzones greenbelts forvisual andenvironmentalprotectionwhereastheother functionsaredisplayedaccordinglytotheroadhierarchy andprivacymeasurements

ENTERTAINMENTCENTER

COMMERCIAL

INDUSTRIAL Public Private 58

MASTERPLAN Plotdivisionhasbeen assembledaccordingto theprivacymeasurements andtheroadhierarchyto theRatios(1:1/2:1/3:1) Fromthis,thetypesofland useswereplottedas follows: HEIGHT6STORIES→ (PUBLIC) HEIGHT4STORIES→ (SEMIPRIVATE) HEIGHT2STORIES→ (PRIVATE) MASTERPLAN-ROADS LOOPROAD 20m LOCALROAD 20m 2MPEDESTRIAN+2MBICYCLE+3M ONSTREETPARKING/PLANTING+3M ROADWAY ARTERIAL COLLECTORS LOCAL 59

MASTERPLAN-LANDUSE RESIDENTIAL 33.7% COMMERCIAL 14% CIVIL&ADMINISTRATION 55% INSTITUTIONAL 5 1% RECREATIONAL 4 9% YOUTHATHLETICCOMPLEX 61% MEDICALCENTER 2 8% PARKS 23 5% PUBLICPARKING 4 5% INDUSTRIALS MASTERPLAN 60

Urban Design

65

66

67

68

69

70

71

72

Graphics Presentations & Skills

3d rendering 75

3d rendering 76

free sketcheshamd 77

78

free sketcheshamd 79

80

81

82

Mohammad Saffarini +962788886209 mohammadsafsaf99810@yahoo.com

Turn static files into dynamic content formats.

Create a flipbook
Issuu converts static files into: digital portfolios, online yearbooks, online catalogs, digital photo albums and more. Sign up and create your flipbook.
Architecture Portfolio | Mohammad Saffarini (2017 - 2022 ) by Mohammad Al-Saffarini - Issuu