Architectural Portfolio -Mohammad Ayasrah-

Page 1

ARCHITECTURE PORTFOLIO

MONEEB

MOHAMMAD

Mohammad Moneeb Irshead Ayasrah April/2/2000

Amman, Tla'a Al Ali moneebmohammad7@gmail.com

0798140603 moneebmohammad7@gmail.com

the University Of Jordan, 2018-Tilll Now School Of Engineering, Architectural Engineering Student GPA:3 16

ALJAZEERA SCHOOLS, 2018 Tawjihi degree

C level - B1 to

(CEFR),

Native English

90% 90% 75% 90% 80% 90% 50% Arabic
fluent
skills Personal Information languages Education
Autodesk Autocad Autodesk revit Sketchup Lumion Adobe Photoshop Autodesk 3DS Max Microsoft Office Software ARCHITECTURE Free-Hand Sketching Conceptual Design Manual Rendering Workshop Drawings Other Presentation team player courses REVIT AutoDesk, Pioneers academy, 2020 conversation
B2
international house,2016 This certificate is globally accredited well-dedicated visual thinker

Architectural projects

INDEX

this portfolio shows selected architectural projects i designed during my study, These projects are demonstrated in drawings, 3D shots, and their conceptual approach. they also show the steps of forming my orientation in architecture that personalize my thoughts, interests, and skills. moving and balancing between beauty and function.

Seeds Research Center

4th year project, 2nd Semester

High-Rise building (Mixed use)

4th year project, 1st Semester

Shari'a college

4th year project, 2 week project

Commercial building

3rd year project, 2nd Semester

Natural Life Museum

3rd year project, 1st Semester

car charging station project from mind

Rendering

92 100

other projects: 1 College of Art Café, 2 winter garden villa.

4 26 42 54 72
86 Lumion
manual sketching

location

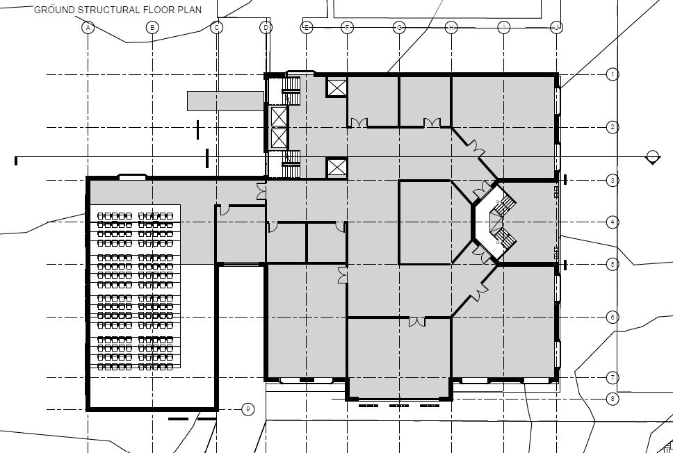
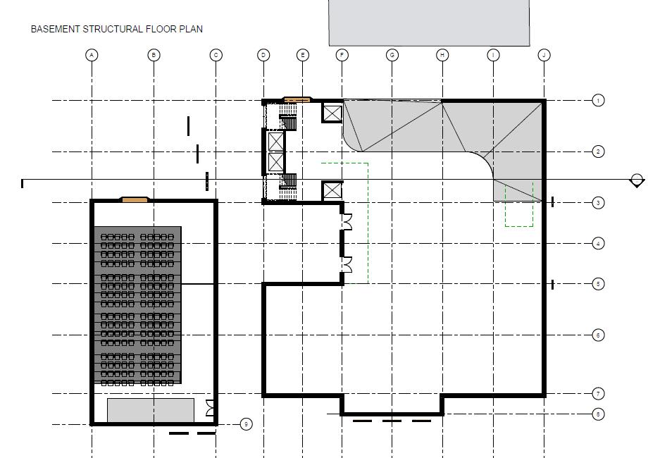
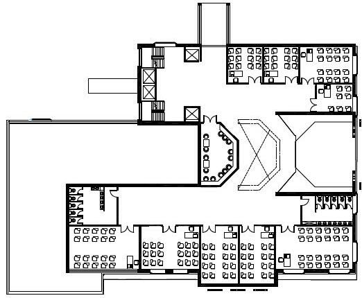
The architectural project for the seeds research Center installed near to the engineering gate entrance of university of Jordan, The area is right next to Hamdi Mango center for academic research, Jerash dorms and the generous woods. Simple. Landmark. Green area / green roofs. In alignment with the precedent historical buildings.

Design Response

guidelines

Integration to the architectural ensemble to the surrounding landscape, a quiet and pleasant space. to produce seeds and medicine in high quality in total respect to the environment.

the defining Idea made me think of the project as a “humanized landmark”. It is perfect for the intellectual immersion of the researchers, that will bring their ideas to the Center - united in their constructive intention, and in perfect alignment with the precedent historical buildings.

Amman, Jordan Al Jubeiha University of Jordan

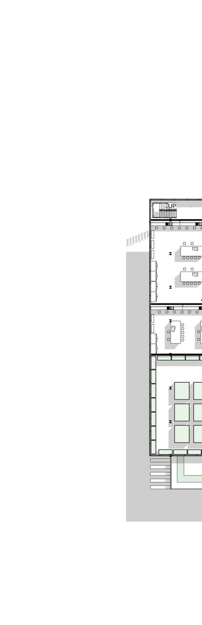
Exh bit ons

2

1 1 2visitors

Mult purpose Space

Visitors Exper mental Labs Stores/Shops Café WC

Leafy/ Fruity Vegetables

Soil less Farming Drough Scenar os

Herbs and Aromat c Plants

Seedling Planting Rooms

Seed Storage Rooms

Equ pment Rooms

Waste Storage rooms Wash ng Area

Water Storage Mechanical Rooms

Electr cal Rooms

Cool ng Fr dge Rooms

Exper mental Labs Genet c Labs

Research Labs Med cal Labs

Seed Alteration Lab

Extract on Lab

Clean ng/drying pack ng process ng components assembly l ne finished product station

Storage and Printing Area

Showrooms

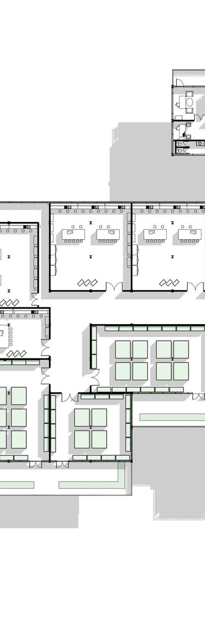
Training Rooms

admin stration

Training Rooms

Classrooms

Mult purpose Space WC Entrance Lobby

Wa ting Room

Admin stration

Meet ng Rooms

Manager Room

Secretary Room Security Room WC Cafeteria Library Elevators

Serv ce Elevators Sta rs 6165 41 4 30%

1 2 1

1 1 1

1 1 1 4 1 1 1 2 2 1 1 3 1 2 1 1 1 1 2 1 1 1 1 1 1 2 1 2

1

75 200 75 30 75 25 100 100 100 100 100 75 30 70 40 100 300 300 200 100 100 100 100 100 100 100 100 50 200 100 200 100 100 300 80 40 120 50 20 80 30 145 80 45 20 20 100 100 100 57 8 11

Total Area Visitors Cult vation Storage Labs Production L ne classrooms Reception Addit onal Serv ces Core Total Functions Area Total Core Area C rculation 8068 32 150 200 75 60 75 50 100 100 100 100 100 75 30 70 40 400 300 300 400 100 100 100 100 100 100 100 100 200 200 100 200 200 200 300 80 120 120 100 20 80 30 145 160 45 20 20 100 100 100 114 8 22

610 500 1615 800 1400 420 100 690 41

1
1 1 1 1 4 1 1 2 1 1 1
1
186192
4 FINALISED PROGRAM zone1
zone2 workers zone2 student shared
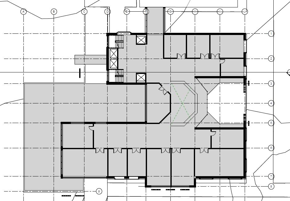
1 4 2 00 3 4 5 3 0 60 7 8 9 10 11 12 13 A C D E G H I J K L 5 64 4 37 4 50 1 00 2 60 2 00 0 00 3 45 2 00 8 00 0 13 2 00 3 00 3 53 3 50 3 00 2B 00 3 00 12 00 8 00 4 00 0 00 1 96 1 77 2 00 1 00 12 00 0 00 1 74 0 00 8 00 4 00 0 00 8 00 4 00 F0 62 15 00 8 00 4 00 0 67 0 97 8 00 3 00 1 51 1 00 0 00 0 00 1 00 15 0012 00 8 00 1 00 2 00 3 00 2 71 SITE PLAN 06 3 m12 5 m SCALE: 1:500 25 0 m Entrance Entrance
A B C D E F G H I J K L 5 6 7 8 9 10 11 12 13 4.4 3.0.80 324 2 1 1 1 1 1 Basement FLOOR 3 6 7 4 2 5 03 1 m6 3 m SCALE: 1:250 12 5 m 2 4 10 9 2 4 5 17 19 15 12 1 12 16 6 11 1413 16 15 14 14 3 8 3 3 1 8 1 87 5 17 4 50 2 98 4 00 3 37 2 00 3 30 3 30 1 00 0 00 3 80 3 61 3 3 02 0 01 00 00 2 6 02 00 0 00 3 30 1 80 1 22 1 62 2 00 3 30 0 00 0 00 0 00 0 00 1 74 0 00 0 41 0 00 0 00 3 30 0 00 0 00 2 00 0 65 0 94 1 00 0 00 0 00 1 00 0 33 0 98 3 38 4 00 3 69 2 45 1 36 0 45 1 00 0 00 03 1 6 3 SCALE 1 250 12 5 Entrance Entrance Ground FLOOR
FIRST FLOOR 0 20 10 2 1 3 7 7 7 3 10 10 4 10 9 5 4 6 6 6 10 SECOND FLOOR
ROOF FLOOR 2 3 2 3 1 2 2 12 5 m
o
TI EAST ELEVATION

Section A-A

Section B-B

Section C-C

STRUCTURE

High-Rise building (Mixed use)

the site is ne location facing amma

gridlines

Starting my thinking in achieving a sustainable building with a green roofing adding value to the function of the building and the environment surrounding. the main mass was the podium. grading the masses and rotating them to make a smooth movement in the elevations.

Design Response

Sustainability Environmental responsibility

PROGRAM
site plan parking -1,-2,-3
Mezzanine, 1st floor
ground floor
2nd floor 4th floor
5th - 1th floor
structure

Shari'a college

location

The architectural project for shari'a college is in the university of jordan,amman, beside the old shari,a faculty. it connects with the old faculty with a bridge.

Design Response

Simple. Islamic Eye catching In alignment with the precedent historical buildings.

guidelines

Integration to the architectural ensemble to the surrounding university buildings, a quiet and pleasant space. the building is built on an asphalt land to respect the beautiful environment without cutting any tree in the university.

technology

I used mashrabiya to reflect an islamic impress not to be contradictory with the surrounding buildings.

Amman, Jordan Al Jubeiha University of Jordan
Site Plan basement

floor

ground
1st floor

2nd floor

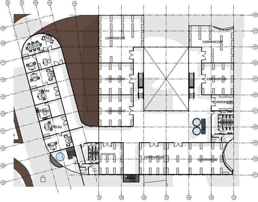
Commercial building

location

The site is locatedin Al Jubaiha beside Al Sahafah tunnel.

Design Response

Simple. Landmark. practical Sustainable

guidelines

Integration the richness of the site with the commercial center, a pleasant space.

The building is in line with the surrounding land and on which it is built, through the shape and inclination of the building

context concept form function technology

plan

Site
Basement

MIZZANINE

GROUND FLOOR
FLOOR

floor

floor

1st
2nd

floor

3rd

Natural Life Museum

Design Response

Green area / green roofs. funky Landmark.

guidelines

Because the area is poor in plants, I made sure to make the building compensate for desertification in the area to create a pleasant space.

The building is like a green hills

roof structure

car charging station

Location the site is in tabarbour behind the shahid street near tarik BRT station

Design Response guidelines

sustainable Keep pace with development funky

Because of the development,and because of the shortage of the electric car chargers an idea came to my mind to make a car charging station to serve the area.

the development that serve the nature we should embrace it

plan

Lumion Rendering

1
2
3
4
5

manual sketching

manual sketching

DAyasrah esign

Turn static files into dynamic content formats.

Create a flipbook
Issuu converts static files into: digital portfolios, online yearbooks, online catalogs, digital photo albums and more. Sign up and create your flipbook.