Mohammad Ali Al Saif - Portfolio

Page 1

PORTFOLIO

Mohammad Alsaif 2024

AboutMe

Hello, I’m Mohammed Ali Alsaif, a passionate and dedicated architect with a degree in Architecture from Qassim University. My journey in the architectural world began with a strong passion for design and innovation, leading me to work at Al-Khalil Office, where I contributed to various architectural projects, applying my theoretical knowledge to real-world scenarios.

Later, I joined AMD Office as an intern. Thanks to my dedication and hard work, I was promoted to Assistant Architect within just two weeks and then to Lead Architect. I became the primary point of contact for clients and took on a strategic role in the office’s development, working closely with the owner. During this time, I also worked on numerous personal projects, allowing me to develop my unique style and experiment with innovative ideas.

In addition to my practical experience, I have continuously sought to enhance my skills and knowledge through specialized courses beyond my university education. I have completed courses in Urban Design, Building Information Modeling (BIM), and more, equipping me with the latest tools and techniques in the field.

I believe in continuous improvement and strive for creativity in every project I undertake. I am dedicated to creating architectural spaces that enhance the quality of life and meet users’ needs in unique and sustainable ways. I look forward to leveraging my skills and experience to contribute to inspiring and enduring architectural projects.

architectural

MOHAMMADALSAIF

QASSIM OASES 2023

URBAN DESIGN FOR A NEIGHBORHOOD CENTER IN HAIL 2022

AL MAZRAA RESORT 2024

COMMERCIAL PROJECT QASSIM 2024

HOUSE IN QASSIM 2024

PRIVET HOUSE IN RIYADH 2024

HOUSE IN RIYADH 2023

HOUSE IN JEDDAH 2024

PRIVET HOUSE IN ALKHOBAR 2024

TOWER RENOVATION 2022

USING AI IN ARCHITECTURAL DESIGN 2024

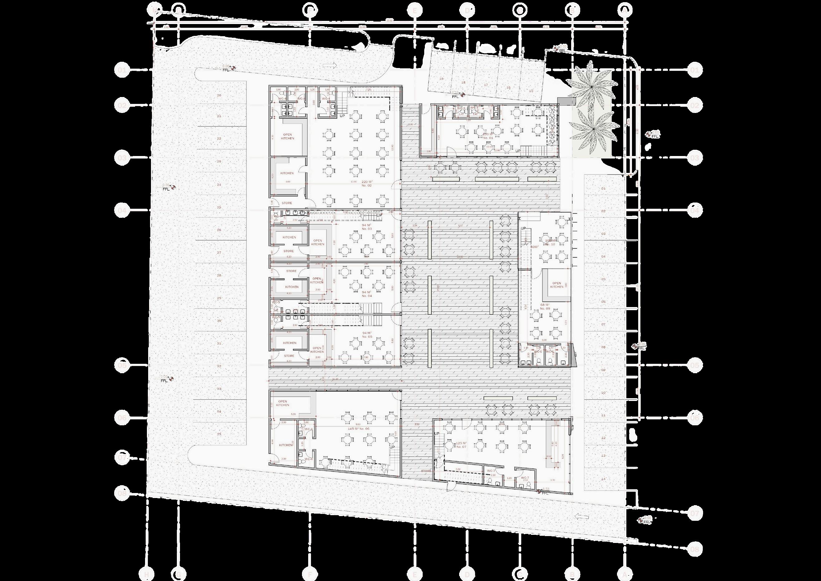
Oasis Al-Qassim is a central architectural project characterized by its design, which is based on advanced architectural ideas and concepts. Instead of merely constructing buildings and facilities, it revolves around the idea of integrating architectural elements with the surrounding environment and the needs of the community. The project embraces principles of sustainable and smart design, ensuring the provision of a comfortable and appealing environment for both residents and visitors alike. The architect responsible for the project studied advanced architectural ideas and concepts, including the use of environmental design and sustainability techniques to maximize the use of available resources and reduce negative environmental impacts. Cultural and historical elements were also incorporated into the design, with the aim of celebrating local heritage and enhancing the architectural identity of the region.

Additionally, the architect paid significant attention to providing an excellent user experience for visitors and residents alike, designing open and spacious areas suitable for various activities and events. Social, cultural, and recreational aspects were also integrated into the design, creating opportunities for social interaction and strengthening community ties.

In summary, the Oasis Al-Qassim project is an architectural masterpiece that embodies innovation and strategic thinking in creating a distinctive living and cultural environment that serves the needs of the community and enhances the region's appeal.

QASSIM OASES 2023

Project Plan

Photo from the project

project for the neighborhood is a model of comprehensive planning, carefully designed to the surrounding environment serve the neighborhood. The features multi-purpose spaces that residents' needs, enhancing social interaction and community spirit.

jogging track, children's play coffee shops, and cafes, the ulates social and cultural life in contributes to strengthening the residents and fostering community belonging.

design, the project stands out for architectural details that reflect identity of the region and enhance aesthetics. The design pays attention to and exterior details, creating an comfortable environment for

project represents an integrated initiative that aims to enhance improve the quality of life in serving as a model for sustainable and comprehensive urban planning.

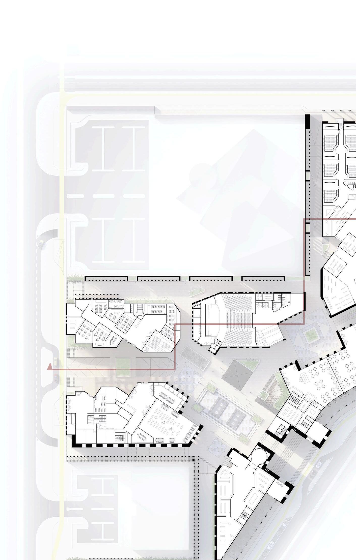
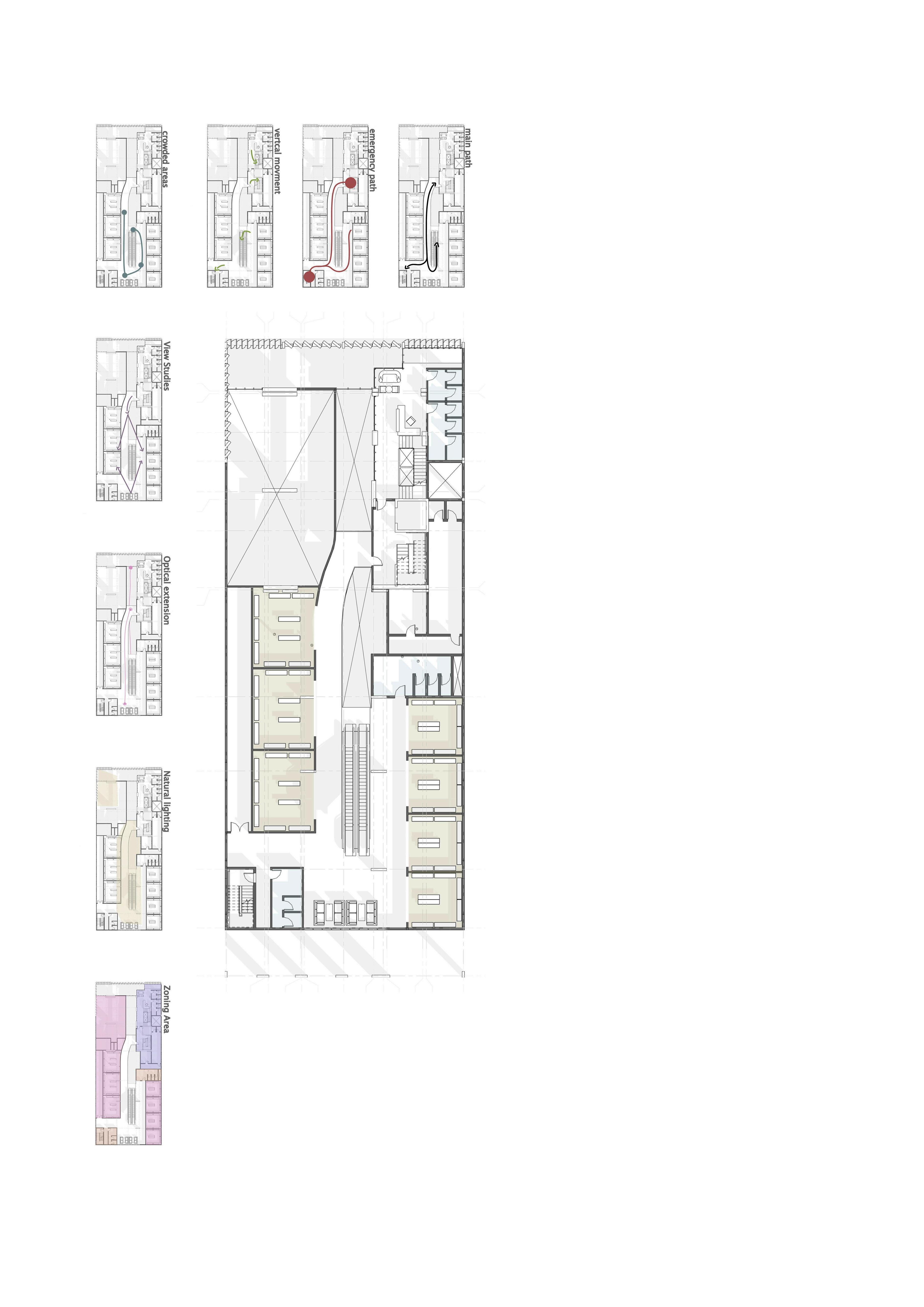
URBAN DESIGN FOR A NEIGHBORHOOD CENTER IN HAIL 2022
Project Plan

Digrams explanation

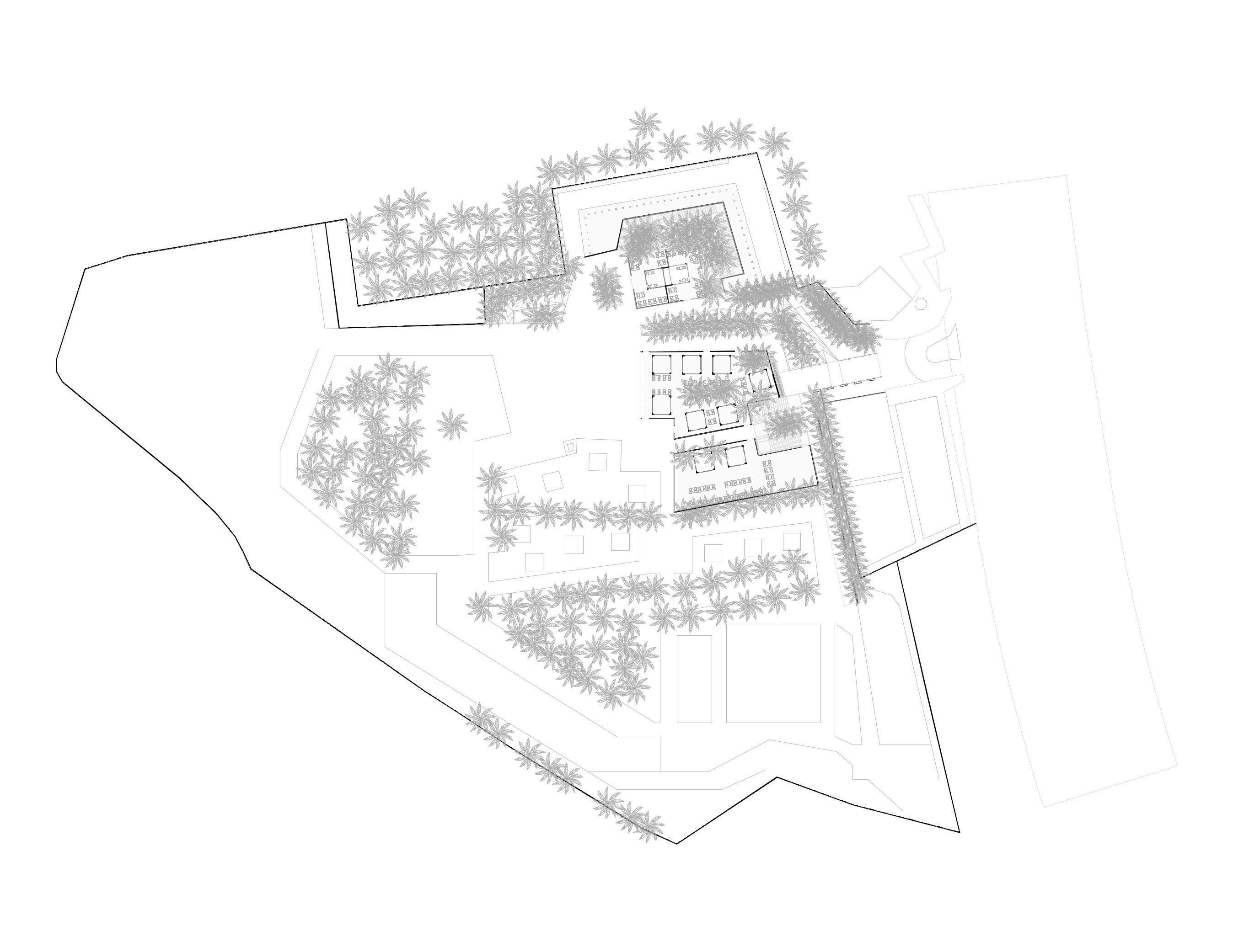
You will see a magnificent resort characterized activity. innovative shapes and extends shops, mix of landscape is plants that atmosphere, enjoy the lighting beauty night, to the relaxation excitement

Al Mazraa Resort 2024

Designing a commercial project that contains than one store. The project was designed be compatible with the environment surrounding the project and to integrate and the external areas interact together to create a beautiful environment and a unique experience. This scene evokes tranquility and relaxation while also arousing curiosity and excitement to explore every corner of the project.

Commercial project Qassim 2024

The project entails constructing a private residence for Mr. Badr Al-Fayzi, featuring an adjacent guesthouse and shared outdoor spaces between the house and the guesthouse.

The design of the house is sustainable and suitable for the surrounding environment, with a focus on providing a large number of bedrooms on the upper floor for privacy and comfort. The ground floor is allocated for common and living spaces, such as lounges, kitchens, and facilities, while all necessary practical details for daily life are provided.

The interior and exterior design are tailored to reflect the personal taste of the residents, offering a comfortable and beautiful environment for them and their guests.

This scene evokes tranquility and relaxation while also arousing curiosity and excitement to explore every corner of the project.

Privet House In Qassim 2024

The private residence for Mr. Ahmed AlHizanj includes the typical features found on the ground floor of any house, such as living areas, kitchen, and possibly a dining room and guest facilities. However, the unique challenge here was to accommodate a large number of bedrooms on the first floor. This might involve creatively optimizing space, perhaps through efficient layout designs or utilizing additional levels if the structure allows.

In terms of architectural details, sustainability and regional suitability were key considerations in the design process. This could entail incorporating eco-friendly materials, implementing energy-efficient systems, and integrating elements that blend harmoniously with the local environment and climate. For instance, passive design strategies like natural ventilation, shading devices, and thermal insulation may have been utilized to enhance comfort and reduce energy consumption. Additionally, the architectural aesthetics might reflect elements of the local vernacular architecture or cultural motifs, adding a sense of identity and belonging to the design.

Privet House In Riyadh 2024 Mohammad Alsaif 2024

Jamal Alotibi found on the such as living dining room and unique challenge large number of This might space, perhaps or utilizing additional levels if the structure allows. sustainability were key process. This eco-friendly energy-efficient elements that blend environment and design strategies devices, and been utilized to reduce energy architectural of the local cultural motifs, belonging to the

Privet House In Riyadh 2023

TThe architectural project for Mr. Amrow Najjar's private residence posed an interesting challenge: fitting a substantial number of bedrooms on the first floor while ensuring the ground floor maintains its typical features like living areas, a kitchen, and potentially dining and guest facilities. This task required innovative spatial planning, potentially involving efficient layout designs or even the addition of extra levels if feasible.

When it comes to architectural specifics, sustainability and local appropriateness took precedence throughout the design journey. This involved the use of environmentally friendly materials, the implementation of energy-efficient systems, and the incorporation of elements that seamlessly blend with the surroundings and climate. Passive design tactics such as natural ventilation, shading solutions, and thermal insulation were likely employed to boost comfort and minimize energy usage. Moreover, the architectural style might have drawn inspiration from indigenous building traditions or cultural symbols, instilling a strong sense of place and cultural resonance into the design.

Privet House In Jeddah 2024

The architectural endeavor for Dr. Abdulaziz Alardhi's private residence presented an intriguing challenge: accommodating a plethora of bedrooms on the first floor while maintaining the customary living spaces on the ground level, including living areas, a kitchen, and possibly dining and guest facilities. This necessitated inventive spatial optimization, potentially through ingenious layout designs or leveraging additional levels if structurally feasible.

Delving into the architectural intricacies, sustainability and contextual relevance took precedence during the design phase. This encompassed the integration of eco-conscious materials, deployment of energy-efficient systems, and harmonious incorporation of elements that resonate with the local milieu and climatic conditions. Passive design methodologies such as natural ventilation, shading mechanisms, and thermal insulation were likely employed to augment comfort levels and curtail energy usage. Moreover, the architectural aesthetics might have drawn inspiration from indigenous architectural styles or cultural motifs, imbuing the design with a distinct sense of place and cultural identity.

Privet House In Alkhobar 2024

The tower renovation project aims to revive the existing structure by enhancing its design, functionality, and sustainability while preserving key structural elements like columns. This involves improving both the structural and architectural performance, integrating sustainable systems such as solar energy, enhancing engineering details like lighting and air conditioning, and renovating the facade to enhance its visual appeal and impact on the urban landscape. This goal is achieved through assessing the current structure, developing a new design, and utilizing technology to coordinate the renovation and integrate sustainable systems, in addition to implementing precise engineering details. The project aims to transform the existing tower into a modern, functional, and sustainable landmark in the urban fabric, with BIM integration playing a vital role in facilitating collaboration between design, construction, and management teams, and providing accurate information about every aspect of the project.

Tower renovation 2022
Removed and new Design
Plan and ideas
Tower Section

Using AI in architectural design offers several benefits, including:

1

Improved Efficiency: Artificial intelligence can enhance design processes and data analysis faster and more accurately than humans, leading to increased efficiency and reduced time and effort required to complete projects.

2

Enhanced Predictions and Analysis: AI can provide accurate analyses and reliable predictions regarding building performance in various conditions, aiding in making better decisions during design and planning stages.

3.

Improved Environmental Design: AI can analyze energy consumption and building sustainability, providing recommendations to enhance energy efficiency and reduce environmental footprint of architectural projects.

4

Customized Design: AI can generate customized designs tailored to clients' needs and project requirements, fostering uniqueness and innovation in architectural design.

5

Machine Learning: AI can also learn from data and past experiences, continually improving and enhancing its performance and accuracy in architectural design.

In summary, the use of artificial intelligence in architectural design contributes to improved efficiency, delivering innovative

Using AI in architectural design 2024

Turn static files into dynamic content formats.

Create a flipbook
Issuu converts static files into: digital portfolios, online yearbooks, online catalogs, digital photo albums and more. Sign up and create your flipbook.