IES Studio BIM Portfolio

Page 1

ABOUTOURSTUDIO

-AconstructionprofessionalswithaboutfiveyearsofexperienceinundertakingBIM-drivenprojects.

-EngagedwithdifferentBIMuseslikedesignauthoring,3Dcoordination,4Dsimulationwithcost estimation,existingconditionmodelingandconstructiondocumentation.

-Creating2D&3DparametricfamiliesandproducingLOD300-400-500constructiondocuments.

-Aproactive,problem-solveranddetail-orientedscopewithhighqualitydeliverables,accuracy,and accountability.

OthmanebnaffanSt.,Heliopolis,Cairo,Egypt

+201123575731

IES.Studio.808@gmail.com

Issue.com/IES.Studio.808

TechnicalTools

Revit

Navisworks

KeyExpertise

BIMContentCreation

Model-BasedShopDrawings

Mission

Weintegratemostofengineering&architecture disciplinesatoneplacetodeliverexceptionaldesign ideasandsolutionswithcompetitiveprices,andto helpmakeanyprojectpasswithease,forourClients inthepublicandprivatesectors.Thescienceof engineeringandsustainabledesignservicesgives ourclientsbetterfuturefortheirprojects.

Vision

Weseeeachclientasanaddedvalue,and everyemployeeasanasset.Ourstrategyisto bealwaysdevelopedofferinglatesttechnology throughcomprehensiveandintegrated multidisciplinaryservicestoaddvaluestoour Clients.Wealwayshavethedesiretobeoneof thetopengineeringfirmsintheregion.

BIM360

Dynamo AutoCAD

Enscape,Photoshop

DesignValidation

Model-BasedQuantification

Cross-TradeCoordination

ProjectTemplatesCreation

4DConstructionSimulation

As-built(LOD500)

Values

Trust&Respect

Ethics

Commitment

ClientSatisfaction

Teamwork&Quality

BIMPORTFOLIOCONTENT

PROJECTS WORKFLOW

ProjectKickoff

BIMModelReview

Coordination&ModelUpgradeLOD350

BIMModelLOD400

MEPFabrication

BuildersWorkProduction

MedicalProjectsWorkflow

BIMModelAsBuilt–LOD500

4DSimulation

STUDIO

DELIVERED PROJECTS

MentorGraphics,Egypt

SaudiPayments,KSA

ThePodium,Egypt

Amazon,Egypt

SFMC,KSA

SAAF,KSA

NEWGIZA,Egypt

ProjectKickoff

ThisStageincludes: Assigningthe ProjectBIM Coordinator KickoffMeeting

SampleforadetailedProjectworkplan

Identifyingthe project’s standardstobe followed

BIMexecution Plan(BXP) preparation& Agreement

AssigningTeam membersfrom eachdiscipline

BIMTemplates Preparation

STUDIO

BIMModelReview

LOD300

•ThisStageincludedcheckingtheIFCModel(LOD300)ReceivedfromConsultantagainstthefollowing;

DesignVs.Model

•Reviewingdesign

drawings/datawithRevitModels

TechnicalReview

•DesignreviewforAll TradesagainstCode

•DesignreviewforAll TradesagainstSpecs

•DesignreviewforAll TradesagainstBOQ

TechnicalCoordination

•ShaftCoordination

•Sectionsatcriticalareasto ensureceilingvoidis

enoughforMEP

•ReflectedCeilingLayout

•Furniture&EQLayout

ModelQualityCheck

•Revitfilesperformance

•Familiesforeachtrade

•MEPfittings

•BXPcompliance

•NamingConvention, Worksets,

ModelSegregation

Actions

•RFIs

•ModelQualityReport

•ModelUpdates(Ifrequired)

•ModelSegregation(Ifrequired)

STUDIO

CoordinationWorkflow STUDIO

LOD300–350

•ThisstageincludesBIMmodelupgradetoreachLOD350–whichisaspecificstagehasbeenaddedbyAIA BIMForumgivingcapabilitytoperform3Dcoordinationandclashdetection.

•Approvedmaterialsthatarecriticaltothecoordinationprocessshallbeappliedtothemodel.

•ThefollowingelementsshallbeusedforasuccessfulCoordinationprocedure;

•ClashMatrix

•ClashTestsinsideNavisworkstoperformclashdetectionprocess

•ClashReportproduced&distributedtoeachrespectivediscipline

•ClashCharts

CoordinationWorkflow

-ElevatorsShopdrawingsVs.Archopenings, Shaftdims.,overheadandpitdims.

STUDIO Coordination& CriticalSections FinalizingRCP Trades Modifying/Modellin g DataValidation ClashDetection
ClashReports
SolvingClashes Coordination Meetings VisualInspection Furniture&EQ Layout Coordinationof Arch.Detailswith implemented materials ModelUpgrade accordingtothe Approved materials Draftingsheet FixationElements includingHangers &Supports + thefollowing: -BOQ -TimeSchedule -LOD -Catalogues Vs. -InstanceProperties -TypeProperties -FamilyGeometry -CategoryofElement Example:
usingClashMatrix& ClashTests
distributedto disciplines
-Curtainwallwithslabedgeanditsfixation methodologyVsStructuralelements -FaçadeCladdingFixation
LOD350

CoordinationWorkflow

LOD350

ClashDetectionWorkflow

ClashDetection usingClash Matrix&Clash Tests

RevitFilePreparation

•Navisworks3DView

ExportRevitFileto NWC

•Optimizefacetingfactor, SharedCoordinates,Don’t ConvertLinks

ExampleforSoft Clashes: -ELRacewaysVs. LCRaceways -ELRacewaysVs. Str.Floors

Defining/Modifying ClashTestsType(Hard, Clearance)

RunClashDetection

AppendNWCinone federatedmodel (NWF)

ImportStandard PreparedSearchsets, ClashTests& AppearanceProfiler (.XML)

Refining/Grouping Results

ClashReportsExport

ClashCharts Preparation

ClashSolving

STUDIO
CoordinationWorkflow STUDIO ClashMatrixbyCategory LOD350

LOD350

ClashChartsareproducedforabettermonitoringofclashsolvingprocess.

STUDIO
CoordinationWorkflow

BIMModel–LOD400

ThisStageincludes:

•ImplementationofAllproject’sapprovedmaterials&Specifications,andensuring accurate&specificdimensionsforthemodelelements.

•Assemblies&Partscanbemodelledwhenneeded.

•MEPFabricationpartsshallbeused.

•FullBIMmodelcoordinationwhichincludestheadded/modifiedelementsfor example;hangers,supports,etc.

STUDIO

BIMModel–LOD400 STUDIO

BIMModel–LOD400 STUDIO

LOD400FamiliesSamples

•Ceilingsuspensionsystemisfullymodelledincludingfurringchannels,hangersandtiles.

•RaisedFloorSystemisfullymodeledwithpedestals&FramingGridaccordingtoselection.

•ThesystemiscoordinatedwithfloorRaceways.

BIMModel–LOD400

LOD400FamiliesSamples

•FanCoilUnitsaremodelledaccordingtoapprovedmodelsaccuratedimensions.

•FCUsfamiliesshallbemodelledwiththeinstallationclearancetoensure providingsufficientspaceforpipingconnection,service&maintenance.

STUDIO

BIMModel–LOD400

Schedules

•SampleDoorSchedule

STUDIO

BuildersWorkProduction

BuildersWorkSample

•BuildingB04.33–SFMC

•RevitModelscreatedonlyforcoordination andBWproduction

STUDIO

BuildersWorkProduction

BuildersWorkSample

•BuildingB04.33–SFMC

•RevitModelscreatedonlyforcoordinationandBWproduction

STUDIO

BuildersWorkProduction

BuildersWorkSample

STUDIO

BuildersWorkProduction

BuildersWorkWorkflow

IdentifyArch/Str. ElementstohaveBW openings

Brickwalls,shearwalls,slabs, beams,precastconcrete,etc.

Adjustall configurationsrequired forBWopenings includinginsulation& firestops

LinkMEPBIMmodels toArch/Str.Model

ApplyInterference checkbetween (elementsdefinedatstep1) Vs.(MEPworks),takingthe insulationintoconsideration

Usetheexportedclash reporttoinsertall openings&merge adjacentopenings

Export&mergeall clashreports

SelectsuitableRevit Add-in

Check/Review inserted/rejected openings

Discussrejected openingswithMEP team

Applyallupdatesafter MEPamendments

Preparetemplates& sheetsrequiredforBW documentation

Annotateallviewswith therequired dimensions

UsethesameRevit Add-infor sorting/numbering openings

Tagallopenings showing(invertlevels& numbering)

Createschedules showing -Numbering,Openingdim., Systemclassification& Insulation

SDfinalization

STUDIO
Documentation

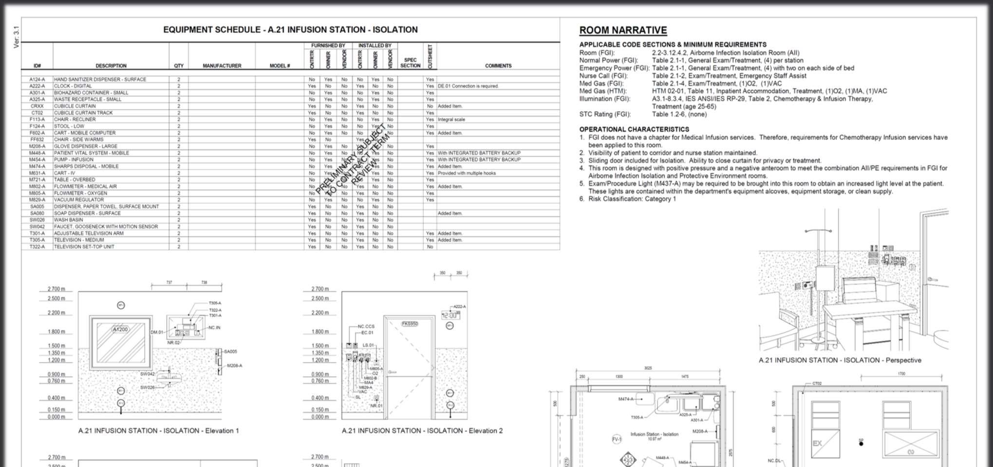
MedicalProjects STUDIO

MedicalProjectsWorkflow

Coordination Process

RoomsMedical DataApproval

Medical Equipment Coordination

RoomLayout Sheets

•Project’sStandardCatalogue(Specifications)shallbepreparedandimplementedforeachmodel elementasKeynote.

ShopDrawings

ProductionforAll Trades

MedicalProjects

STUDIO

MedicalProjects

STUDIO

AsBuiltModelProcedures

Markupdrawingsareprovidedaccordingtothe recordeddimensionsafterconstruction

-Pointcloudconvertedintoasbuiltinformation

STUDIO
OR Yes No

4DSimulationWorkflow

STUDIO Model Elements Breakdown Project Construction Schedule (WBS) Tobe Compared/Matched with Planned Schedule .XLX.CSV ActivityIDtobeInput Fundamental Step RevitFilesafter matchingelements toWBSand ActivityID ConverttoNWC InsertNWCsinto NWFfile Applyauto selectionbyRules Export4D Animation ImportDataSource Tobeupdatedasper theactualschedule
4DSimulationWorkflow STUDIO
4DSimulationWorkflow STUDIO
STUDIO

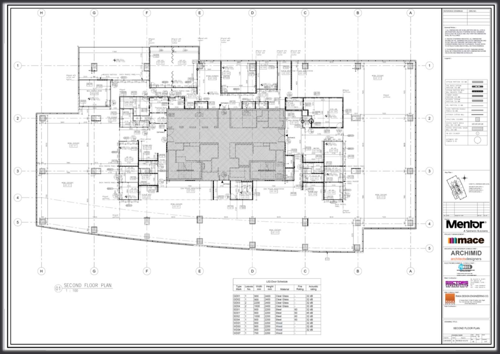
MentorGraphics

•Location:CFC,Cairo,Egypt

•Type:OfficeBuilding(FIT-OUT)

•Designer:ARCHIMID

•Contractor:SECTORSConstruction

•BIMContractor:RAKADesign

•Software:RVT2019,NAVISWORKS,Dynamo

Scopeofwork

•Existingconditionmodeling

•DesignReview(Lifeandsafety)withlocalcodes

•InteriorDesignImplementation

•MEPCoordination

Deliverables

•FullCoordinatedBIMmodelLOD500

•DetailedShopDrawingPackage

•Billofquantities

•FF&E

STUDIO

Existingcondition

•Core&Shelladministrationbuilding

•Projectconsistof4floor(2nd,3rd,4thand5th)

•GFA1750m2pereachfloor

Scopeofwork

•CoordinateAs-BuiltDrawings

•Core&shellModeling(Architecture&Structure)

•Acquireprojectlocationcoordinates

STUDIO

SettingOutPlansSample

•Gypsumboardpartitionsinstallation(Fire&Non-firerated)withdimensions enhancementfromdesign

•Allwallfinishesandcladdings(Wood,Stone&Brick)modeling

•Glasspartitionsforopenofficeswithblacktintedglassatgypsumconnections

•Allpartitionstypologywithmaterial,thickness,fireratingandHeight

•Roomsforallspacesincludingopenandclosedspaces

•Doorsandwindowstypology

STUDIO

ReflectedCeilingPlansSamples

•ArchitecturaldistributionforallceilingfixturestobeaconceptualforMechanical andelectrical

•FixturescoordinationafterreceivingcalculatedfixturesdesignfromMEPteam

•Coordinateductingworks,drainageandfirefightingsystemwithalltypesofceilinglike gypsumceilings,pendantbafflesorexposed

•EnhanceceilingfixturessuchasDiffusers,Lightingfixtures,Allsensorsandsmoke detectorsandAccesspanelsformaintenance

STUDIO
3DViewsSample 3DFloorPlan3DCeilingPlan STUDIO

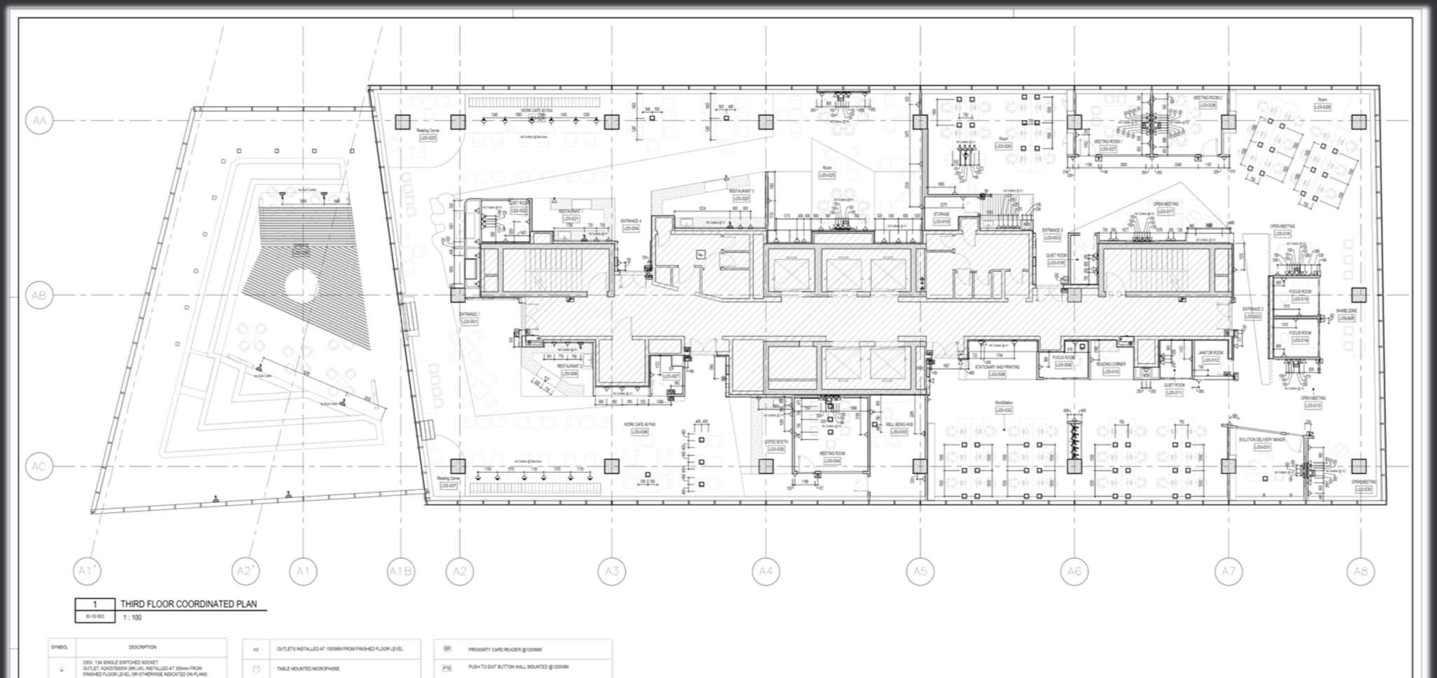
CoordinatedPlansSamples

•Containsallwallfixturesandoutletstobearchitecturally coordinatedwithstandardheightsandin-planaccurate dimensions

•Powersockets,Dataoutlets,Cardreaders,Touchcontrol panelsandfirealarmetc.

•Specialrequirementfromclienttobepresentedinplan viewwitheachfixtureheightfromF.F.L

•Itwasachallengehowtocoordinateeveryfixtureand workwithElectricalandMechanicalRVTLinksinparallel withArchitecture

•Howtodisplayfixtureswithsameverticalplacementand differentheightinplansandnottobeconflictedin drawings

STUDIO
STUDIO

ModelShotsSamples

•InitiativeClashDetectionARCvsSTRfor anyarchitecturalelementclasheswith existingstructuralelements

•AClashMatrixtomanageandunder controlcoordinationstagewithallteam disciplines

STUDIO

SitePhotos

STUDIO

SaudiPayments

•Location:KingAbdallahFinancialDistrict,KSA

•Type:OfficeBuilding(FIT-OUT)

•Designer:FBS

•Contractor:FBS

•BIMContractor:RAKADesign

•Software:RVT2019,NAVISWORKS,Dynamo

Scopeofwork

•Existingconditionmodeling

•DemolitionPlan

•DesignReview(Lifeandsafety)withSBC

•InteriorDesignImplementation

•MEPCoordination

Existingcondition

•Core&Shelladministrationbuilding

•Projectconsistof4floor(1st,2nd,3rd,4thand5th)

•GFA1220m2pereachfloor

Deliverables

•FullCoordinatedBIMmodelLOD500

•DetailedShopDrawingPackage

•Billofquantities

•FF&E

STUDIO

ReflectedCeilingPlansSamples

•ArchitecturaldistributionforallceilingfixturestobeaconceptualforMechanical andelectrical

•FixturescoordinationafterreceivingcalculatedfixturesdesignfromMEPteam

•Coordinateductingworks,drainageandfirefightingsystemwithalltypesofceilinglike gypsumceilings,pendantbafflesorexposed

•EnhanceceilingfixturessuchasDiffusers,Lightingfixtures,Allsensorsandsmoke detectorsandAccesspanelsformaintenance

STUDIO

CoordinatedPlansSamples

•Containsallwallfixturesandoutletstobe architecturallycoordinatedwithstandard heightsandin-planaccuratedimensions

•Powersockets,Dataoutlets,Cardreaders, Touchcontrolpanelsandfirealarmetc.

•Specialrequirementfromclienttobe presentedinplanviewwitheachfixtureheight fromF.F.L

•Itwasachallengehowtocoordinateevery fixtureandworkwithElectricaland MechanicalRVTLinksinparallelwith Architecture

•Howtodisplayfixtureswithsamevertical placementanddifferentheightinplansandnot tobeconflictedindrawings

STUDIO

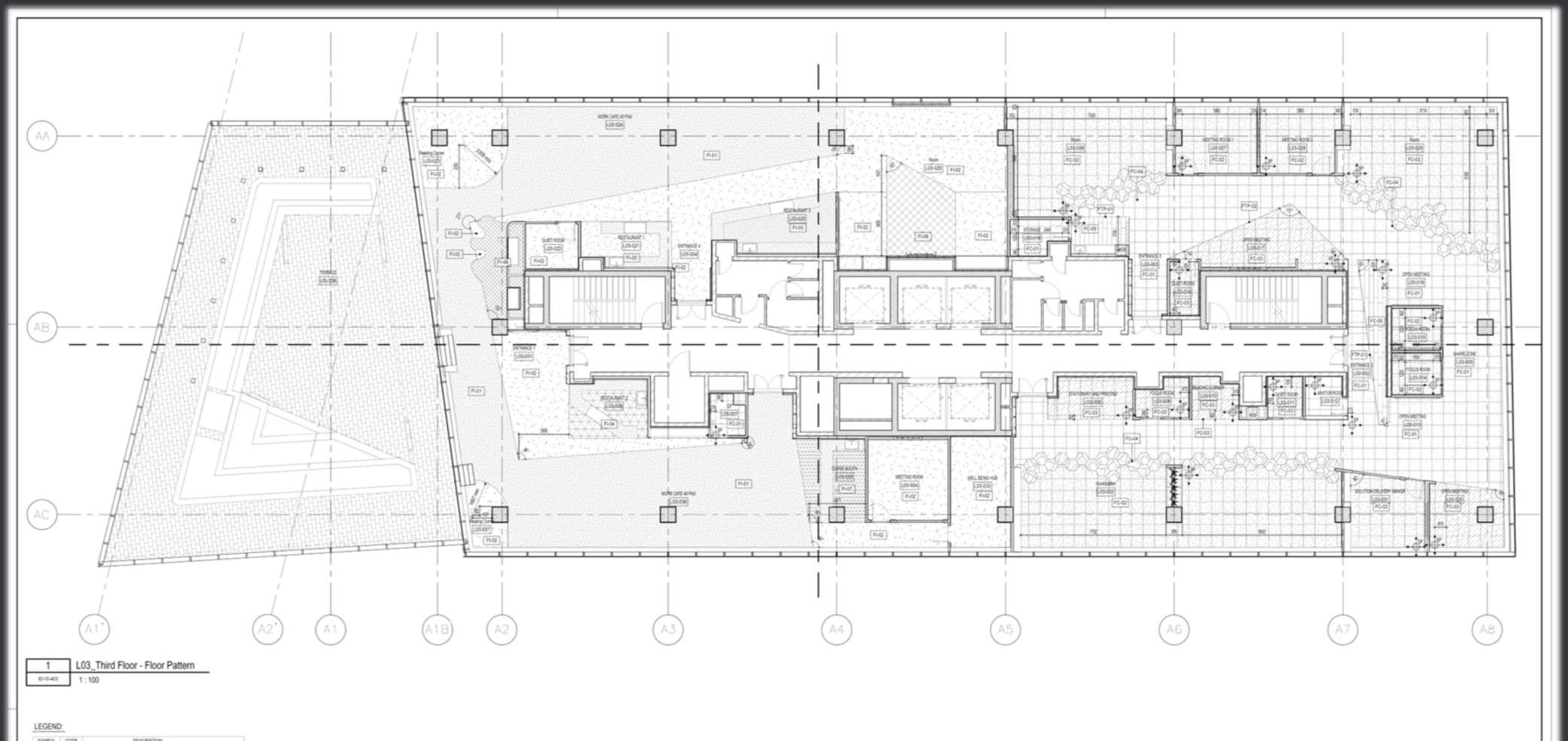
FloorPatternPlansSamples

•Containsallflooringdesignpatternwith materialcodetagging.

•Startingpointforeachfloorpatternwith knowdimensions.

•LegendforTaggedCodesandmaterial description.

STUDIO

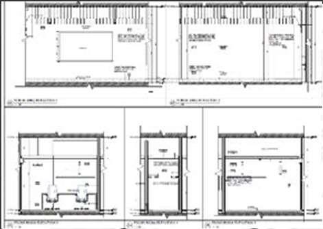
JoineriesDetailsSamples

•ShopDrawingsforallprojectjoineriesincludingallfixed benches,PantriesandallBuilt-inequipmentlikevendor machineandwatercoolers.

STUDIO

JoineriesDetailsSamples

•ShopDrawingsforallprojectjoineriesincludingallfixed benches,PantriesandallBuilt-inequipmentlikevendor machineandwatercoolersandalluniquewallswith variantfinishingmaterialsandspecificdesign.

STUDIO

BIMModel/RendersSamples

STUDIO

BIMModel/SiteSamples

STUDIO

BIMModel/SiteSamples

STUDIO

THEPODIUM

•Location:CFC,Cairo,Egypt

•Type:OfficeBuilding(FIT-OUT)

•Designer:RaafatMillerConsultingRMC

•Contractor:ArabianConstructionCo.ACC

•BIMContractor:RAKADesign

•Software:RVT2019,NAVISWORKS,Dynamo

Scopeofwork

•Core&ShellConstruction

•StructureModelingforPodiumandbuildings

•Landscape/StructureCoordination

•MEPCoordination

Deliverables

•FullCoordinatedStructureBIMmodel

•DetailedShopDrawingPackage(ByStructureTeam)

•CoordinatedLandscapePackage

•Construction4DSimulation

STUDIO

StructureStage

•Theprojectconsistsofsixtypicalbuildingsconnectedwithonepodium

•Itwasabigchallengecoordinatinggroundslabslopesfordrainageand Landscapeelementswithanundergroundbasementparkingarea

•Coordinatingentryrampsforbasementandhardscapelevelsforpedestrians

•RVTmodelforonebuildinglinkedsixtimeswithdifferentlocationsand rotation

STUDIO

ArchitectureStage

•Forarchitecturescope,Coordinatingfacadescolumnswithglassandmarblecladdings contractorsforaccuratedimensionsforconstructionstagebyShopDrawings.

STUDIO

MEPStage

•MEP/Structurecoordinationforshearwallopeningsforinfrastructureand allMEPelements

•DrainagesystemforgroundslabandLandscapeplantersingroundslab abovebasement

STUDIO

LandscapeStage

•HardscapeandSoftscapeLevelingcoordinationwithdesigndrawings,StructureCorbelsfor transitionslabsandramps

STUDIO

Construction4DSimulationStage

•ApplyingtimeframeschedulebyaddingActivityIDforeverystructureelementwithtime schedulereceivedfrommanagementteamandapplyingitwithNAVISWORKS

•VideoscreenshotsshowconstructionprogressVstimeframestartingfromshoring(Piles)to completionofproject

STUDIO

AmazonEgypt

•Location:Maadi,Cairo,Egypt

•Type:OfficeBuilding(FIT-OUT)

•Designer:IALondon

•LocalConsultant:WassefDesignGroup

•Software:RVT2021,NAVISWORKS,Dynamo

Scopeofwork

•Existingconditionmodeling

•DesignReview(Lifeandsafety)withlocalcodes

•InteriorDesignImplementation

•MEPCoordination

Deliverables

•FullCoordinatedBIMmodelLOD350

•DetailedDesignPackage

•Billofquantities

•FF&E

STUDIO

Existingcondition

•Core&Shelladministrationbuilding

•Projectconsistof4floor(2nd,3rd,4thand5th)

•GFA1750m2pereachfloor

StageScopeofwork

•CoordinateAs-BuiltDrawings

•Core&shellModeling(Architecture&Structure)

•Acquireprojectlocationcoordinates

STUDIO

SettingOutPlansSample

•Gypsumboardpartitionsinstallation(Fire&Non-firerated)withdimensions enhancementfromdesign

•Allwallfinishesandcladdings(Wood,Stone&Brick)modeling

•Glasspartitionsforopenofficeswithblacktintedglassatgypsumconnections

•Allpartitionstypologywithmaterial,thickness,fireratingandHeight

•Roomsforallspacesincludingopenandclosedspaces

•Doorsandwindowstypology

STUDIO

ReflectedCeilingPlansSamples

•ArchitecturaldistributionforallceilingfixturestobeaconceptualforMechanical andelectrical

•FixturescoordinationafterreceivingcalculatedfixturesdesignfromMEPteam

•Coordinateductingworks,drainageandfirefightingsystemwithalltypesofceilinglike gypsumceilings,pendantbafflesorexposed

•EnhanceceilingfixturessuchasDiffusers,Lightingfixtures,Allsensorsandsmoke detectorsandAccesspanelsformaintenance

STUDIO

EnlargedSpaceSamples

•Presentingadetaileddrawingsforeachspaceindividuallytoshowaflooringplan withallfixtureslikefloorboxes,raisedfloorandcabletrunkpathandceilingplan

•Detailedwallelevationsshowingallmaterials,ceiling fixation,ceilingfixturesandpartitionsandcladdingsfixation

STUDIO

JoineriesDetailsSamples

•ShopDrawingsforallprojectjoineriesincludingallfixedbenches,PantriesandallBuilt-inequipmentlikevendor machineandwatercoolersandalluniquewallswithvariantfinishingmaterialsandspecificdesign.

STUDIO

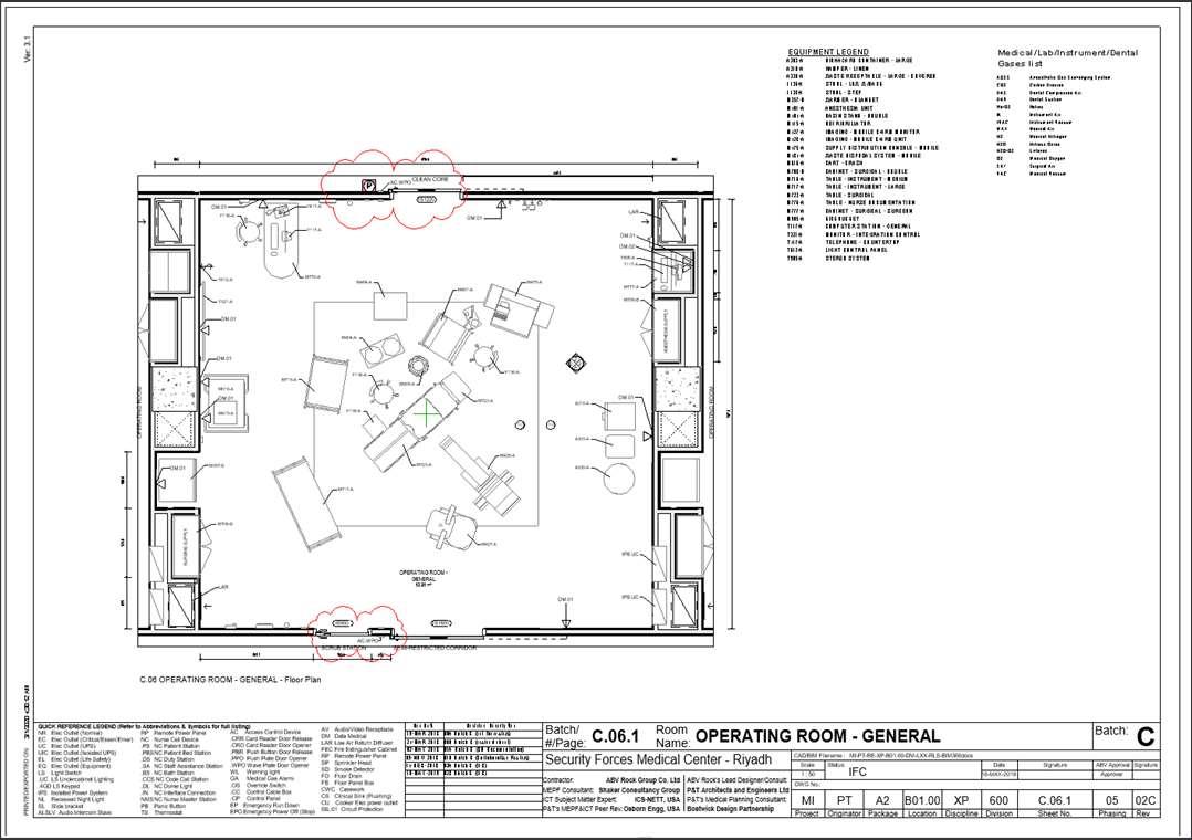
SecurityForcesMedicalCityProject

•Location:Riyadh,KSA

•Type:Medical

•BIMContractor/Coordinator:RAKADesign

•Software:RVT2019,NAVISWORKS,Dynamo

Scopeofwork

•ArchitecturalBIMModelLOD200

•EquipmentCoordinationasperMedicalteamorder

•Medical/MEPCoordination

Deliverables

•RoomLayoutSheetsforClinical/Non-Clinical

•CoordinatedBIMModelLOD400

•EquipmentScheduleforeachroom STUDIO

SecurityForcesMedicalCityProject

•RoomLayoutSheet (RLS)Sample

STUDIO

SecurityForcesMedicalCityProject

•RoomLayoutSheet (RLS)Sample

STUDIO

SecurityForcesMedicalCityProject

•RoomLayoutSheet (RLS)Sample

STUDIO

SAAFProject

•Location:Jeddah,KSA

•Type:MixedUse–(HotelTower,AdministrativeTower,Mall,Museum,Mosque,Yacht Club,Cinema)

•BIMContractor:RAKADesign

•Software:RVT2019,NAVISWORKS

Scopeofwork

•ArchitecturalBIMModelLOD200

•InteriorDesignImplementation

STUDIO

SAAFProject

STUDIO

SAAFProject

STUDIO

MODELLOD500

STUDIO
NEWGIZAClinics

MODELLOD500

STUDIO
NEWGIZAClinics

MODELLOD500

NEWGIZAClinics STUDIO
+201123575731 IES.Studio.808@gmail.com Issue.com/IES.Studio.808

Turn static files into dynamic content formats.

Create a flipbook
Issuu converts static files into: digital portfolios, online yearbooks, online catalogs, digital photo albums and more. Sign up and create your flipbook.
IES Studio BIM Portfolio by Mohamed Hassan - Issuu