Mohamed Alkhenaizi_Architetural Portfolio - 2025

Page 1


ARCHITECTURAL PORTFOLIO

ABOUT ME

An Architect with a proven track record of delivering and contributing to successful projects in the architecture and design industry Exceptional communication, leadership and problem solving skills Ready to take on any challenge and add value to your organization.

SOFTWARE SKILLS :

• Revit

• AutoCAD

• SketchUp

• Rhinoceros 3D

• Enscape

• Lumion

• Adobe Photoshop

• Adobe Illustrator

• Adobe InDesign

• Microsoft Office

EDUCATION

University Of Bahrain, Bahrain

Bachelor of Architecture

September 2017 - Present

Graduate of Architecture program with 3.58 GPA

EXPERIENCE AND ACTIVITIES

Gulf House Engineering, Bahrain

Junior Architect

December 2022 – Current

• Developing concepts and designing projects throughout multiple phases.

• Organizing , planning and managing all aspects of a project within different departments.

• Reviewing designs, plans, specifications, schedules and project briefs to meet industry standards.

• Preparing presentations and supporting diagrams to showcase project details to clients and stakeholders.

• Documenting project details and keeping record in a secure manner.

• Addressing project-related issues in a timely manner.

Internship

October 2022 – November 2022

• Architectural Internship focusing on design, concept development, research and drafting.

Civil Architecture, Bahrain

Internship

June 2022 – September 2022

• Architectural Internship focusing on design, concept development, research and drafting.

COMPETITIONS

• Best Graduation Project Exhibition, University of Bahrain 2022

Nominated for best graduation project.

• Eskan Bank Awards 2021

Nominated for best project in prefabricated housing of the future building design

CIVIL ARCHITECTURE

ISLAMIC ARTS BIENNALE | Jeddah, Saudi Arabia - 2023

The round opening (oculus) in each unit of the terminal’s canopy, which limits the amount of direct sunlight passing into the space below, acts as an inverted sundial. The installation in turn tracks the movement of a beam of sunlight rather than a cast shadow. This sunbeam passes over lines on the ground corresponding to the hours, months, and seasons, as well as sculptural objects that indicate significant moments in Islamic lunar calendar and refer to the Biennale’s public program.

Mattar House:

GULF HOUSE ENGINEERING

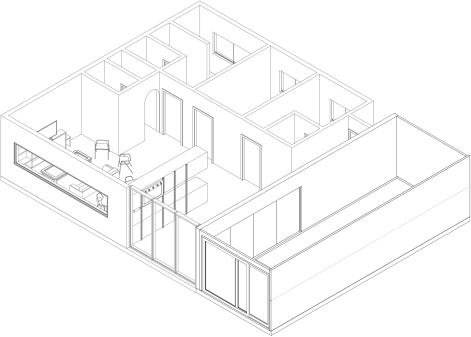
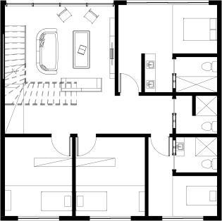
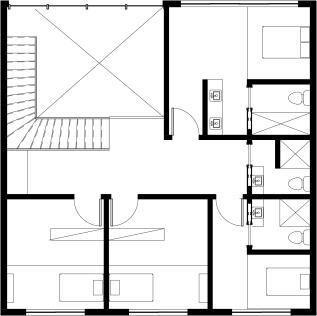
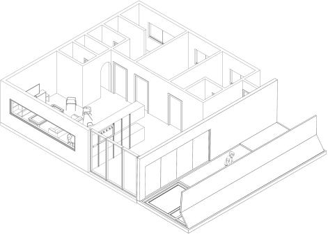
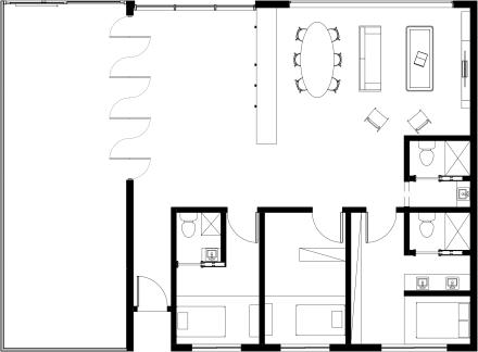
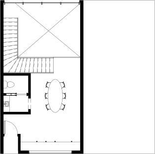
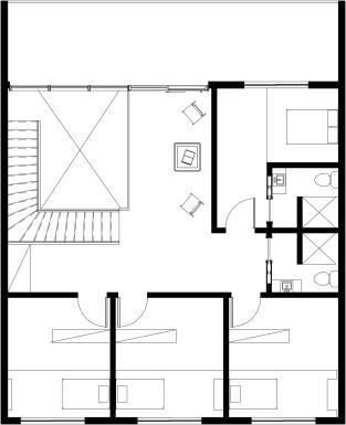
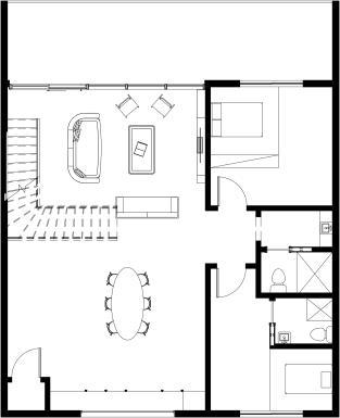
VIP Villa, Bahrain – 2023-ongoing

A VIP Villa located in Rawdha with a modern design. In this project I have worked on floorplans, produced the 3D Model massing, landscape design and renders, completing the final design based on research of modern design elements

GULF HOUSE ENGINEERING

Luxury Beachfront Resort, Bahrain – 2023-ongoing

A luxury beachfront resort with a modern design. In this project I have worked on floorplans, produced the 3D Model massing, landscape design and renders, completing the final design based on research of modern design elements

GULF HOUSE ENGINEERING

A VIP Villa located in Abu Dhabi with a Neo-Classical design In this project I have worked on floorplans, produced the 3D Model massing, landscape design and renders, completing the final design based on research of classical and neo-classical design elements

VIP Villa, Abu Dhabi – 2024

GRADUATION PROJECT– THE NORTHERN WATER PURIFICATION CENTRE

An architectural intervention that responds to the current environmental crisis of sweet-water resources scarcity in Bahrain, and its relation to agricultural farming The project specifically targets the mismanagement of water in agricultural; where the beautification projects conducted around the Kingdom largely contribute to the mismanagement of natural sweet-water resources The Project aims to create a prototype of a sustainable, energy-sufficient water purification plant demonstrating natural methods of desalination

Systems embedded between all three phases as the water travels through them with gravity.

Phase 1: High Salt Level
Phase 2: Medium Salt Level
Phase 3: Low Salt Level
Main Entrance
RO Desalination Building Drinking water fountain
- As the Salt Water drips from the aqueduct, it creates
ombre effect with salt crystals on the Admin
- Aqueducts
demarcate space
Salt Spa

Alongside the filtration pools and accompanying facilities, the project follows a “Localized Infrastructure” approach; to include public interaction with the process of water purification Educational and leisure programs were inserted in the project in order to encourage public interaction

Moment: Library Cafe
Moment: Salt Workshop

DESIGN 5 – TOWARDS HUMANIZING PREFABRICATED HOUSING

SPECULATIVE AUTONOMY

2020 has put a lot of things into perspective The way we perceive space, culture, community and even the future of architecture has changed

During the pandemic, most people are either working or studying from home Moreover, due to the amount of free time we have social distancing and in lockdowns, there has been and increase in home businesses; whether it is to follow a passion project or just to get through these tough times We are all trying to find the balance between the living spaces and the working spaces in our homes

My concept was to address these topics by redefining the relationship between the home and the workplace while studying traditional typologies in Bahrain (the family extension typology and the homebusiness typology) to explore the notion of temporality and flexible space.

COLLAPSEABLE INSERTED UNIT 3D DIAGRAM

EXTERIOR PERSPECTIVE

EXTERIOR PERSPECTIVE

DESIGN 6 – AQUATIC CENTER

REVIVAL OF MANGROVE TREES

There are two issues addressed with this project

The first one, being specific to the site in Hamad Town, where there is a lack of public parks and greenery. There is a yearn from the residents for outdoor activities it was an opportunity for the project not only to introduce aquatic sports to the area, but also provide a green park suitable for public activity which Hamad Town desperately needs.

The second issue relates to Bahrain as a whole. An important piece of Bahrain’s aquatic heritage is the Mangrove Tree, which is often overlooked. Bahrain used to be full of mangrove trees but due to land reclamation and pollution it decreased significantly This project to shines a spotlight on an important part of Bahrain’s aquatic heritage, while also making it more accessible for the public and revive the legacy of Mangrove trees in Bahrain

EXTERIOR PERSPECTIVE

INTERIOR PERSPECTIVE

DESIGN 2 – YOUTH CENTRE

BURIAL MOUNDS AND URBANISM

The site is located in Hamad Town, famous for its vast stretches of historic burial mounds The burial mounds face the future of being erased in favour of expanding the urban dwellings; this project explores the mixing of these two factors, while also shedding light on the importance of burial mounds to Bahrain’s heritage and exposing the process of archaeological studies to the youth and the public.

The main building follows the concept of “freeing architecture” where the components are separate but linked between the large box surrounding them, sitting on top of the burial mounds.

BURIAL MOUNDS AND URBANISM

DESIGN 4 – DILMUN MUSEUM

HOLY GROUND

Designed as a companion building to design two’s Youth Centre, the Dilmun museum explores the importance of the link between Bahrain’s heritage and archaeology.

The site is situated adjacent to an ancient temple that dates back to the Dilmun era. With that considered, the concept of “holy ground” comes from the idea that the ground beneath our feet holds so much priceless history, that it should be untouchable by the public, but can be experienced through looking in a birds eye view which is why the visitors areas are held up from the grounds on structural columns As well as to reduce the disturbance of the ground below that might contain artefacts by minimizing the foundation area

WEST ELEVATION
EAST ELEVATION
SHORT SECTION
3D MODEL

INTERIOR PERSPECTIVE

INTERIOR PERSPECTIVE

INTERIOR PERSPECTIVE

EXTERIOR PERSPECTIVE

EXTERIOR PERSPECTIVE

DESIGN 7 – GLOBAL CULTURE MUSEUM

Inspired by the rich multicultural background of Bahrain, the approach was to showcase global cultures through the lens of the historical significance of Bahrain as a trading route Curating a linear journey for the user to experience the impact of the different cultures of the world on Bahrain as a society and culture

The building form is inspired by the traditional typology of “Caravanserai” which is a courtyard building for travellers and merchants used in the Middle East; where goods and information is traded in the courtyard. Coupled with the use of traditional Bahraini design elements to preserve the identity of the area while hosting the global cultures.

As a response to the lack of urban movement in the Seef area where the site resides; the first floor of the building is elevated in order to make the courtyard accessible for the public. Creating a public park in order to activate the site and encourage interaction and constant dialog between the multicultural society of Bahrain.

EXTERIOR PERSPECTIVE

INTERIOR PERSPECTIVE

INTERIOR PERSPECTIVE

DESIGN 1 – COURTYARD HOUSE

PRIVACY IN LEVELS

Inspired by the hierarchy of privacy and space present in the traditional Bahraini house; the higher you go the more private the space

Designed for a family of an artist and a journalist, multiple yards were created. The private courtyard acts as the core of the house where it is surrounded by the family home space, and the sunken front yard is semi-private which creates a barrier between the alleyway and the entrance of the home while still giving the structure space to breathe in the busy area of old Muharraq, and finally the public backyard next to the Majlis (which is the lowest point of the house) that is separated from the living quarters to accommodate art exhibitions or events for the artist and the journalist

3D MODEL

Turn static files into dynamic content formats.

Create a flipbook
Issuu converts static files into: digital portfolios, online yearbooks, online catalogs, digital photo albums and more. Sign up and create your flipbook.
Mohamed Alkhenaizi_Architetural Portfolio - 2025 by mohamedalkhenaizi - Issuu