Architectural Projects Portfolio

Page 1

MOHAMED MOSTAFA IBRAHEM

B.Sc. Arch. / Technical Office Team Leader

INTRODUCTION

I am architect with 9 years of experience in the architecture field. I sthaveeppe d between several architectural firms, learning, growing and extending my experience between various project types. I have successfully worked in many projects within a number of countries in the Middle East Region. I have worked in all stages of design, from concept to tender and have had the opportunity to successfully deliver the projects through to construction, working closely with international consultants and contractors. Furthermore, I am a Revit instructor convened many courses in Egypt with training centers authorized by Autodesk. My ambition does not have any limitation. I believe in science and technology, .using them as a tool to achieve my dreams

MY WORK EXPERIENCE ElFayed Consultant Office April 2014 – January 2016 Architectural Designer Amec Dubai Consultant Office April 2016 – October 2016 Junior Architect ArchVision Consultant Jan 2017 – July 2017 BIM Architect Arab Academy for Science & Technology / Enter Training March 2017 – September 2017 Revit Instructor Whitespace Architect September 2017 – Present Project Architect El kifah Contracting Jan 2021 – Aug 2022 Redcon Contracting Jan 2020 – September 2020 Revit Instructor Senior Architect Technical Office Team Leader Responsibilities: Leading all technical office team by deligating tasks, coordinating and reviewing, supporting in shop drawings when needed reviewing all shop drawings Preparing submissions time schedules Assisting technical office Manager in managerial/technical tasks Coordinating between all disciplines and reviewing clashes Coordinating between Subcontractors on project and the Owner's Consultant Dar-al alamia Contracting Aug 2022 – Present Senior BIM Architect

SELECTED PROJECTS

International
Saint Catherine - EGY - 2022
Saint Catherine
Airport
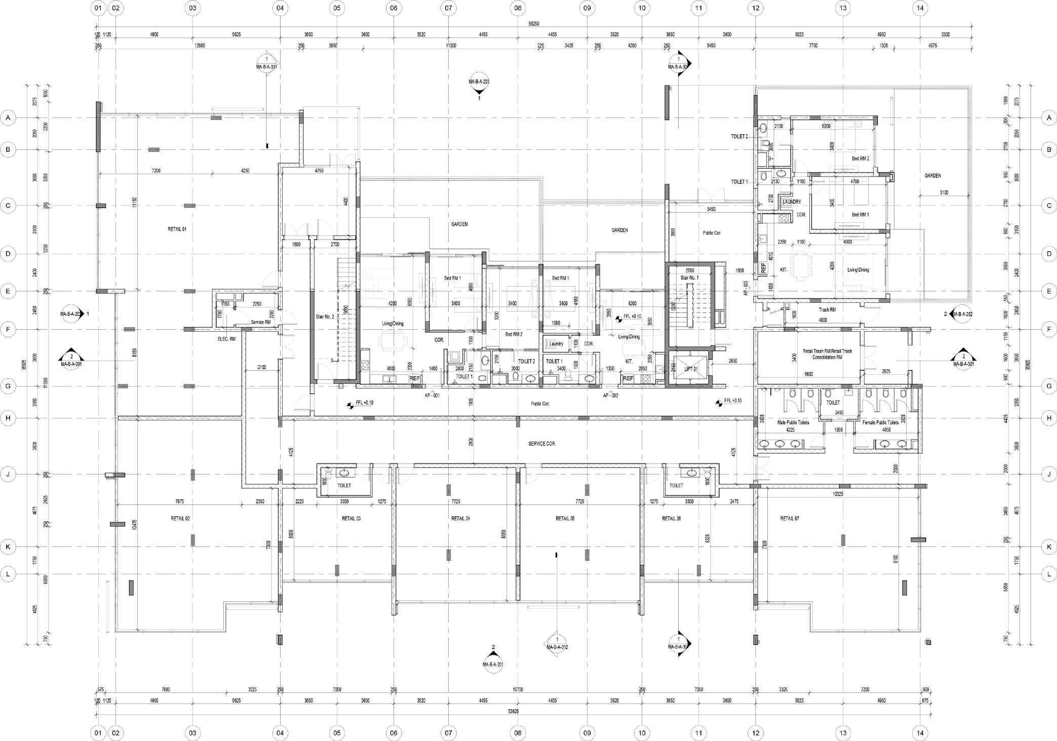
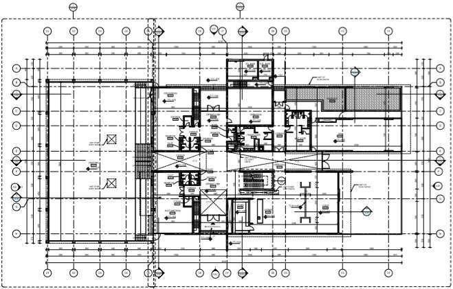
PORT RASHID
- UAE - 2019 - 11856 m²
DUBAI
PORT RASHID DUBAI - UAE - 2019 - 11856 m²
PORT RASHID DUBAI - UAE - 2019 - 11856 m²
ALALAMEIN, EGYPT (2019 – 2020) total BUA 32605 SQM THE GATE HOTEL, ALALAMEIN
K FUPM BUSINESS PARK, DAHRAN
SAUDI ARABIAtotal BUA 135292 SQM
- UAE - 2019 - 651 m² EAAMAR DUBAI
– VILLA TYPE B4
DUBAI
HILLS
DUBAI - UAE - 2019 - 651 m² EAAMAR DUBAI HILLS – VILLA TYPE B4
DUBAI - UAE - 2019 - 547 m² EAAMAR DUBAI HILLS – VILLA TYPE B3
DUBAI HILLS – VILLA TYPE B3 DUBAI - UAE - 2019 - 547 m²
EAAMAR
- UAE - 2019 - 414 m²
DUBAI
– VILLA TYPE B2
DUBAI
EAAMAR
HILLS
DUBAI - UAE - 2019 - 414 m² EAAMAR DUBAI HILLS – VILLA TYPE B2
- UAE - 2019 - 534 m²
DUBAI HILLS – VILLA TYPE B1
DUBAI
EAAMAR
DUBAI - UAE - 2019 - 534 m² EAAMAR DUBAI HILLS – VILLA TYPE B1

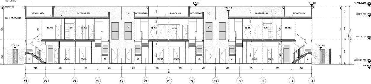
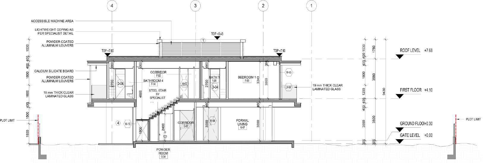
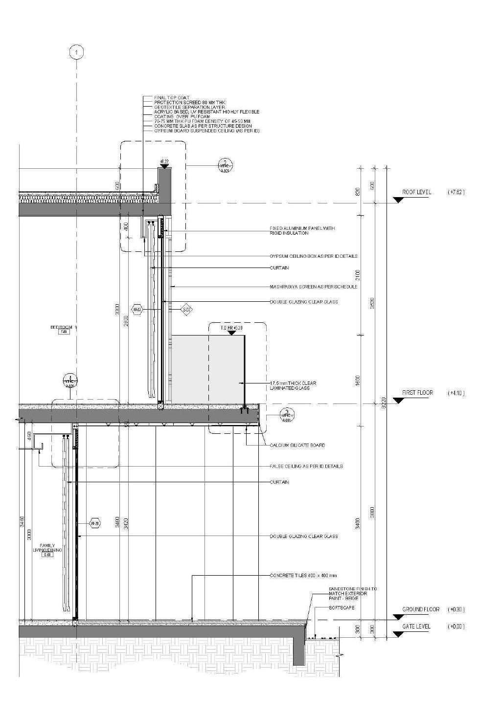
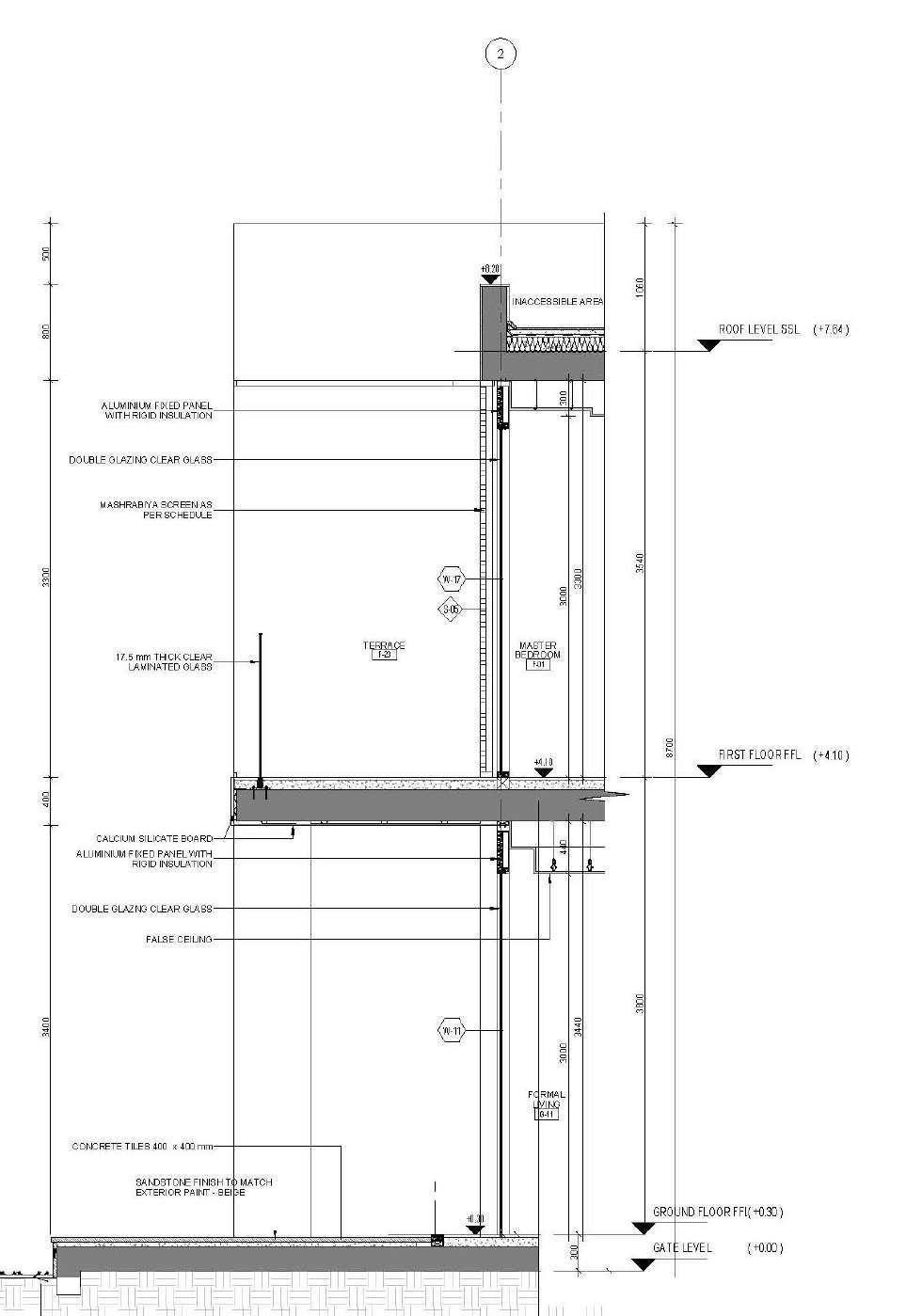
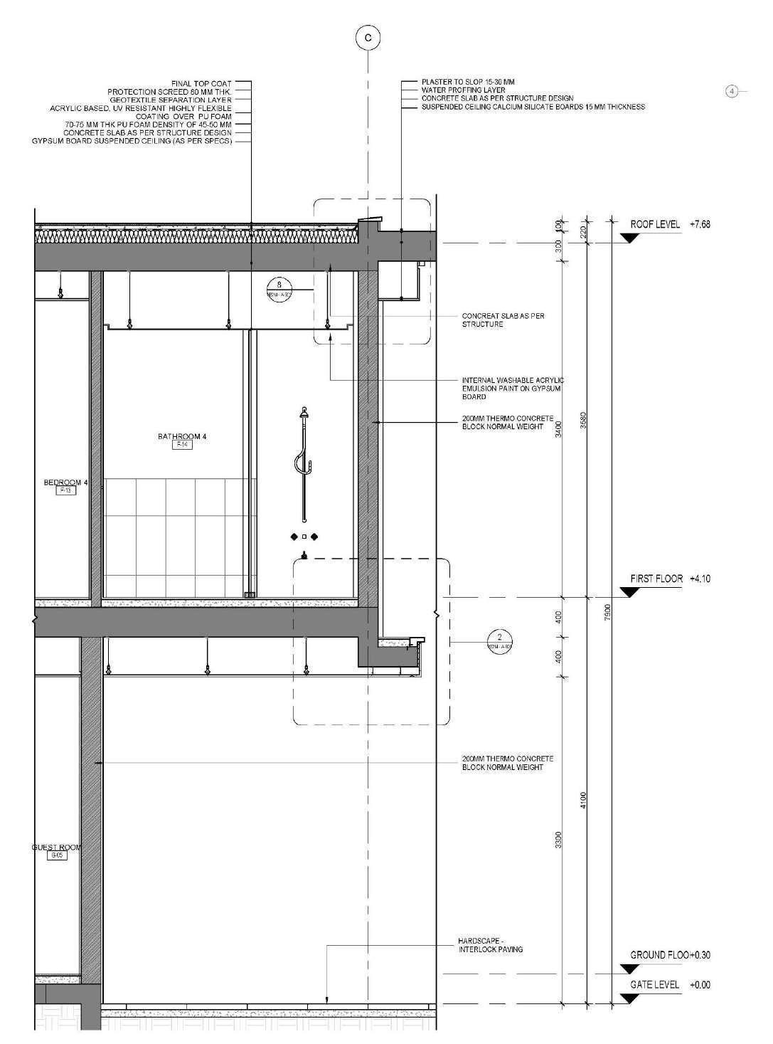
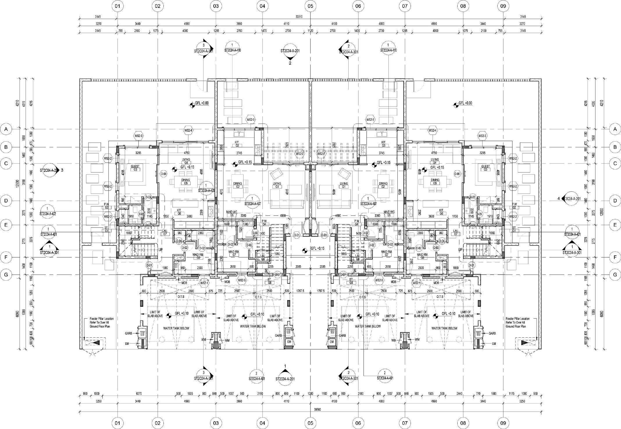
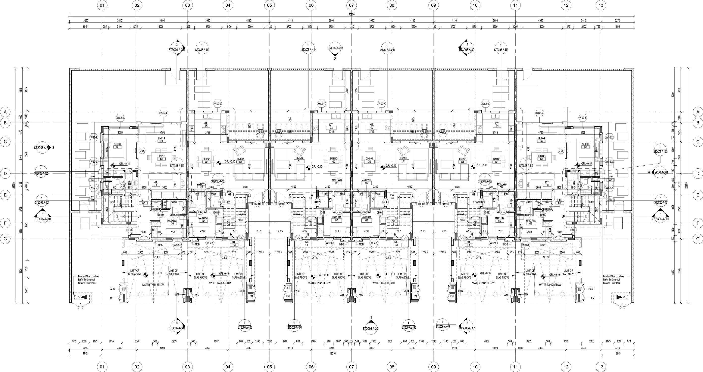
NSHAMA – DUBAI RANCHES

DUBAI - UAE - 2018 – Master Plan 2 type of Town Houses

– DUBAI RANCHES – 4TH PLEX STYLE DUBAI - UAE - 2018 - 679 m²
NSHAMA
– DUBAI
– 6TH PLEX STYLE DUBAI - UAE - 2018 - 679 m²
NSHAMA
RANCHES
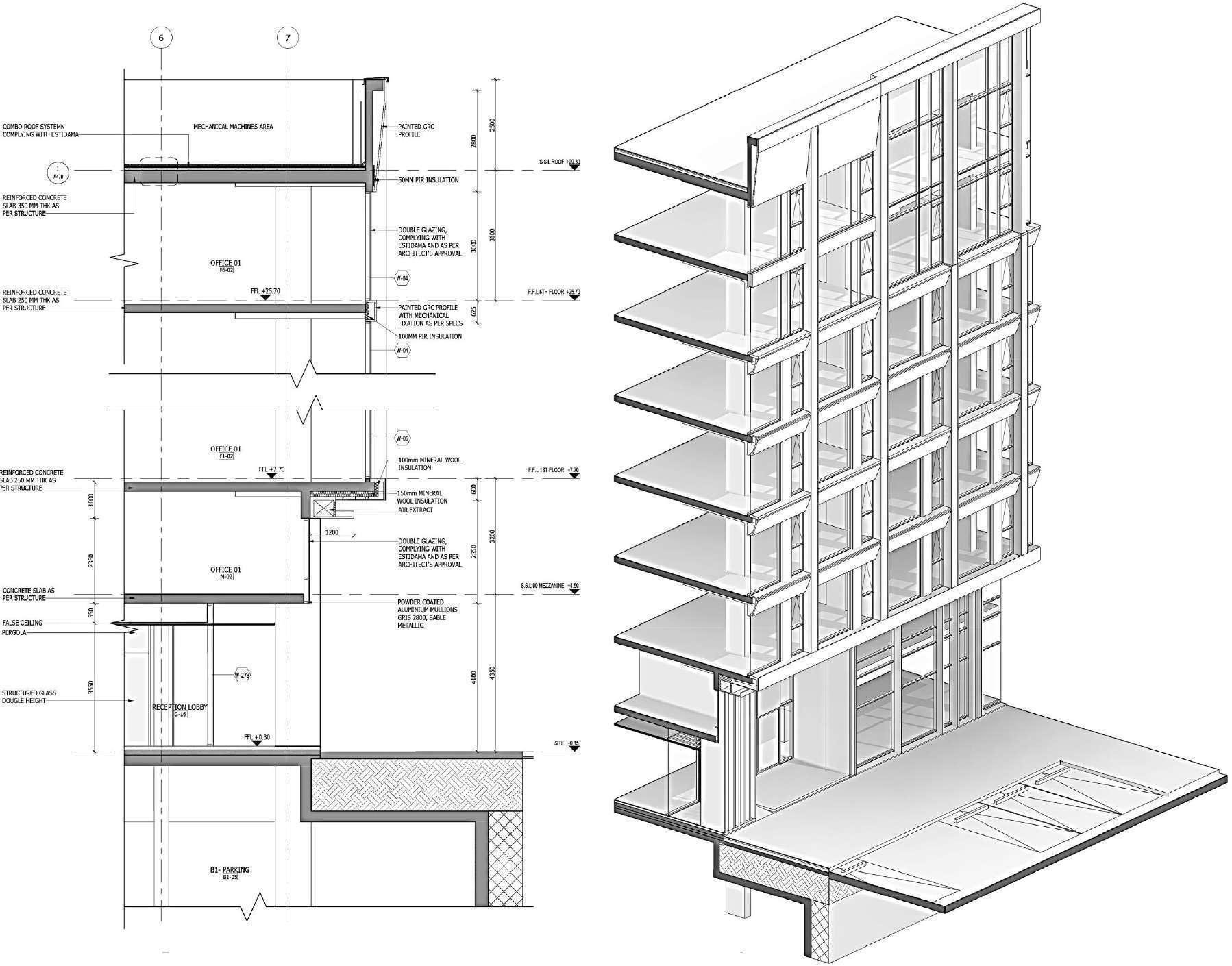
OFFICE BUILDING ABU DHABI - UAE - 2018 - 11827.17 m²
ALMUNTAZAH
ALMUNTAZAH OFFICE BUILDING ABU DHABI - UAE - 2018 - 11827.17 m²
– 4
ALGHAF - DUBAI - UAE - 2018 - 734 m²
GHAF VILLAS
BEDROOMS TILAL
– 5
-
- UAE - 2018 - 895.14 m²
GHAF VILLAS
BEDROOMS TILAL ALGHAF
DUBAI
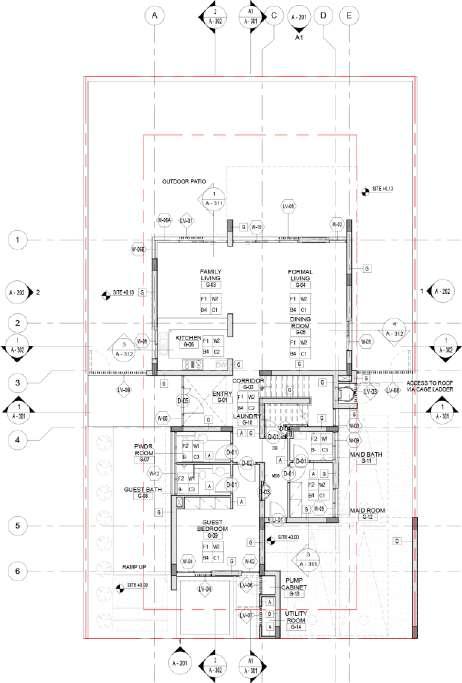
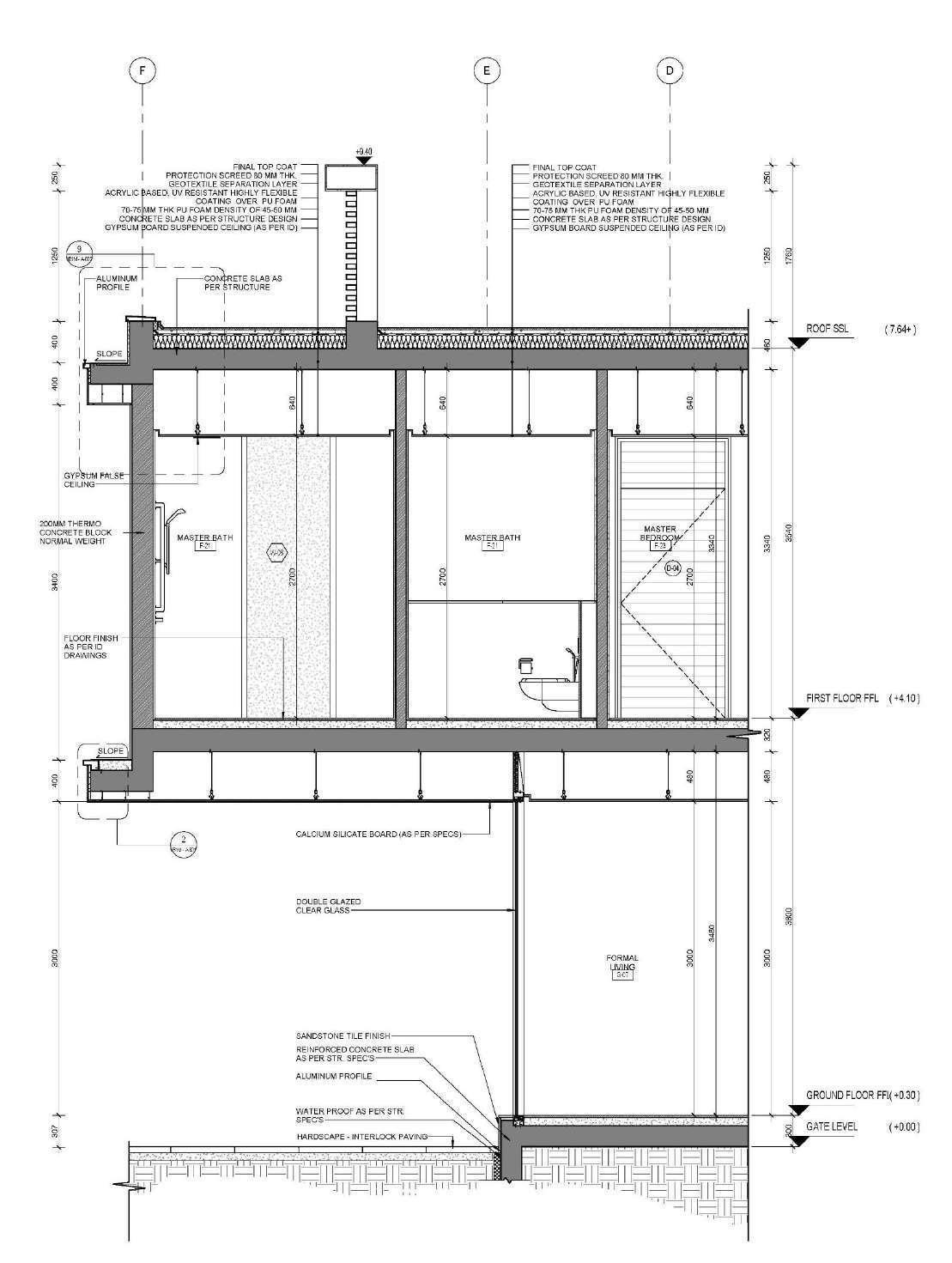
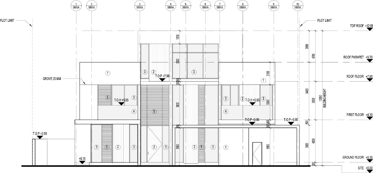
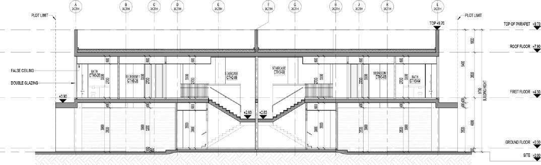
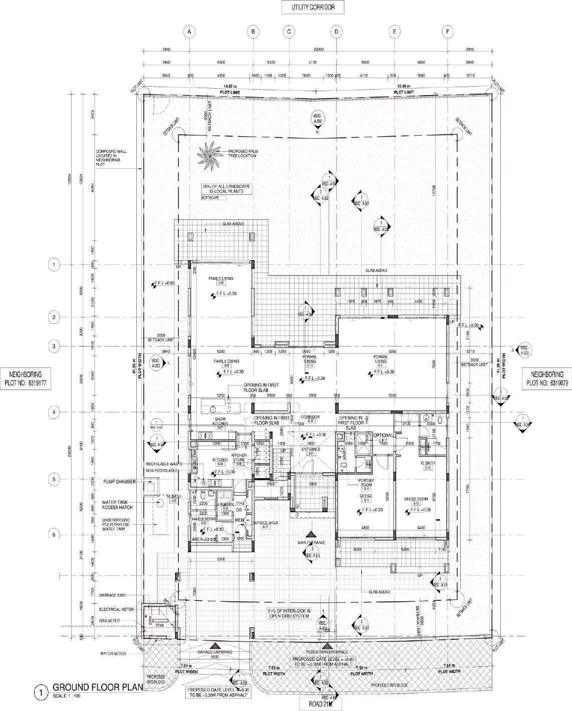
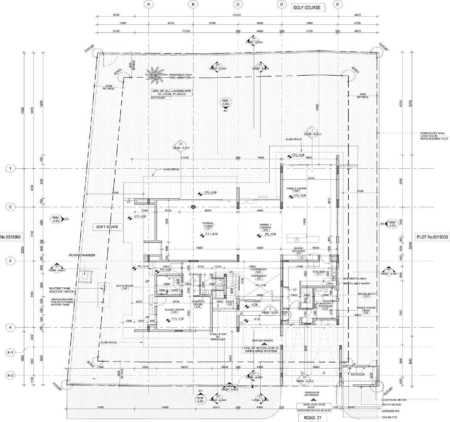
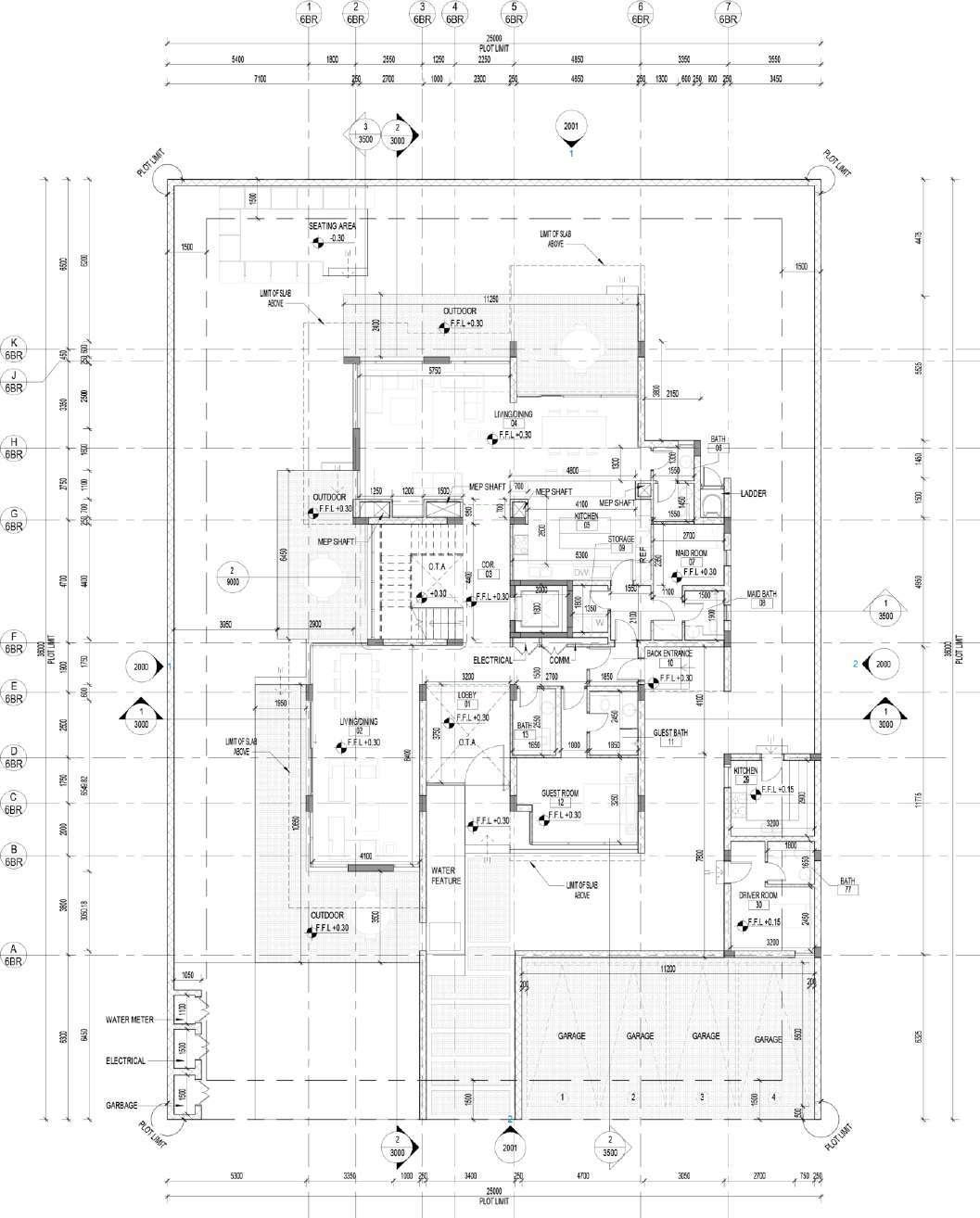
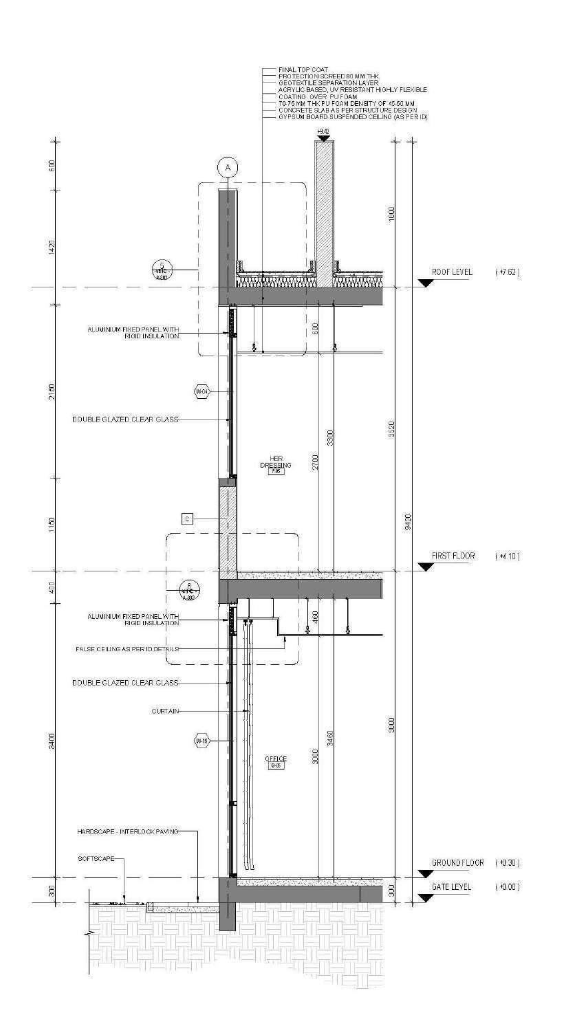
SALAMA MOHAMED ALI VILLA NADD ALSHIBA FOURTH - DUBAI - UAE - 2018 - 2976 m²

JOSEPH ALSHARIF VILLA

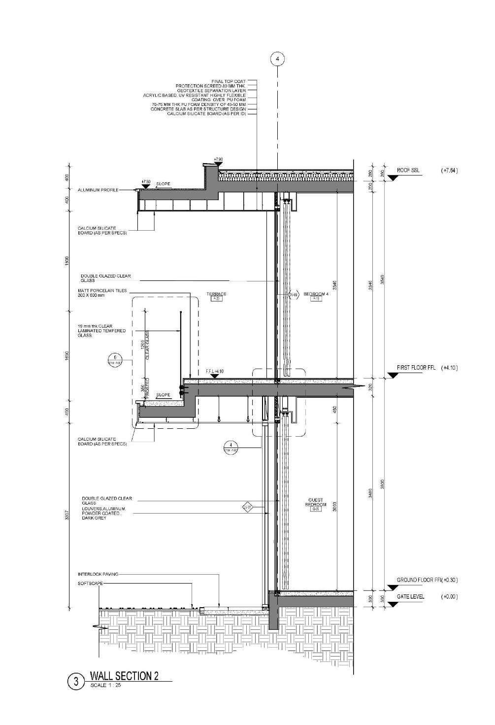
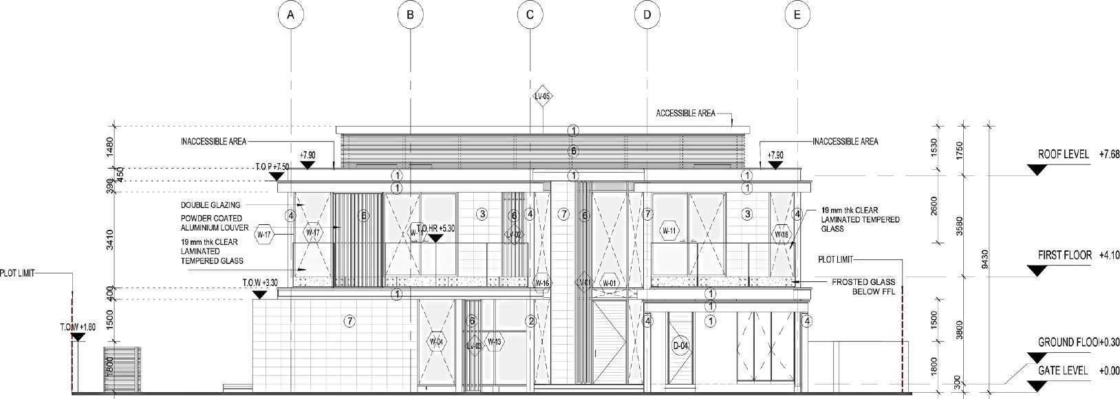
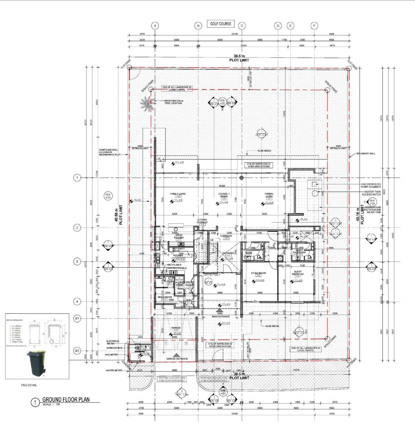
DUBAI HILLS - UAE - 2018 - 1934 m²
-
- 2018
JOSEPH ALSHARIF VILLA DUBAI HILLS
UAE
- 1934 m²
CLUB HOUSE ALALAMEIN - EGYPT - 2018
CLUB HOUSE ALALAMEIN - EGYPT - 2018

SMALL SQUARE MASDAR - UAE - 2017

SALES CENTER
- UAE - 2017 - 1668.43 m²
MASDAR
4 BEDROOM
VILLA MASDAR - UAE - 2017 - 270 m²
5
BEDROOM TYBE A VILLA MASDAR - UAE - 2017 - 450 m²
6 BEDROOM VILLA MASDAR - UAE - 2017 - 463 m²
COURTYARD TOWNHOUSE MASDAR - UAE - 2017 - 211 m²
-
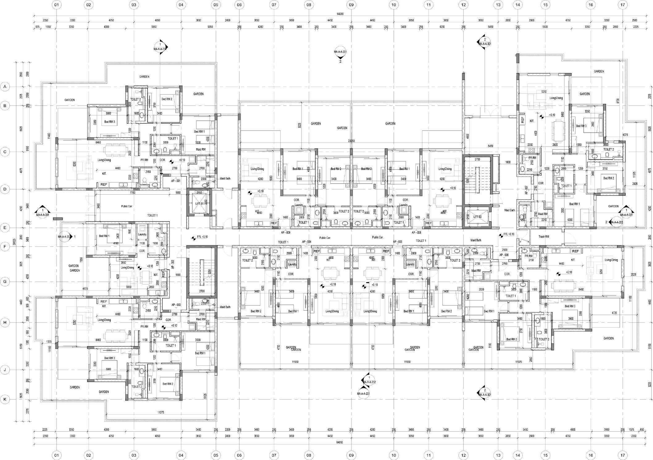
RESIDENTIAL APARTMENTS MASDAR - UAE
2017
-
RESIDENTIAL APARTMENTS TYPE A MARASSI - EGYPT
2018
A MARASSI - EGYPT - 2018
RESIDENTIAL APARTMENTS TYPE

RESIDENTIAL APARTMENTS TYPE B

EGYPT - 2018
MARASSI -
B MARASSI - EGYPT - 2018
RESIDENTIAL APARTMENTS TYPE
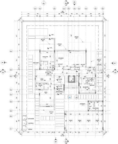
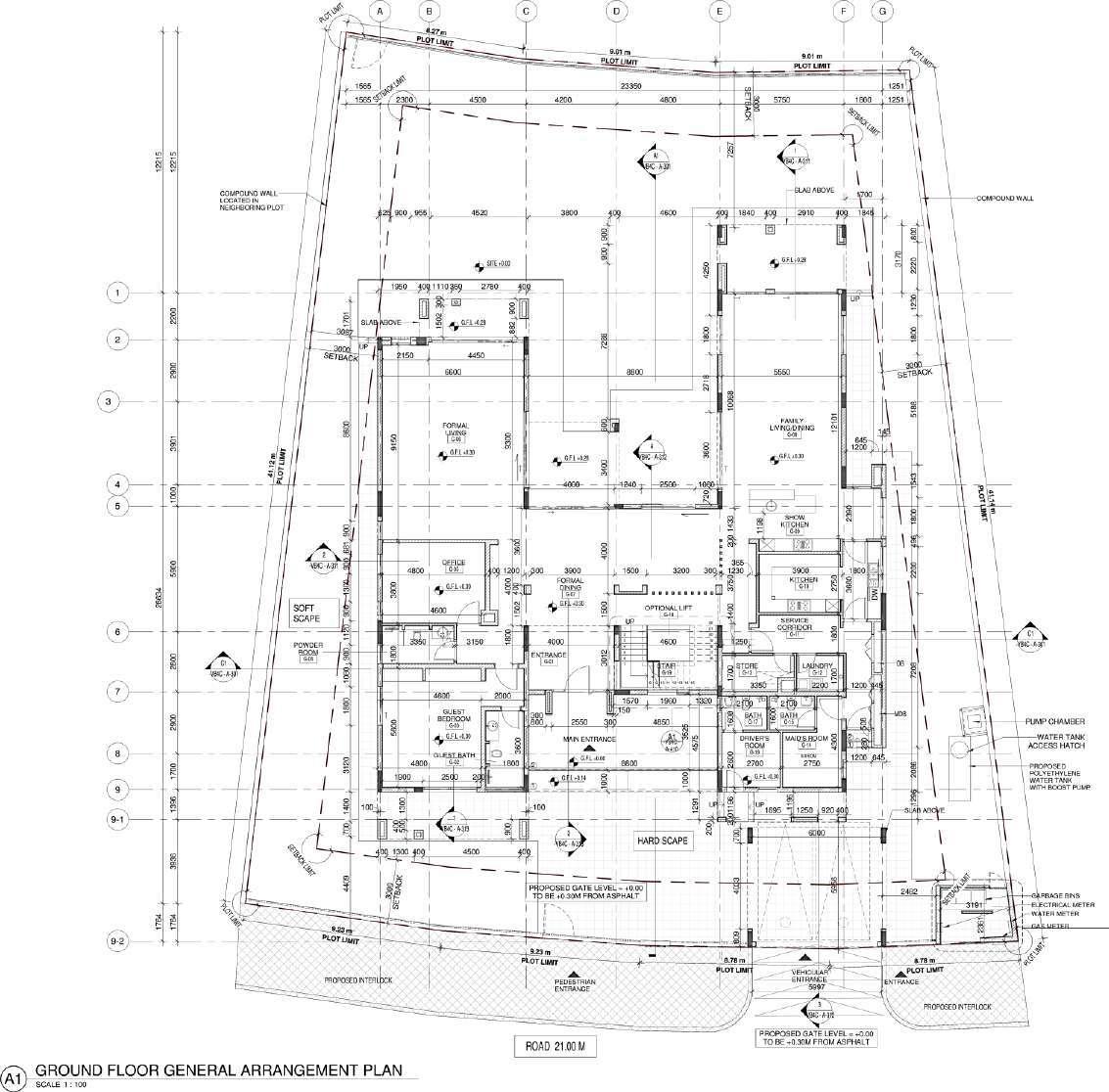
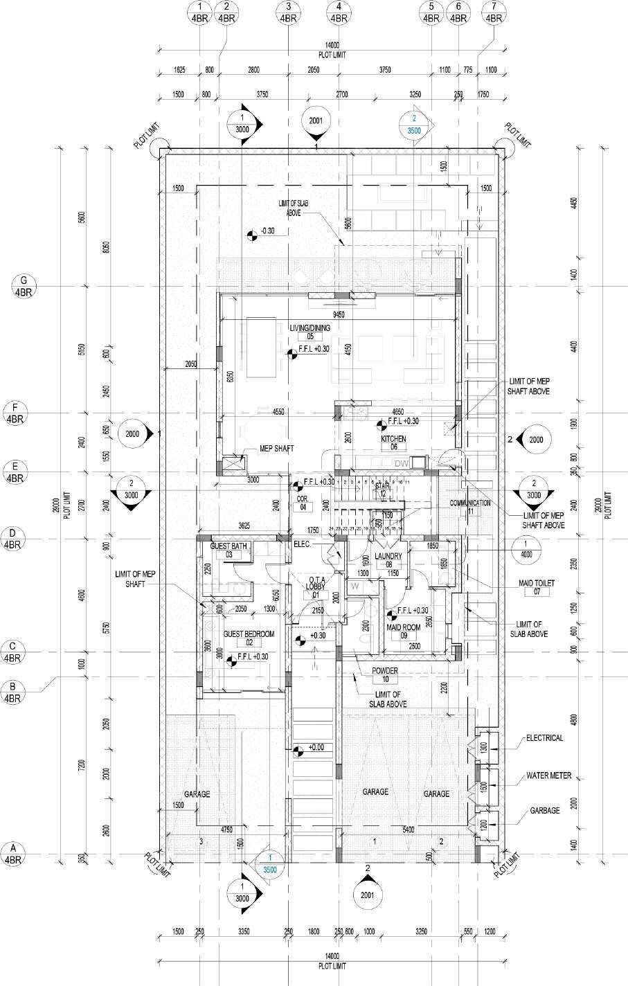
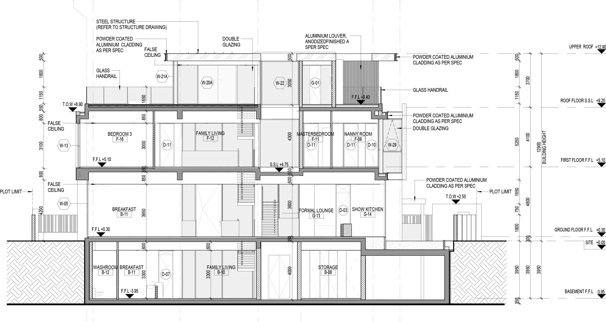
KUNHU VILLA
ZAKIR
- UAE - 2017
2747
DUBAI HILLS
-

Turn static files into dynamic content formats.

Create a flipbook
Issuu converts static files into: digital portfolios, online yearbooks, online catalogs, digital photo albums and more. Sign up and create your flipbook.