Moez LAZHARI


![]()











Ce mémoire d'architecture traite le thème "Construire la ville avec ses habitants" et s'inscrit dans la démarche de l'atelier de la cinquième année. Il s'agit d'un projet pédagogique intitulé DEMOPOLIS(DEMO: en référence à la démocratie et POLIS à la cité) qui aborde la ville de La Goulette en Tunisie.
Dans l'esprit de mettre en lumière le patrimoine immatériel de ce lieu, nous proposons un essai de revalorisation de l'héritage culturel à travers les atouts artistiques qui ont marqué l'histoire de la ville.
CONTEXTE: Projet de fin d'études

ANNEE: 2021

ENCADRE PAR: Mme
Imene Zaafrane
TITRE DU MEMOIRE:
La Goulette, Art et Mémoire:
Vers la reconquête d'un héritage culturel


Considérée comme l’antichambre de Tunis, La Goulette témoigne d’une puissance militaire due à son emplacement stratégique, ouverte sur la mer méditerranéenne, elle a été la cible de plusieurs conquêtes (turcs,espagnoles,husseinites, français)


Dégradation Paysagère Dégradation de L'héritage culturel

DECADENCE
MATERIELLE
Cette diversité sociale composée de français, siciliens, maltais, arabes et tunisiens a engendré une richesse culturelle et une cohabitation de communautés de différentes religions : juifs, chrétiens et musulmans.
Entouré de paysages marins, entouré par le lac, le golfe de Tunis et le canal kheireddine, La ville de La Goulette montre une richesse paysagère considérable qui fait allusion à une presqu’ile.
DECADENCE
IMMATERIELLE
Arts et Cultures Valeurs et Symboles IDENTITE DU LIEU
Comment faire revivre l'identité et la mémoire du lieu( l'esprit communautaire et l'ambiance de La Goulette d'Antan)?
Comment le patrimoine artistique peut-il restituer l'attractivité de la ville et renforcer
son aspect touristique?
Comment ressuciter le patrimoine d'une ville à travers une intervention architecturale?
Qu’il soit lyrique, cinématographique, ou culinaire, l’art a toujours été au centre de la ville de La Goulette, un facteur essentiel dans la création de son essence. Un héritage artistique et culturel qui fait partie intégrante du patrimoine immatériel d’un lieu qui à susciter l’admiration de plusieurs générations.


CLaudia Cardinale
"L'enfant du pays "

Icône du cinema et de la mode, née en 8, elle a passé son enfance à La oulette ou residait sa famille avant
ntamer sa carriére. Depuis des décenies, rdianle est la fiérté de La Goulette, une e auqelle elle garde toujours un achement particulier

Henri Tibi (1930-2013)

Festival du poisson, La Goulette



Espace d'exposition: 100m²
Boutique: 80m²
Espace polyvalent: 200m²
Hall d'exposition: 150m²
L'IDEE DU PROJET:
Personnage emblématique de La Goulette, Henri
Tibi est un auteur-compositeur et interprète franco-tunisien issu d’une famille juive. Il se fait connaitre a travers ses chansons sur La Goulette et ses clichés de la ville pris dans les années 80



Ateliers de cuisine: 100m²
Cafétéria: 80m²
Restaurant: 150m²
Potager: 100m²

CINEMA/PHOTO
Espace de projection: 100m²
Espace coworking: 80m²
Projection extérieure: 100m²
La Maison Des Arts est née de l'idée de la boite a souvenir, un espace tridimensionnel capable à faire plonger le visiteur dans l’essentiel. Dans la volonté d’emmener le visiteur à être d’éperdu de tout sens temporel et spatiale, La boite devient un lieu d’hypnose, d’immersion, un outil capable de captiver l’attention et d’embarquer le visiteur dans un voyage richement symbolique, un retour au passé. Ainsi, Entouré seulement des souvenirs symboliques de La Goulette, et loin de toute distraction, le visiteur devient voyageur et s’immerge.

Esprit Dior Exhibition, MOCA
SHANGAI.2013

Iris Van Herpen, Palais des Arts
Décoratifs,Paris 2023-2024

Azzedine Alia “The couturier”, Design Museum, Londres

Alaïa/Balenciaga exhibition.Fondation
Azzedine Alaïa 2021

Alaïa/Balenciaga exhibition.Fondation
Azzedine Alaïa 2020-2021

Alaïa/Balenciaga exhibition.Fondation
Azzedine Alaïa 2020-2021




Le projet accueille d’éventuels évènements cinématographiques et de mode ainsi que des activités culinaires collectives concernant la ville de La Goulette en premier lieu. En deuxièmelieu,lapossibilitéd’offrirdesopportunitésauxartisteslocauxdelesencourageretdegagnerplusdevisibilité,incitantnosjeunesartistesetcréateursàsedévelopperet renforcercetaspectdynamiqued’interactionsocialeentrejeunesamateurs,professionnelsetvisiteurscurieux.





C’est entre l’immersion et la transition que La maison des arts s ’organise. En effet, L’immersion se concrétise à travers les boites fermées, illuminées par une lumière artificielle, présentées sous différentes ambiances scénographiques.










Quelles soient entièrement noires ou blanches, ces boites sont destinées à abriter les activités de projection et d’expositions. Certaines boites organisent l’espace de manière à ce que le visiteur puisse circuler autour de ces pièces, évoquant le principe de la boite dans la boite. Apres l’immersion, Les espaces de transitions sont bien évidemment nécessaires.

Loin du côté intimiste et mystérieux qui suscite la curiosité du visiteur à pousser la porte et franchir le pas, les espaces de transitions sont considérés comme des boites éclatées, une qualité spatiale qui se distingue de la boité fermée, une ambiance lumineuse différente. La lumière naturelle pénètre l’espace à des degrés variés entre les fentes en moucharabieh, les parois entièrement vitrées et la lumière zénithale.



FACADE NORD-OUEST





CONTEXTE: Stage
ANNEE: 2025
ORGANISME DE STAGE:
Bureau d'étude Fresh Architectures
PROJET:
Conception intérieure d’un hall d’entrée d’un immeuble
SURFACE DU TERRAIN: 520m²
SURFACE COUVERTE: 300m²
Il s 'agit de concevoir le hall d'un immeuble permettant de visualiser l'espace intérieur. Entre formes géométriques, formes brisées et lignes directrices désordonnées, l'espace intérieur sera travaillé telle une galerie d'art permettant d'animer le parcours de l'usager de l'espace extérieur jusqu'à son domicile.




CONCEPT STORE YOEYYOU, 2022. SHENZHEN


THE MARKER HOTEL,2013, DUBLIN













CONTEXTE: Stage
ORGANISME DE STAGE:
Bureau d'étude "ITKAN"
ANNEE: 2023
ENCADRE PAR:
Mr Mouhamed Bouzouita
SURFACE COUVERTE: 118m²

Notre mission était de concevoir un plan d'un étage de villa ainsi que la modélisation de certains espaces afin de mettre en
valeur le projet et aider le client à mieux se projeter tout en respectant ses choix et ses critères.
Opter pour un style contemporain
Le mariage des traitements (murs et sols): marbre et bois
Délimitation des espaces à travers les revêtements muraux, sols et le faux plafond





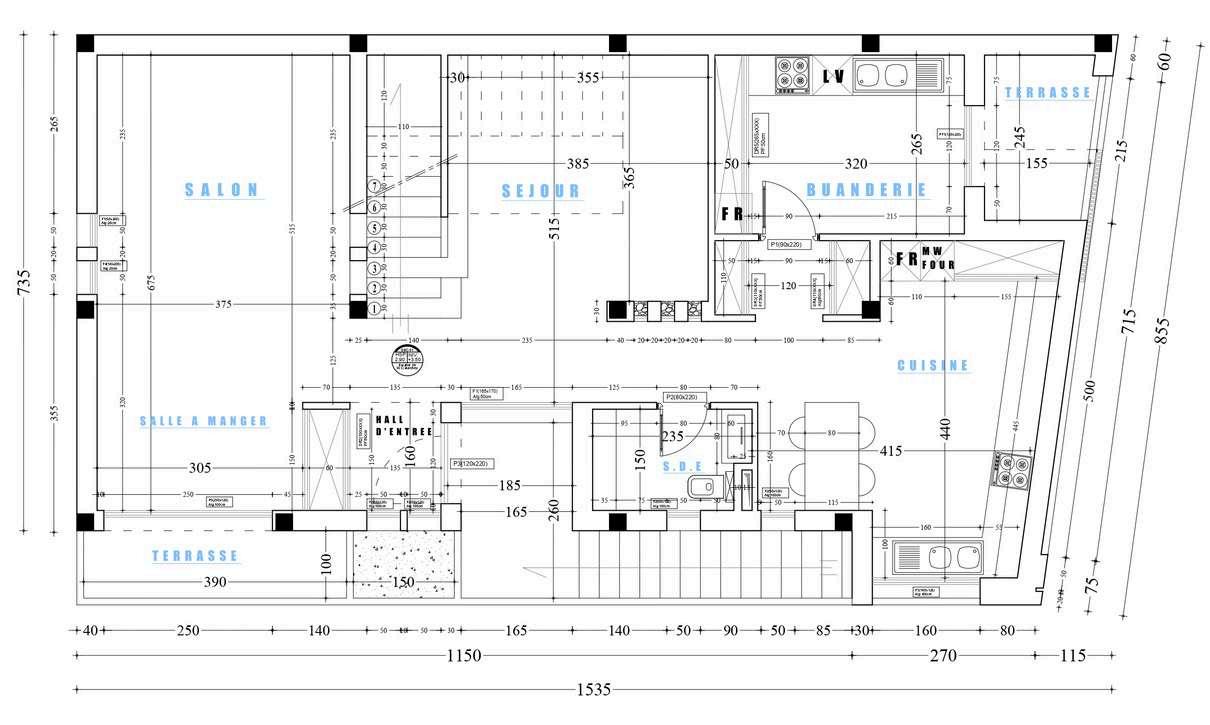
CONTEXTE: Projet Freelance
ANNEE: 2023
PROJET:
Conception et modélisation d'un étage de villa
SURFACE DU TERRAIN: 330m²
SURFACE COUVERTE: 165m²

Notre mission était de concevoir un plan d'un étage de villa ainsi que la modélisation de certains espaces afin de mettre en valeur le projet et aider le client à mieux se projeter tout en respectant ses choix et ses critères.


VUES 3D: SEJOUR
Opter pour un style contemporain
Avoir des espaces spacieux et lumineux
Opter pour des matériaux claires





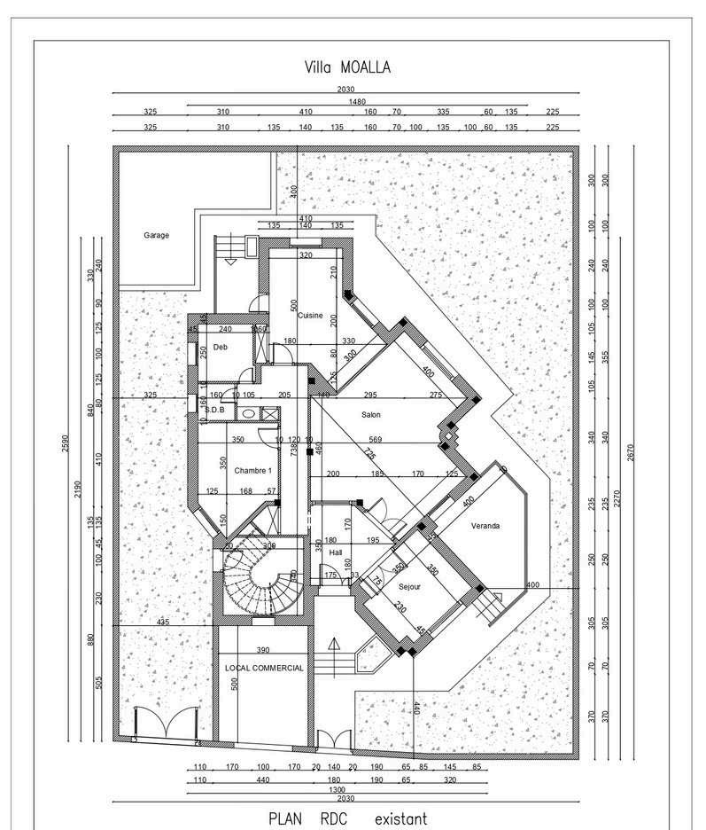
CONTEXTE: Stage d'été
ORGANISME DE STAGE:
Bureau d'étude "ARCH"
ANNEE: 2022
ENCADRE PAR: Mr Mohamed Om Ezzine
SURFACE DU TERRAIN: 1835m²
SURFACE COUVERTE: 344m²


VUE 3D EXTERIEURE: ENTREE DE LA VILLA

A partir d’un plan final déjà exécuté, notre mission était de penser et concevoir des façades homogènes pour une villa à un seul niveau, ainsi que la modélisation des ambiances extérieures afin de mettre en valeur le projet et aider le client à mieux se projeter
A partir d’un plan final déjà exécuté, notre mission était de penser et concevoir des façades homogènes pour une villa à un seul niveau, ainsi que la modélisation des ambiances extérieures afin de mettre en valeur le projet et aider le client à mieux se projeter
L‘homogénéité des façades
Le mouvement Horizontal
Le jeu de volumes
Le mariage des textures beton et bois
L‘association du végétal avec le minéral







Les Pins
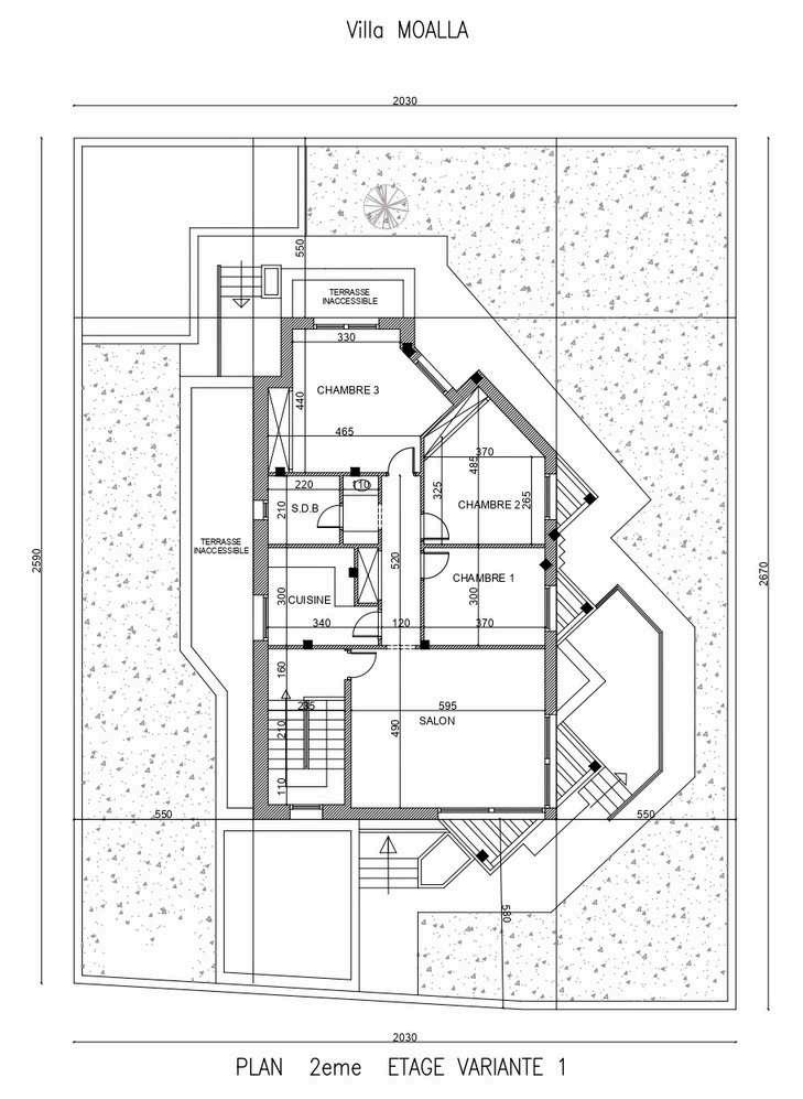
CONTEXTE: Stage
ANNEE: 2023
ORGANISME DE STAGE:
Bureau d'étude "A.U.D.A"
PROJET:
Surélevation d'une villa:
SURFACE DU TERRAIN: 520m²
SURFACE COUVERTE: 300m²
Il s 'agit d'assurer une extension d'une villa. Notre mission consiste a surélever la maison d’un étage et de concevoir des niveaux indépendants consacrés aux logements. deux variantes seront présentées: une variante avec un retrait et une couverture en pergola au dernier niveau et une deuxième variante sans retrait.






























