
Portfolio
Magdalena Manulik architekt krajobrazu
praca zespołowa
zabytkowe parki, ciągi spacerowe, place miejskie













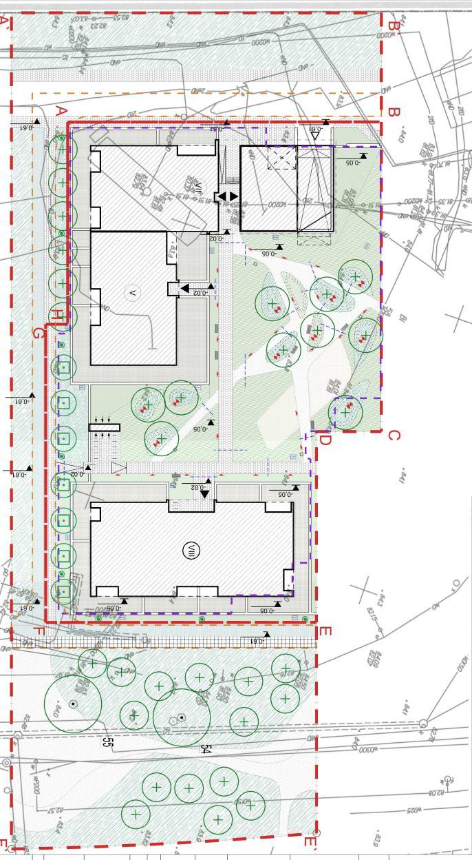
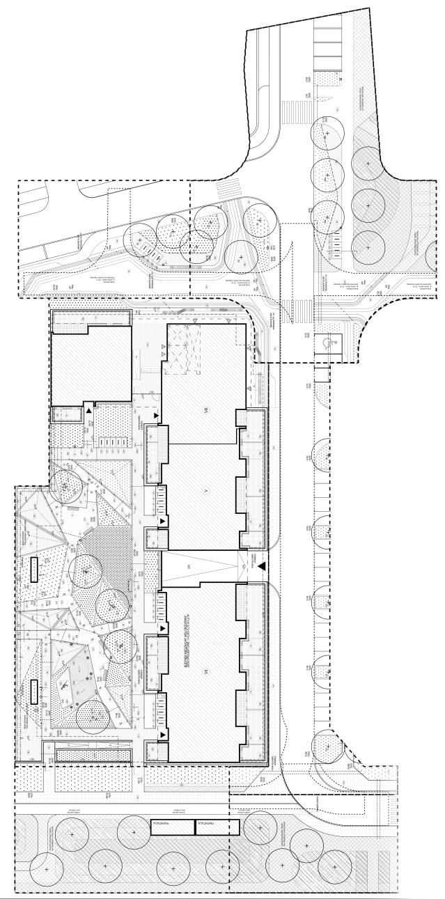
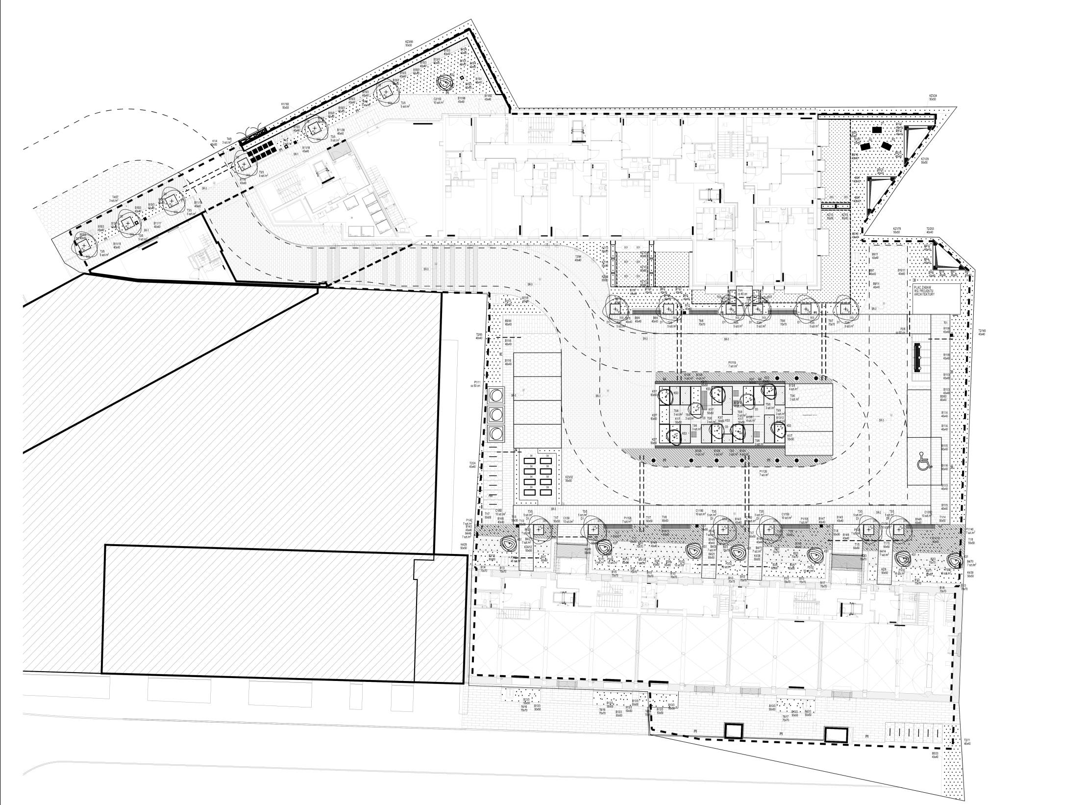
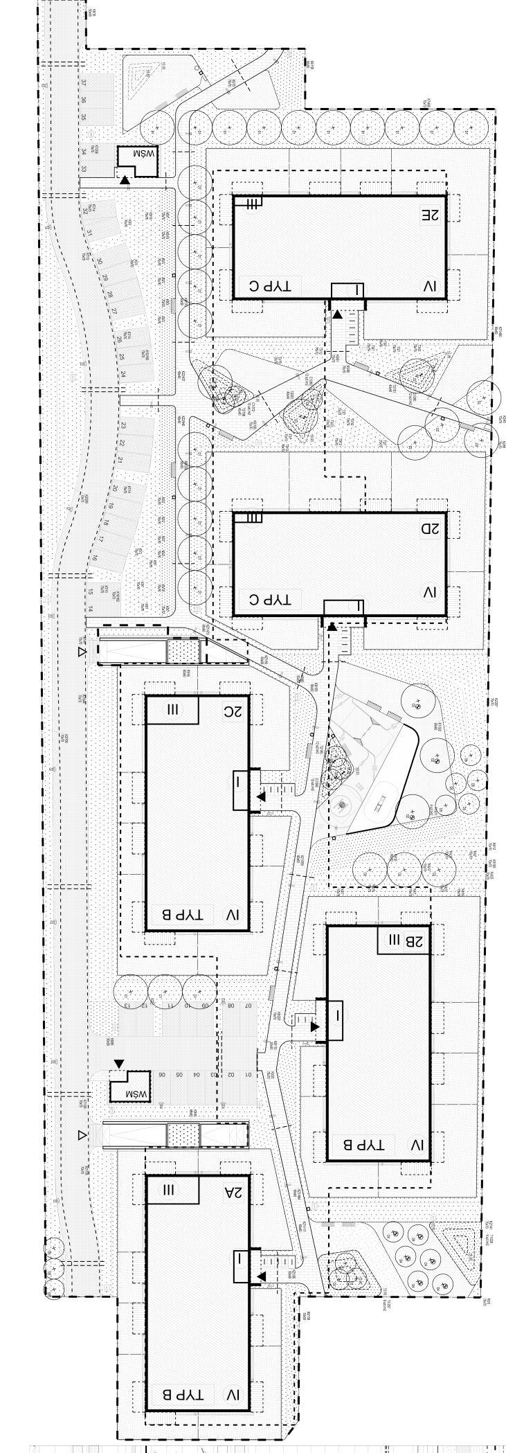
Urban Desing współpraca wieloletnia współpraca z biurami architektonicznymi: HRA, Mąka Sojka, S.A.M.I, Kuryłowicz &Associates, Maćków Pracownia Projektowa, BBGK, MAAS, BDM’A,GCK projekty dla klientów: Dom Development S.A.,Yareal Polska, Home Invest, HB Reavis Polska,ATAL S.A., Eiffage Immobilier,Acciona, Resi4Rent











Kwiatozbiory praca własna wieloletnia współpraca z biurami architektonicznymi: Latergrupa,WWAA projekty dla klientów: Dom Development S.A., Home Invest, Unidevelopment,Cordia Polska,YIT Development, Matexi Polska, Echo Investment,White Stone Development, Soho Development Homes and More,ATAL














