

avani mittal KRVIA portfolio
EDUCATION
Bachelor of Architecture (B.Arch)
SOFTWARE SKILLS
AutoCAD
WORKSHOPS ATTENDED
Writing about Infrastructure, Hussain Indorewala


AVANI MITTAL
I am methodical as well as creative. A curious mind and a hard worker, my mind works on amassing knowledge and working on myself.
Kamla Raheja Vidyanidhi Institute For Architecture And Environmental Studies, Mumbai (2020 - 2025)
Senior Secondary (XII) ISC board
BIllabong High International School,
Bhopal
Year of completion: 2020
Junior Secondary (XII) ISCE board
BIllabong High International School, Bhopal
INTERESTS
Reading and literature
Writing
Astrophysics
Performing cultural activities
CONTACT
EMAIL:
mittalavani16@gmail.com
SketchUp
Adobe InDesign
Adobe Illustrator
Adobe Premiere Pro
Autodesk SketchBook
Adobe Photoshop
Rhino
ArchiCad
QGIS
Shaper 3D
Lumion
Microsoft Office
Wordpress
Figma
Framer
POSITIONS OF RESPONSIBILITY
Class Representative, 2020
Member of Rotaract Club of KRVIA, 2020-2021
President of Rotaract Club of KRVIA, 2021-2022
Cultural Secretary of KRVIA, 2021-2022
Cultural Head of KRVIA, 2022-2023
Member of curation team for exhibition: 'Representing the Sacred', 2023
FEW Nexus, Minal Yeramshetty
Growth Trajectories of MMR, Kedarnathrao
Goparde
Exits to Elsewhere, Sahej Rahal
Aishwarya Padmanabhan
Ways of Seeing, Teja Gavankar
Narration of space in the Bombay novel, Soni Wadhwa
PUBLICATIONS
The Revolutionary Time in Life called Architecture College, Rethinking the Future
The good, the bad and the aesthetic, UrbanScripts, ArchitectureLive!
WORK EXPERIENCE
Youth Empowerment Foundation, 2019
Graphic Intern at the NGO; 3 mo.
Vastu Vista Architects, Bhopal, 2022
Architectural Intern; 1 mo.
3D Visualising work with:
- Bling Square Events, Mumbai
- Nikhil Mahasur and Associates
Studio Archohm, Noida, 2023-24
Architectural Intern; 6 mo.
Jari Mari Typology study
Jari Mari Exhibition Centre Intervention
Chidambaram Exhibition
Kolhapur: Urban Study
Kolhapur Housing
Civic Centre
Working Drawings for Civic Centre
Infintesimal Gradations: School of Philosophy of Religion
Pehlar Dam: Landscape Study
Dynamism: Wildlife Research Centre
Mosaic: Co-working Grid
Other Works
Jari Mari: Cultural Infrastructure

Jari Mari, located in the low-lying Kurla area adjacent to Mumbai's airport, is defined by its proximity to critical urban infrastructure. Initially established as a settlement along the MIthi river, Jari Mari became increasingly integrated into Mumbai's urban fabric as the city expanded northward to accommodate a growing population. Due to its position within the airport's funnel zone and its low-lying geography, large-scale developments have been restricted, despite the high land values. These restrictions limited real estate investments, reducing formal development interest. As a result, informal settlements and industries began to proliferate, with Jari Mari emerging as a hub for scrap and recycling activities, particularly related to building formwork materials.
Additionally, Jari Mari's location near the Kurla Scrap and textile Market enabled it to evolve into a centre for textile production and other industrial activities, thereby functioning as both a production unit and a recycling hub within Mumbai's economy.
The study attempted to understand the process of these systems and the resultant physical arrangement, the placement of businesses, institutions and communities and how urbanity and architecture are articulated through these industries.
Various industry typologies thus were studied to understand workings of the labourers in order to build for them and their businesses.



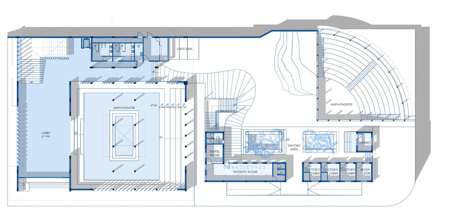
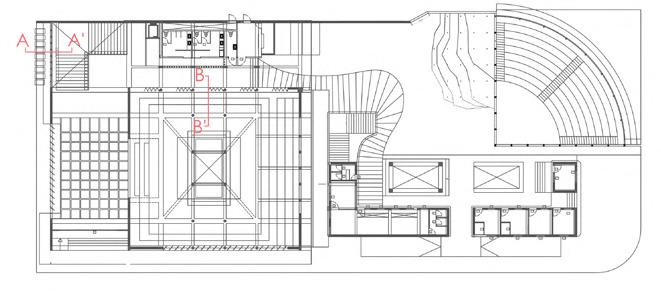
Jari Mari Exhibition Centre
The Exhibition Centre lies in the Kajupada West area of Jari Mari. It is a centre meant to promote business and provide the businessmen an opportunity to display their services and products, such as products made from scrap steel and the clothes manufactured here. The centre will also display the kind of machines and the processes used with the help of the Resource Centre that provides the residents and the working females a space to stitch, sew and produce outside their places of residence. The establishment of the Resource Centre thus provides legitimacy as well to the working females by providing them with a space dedicated only to their needs and function.
The other plot has a parking lot for the visitors of the exhibition. It also tries to retain as much open space for the residents as possible to allow them to celebrate their festivals and gatherings without hinderance.






Circulation
Resource centre
Interaction spaces
Cafeteria and eating space
Closed exhibition and auditorium
Services core
Meeting and conference rooms
Administration







Chidambaram Exhibition
Semester VI | Collaborative Work
The Third Year study of institutions is interested in the ways in which the architecture of the temple town makes a community. What spatial systems, beliefs and practices are deployed to create and structure the society, and what resistances and subversions emerge when this community is challenged by other value systems?
For the study trip we were interested in the possibilities that emerge in the tension between the idea, the form and everyday life.




Kolhapur: Urban Study
Semester VII | Collaborative Work
Kolhapur is known for a wide range of distinctive features that range from history to the development of its culture and its identity. The Mahalaxmi Ambabai Temple, located in the core of the city, also known as the old city marks an important point in the growth of the city around. It is through the establishment of the shrine and the construction of the temple that settlements started flourishing in the surrounding areas which today is called as the core city.







Nolly Map
Old / New Structures
Node activities
Layers of the Public Square / Bhavani Chowk
Rejuvenating the Public: Housing
The city of Kolhapur is Tier 2 city, which means that it is going under rapid urbanisation, like all the historic cores of cities nationwide, such as Bhopal, Hyderabad, Lucknow, etc.
The inner core of Kolhapur, which is also its historic core from where the city first started out, consists of old public buildings, palaces and wadas that form the cultural fabric of the city. On account of the heavy footfall of tourists and pilgrims into this area of the city each month, shops started coming up on the ground floors and on the main wide roads while residential units started shifting to the peripheries and the inner, smaller lanes of the inner core. The area then started getting rapidly commercialised. These factors make this part the most bustling part of the town.
The site thus gets enmeshed with multiple commercial, residential, public and historic layers, along with the dearth of space for parking, that complicates this housing project. Keeping this is mind, how do you maintain the cultural and historic integrity of the city while rapid commercialisation takes place around it? And how can the public life here be made better, considering these are the centres of cities?
Cities have tackled these problem by improving the public infrastructure first. In these areas where streets cannot be widened, sidewalks, footpaths, cycle tracks have been made in order to encourage pedestrians and to devowed to spill out onto the street, thus softening the boundary between the street and the built form that lends a dynamic nature to such places. Making more plazas and shaded areas serve as pause points for people that allows them to rest in the busy streets, which is especially necessary in the hot climate of Kolhapur.
The main street of the Library street has such a character and the above measures need to be included while designing the housing project there.



















Civic Centre
The Shiv Sena Office in Govandi, situated right across a police chowki helps the people of Govandi in getting services, rather than providing any services from their side. They say that the people of Govandi would come to them for help rather than going to the police chowki because of the legalities and papers involved which they are unaware and afraid of.
They don’t delve into lending or taking of money, but with the help of their political power are able to get their work done, such as getting treatment in hospitats, getting loans, etc.
Hence, the program of a civic centre evolved. It is a centre that acts as an urban level panchayat, helping the community resolve their disputes and also help them navigate the legalities of everyday affairs.




smaller spaces opening into larger spaces







Working Drawings for Civic Centre


Infinitesimal Gradations: School for Philosophy of Religion
Religion is an infinitely vast concept with various sub religions, casts, beliefs, faiths and traditions involved. The entire world population is either a part of a religion or is influenced by it, therefore every peron has an infinitesimally varying perception of religio. The context of the temple town of Chidambaram shapes an important role in how religion is perceived, practiced and/or propagated. The philosophical examination of religion allows us to reflect on these matters of religious importance including the nature of God or ultimate reality, and analyses how these beliefs play out in real life. The program thus became a school of philosophy of religion.
The form exploration started keeping the program in mind whereby spaces of reflection, contemplation and meditation would be required in order to provoke thought to allow one to probe further into the philosophy of religion.

Conceptual Diagrams





Form on site breaking the wall of the temple complex
splitting into two to allow light




Pelhar Dam: Landscape Study
VI | Collaborative Work

Semester
Guides: Rutika Parulkar & Neha Shah

Dynamism: Wildlife Research Centre


The forest is tranquil, but even in that tranquility, there is a dynamic layer embedded in it. Though the trees seem to be rooted, its branches and roots slither out in a myriad directions, claiming the forest floor their own. There is also the fluidity of the river which brings some grace and softness to the landscape. The entire forest seems to be breathing, moving by millimetres as you take a breath in and freezing back to stillness when you let it out. The air is quiet too, as though it is just content to sit on the soil in between the trees. It instills calm, peace and hope in one, and this becomes the purpose for the concept.
The forest is tranquil, but even in that tranquility, there is a dynamic layer embedded in it. Though the trees seem to be rooted, its branches and roots slither out in a myriad directions, claiming the forest floor their own. There is also the fluidity of the river which brings some grace and softness to the landscape. The entire forest seems to be breathing, moving by millimetres as you take a breath in and freezing back to stillness when you let it out. The concept for my design is derived out of this dynamical nature of the site. The entire landscape seems to be animated and constantly shifting. It is this fluidity and the animated-ness of the forest that inspires the conceptual form.
The concept for my design is derived out of this dynamical nature of the site. The entire landscape seems to be animated and constantly shifting. It is this fluidity and the animated-ness of the forest that inspires the conceptual form.
Movement and circulation




water channels run along the contours and collect water which is used in the greenhouse.
Mosaic: Co-Working Grid
Semester VII | Collaborative Work
The Mosaic CoWorkGrid is an innovative co-working space that draws inspiration from the iconic game of Tetris, transforming the traditional office environment into a dynamic and flexible workspace. This concept revolves around modular workspaces that occupy the space within a scaffold, allowing for incremental growth over time to accommodate the ever-expanding population of patrons seeking collaborative workspaces. It’s steel framework and dry walling system can incrementally grow over time to fit a growing population of patrons in co-working spaces, which started in 2020, and will continue to grow more in 2030, and 2040.
The design of the CoWorkGrid celebrates the essence of collaboration, encouraging spontaneous connections and fostering creativity.
Tetris-shaped modules juxtaposed to create “happenings” in the spaces in` between






Incremental growth allows for the design to adapt to the growth in co-working spaces from the 2020s through the 2040s










Steel Scaffolding and drywall construction system both allow modifications over time


















GS Aakanksha Rishabh Chaplot Avani Mittal Shravan Iengar








https://www.re-thinkingthefuture.com/narratives/a10430-the-revolutionary-time-in-life-called-architecture-college/

https://architecture.live/the-good-the-bad-and-the-aesthetic/







