

![]()


Company:
Location:
Project Type:
Project Scale:
Involved Stage:
AGC Design Limited
Ningbo, China
Shopping Mall, Mixed-Use Development
800,000 sqm GFA
Schematic Design

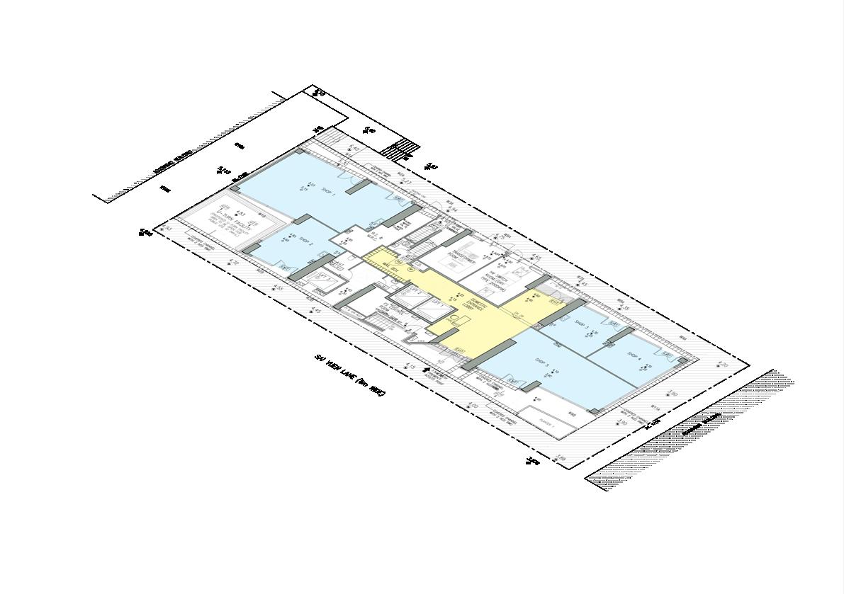
As part of the Ningbo New World Plaza development, K11 Art Park serves more than a business and leisure avenue, but also a green city landmark, including a bio-retention pond, a rain-water garden, permeable pavements and ecological rooftop.
Moreover, surrounded by 3 main roads with busy traffic, it encourages visitors to use the underground level to enter the K11 mall. The main design concept is 6# Sunken Plaza acts as an anchor point to draw the visitors into the mall, and enhances the human flow. Hence, the facade design is one of important features to improve the 6# Sunken Plaza human flow.



PUBLIC CIRCULATION
G/F to B1/F Circulation
G/F Circulation
ESCALATOR
ESCALATOR BRIDGE BRIDGE BRIDGE
SUNKEN PLAZA
G/F PARK G/F PARK G/F PARK STAIR STAIR STAIR
ESCALATOR

PROGRAM & CIRCULATION
G/F Program
B/F Program Circulation
超白双钢化夹胶中空玻璃
超白双钢化夹胶中空玻璃
超白双钢化夹胶中空玻璃
超白双钢化 夹胶中空玻璃
超白双钢化 夹胶中空玻璃
超白双钢化 夹胶中空玻璃
首层结构边线
首层饰面边线
首层结构边线
首层饰面边线
首层结构边线 首层饰面边线
首层结构边线
首层饰面边线
首层结构边线
首层饰面边线
首层结构边线 首层饰面边线
首层结构边线
首层饰面边线
首层结构边线
首层饰面边线
木纹铝板
木纹铝板
首层结构边线
首层饰面边线
首层结构边线
首层饰面边线
首层结构边线 首层饰面边线
木纹铝板
首层结构边线
首层饰面边线
超白双钢化夹胶中空玻璃
超白双钢化夹胶中空玻璃
超白双钢化夹胶中空玻璃
超白双钢化夹胶中空玻璃
超白双钢化夹胶中空玻璃
超白双钢化夹胶中空玻璃
超白双钢化夹胶中空玻璃
超白双钢化夹胶中空玻璃
首层结构边线 首层饰面边线
首层结构边线
首层饰面边线
首层结构边线 首层饰面边线
首层结构边线
首层饰面边线
首层结构边线
首层饰面边线
首层结构边线
首层饰面边线
超白双钢化夹胶中空玻璃
超白双钢化夹胶中空玻璃
超白双钢化夹胶中空玻璃 超白双钢化夹胶中空玻璃
防雨百叶在后
香槟金木纹铝板
香槟金折叠铝板
香槟金铝板
木纹铝板
Facade Elevation - Mall Entrance (Plot 6)
Facade Elevation - Mall Entrance (Plot 6)
Facade Elevation - LED Screen (Plot
Facade Elevation - LED Screen (Plot 6)
Facade Elevation - Museum (Plot
LINK BRIDGE WITH LIGHTING DESIGN
MUSEUM FEATURE WALL AND LOGO DESIGN




MUSEUM FEATURE WALL AND LOGO DESIGN LINK BRIDGE WITH LIGHTING DESIGN
玻璃围栏
香槟金木纹铝板条子饰面
铝背板,浅灰色油漆 线条灯
铝背板,浅灰色油漆 由灯光顾问深化
Section - Link Bridge (Plot 6)
香槟金木纹铝板
线条灯 (由灯光顾问深化
)
- Museum Link Bridge (Plot 6)





Company:
Location:
Project Type:
Project Scale:
Involved Stage:
AGC Design Limited Ningbo, China
Shopping Mall, Facade Design
800,000 sqm GFA
Detailed Design & Construction
New World Plaza is situated at the central business district in Ningbo. The development offers a vibrant and diverse environment for live, work, retail and cultural activities. It consists of 8 residential towers, a 140 m super high-rise office tower, a 40 m high innovation office and retail podiums.
The podium is basically formed of one repeated module (shown in the elevation). The major construction challenge of the facade is the installation and the waterproofing & insulation issue. The schematic design of the facade was completed by the other designer, as the executive architect, we have developed solutions with the consultants to design problems and produced a set of detailed design packages and tender drawings.


N.T.S. @ A1 1
N.T.S. @ A1 1
(安装方法为初步概念,有关方法需进一步深化。)
(安装方法为初步概念,有关方法需进一步深化。)
TYPICAL FACADE MODULE COMPONENTS
典型模块安装示意
6+1.52PVB+6
典型模块安装示意
超白透明双钢化夹胶中空 玻璃配2mm浅灰色氟碳喷 涂铝背板
6+1.52PVB+6 超白透明双钢化夹胶中空 玻璃配2mm浅灰色氟碳喷
古铜色铝板饰面装饰收边 (沿鳞片收边)
仿真绿植 (非幕墙范围)
雨棚雨水管(柱脚内)
8+1.52PVB+8Low-E+12A+12 超白透明双钢化夹胶中空 玻璃装配2mm浅灰色氟碳 喷涂铝背板
超白透明双钢化夹胶中空 玻璃装配2mm浅灰色氟碳 喷涂铝背板 MT-05
古铜色耐风雨铝合金百叶 MODULE ELEVATION
8+1.52PVB+8Low-E+12A+12





MT-06C
绿色铝板金属鳞片(4#地块) (其他地块颜色分布按立面示意)


曲面防水铝板收边
装饰铝板
平面防水铝板
L2-L3 室内水泥板间墙
L1-L2 室内水泥板间墙 (在下 )

曲面防水铝板收边(在后)
L3-L4室内水泥板间墙 (防水保温层 )
PLAN
L2-L3室内水泥板间墙 (防水保温层 幕墙铝封板

装饰铝板
平面铝防水夹层板


平面防水铝板

曲面防水铝板收边





主枝干造型位置 @+12.85
My Task:
I am responsible for the detail design package of the entire podium.
6+1.52PVB+6
超白透明双钢化夹胶中空 玻璃配2mm浅灰色氟碳喷 涂铝背板
装饰铝板 装饰铝板
风管 防雨百叶 风管
古铜色铝板饰面装饰收边 (沿鳞片收边)
仿真绿植
PLAN
L2-L3 室内水泥板间墙 (在下 ) L3 楼板边线
6+1.52PVB+6
超白透明双钢化夹胶中空 玻璃配2mm浅灰色氟碳喷
涂铝背板
PLAN
平面防水铝板(在后)
平面防水铝板
古铜色铝板饰面装饰收边
(沿鳞片收边)
仿真绿植 (非幕墙范围)
主枝干造型位置 @+6.05
曲面铝防水夹层板
幕墙铝封板
8+1.52PVB+8mm
古铜色孤形收边盖板
幕墙标准树型垂直仿真绿化投光灯 (详见BPI幕牆灯光设计方案) 幕墙标准树型鳞片及 垂直仿真绿化雨水 斗
6+1.52PVB+6, Glass door 超白透明钢化中空玻璃门
雨棚雨水管(柱脚内)
装饰铝板
8+1.52PVB+8Low-E+12A+12
超白透明双钢化夹胶中空 玻璃装配2mm浅灰色氟碳 喷涂铝背板
超白透明夹胶钢化 玻璃防坠落雨棚
L3-L4 室内水泥板间墙
My duties include coordinating with the suppliers for the material selection and coordinates with the facade consultants and BIM specialist for the module system, preparing presentation materials, conducting regular meetings with clients, also, leading a team of 6-8 people to complete the drawing package
8Low-E+12A+8 超白钢化中空玻璃救援窗口 6+1.52PVB+6 超白透明双钢化夹胶中空 玻璃配2mm浅灰色氟碳喷 涂铝背板
8+1.52PVB+8Low-E+12A+12 透明钢化夹胶中空玻璃
@+7.35
(在下 )
幕墙标准树型排水口
8+1.52PVB+8Low-E+12A+8+1.52PVB+8 超白双钢化单夹胶中空玻璃
6+1.52PVB+6, Glass door 超白透明钢化中空玻璃门
FFL +5.260
8+1.52PVB+8Low-E+12A+8+1.52PVB+8 超白双钢化单夹胶中空玻璃
6+1.52PVB+6, Glass door 超白透明钢化中空玻璃门




Day Activity Centre cum Hostel for Severely Mentally Handicapped Persons
Company:
Location:
Project Type:
Project Scale:
Involved Stage: AGC Design Limited Hong Kong Government Approx. 2,800 sqm GFA Schematic Design

A Technical Feasibility Study (TFS) for an activity centre and hostel for the mentally impaired which was funded by the Hong Kong government. The scope of the study required us to identify the site and its development constraints, provide schematic building designs from various perspectives, and necessary assessments such as a traffic impact assessment, and environmental impact assessment.
The proposed site would coincide next to an existing school which was on a naturally sloped terrain. We proposed that the building would be oriented towards the south which would maximize the natural daylight and provide beautiful views facing downhill.


Site Condition - located on a natural terrain

Initial Concept - introducing the greenery into the building
My Task:
My responsibilities in the feasibility study ranged from coordinating with various consultants, aligning with the government departments to prepare the assessment reports, communicating with various stakeholders to ensure design requirements and specifications and finally prepare many of the architectural drawings needed.



Exploring the design opportunities, we proposed two different layout arrangements of typical floor. For the initial design (option 1), all dormitories face southern side to enjoy a better view and orientation. Although not all the dorms face the southern side, the Option 2 offers the better logistic work flow for end-users. Hence, the option 2 is preferred by the client.

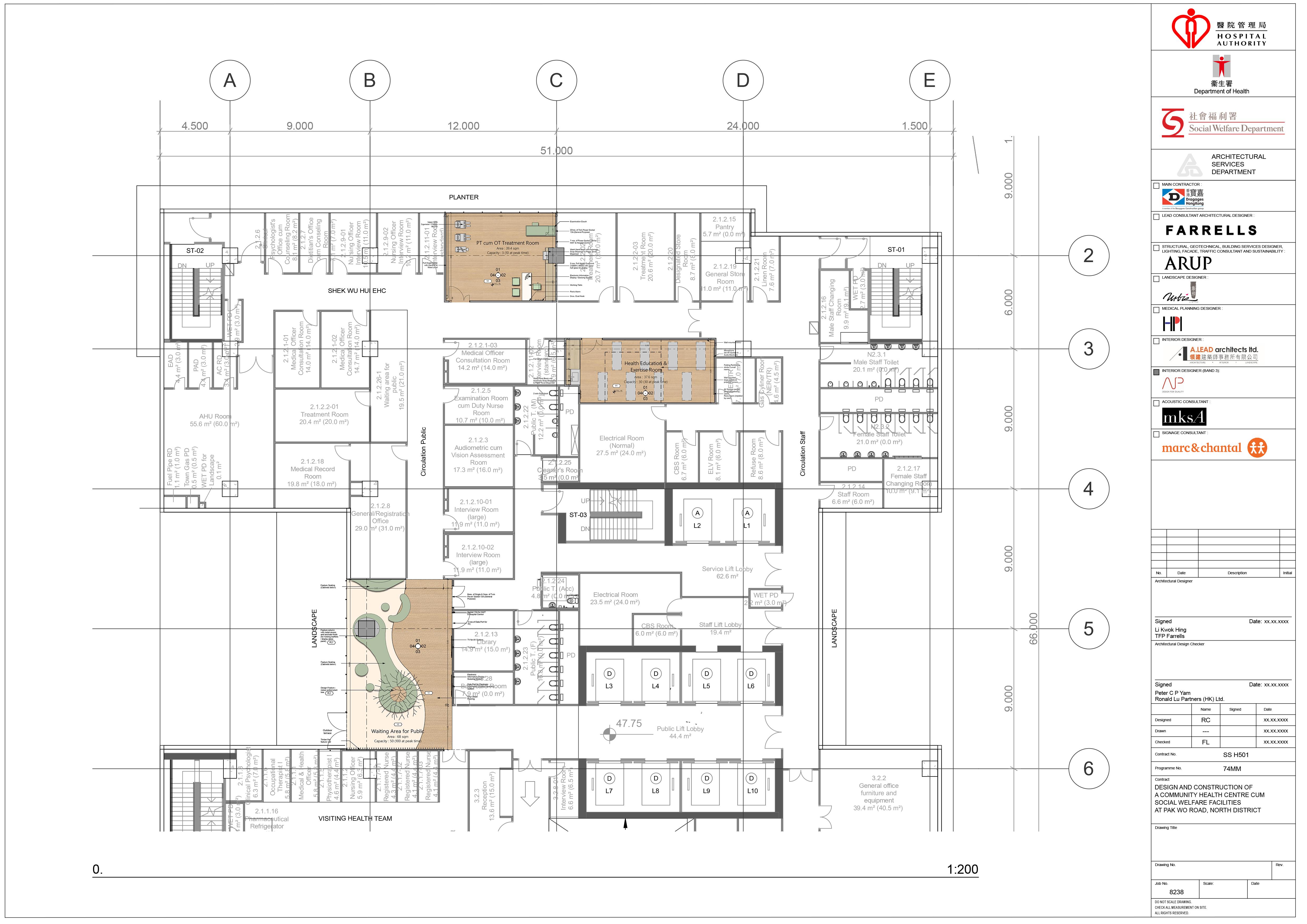
Community Health Centre cum Social Welfare Facilities
Company:
Location:
Project Type:
Project Scale:
Involved Stage:
Architectural Project Unit Limited (as a Freelancer)
Hong Kong Health Centre
2,000 sqm GFA
Schematic Design
We collaborated with other architects to prepare the tender submission for a Community Health Centre of 2000 sqm GFA, in which we designed the featured interior spaces.
The approach on the interior design was to integrate elements that would provide patients a sense of being at home. This would ease the clinical feeling that is often found at health centres in Hong Kong.
Task:
I was involved in the overall project delivery, from the interior and schematic designs of the three areas mentioned (1,2,3), preparation and engagement activities with clients, to the elevation production and final write-up for the tender submission.
TREATMENT ROOM & EXERCISE ROOM
HEALTH EDUCATION CUM EXERCISE ROOM













Harmony color scheme is applied to enhance the feeling of home and relax for the uplifting ambiance. By integrating the green color scheme from the way-finding study, a timber and white color approach is designed at the interior finishes for having the warm and bright perspective of the visitors.





















Company:
Location:
Project Type:
Project Scale: Involved Stage:
Cheung Kong-Yeung Architects Ltd.
Hong Kong
Mixed-use Development of a Commercial podium & 1 Residential Tower
Approx. 8,800 sqm GFA
Detailed Design
As the local executive architects, we further developed a design by an American architecture firm –nArchitect.
We were responsible for the schematic design leading into the construction stage and the completion of the project. We coordinated with various consultants to prepare the detailed design drawings and construction drawings in addition to the local statutory applications.
For this project, I was mainly responsible for drafting the designs used in the project. This required that I develop the design intent drawings from the other architecture firm into constructions drawings and floor plans.
One of the unique facade features is the zig-zag profile of east and west side elevation with the terracotta finish. I have prepared the unfolded elevations and incorporated the details from the facade supplier into construction drawings.








AWR London Nursery School Competition
#AWR Competitions 2015 #kindergarten #bicycle
Credits:
Year:
Location:
Project type: Katalyna LEE, Grace MAK, Simon TSE Winter 2015 London England Nursery School
The concept behind Playloop Nursery is to enhance the development of children’s Sensorimotor skills.
Jean Piaget’s theory of the initial stage of cognitive development, “whose first structural crystallizations in the sensorimoter intelligence” (The Origins of Intelligence of Children,8), emphasized the formation of habits and exercise of reflex.
The open and endless roof scape for children to bike in tricycles is designed. Children will naturally gain significant development through physical experiences and repetitive routine.
1/ BIKE TRACK
4/
5/

The loop is raised along the south end and forming a roofscape for children to bike in tricycles to travel from one end of the site to the other with excitement. Recreational activities such as cycling benefit children not only in physical balance, but also coordination and focusing in tasks.
In the center of the loop, a large green lawn gives rise to different scents of plants and trees. Visually brings colors of the seasons into children’s learning environment. They may jump in and out from texture to texture seamlessly. Children may play safely and freely within the loop embrace.



THANK YOU