MITCHELL PANELLA
EDUCATION
University of Illinois at Urbana-Champaign - Illinois School of Architecture
Master of Architecture
Universitat Politecnica Catalunya - Escuela Tecnica Suroerior de Arquitectura del Valles
Semester Abroad
University of Illinois at Urbana-Champaign - Illinois School of Architecture
Bachelor's of Science of Architectural Studies
WORK EXPERIENCE
Wold Architects & Engineers - Palatine, IL
Aug 2022 - May 2024
Aug 2023 - Dec 2023
Aug 2018 - May 2022
June 2024 - Present Architectural Designer
■ Worked on High Schools and government projects including 911 dispatch centers, fire stations and courthouses
■ Collaborated with Engineers, Consultants, and Contractors throughout project development
■ Assisted Project Managers in all project phases, from initial design to construction administration.
■ Reviewed and prepared project submittals and issued PRs and SIs throughout construction.
■ Balanced multiple projects ranging from small-scale renovations to large developments valued up to $52M
Harding Partners - Chicago, IL
Dec 2023 - April 2024 Architectural Intern
■ Comprised construction documents for Frank Lloyd Wright - Davenport House renovation
■ Provided support to Project Managers in coordinating projects and performing on-site inspections
■ Executed duties related to 3D modeling, including developing and refining models for project visualization and design
Related Companies - Chicago, IL
Summer Associate
May 2023 - Aug 2032
■ Worked on projects including high-end luxury residential towers, CHA affordable units, City Centers, Commercial spaces
■ Assisted Project Managers in project coordination and on-site inspections
■ Developed construction drawings to ensure owner's requirements were fulfilled
■ Reviewed submittals, construction documents and shop drawings
■ Worked alongside experts in Finance, Sale, Marketing, Legal, Regulatory and Construction experts
Koolbrook Design Inc. - Evanston, IL
Architectural Intern
■ Comprised construction documents
■ Assisted in project drafting and planning
■ Undertook code research
2 Point Perspective: architecture + interiors - Chicao, IL
Architectural Intern
■ Provided duties for 3D modeling
■ Assisted in project coordination
June 2022 - Aug 2022
May 2021 - Aug 2021
■ Succored with the sister company On Point Design Build as a designer and worked with on-site construction personnel
PROFESSIONAL AFFILIATIONS
Member of the American Institute of Architects - AIA number: 40872792
Actively studying for the Architect Registration Examinations
SKILLS
■ Revit
■ AutoCAD
■ Rhino
■ SketchUp
AWARDS
■ Illustrator
■ Photoshop
■ Indesign ■ Lightroom
2025 ACSA Creative Achievement Award nominee
Bluebeam ■ Enscape ■ Lumion ■ Twinmotion ■ Adobe Acrobat ■ Procore ■ BIM360
■ CoveTool
University of Illinois School of Architecture Exemplary Object Award to Enhance Seating
Phi Delta Theta Eric David Smith (EDS) Scholarship for Leadership, Service/Philanthropy, and Brotherhood Brother Rice High School Gold Medal in Art
■ Grasshopper
■ Word
■ Excel
■ PowerPoint

TECHNOLOGY: Triangulation
REASONING
In both emergency communications and emergency operations, triangulation is a component of gathering information from multiple sources to improve the accuracy, reliability, and completeness of information. Many 911 systems use triangulation to pinpoint the location of a caller. During search and rescue operations, responders may use triangulation to locate individuals. For active shooter or explosive events, acoustic sensor triangulation is used to find the source.





- Highlighting areas of connection through colo
- Contrasting angular with organic forms
- Applying asymmetry
- Providing abstract visual representations of e APPLICATION










SITE MAP
- Separate EOC/ECC, Dispatch and Public
- Maintain mandatory evacuation distance (car bomb threat)
- Maintain minimum standoff distance (pipe bomb threat)
- Provide secure access











FIRST LEVEL CONCEPTUAL DIAGRAM
SECOND LEVEL CONCEPTUAL DIAGRAM
SECOND LEVEL CONCEPTUAL DIAGRAM

BREAKROOM

EOC


LOCKERS



EOC ACCESS FLOORS
DISPATCH ACCESS FLOORS
DISPATCH CEILING

EOC CEILING




RAISED FLOOR SYSTEM AS OCCURS
BASE TRIM AS SCHED 3 5/8" METAL STUD FRAMING @ 16" O.C. 5/8" GYPSUM BOARD
RAISED FLOOR SYSTEM AS OCCURS
PEDESTAL BASE BEYOND
EXISTING CONC FLOOR
PEDESTAL BASE BEYOND
CONC FLOOR RAISED FLOOR SYSTEM AS OCCURS
3 5/8" METAL STUD FRAMING @ 16" O.C. BASE TRIM AS SCHED
PEDESTAL BASE BEYOND
5/8" GYPSUM BOARD
BASE TRIM AS SCHED 3 5/8" METAL STUD FRAMING @ 16" O.C.
EXISTING CONC FLOOR
3 5/8" METAL STUD FRAMING @ 16" O.C. BASE TRIM AS SCHED PEDESTAL BASE BEYOND
EXISTING CONC FLOOR RAISED FLOOR SYSTEM AS OCCURS

PROGRAM DIAGRAM CIRCULATION DIAGRAM
LAB BUILDING
BOATHOUSE
STORAGE/RESTROOMS/MECH
BOAT RENTAL/MONITOR STATION EXTERIOR WALKWAYS
WET LAB
MICROSCOPE LAB OFFICES
CONFERENCE ROOM
STAIR CORE

BUILDING
LECTURE SPACE
RESIDENTIAL BUILDING
APARTMENTS
DIRECTOR’S RESIDENCE
SUSTAINABILITY/CLIMATE RESPONSE DIAGRAM
TRIPLE PANE GLASS

NATURAL DAYLIGHTING

VIEWS





NATURAL DAYLIGHTING


TIMBER FRAMING


CONNECTION TO NATURE





WOOD DECK FLOORING
6” RIGID INSULATION WITH WEATHER BARRIER
CLT PANEL EXPLODED ISOMETRIC
ALUMINUM FRAMED FIXED WINDOWS
VERTICAL WOOD SIDING
1” RIGID INSULATION WITH WEATHER BARRIER
CLT WALL PANEL
ALUMINUM CURTAIN WALL SYSTEM
FULLY GLAZED ALUMINUM OVERHEAD DOOR
DAYLIGHTING ANALYSIS ON PUBLIC BUILDING





STRUCTURAL ISOMETRIC
CLT WALL PANEL
1” RIGID INSULATION WITH WEATHER BARRIER
VERTICAL WOOD SIDING
ENERGY ANALYSIS ON PUBLIC BUILDING




















ROOF PLAN


SYSTEM DIAGRAM - WATER COLLECTION









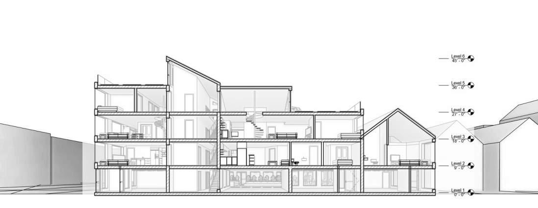
COMMERCIAL CORNER COMMUNITY PROJECT 4
ACADEMIC TERM: SPRING STUDIO | 2022
PROFESSOR: PETER ZUROWESTE
TYPE: RESIDENTIAL/COMMERCIAL
SITE: PILSEN, CHICAGO










STEP 7: ADJUST ROOF ANGLES FOR TERRACE ACCESS

STEP 8: IDENTIFY PROGRAM SPACES
COMMERCIAL RESIDENTIAL CIRCULATION PRIVATE RESIDENTIAL SEMI-PRIVATE PUBLIC
STEP 9: IDENTIFY ROOF PROFILES BASES ON SURROUNDINGS




















STEP 7: ADJUST ROOF ANGLES FOR TERRACE ACCESS

STEP 8: IDENTIFY PROGRAM SPACES
COMMERCIAL RESIDENTIAL
CIRCULATION PRIVATE RESIDENTIAL SEMI-PRIVATE PUBLIC
STEP 9: IDENTIFY ROOF PROFILES BASES ON SURROUNDINGS


STEP 10: ADJUST ROOF ANGLE FOR NATURAL SUN EFFICIENCY STEP 11: DIRECT WIND CHIMNEYS AWAY FROM WIND DIRECTION STEP 12: FACADES, WINDOW LAYOUT, & COURTYARD ACCESS








STEP 4: BUILD CORNER TOWERS BASED ON SURROUNDINGS



STEP 7: ADJUST ROOF ANGLES FOR TERRACE ACCESS

STEP 8: IDENTIFY PROGRAM SPACES
COMMERCIAL RESIDENTIAL CIRCULATION PRIVATE RESIDENTIAL SEMI-PRIVATE PUBLIC
STEP 9: IDENTIFY ROOF PROFILES BASES ON SURROUNDINGS


STEP 10: ADJUST ROOF ANGLE FOR NATURAL SUN EFFICIENCY
















OBJECT TO ENHANCE SEATING

