Mitchell Johnson Portfolio

Page 1

MITCHELL JOHNSON ARCHITECTURE
POR TFO LIO
02 | CONTENTS MITCHELL JOHNSON | PORTFOLIO
CONTENTS
03 CONTENTS | 01 02 PROJECT 001 04 PROJECT 002 08 04 PROJECT 002 16 03 PROJECT 002 14 05 PROJECT 002 18
Sun Study Site Location MORNING DUSK MID DAY MARCH DEC SEPT JUNE 01 03 02 05 04 3D Site 04 | STUDIO PROJECT MITCHELL JOHNSON | PORTFOLIO
STUDIO PROJECT 01
Section A
Back Elevation
05 STUDIO PROJECT | COLLEGE PROJECT
Front Elevation
Section A Section B Site Section 06 | STUDIO PROJECT MITCHELL JOHNSON | PORTFOLIO
07 STUDIO PROJECT | COLLEGE PROJECT

THE VOYAGE

The voyage is a hybrid community library where digital media is the focus. although hard copies of newspapers and magazines are available.

The voyage is not just a library but a community space where people can come enjoy a nice day in the green space and the beautiful views that are offered.

08 | THE VOYAGE
Long Section 02 MITCHELL JOHNSON | PORTFOLIO
09 THE VOYAGE |
Plan First Floor Plan Building Plan Second Floor Plan The Voyage Exterior COLLEGE PROJECT
Site
10 | THE VOYAGE
The Voyage Exterior The Voyage Exterior The Voyage Exterior
MITCHELL JOHNSON | PORTFOLIO
11 THE VOYAGE | COLLEGE PROJECT

CHARLESTON SAIL STUDIO

Section Site Plan
03 12 | CHARLESTON SAIL STUDIO MITCHELL JOHNSON | PORTFOLIO
Model
Plans
Plans Section Site Plan Model 13 CHARLESTON SAIL STUDIO |

BLUM CHARLESTON

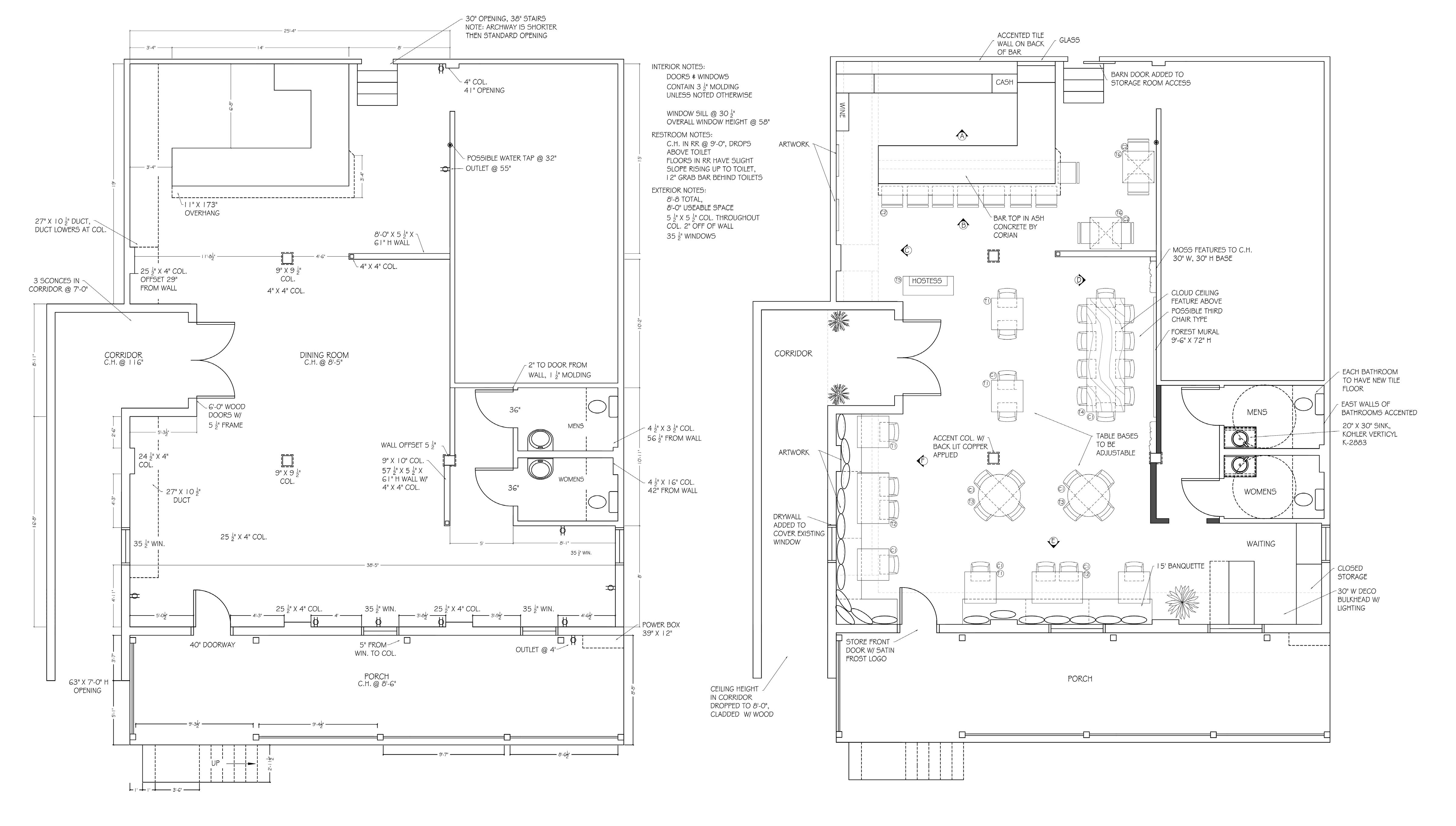
Furniture & Equipment Plan

Scale 1/4”=1’-0”

Entrance / Seating

Scale 3/32”=1’-0”

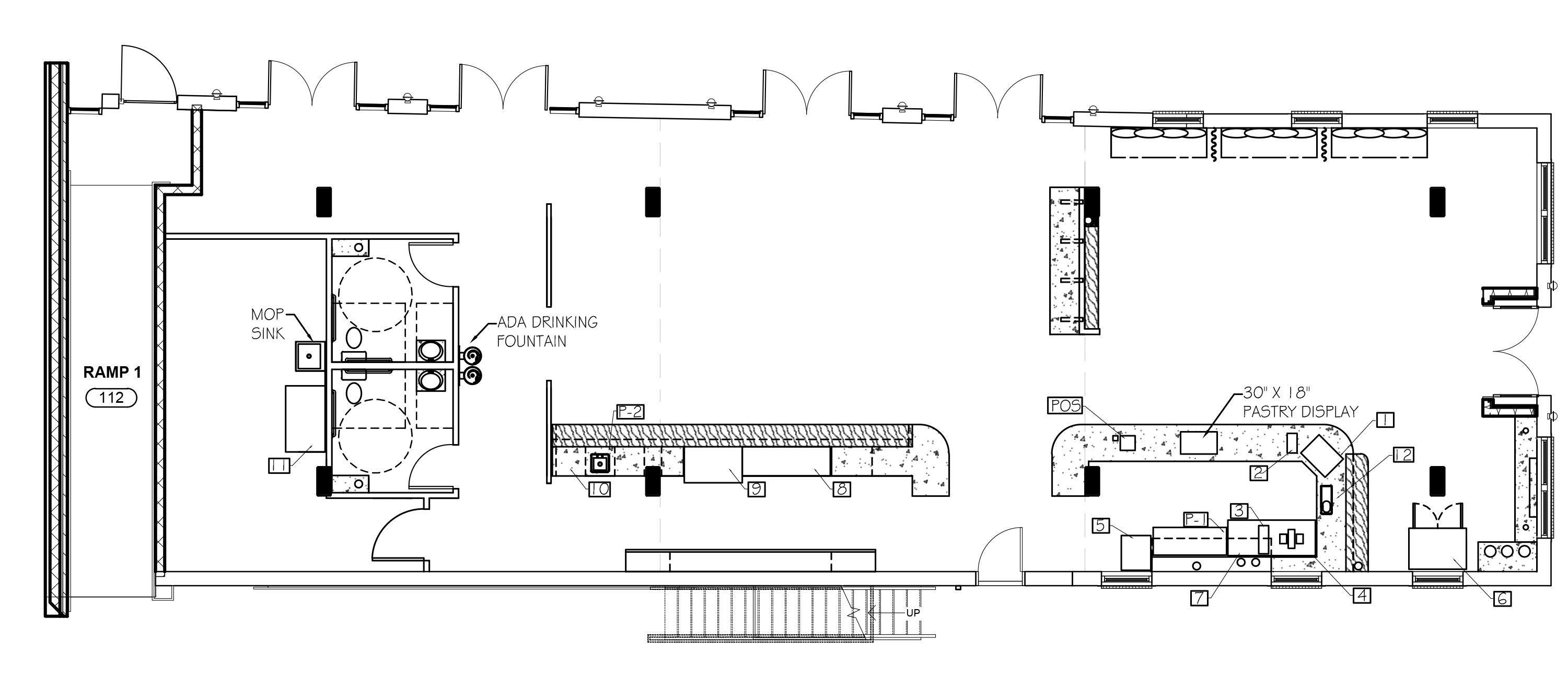
Blum Floor Plan Scale 1/4”=1’-0”

14 | BLUM CHARLESTON MITCHELL JOHNSON | PORTFOLIO
04

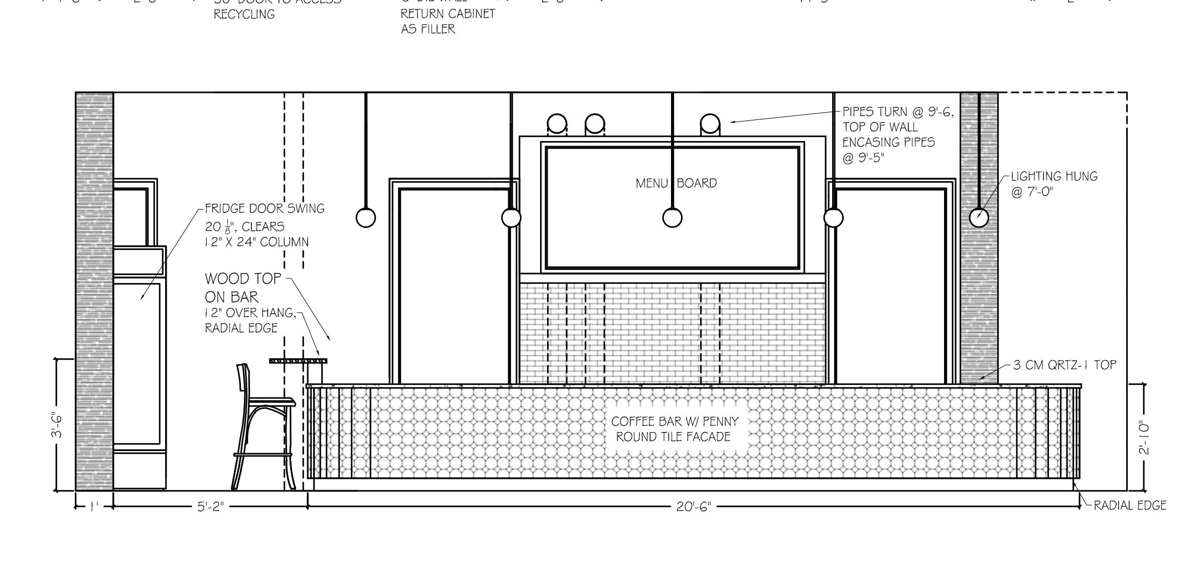
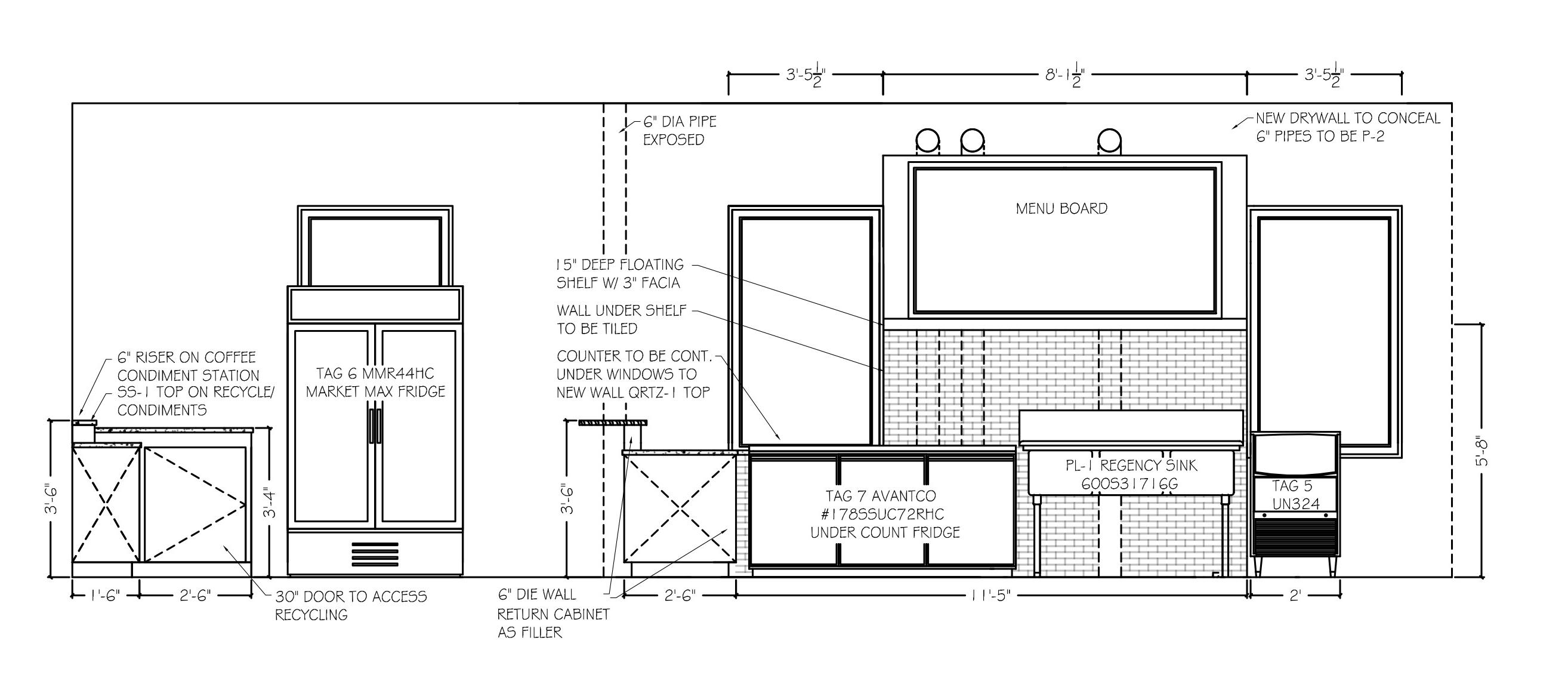
Coffe Bar Interior Scale 1/2”=1’-0”

Coffe Bar Front Scale 1/2”=1’-0”

Coffe Bar Scale 3/32”=1’-0”

Wine Bar Scale 3/32”=1’-0”

15 BLUM CHARLESTON | CLIENT PROJECT

As is Plan Scale 1/4”=1’-0”

Plan With Furniture Scale 1/4”=1’-0”

SIN EATER 04 16 | SIN EATER MITCHELL JOHNSON | PORTFOLIO

Bar - Back Wall Scale 1/4”=1’-0”

Bar - Front View Scale 1/4”=1’-0”

Dining - South Wall

Scale 1/4”=1’-0”

17 SIN EATER | CLIENT PROJECT

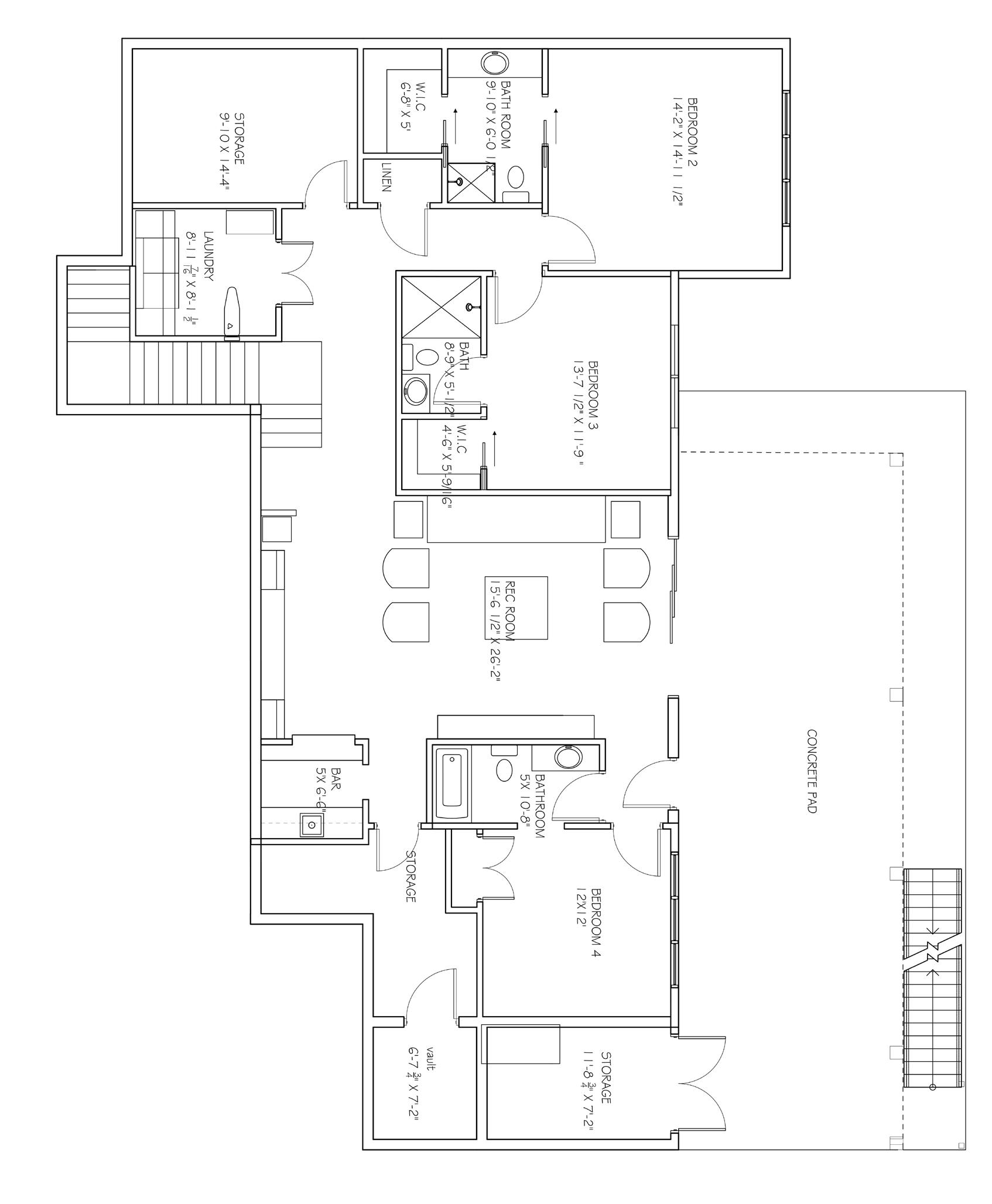
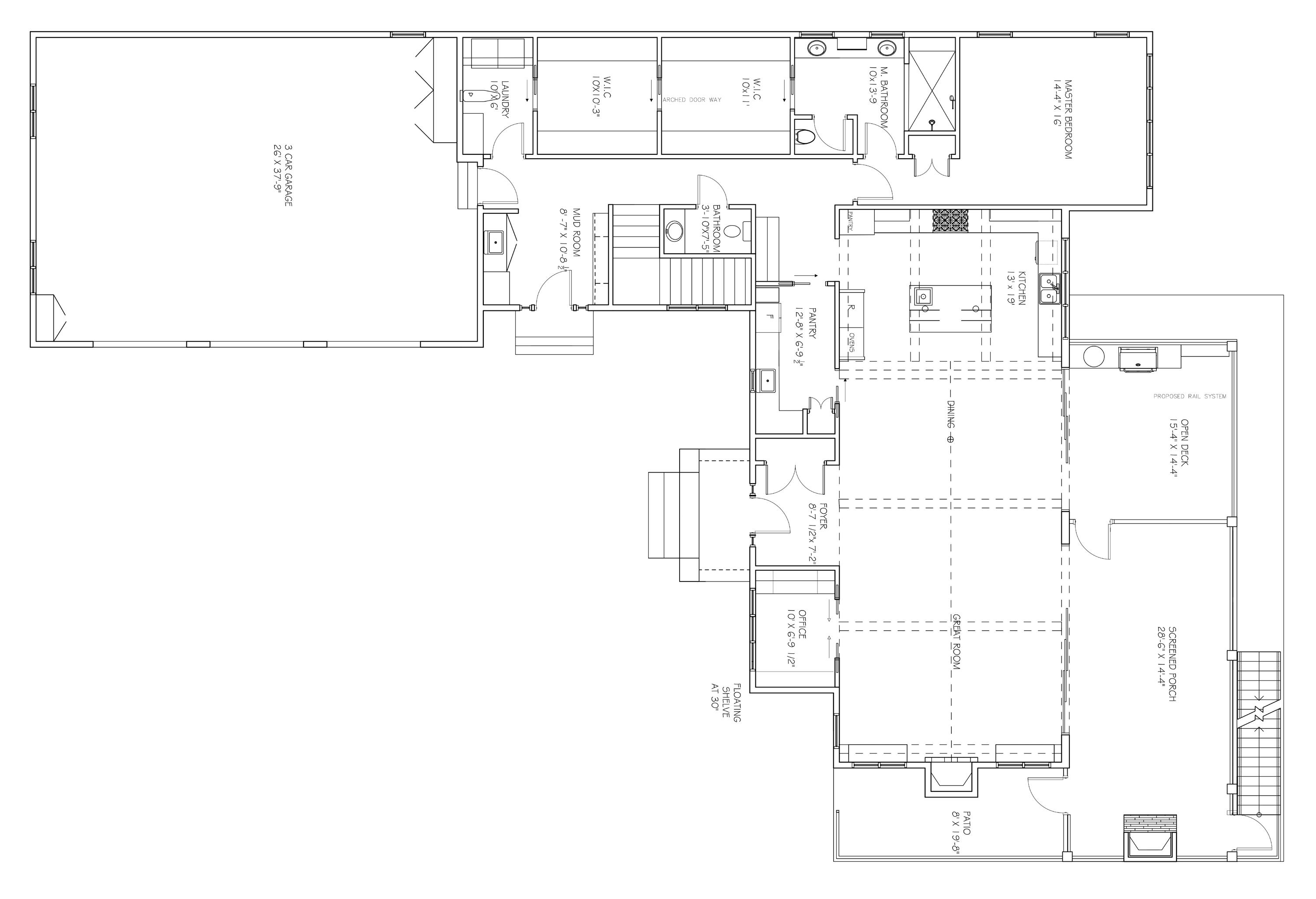
TODD HOUSE

Main Level Floor Plan

Scale 1/4”=1’-0”

Main Level Floor Plan

Lower Level Floor Plan

Scale 1/4”=1’-0”

05 18 | TODD HOUSE MITCHELL JOHNSON | PORTFOLIO

Elevation A Scale 1/4”=1’-0”

Elevation C Scale 1/4”=1’-0”

Elevation B

Scale 1/4”=1’-0”

19 TODD HOUSE | CLIENT PROJECT
THANK YOU.

Turn static files into dynamic content formats.

Create a flipbook
Issuu converts static files into: digital portfolios, online yearbooks, online catalogs, digital photo albums and more. Sign up and create your flipbook.