PUKLLAQ

Page 1

pukllaq

Centro Cultural de Artes Plásticas y Escénicas

Estudiante de Arquitectura cursando IV ciclo, soy de la ciudad de Moyobamba, algo que me define es que me gusta la tranquilidad y mis espacios propios.

UNIVERSIDAD CESAR VALLEJO Facultad de Ingeniraría y Arquitectura El Hombre y su Contexto CÁTEDRA: Lusia Enith Chafolque Pinedo
Rocio Mishell Mendoza Tuesta
ÍNDICE Ubicación Espacios Emplazamiento Área y Medida Perimétrica Topografía Asoleamiento Vientos Permisos Área Libre Coeficiente de Edificación 01 Análisis de Sitio 02 Estudio de Terreno 03 Parámetros Urbanísticos Idea Rectora Conceptualización Premisas Zonificación Evolución maqueta Propuestas volumétrica Plano de zonificación Plano general Cortes Elevaciones Vistas Isometría 07 Ante Proyecto 08 Proyecto Área de Influencia Equipamiento Densidad Poblacional Usuario y Flujo Flujo vehicular Flujo peatonal 04 Contexto Urbano 05 Población Aproximada 06 Análisis Vial

Análisis de Sitio

República delPerú

El terreno se encuentra ubicado en territorio peruano, específicamente en la región selva.

Departamento deSanMartín U B I C A C I Ó N

Lugar rastreado en el departamento de San Martín. Conocido por su diversidad y alegría de los pobladores.

Mientras nos acercamos más al proyecto, nos adentramos en la provincia de Tarapoto

Provincia de Tarapoto

Llegando exactamente al Distrito de La Banda de Shilcayo

DistritoBanda deShilcayo

parámetros urbanísticos

Tiendas Iglesias Educac
TIPOS DE ESPACIOS: Espacios llenos Espacios verdes públicos Espacios verdes forestales USOS: Abarrotes / Alimentos Centros de Salud Flora Grifos Canchas Deportivas
Espacios LEYENDA:

Análisis del Terreno

EMPLAZAMIENTO

Ubicación

Exacta: Fernando Belaunde Terry

Emplazamiento:

El lugar esta conformado por muchos equipamientos que facilitan la búsqueda se satisfacer necesidades

ÁREA Y MEDIDA PERIMÉTRICA

El terreno está conformado po (241.80ml x 200ml), lo cual espacio adecuando para la eje

El sitio está conformado prudente, ayuda con la nivelac se podría aprovechar muy bien centro. Ubicada en una zona transit opción para la elaboración del

Vialidad: El acceso principal Fernando Belaunde Terry y el Jr. Ahuashiyacu se mantienen asfaltadas y en buenas condiciones, mientras que el Jr. Miguel Grau es lo opuesto.

Servicios

TOPOGRAFÍA

Básicos: Luz Agua Desagüe Servicio de internet

Cuenta con:

Podemos observar en el p variedad de desniveles, de aprovechar al máximo, ya que en formar la personalidad del

or un área de 48 360m2 no indica que es un cución del trabajo. con una vegetación ción de la temperatura y n en la construcción del tada, es una excelente proyecto plano topográfico, una las cuales podemos e nos ayudaría bastante proyecto

ASOLEAMIENTO

El terreno se encuentra ubicado en un lugar bastante caluroso ( entre 21°C y 34°C), por ende lo mejor sería colocar los espacios como talleres, Noroeste .

Mejoramos la comodidad de los estudiantes por las tardes y así damos un cuidado adecuado a los materiales que pueden ser sensibles a los cambios brusco de temperatura.

5:43 A.M. - Amanecer

6:30 P.M. - Atardecer

6:30 P M - Atardecer

12:00 P M Medio Día

5:43 A.M. - Amanecer

VIENTOS

Durante el año, nos encontramos con unos vientos que no varían demasiado, ya que estos pueden lograr a alcanzar entre 0.4km/h a 3.3km/h.

Por ende, no sería un problema frecuente en nuestro proyecto y vendría a desplazarse en todo el terreno. S in embargo, se tuviera que observar los puntos en donde el viento logra correr un poco más fuerte para así encontrar una manera de transmitir a más puntos como en las zonas recreativas o espacios como almacenes.

DEFINICIÓN:

CONJUNTO RESIDENCIAL RDM

Este lugar se caracteriza por la abundancia de domicilios

USOS PERMITIDOS: Unifamiliar, Multifamiliar y conjunto residencial

DIMENSIONES DE LOTE: Uso residencial y uso comercial Deberán planearse lo recomendado a continuación.

USOS GENÉRICOS:

ÁREA LIBRE:

Deberán plantearse al porcentaje que se observará en el siguiente cuadro

COEFICIENTE DE EDIFICACIÓN:

Es importante conocer esta información por ende, se indica en lo siguiente:

RETIRO MINIMO: Estará contemplado en el certificado de alineamiento

contexto urbano

Área
Influencia
Equipamiento 01 02 03 04 05 06
de
y
SECTORES: Urb. Las Praderas Cercado La Banda AA. VV. San Juan AA VV La Florida AA. HH. Dos de Febrero Urb. Leonardo Arévalo Morales 01 02 03 04 05 06 INFLUENCIA ECONÓMICA: Tienda Saucedo Multiservicios La Pradera Pikaguyy Tacunga Sac Dual Shopp Asesoramiento Autoservicios Doña Chanita Bruno Panadería Bar bodega Alonsito Paradero a Yurimaguas INFLUENCIA AMBIENTAL: Losas Deportivas Río Shilcayo Plaza San Juan Parque Infantil INFLUENCIA SOCIAL: Cementerio general Rocafuerte Alojamiento del Parque Hotel La Rosadita Alojamiento Costa Azul

MULTISERVICIOS M M R

TIENDA SAUCEDO

I.E. 0094
Equipamientos
ESTADIO TARAPOTO

EQUIPAMIENTO URBANO:

LEYENDA: Radio de Alcance Zona de comercio

LEYENDA: CENTROS CULTURALES Y DEPORTIVO:

EDUCACIÓN: Colegios Educación superior

LEYENDA: Losas deportivas Parques Iglesias Río
Densidad Po DENSIDAD POBLACIONAL Al año 2022, el departamento de San Martín cuenta con 193 095 habitantes 96 785 Habitantes 96 310 Habitantes San Martín Moyobamba Rioja Lamas Mariscal Cáseres Tocache Picota ElDorado Huall a ga Bellavista 04 06 03 08 09 11 05 07 01
DENSIDAD POBLACIONAL TARAPOTO DENSIDAD POBLACIONAL LA BANDA DE SHILCAYO 82 900 Habitantes 49 359 Habitantes 47% 53% 52% 48% LEYENDA Papaplaya Morales Shapaja El Porvenir Chazuta Juan Guerra Tarapoto Sauce Alberto Leveau La Banda de Shilcayo Chipurana Huimbayoc 01 02 03 04 05 06 07 08 09 10 11 12 blacional 01 10 12

ANTE PROYECTO

IDEA RECTORA

Un árbol frondoso lleno de intriga y misterio inquietantes relatos detrás de él. De acuerd peligro, siendo este un pequeño diablillo mu Planta provenientes de la selva reproducción es a través de sus raíce posee flores y un fruto globoso. característica principal sus enormes r encontrar algún impedimento con su se enrosca y lo estrangula como u constrictora. Sus ramas y raíces se entretejen excelente lugar en donde enormes habitar.

CARACTERÍSTICA

INFLUENCIA DEL RENACO E

Respetado y temido por la población ya qu simples travesuras hasta peligro mortal. Po de temor que este ya que se encuentran c los que se encontraron con el diablillo.

Pukllaq Pukllaq

S:

¿QUÉ REPRESENTA?

Representa el espíritu del hombre del Amazonía. Hundimos nuestras raíce fondo de nuestra realidad y n profundamente para poder encontrar identifica y relacionarlo con nuestros an El Renaco es egoísta como el hombre permite que otro árbol crezca junto a destruye.

o que es respetado por los antiguos pobladores de la Amazonía peruana debido a sus do con las historias contadas se dice que tiene un guardián que lo protege de cualquier uy travieso que hará lo necesario para cuidarlo. tropical, su s no obstante Tiene como raíces que, al u crecimiento, una serpiente n, siendo un boas logran

EN LA CULTURA AMAZÓNICA:

ue se tiene presente el mito del quien cuida de él y loq ue puede ocasionar, desde odemos decir que relatos como "El Chullachaqui", la madre del Renaco llega al nivel cuentos como "La maldición del Renaco" o simplemente experiencias por parte de

Sensaciones del relato

Se aprovecharían, las líneas y formas i que de acuerdo al relato nos indica que proteger al árbol

Se tomará en cuenta las distintas carac hasta los atributos de su composición co

La fachada y volumetría se hiciera refe del diablillo en la entrada principal. En cuanto a la circulación del espac generando dinamismo y espacios que in

Miedo Respet

Tiene una textura rugosa y tosca po Es un árbol bastante alto llegando a El desplazamiento de sus raíces da Se encuentra en zonas húmedas co Por las formas de sus raíces da aco

CONCEPTUALIZACIÓN

s irregulares que posee el árbol con el comportamiento del diablillo, es problemático y travieso, le gusta jugar pero su labor principal el proteger al árbol

racterísticas que lo componen, desde las sensaciones que trasmite composición como las formas de sus hojas, sus raíces y las textura

ferencia al movimiento de las raíces dando una simulación del nido del diablillo en la entrada principal.

l espacio, sería interesante adecuar el comportamiento del diablillo , generando dinamismo y espacios que interactúen con el público

Misterio Intriga to

or la longevidad de la corteza a alcanza los 100 m de altura paso a nuevos renacos omo en ojos de agua ogida a serpientes

PREMISAS SIMBÓLICAS

Raíces

Se utilizarán como piel en partes de la fachada y zonas de techo, un patrón armónico ondulado, mientras en la entrada principal tendrá otro patrón para diferenciarlo del resto ya que la entrada hace referencia al nido o habitáculo del diablillo que se encuentra en la copa del árbol.

Hojas

Una excelente cubierta para las zonas recreativas, que nos den sombra sin quitar la luz natural, aprovechando la forma de estas peculiares hojas.

Se usarán las formas irregulares que se encuentran en las raíces, y en como nosotros interpretamos el comportamiento revoltoso, por ello sería una buena idea colocar estos elementos en los

Formas

PREMISAS FORMALES

Para la volumetría se estaría considerando la forma del tronco y el desplazamiento de las raíces del tronco del renaco de forma que de la paraciencia que las raíces busquen un ojo de agua.

PREMISAS FUNCIONALES

Ciculación

Se tomará en cuenta formas irregulares como las raíces y la fluidez de estás que se relacionan con el comportamiento "juguetón" del guardián en los relatos obteniendo desniveles de terrenos dinámicos que se los visitantes.

Contraste de formas sólidas e irregulares

Fachada y elementos de las zonas recreativas llevar con sus formas rectas o fluidas. De esta forma eviden cambio de una persona cotidiana (líneas rectas) y el que el diablillo interfiera en su día a día (líneas irregula

Áreas Verdes

Se tomará en cuenta formas irregulares como las raíces y la fluidez de estás que se relacionan con el comportamiento "juguetón" del guardián en los relatos, obteniendo desniveles de terrenos dinámicos que se adecuen en las necesidades de los visitantes.

Iluminación y dobles alturas

La iluminación será acorde a la sensación que transmitan las salas, mientras que las dobles alturas tendrán los espacios como museo, teatro entre otros. Haciendo alusión a las copas de los árboles por donde se refugia el pequeño ser, de tal manera también nos ayudará con el tema visual y en ventilación, otorgando un ambiente típico de un bosque.

F e r n a n d o B
l
T
J r . A h u a s h i y a c u
PLANTA 01 SÓTANO
e
a u n d e
e r r y
F e r
n d
B
l
u
d e T e r r y J r . A h u a s h i y a c u
Jr. Miguel Grau
n a
o
e
a
n
Jr. Miguel Grau
PLANTA 02 LEYENDA Circulación vial baja Circulación vial media Circulación vial alta F e r n a n d o B e l a u n d e T e r r y J r . A h u a s h i y a c u
Jr. Miguel Grau

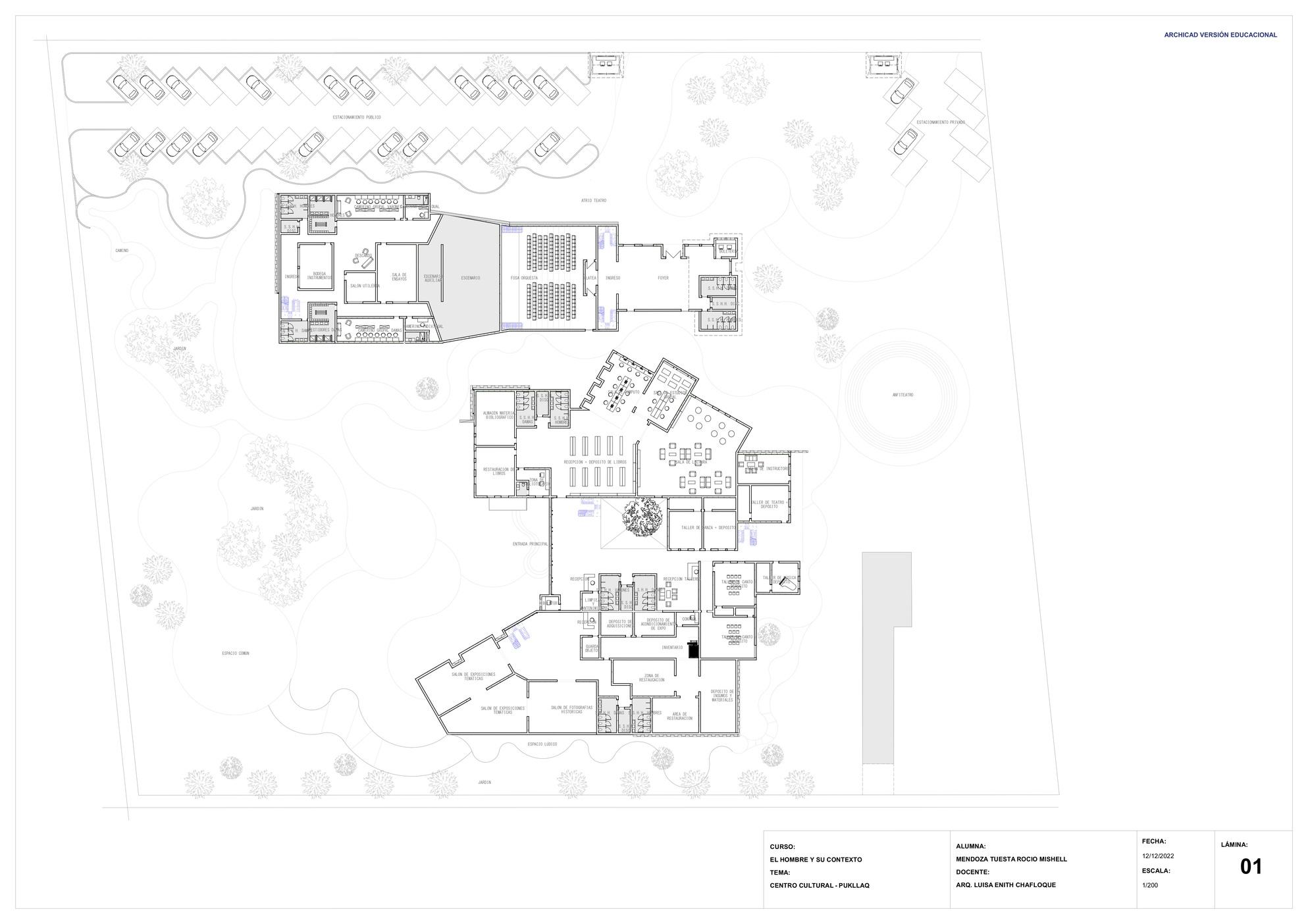
ZONIFICACIÓN LEYENDA

Biblioteca Teatro

Museo

Anfiteatro

Zona Aprendizaje Cultural

Estacionam

Atrio

Se puede ob le darán per tener dobles De igual form de piso qu diablillo",

a con el atrio, se puede observar con detalle líneas sinuosas , están vendrían siendo desniveles ue otorgarán al espacio dinamismo en el recorrido " un reto para poder llegar a la guarida del se colocará mobiliario que represente las hojas del árbol para un ambiente " con esencia de bosque"

O L U M E T R Í A 0 1

Jr. Miguel Grau

Jr. Miguel Grau

V
F E R N A N D O B E L A U N D E T E R R Y J r . A h u a s h i y a c u
F
E R N A N D O B E L A U N D E T E R R Y J r . A h u a s h i y a c u

Jr. Miguel Grau

Jr. Miguel Grau

V O L U M
A 0 2
E T R Í
F E R N A N D O B E L A U N D E T
E R R Y
F E R N A N D O B E L A U N D E T E R R Y
J r . A h u a s h i y a c u

Jr. Miguel Grau

V O L U M E
R Í A 0 3
T
F E R N A N D O B E L A U N D E T E R R Y J r .
Jr. Miguel Grau
A h u a s h i y a c u
F E R N A N D O B E L A U N D E T E R R Y J r . A
h u a s h i y a c u

PRIMERA REFERENCIA A SEGUIR

PROYECTO

PLANOS GENERALES

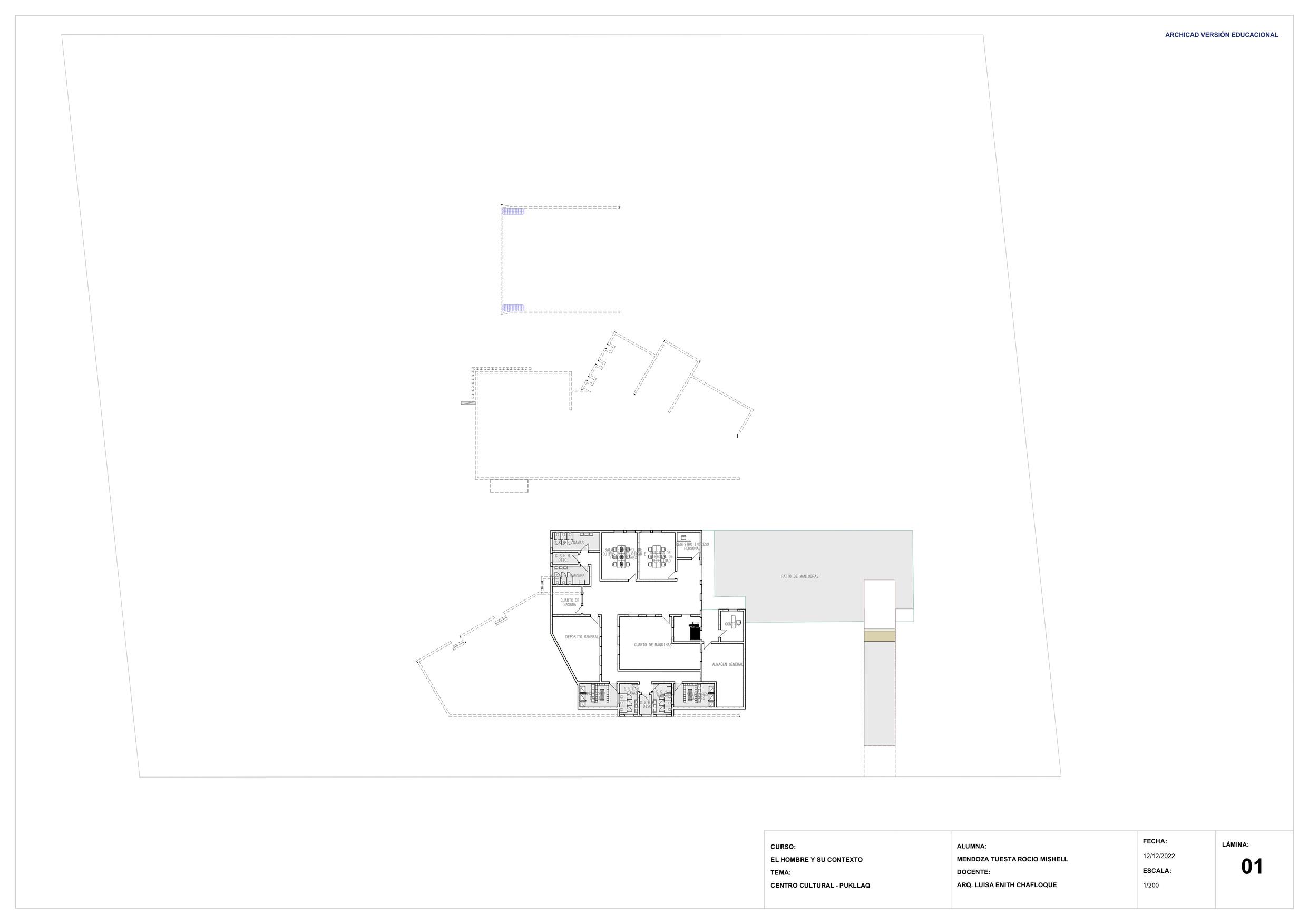
SÓTANO

PRIMER NIVEL

CORTE GENERAL S1-S1 CORTE

GENERAL S2-S2

ELEVACIÓN TEATRO CORTE TEATRO ELEVACIÓN FACHADA

PLANOS POR ZONAS

PLANO BIBLIOTECA PLANTA 1

PLANO BIBLIOTECA PLANTA 2

CORTE

BIBLIOTECA

PLANO MUSEO PLANTA 1

PLANO MUSEO PLANTA 2 CORTE MUSEO ELEVACIÓN MUSEO

PLANO ZONA ADMINISTRATIVA PLANTA 2 CORTE ZONA
A ADMINISTRATIVA
2 ELEVACIÓN
PLANTA
ZONA ADMINISTRATIVA

RENDER

Turn static files into dynamic content formats.

Create a flipbook
Issuu converts static files into: digital portfolios, online yearbooks, online catalogs, digital photo albums and more. Sign up and create your flipbook.