Mirla Naguib-Portfolio

Page 1

ARCHITECTURE PORTFOLIO FLORIDA INTERNATIONAL UNIVERSITY

MIRLA NAGUIB

contents
Table of
3 Branches of FIU Institute of Environment 2 The Future FIU Honors College 1 The Node at Dadeland 4 Micro Housing
5 Dance Theatre of Harlem

Mirla Naguib

Education

Master of Architecture

Florida International University, Florida, U.S.A

Associate in Arts Degree

Palm Beach State College, Florida, U.S.A.

High School Diploma

Wellington High School, Florida, U.S.A

Work Experience

Internship

Joyce Billet Studios, Miami, FL

•Responsible for administration tasks

•Prepare drawings for fabrication such as laser cut and CNC

•Fabricate Artworks

Internship

Spina O’Rourke + Partners, West Palm Beach, FL

•Prepared drawings for construction documents

Internship

Nader Goubran Architects, West Palm Beach, FL

•Prepared drawings for construction documents

Part Time Operations Assistant

Total Warranty Services, West Palm Beach, FL

Inventory Handler

1700 Embassy Dr. Apt. 206, West Palm Beach FL, 33401

Tel: (561) - 454 - 9462

Email: mirlanaguib@yahoo.com

June’18

Calvin Klein & Tommy Hilfiger, West Palm Beach, FL

Aug’19 - April'22

•Assisted store managers with identifying, scanning and labelling supply

•Folded and stocked it h supplies as needed

Aug’17 - May’19

Cashier

Cinnabon & Auntie Anne’s, West Palm Beach, FL

•Assisted customers with purchases

Oct’16 - Mar’17

Aug’14 - May’17

•Responsible for cashing out customers

•Baked Cinnabon and pretzels

Sep’21 - Dec’21

Honors and Awards College

• 2022 Tau Sigma Delta Commendation - Portfolio Award (2022)

• Tau Sigma Delta Honor Society (2022)

•Academic Excellence in the Architecture Department Award (2019)

High School

•Honor Roll (2013-2017)

June’19 - Aug’19

•Fashion Design Medal (2017)

Girl Scouts

• Best Scouts Behavior (2014-2015)

June’19 - Aug’19

• Best Troop Leader (2015-2016)

Technical Proficiency

Nov’17 - Present

•Responsible for handling outstanding billing discrepancies through troubleshooting of issues

•Cleared over $260k in historical items & reduced back log of contracts fed to reinsurer by 36%

• Trained new hires on tasks such as contract cancellation and reconciliation across different systems

•Assisted in dealer and rate set-ups

•Created rate files for use by reinsurer

•Managed the creation of several client reports

• Troubleshoot and assist with dealer support issues

•Liaised with system administrator for any system issues identified

•Completed Standard Operating Procedures for tasks assigned

Software:

•Revit

•AutoCad

•Rhino, Vray for Rhino, Grasshopper

•Adobe Creative Suite (Photoshop, Illustrator, InDesign)

•Microsoft Office Suite

Fabrication:

•Laser Cutting

•3D Printing

•CNC routing

The Node at Dadeland

In this project, we were to design a residential building that connectes to the underline; which is a masterplan for a 10 mile urban linear park to reclaim and beautify neglected land under the Miami Metrorail which includes eight rapid transit stations. We were given the task of picking one of the stations and finding a site that would be ideal for this project. I chose Dadeland North Station as my site and chose the existing JCPenney parking lot. I aimed to take the entire parking lot, which was a challenge because it is a large area. From there, I began the design process, focusing on three primary goals to achieve throughout my design: maximize the waterview for the residential apartments, build a continuation of the underline and a public plaza, and finally, make a strong connection from the underline to JCPenney. So, to assist me reach my design aims, I chose to design not just a residential building but also a landscape and an entertainment building across the residential building.

UP 1167 SF Kitchen 365 SF 409 SF 365 SF 409 SF K 1074 SF Kitchen Co eShop IceCrem Smoothies Salads
Concept Diagram

Floor Plans

3716 SF Circulation 938 SF 2 BED 2310 SF 3 BED 947 SF BED 971 SF BED 948 SF 2 BED 960 SF BED 938 SF 2 BED 940 SF BED 621 SF 1 BED 596 SF BED 598 SF 1 BED 620 SF 1 BED 597 SF 1 BED 596 SF BED 595 SF BED 615 SF BED 2314 SF 3 BED Units 1 BED 2 BED 3 BED Service Trash Chute 47 SF Trash Chute 46 SF Service 47 SF Service Scale Date Drawn By Checked By Project Number A102 Unnamed Project Number Owner Project Name Issue Date Author Checker No. Description Date 3/32" 1'-0" Level 2851 SF Circulationnnn 168 SF Room 194 SF Room 194 SF Room 2310 SF 947 SF 960 SF BED 621 SF 1 BED BED 597 SF 1 BED 596 SF Trash Chute Service www.autodesk.com/revit Consultant Address Address Phone Fax e-mail Consultant Address Address Phone Fax e-mail Consultant Address Address Phone Fax e-mail Consultant Address Address Phone Fax e-mail Consultant Address Address Phone Fax e-mail A102 Unnamed Project Number Owner Project Name Description Date 2831 SF GYM 48 SF MECH 2116 SF RESTAURANT 572 SF KITCHEN 815 SF GAME ROOM 838 SF GAME ROOM 451 SF RESTROOMS 507 SF STORAGE 484 SF STORAGE 1063 SF MOVIE THEATER 450 SF RESTROOMS 7304 SF LOUNGE 370 SF LOUNGE Redundant Room BAR 46 SF MECH 12258 SF Room 48 SF MECH 507 SF STORAGE RESTROOMS Redundant LOUNGE FITNESS CENTER www.autodesk.com/revit Consultant Address Address Phone Fax e-mail Consultant Address Address Phone Fax e-mail Consultant Address Address Phone Fax e-mail Consultant Address Address Phone Fax e-mail Consultant Address Address Phone Fax e-mail Unnamed Project Number Owner Project Name Issue Date Description 2831 SF GYM 48 SF MECH 2116 SF RESTAURANT 572 SF KITCHEN 815 SF GAME ROOM 838 SF GAME ROOM 451 SF RESTROOMS 507 SF STORAGE 484 SF STORAGE 1063 SF MOVIE THEATER 450 SF RESTROOMS 7304 SF LOUNGE 370 SF LOUNGE Redundant Room BAR 46 SF MECH 12258 SF Room 48 SF MECH 507 SF STORAGE 484 SF STORAGE 815 SF OFFICES 450 SF RESTROOMS 838 SF STUDY ROOM 1063 SF STUDY ROOM 451 SF RESTROOMS 10044 SF BAR Redundant Room LOUNGE 572 SF OFFICES 2836 SF FITNESS CENTER 2121 SF KIDS AREA www.autodesk.com/revit Scale Date Drawn By Checked By Project Number Consultant Address Address Phone Fax e-mail Consultant Address Address Phone Fax e-mail Consultant Address Address Phone Fax e-mail Consultant Address Address Phone Fax e-mail Consultant Address Address Phone Fax e-mail 4/16/2022 11:47:46 PM A103 Unnamed Project Number Owner Project Name Issue Date Checker No. Description 3/32" 1'-0" Level 3/32" 1'-0" Level DADELAND NORTH STATION RESTAURANTS PLANS UP DN 1" 50'-0" 1 Level 1 1" 50'-0" 2 Level 2 1" 50'-0" 3 Level 3 1167 SF Kitchen 365 SF K 409 SF K 365 SF K 409 SF K 1074 SF Kitchen Co�eShop IceCrem Smoothies Salads Trash Trash Typical Floor Plan Floor 4-20 Amenities Level 3 Restaurants Floor Plans Typical 2 Bedroom Unit Typical 1 Bedroom Unit Amenities Level 2

The Future FIU Honors College

In this project, we were asked to design the Future FIU Honors College. We were to pick our own site in campus, analyze it, and start the process of designing. I chose to place the Future FIU Honors College in the busiest part of the campus next to the Library and the Graham Center, as I think the Honors College needs more recognition.

In my design, I focused on integrating my project with the existing surroundings rather than interrupting any views. My focus was also to produce smaller plazas and gathering areas for students and create a more engaging and inviting site to make use of the existing huge green area.

Existing Circulation Proposed Circulation
Floor Plans

Branches of FIU Institute of Enviroment

Our design proposal for the new FIU Institute of Environment, is a vertical landmark that celebrates the complexity of the local water issues by making the process visible and accessible. The building is in the heart of Brickell Bay, a vibrant, bustling, and high-density neighborhood, which is also where the Miami River meets the volatile bay. This strategic site selection best serves the ecologic and economical interests of the FIU Institute of Environment for conducting cutting edge research while having presence in the urban growth of the region. The conceptual design and structural morphology of this high-rise building relies on computational methods for generating growth of tree branches or L-systems. This method is a hierarchical organization system which is suitable for designing optimized structures and circulations. The hierarchical organization of the branching logic also lends itself to creating water management and stream distribution paths which capture rainwater from the building surfaces and transfer to storage reservoirs in strategic locations. We believe that social interaction and collaboration are essential principles in creating a successful research center. Thus, the building is designed to accommodate all programmatic requirements while maintaining a balanced relationship between the exterior and interior spaces. The project aims to rethink sustainability by presenting an infrastructural landmark that invites curiosity and exploration for the community.

In Collaboration with student Lital Chertkov.

Branching System Process

Structure System Process

Generating Initial Grid Using Initial Grid Setting the Angle Increment Using the Mid Points on the Grid to Add New Points on the Outline Setting the Numberof Recursions Applying the Grid Vertically Curves to SubD Setting the Number of Recursions Setting the Structure Using the mid points on the grid to continue the ground branching system on the rest of the building Final Structure after cleaning
10 Degree 4 Recursions 4 Recursions Points to Curves 20 Degree 6 Recursions 6 Recursions Columns Placement 30 Degree 8 Recursions 8 Recursions Incorporating the L-System
Formal Typologies

GRADUATE DESIGN 6/

Micro Housing

FACULITY: ARNALDO SANCHEZ/ STUDENT: MIRLA

MICRO HOUSING

This project is meant to bring together different lies and living situations under one roof. them to interact with each other as well with nature and have more open floor facades to help natural light come in. It includes

ADA apartment with two bedrooms, two room apartments, one efficiency, a garden, commonly shared terrace. In this project, treatment and flooring patterns are based repetition of linear elements. The method approach the design was the stacking and boxes. This stacking adapts to the context having the height of the boxes correlate surrounding buildings; the lowest height with the carriage house and the highest which matches the common height of buildings. Different materials are used, wood, concrete, and glass to help emphasize boxes as well as to match the carriage features.

This project is meant to bring together different families and living situations under one roof. Allowing them to interact with each other as well as interact with nature and have more open floor plans and facades to help natural light come in. It includes one ADA apartment with two bedrooms, two one-bed-room apartments, one efficiency, a garden, and a commonly shared terrace. In this project, the roof treatment and flooring patterns are based on the repetition of linear elements. The method used to approach the design was the stacking and shifting of boxes. This stacking adapts to the context around, by having the height of the boxes correlate to the surrounding buildings; the lower height matches with the carriage house and the higher is 48 feet which matches the common height of Savannah buildings. Different materials are used, such as wood, concrete, and glass to help emphasize the boxes as well as to match the carriage house features.

INFILL Building Zoning Table and Study Diagrams
WALL SEc TION DETAILS

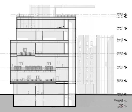
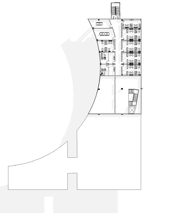
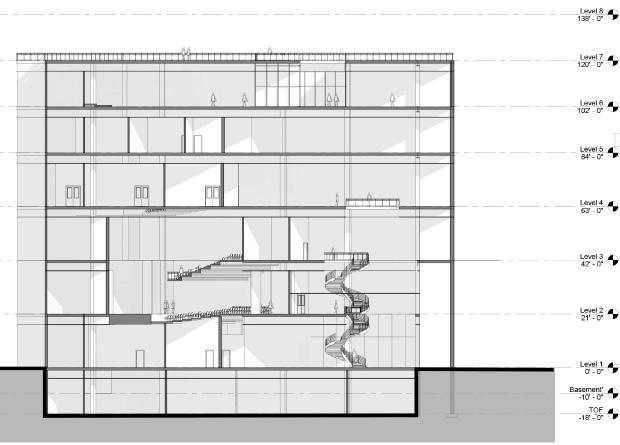
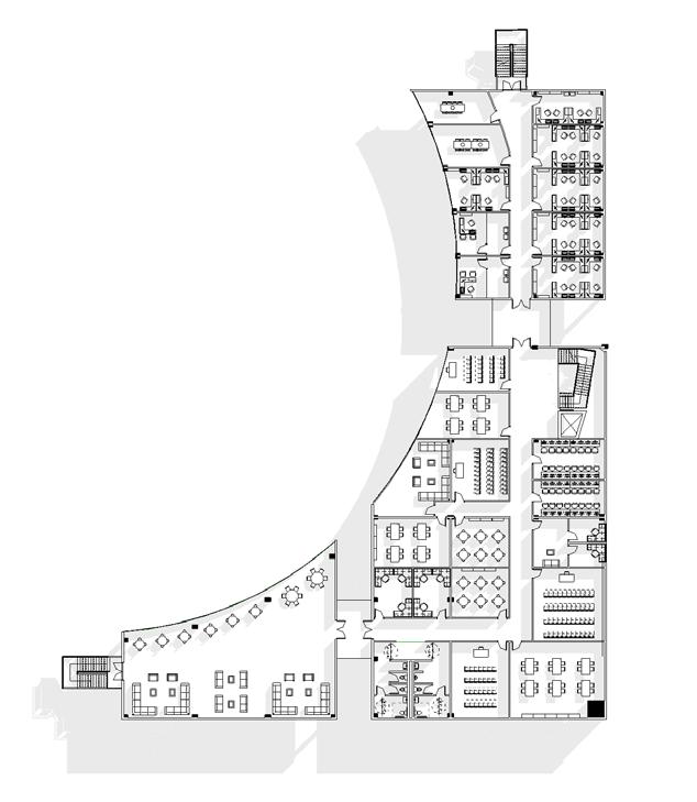
Dance Theatre of Harlem

On this project, we were to design a dance theatre in New York abiding all ADA standards and zone regulations.

My design proposal for the Dance Theatre of Harlem was based on the idea of invting and bringing more people in. It is not only a dance theatre but it also accommodates different public spaces such as community gardens, sculpture gardens, public plaza, event/ community space, retail spaces, exhibition and two auditoriums.

My design was to also give views to the users as well as exterior viewers, the placement of my dance studios would allow the students to have a view of he city while practicing and would allow people walkimg along the street to watch their movement. Not only that but the placement of most public spaces is on the ground floor which allows the public to feel more invited and welcomed.

Early Collage for Material Picking

Facade Elevation Facade Elevation Horizontal Metal Panels Vertical Metal Panels Concrete Curtain Wall

Turn static files into dynamic content formats.

Create a flipbook
Issuu converts static files into: digital portfolios, online yearbooks, online catalogs, digital photo albums and more. Sign up and create your flipbook.
Mirla Naguib-Portfolio by Mirlanaguib - Issuu