Miriam Palmer - 2025 Portfolio

Page 1


miriam palmer

416-826-3928

Bachelor of Architectural Studies (Honours)

English, German, French

Embodied Carbon Research Coordinator Ha/f Climate Design, Toronto

Architectural Intern Behnisch Architekten, Munich

Landscape Architecture Intern Hapa Collaborative, Vancouver

Architectural Intern Brown + Storey Architects, Toronto

Project Co-ordinator (Intern) Fabrik Architects, Cambridge, ON

Miriam is a graduate of the University of Waterloo School of Architecture. She has worked internationally with architecture and landscape firms, written for Spacing Magazine, and participated in research with several levels of government.

Raised in Toronto with a lifelong interest in local history, Miriam is fascinated by heritage, urban regeneration, and adaptive reuse. As a student, she organized open creative spaces for making and peer exchange.

Miriam’s academic interests have ranged from affordable housing and urban form, to the spatial history of queer nightlife and domestic labour in cohousing. True to her roots as an urbanist, her design work often deals with density, mobility networks, and rewilding urban landscapes.

Smale Fellowship, Waterloo Architecture

Highest Academic Standing, Waterloo Architecture

President’s International Experience Award, UWaterloo

Jo Beglo Book Prize, Waterloo Architecture Achievement in cultural history courses Waterloo Projects Review Exhibition: Critical Discourses

mediator

Relationships are the core of this project: client, restored agricultural site, students, teachers, and the building form an interconnected network of peers. The building highlights sensory experiences beyond sight, through heat, wind, light, and water. Engaged systems, operable apertures, ongoing maintenance of both cladding and trails all deepen attunement with seasonal rhythms.

While most educational programming takes place outside, the building provides degrees of shelter for moments of transition, pause, or retreat.

Circulation runs through a semi-conditioned Solar Collector which magnifies light and stores heat. Springbank serves to introduce users to the natural world instead of separating them from it.

Springbank Nature Centre
Summer 2024 Cambridge, ON Supervised by Jaliya Fonseka
ARCH493
Comprehensive Studio Rhino, Enscape, Adobe PS/AI

Plan

A building designed to encourage spending time outside: this seeming contradiction was addressed by treating indoor space as a continuum. Classrooms, technical and administrative spaces, and an artist’s residence are fully enclosed masses, connected by a series of insterstitial buffer zones.

These three-season spaces not only mediate the climate for the rest of the building but also pull sensory focus outside: a bright ray of sun through the clerestory, the sound of rain on the metal roof, a cool breeze on a warm day, spahses of water in the central rain garden. Beyond visual, these connections are embodied.

r.a.r.e. develops food box program with produce from expanded springbank farm first annual seed bank solstice feast Ground Floor
Community Dining Space
Section: Classroom and Multipurpose Space
Elevation: West Entry Buffer Zone
mature swale is home to turtles, frogs, and herons

Details: Habitat Integration

Barn swallows have been classified as threatened in Ontario since 2011, due to loss of habitat through increasing urbanization and the demolition of heritage barns throughout former agricultural land, like the project site.

They nest in quiet, undisturbed eaves and overhangs, which is why this nesting cornice is designed for the northern side of the building, away from human activity and closer to the existing forest on the site.

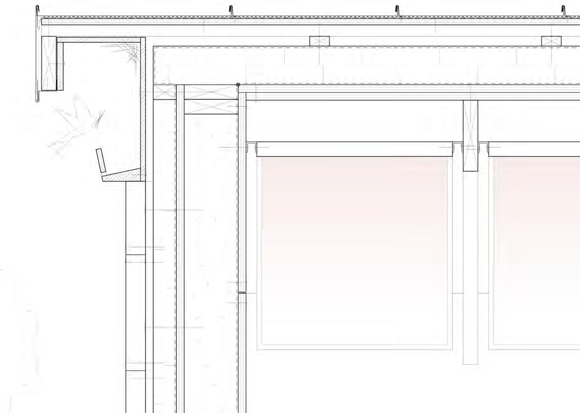
Details: Learning Porch

Smooth and functional transitions from indoors to outside were prioritized through careful detailing.

A gravel “porch” was selected for longevity and cost typical wooden porches require frequent replacement and often have moisture issues. An integrated drainage channel at the wall base catches water, leaves, gravel, and whatever else students may track in from the site.

The Solar Collector and Rain Garden anchor the heart of the project: spaces to experience light and water.

A porch along the community kitchen shades from the hot west sun, and directs rain into a channel, where it will slowly overflow and absorb into the garden and cistern.

Reclaimed bricks clad the hallway, defining a transitional space and storing heat. Occupiable nooks in the thickened wall invite students to linger.

full recladding using diseased oak trees culled from the site

Section: Rain Garden
Interior Elevation: Solar Collector
Multipurpose Room

Nestled in Toronto’s harbour, the Island has been a place of retreat since the first local Indigenous settlements. To mitigate the effects of age and annual flooding, this proposal rewilds a concrete plaza into a series of microclimates connecting inner lagoon to lake with a path network.

Five ecosystems and significant modernist structures are restored, while new pavilions create a village feeling, recalling the site’s long-demolished main street. Interventions including misting stations, rolling hillocks, and a generous dock, allow sensory connection to the landscape while maintaining ecological integrity.

Toronto Island Park Renewal
Summer 2021 Toronto, ON
Supervised by Christie Pearson
ARCH293
Landscape Studio Rhino, Adobe PS, Sketching

Experiential Axonometric

Following the progression of ecosystems from inlet shoreline through the woodland and meadows to the lakeside beach draws visitors through many microclimates and sensory experiences which change throughout the seasons. A bright red strip of dogwood defines the central spine of the park year-round.

Left: Renovated changing pavilion Section
Left: Marketplace Section
Left: Gathering Pavilion Section

Canadian embassies lack a distinct, inclusive identity appropriate to a country entering a journey of reconciliation with Indigenous peoples. In Mexico City, much of the original design intent from Métis Embassy architect Etienne Gaboury has been lost due to security needs.

We aimed to design an embassy which fosters good relations with people, ecology, and the context of Mexico City, reconnecting the sealed building to the land through the Canadian Cultural Centre. We see the existing building as a valuable gift and aim to reanimate its relevant design strategies and values while accomodating the needs of an expanded cultural diplomacy mission.

relative

Our process prioritized connecting programming with land, facilitating Canadian and Mexican Indigenous cultural practices. Public spaces were designed with accessibility and generosity in mind, while equity and collective sharing defined operational areas.

The studio was lucky to have several Indigenous advisors to inform the welcome and ceremony spaces.

The Canadian Embassy is located directly next to Mexico City’s largets urban park. We took this opportunity to lead visitors to the embassy along a path of public artwork representing many Indigenous nations from coast to coast, starting with an existing totem pole at the heart of the park, and ending in the interior courtyard of the embassy.

Right: Experiential Accessibility Diagram
Canada Garden View to Amphitheatre
Study
Canada Garden View to Amphitheatre
Cultural Plan: Cultural Ambassador, Welcome Space below
Cultural Plan of Gallery + Welcome Space
Cultural Plan of Auditorium

perimeter

This proposal for affordable housing in a diverse suburban community is grounded in a radical masterplan for infill density. The site is a 1970s

‘tower in the park’ neighbourhood, full of underutilized open space. A new context flips this pattern by using an adapted perimeter block typology to clearly define a variety of usable public spaces. Massing responds to the courtyard, a community garden and shade tolerant orchard. Wide access balconies provide seasonal shading and porches for each unit.

Winter 2022
Brampton, ON
Supervised by Adrian Blackwell
ARCH392
Housing Studio
Rhino, Enscape, Adobe PS/AI
featured on Waterloo Architecture Instagram
w/ Julian Lai

Neighbourhood Masterplan

The initial urban masterplan aimed to minimize demolition and resident displacement in a quickly changing subruban trasnit hub, using selective strategies to revitalize existing building stock and improve connectivity.

An inviting public sphere prioritizes pedestrian and cyclist safety, and features a new linear park around previously buried Lisa Creek. Two ravines now frame the site, allowing more residents access to green space.

Left: Sample unit plans
Right; Unit interior view

Along the Tiber River in Rome sits an abandoned 1920s factory site: exposed and uncomfortable, surveilled by towering apartment blocks. We focused on creating a sense of intimacy through moments of compression and expansion, directing people from the busy shopping street to the disconnected riverfront.

A partially buried library acts as a portal to the disconnected river, while two axes organize the site: cultural functions around the factory (left in a “ruin” condition), and low-rise housing near the new park to the North of the site. A long bar of housing transitions in scale between the existing tower blocks and the new neighbourhood below.

Lanza
Fall 2023
Rome, Italy
Supervised by Beatrice Bruscoli
ARCH492
Rome Studio
Rhino, Enscape, Adobe PS/AI
w/ Adrien Fera
Featured
District
View of Community “Lanterns”
Existing Site
Site Section through Abandoned Factory

A fine-grained mixture of housing typologies, tenures, and scales is a sharp contrast to the adjacent massive

residential blocks. Semiprivate courtyards provide residents with a space to meet, garden, and socialize in the tradition of the Roman piazza.

Library Passage from Piazza to River

through Linear Block

The existing buildings were handled lightly, with a selective insertion of cultural and community facilities along their southern edge, and a restoration of the heritage elements.

Avoiding rebuilding, we focused instead on creating varying levels of enclosure for different arts programming: an open “culture garden” for performance, a roofed workshop, and enclosed studios. Small studio/retail units line the street frontage under the pedestrian walkway.

Central Piazza

My work at Behnsich spanned projects and competitions, including design and CAD drafting, model building, illustration, and research. I worked on a primary school, multi-unit residential, a masterplan, trades training centre, and sports facility.

Work here is from 3 projects:

Final round of a material reuse and sustainabilityfocused housing competition: prepared presentation plans, sections, illustrations, and diagrams. Designed a placemaking concept for the central bridge space and its potential evolution over time.

Skilled trades training centre: prepared design iterations, facade research, presentation drawings, consultant documents (TransSolar), and physical model iterations during all stages of design.

Trades Training Centre

professional

During my time with Hapa, had the opportunity to work on a wide range of projects: master plans, urban design guidelines, multi-residential landscaping, rooftop gardens, public engagement workshops, and streetscape design.

Housing Competition Above: Placemaking Concept Section and

Work here is from 2 projects: Oceanside neighbourhood parks master plan with new trail networks, ecosystem management, neighbourhood parks, central urban plaza. I prepared visualizations, drawings, and managed the document layout. also coordinated the public art plan with a local consultant. Pedestrianization redesign. Consulted with suppliers and codes to detail tree planting in paved surfaces.

Ha/f Climate Design

Carbon Analysis

My work at Ha/f was wideranging: data visualization, layout management, diagramming, presentations, and report writing.

Work here is from 3 projects:

Report commissioned by a think-tank adressing the cost co-benefits of low-carbon building. prepared most of the report and led its graphic development.

Report for the City of Toronto analysing the carbon implications of its urban design guidelines. prepared data visualizations, diagrams, and anaonymized drawings for all projects.

Material guidance for a national housing guide. I drew a modern version of the previous guide’s whole house axonometric with updated details and assemblies.

Brown + Storey integrates architecture, urban planning, and landscape into all of their built projects and ongoing research. The work here is from a housing competition, created in direct collaboration with Principal James Brown, and a linear urban park.

Competition: We examined urban scales from the single family lot, to four city blocks. The urban plan was designed in a “Sponge City” framework. designed the interior layouts of each building. Every unit has access to a private courtyard and porch. From hand-sketched design concepts produced all of the drawings, diagrams, and renders of the project.

Park: I rendered views for a public consultation session. These were used by the client for publicity.

Above: Housing Competition
Below: Urban Linear Park
Above: Think-tank report Below: City of Toronto Report

Turn static files into dynamic content formats.

Create a flipbook
Issuu converts static files into: digital portfolios, online yearbooks, online catalogs, digital photo albums and more. Sign up and create your flipbook.