
Portfolio

04
08
12 Finnish Bistro One Room Skyway Remodel

18
20
22 Technical Drawings Hand Drawings Photography
![]()


04
08
12 Finnish Bistro One Room Skyway Remodel

18
20
22 Technical Drawings Hand Drawings Photography
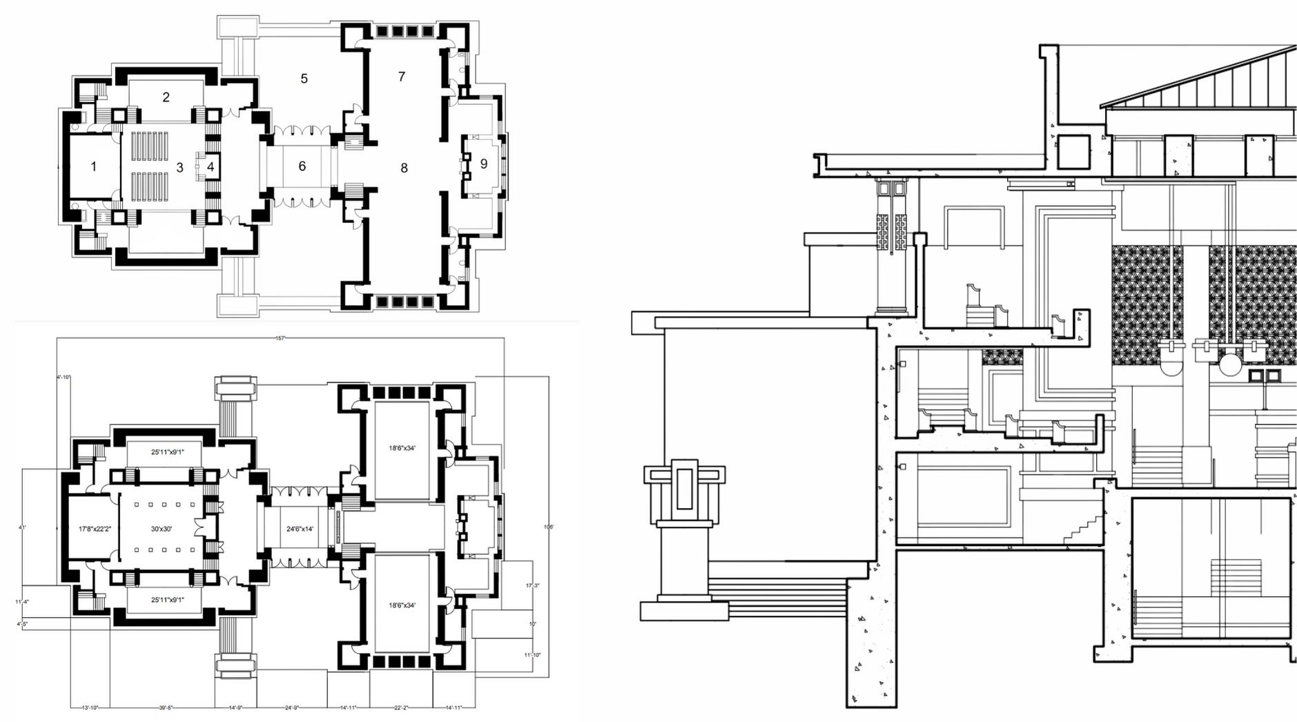
The Finnish Bistro is a locally owned cafe located along the walkable streets of St Anthony Park Minnesota. The materials and furniture were selected to enhance the cafe’s warm, cozy atmosphere, inspired by the traditional European comfort eats and pastries served in the shop daily. Through the front door customers are welcomed with a showcase of baked goods and a grand barista workstation. To the right, the dining room is framed by a wooded entryway decorated with fluted glass panes. The dining room was designed provide calm ambiance and various types of seating to serve both those looking to work long hours and those grabbing a quick bite to eat with their families.








Interior Architecture Workshop|2022
The goal of this workshop was to transform a 440 ft.² studio apartment into a comfortable and luxurious living space for two. This design optimizes space with adaptable and multi-use furniture suited for the clients’ everyday lives while adhering to the limitations of the existing room. The clients asked that a queen-sized mattress and bike storage be factored into the design.


Reflected Ceiling Plan





The central living area was designed to transform with the clients’ activity. The sofas in this room would be collapsible with wooden backs so that they could be used as benches when dining and to allow the Murphy bed to be lowered effortlessly at night. The suspended glass dining table doubles as a light fixture when not in use, but can be lowered electronically for formal dining purposes. Along the walls are hidden storage spaces for the clients’ clothing, shoes, and other personal items. The split level countertops create a clear distinction between the living space and kitchen. When users are cooking or eating in the kitchen they are able to interact with those in the living room, but when the counter is being used as a workspace the user’s view will be partially obstructed, creating a more private and focused environment for work.







Metal Facade Architecture Workshop|2023
This design is a renovation of the current Moos Tower skyway located on the University of Minnesota campus. The design of this facade provides seamless interior views with periodically diffused sunlight; the metal’s elaborate folds are showcased on the exterior. Each of the eight panels attach back to the structure with a metal frame that fits within the folds or the perforated aluminium. The vertical pillars attach back to the mullions; every other mullion is reinforced with a steel support beam to ensure structural stability.
Ceiling Support System with Roof Drain Piping
Bronze Painted Aluminum Perforated Ceiling
10’ x 12’ Bronze Painted Aluminum Perforated Panels with Support Frame
Mullions Spaced at 3’1”
Spandrel Glass Above Ceiling and Below Floor





The following pages showcase additional skills and interests that may be valuable in the workplace. The technical drawings were completed using AutoCad, the hand drawings are done in white charcoal, and the photographs were captured on an iPhone and edited using Adobe Lightroom.










