Selected Work 2024 - Meraei El Nahal

Page 1

2023-2024

Meraei El Nahal Selected Works
1
2
Table of Contents 01 Into The Space of Worship 02 The Hidden Gem 03 The Forum 04 Corner Commons 05 Before and After: The Lived Experience of Yorkville 3
4

01 Into The Space of Worship

Individual Project

University of Toronto | Fall 2022 - Winter 2023

Undergraduate Design Thesis | Simon Rabyniuk

Rhino l Adobe Illustrator l Vray l Adobe Photoshop l Field work

An Undergraduate thesis project that was divided into two parts; research and design. In fall of 2022, I researched and explored Coptic architecture, and how space and form can enhance one’s spirituality. Started by looking at Cotic ritual and the relationship between ritual and space. Then surveyed over 100 Coptic youths understanding their personal experience in the space. I was able to begin understanding what is missing in Coptic churches in Diaspora.

This guided my design process, in which I attempt to merge the gap between Indigenous Coptic designs and the Canadian landscape. Looking at the Coptic demographic in the GTA, I found a growing community in Georgetown and the closest church is either in Brampton or Mississaugua (approximately 20-30 minutes away by car). Looking further into Georgetown, there are many abandoned gems, one of which is the Barber Paper Mill. This heritage site becomes the home of a proposed Coptic church, as it bridges the gap between Coptic design and the Canadian landscape.

5

First research findings that look at a local Coptic Orthodox Church in Downtown Toronto, St. Moses and St. Katherine. The building has witnessed many religious congregations throughout the years. From a Jewish synygogue to an Anglican Church and now a Coptic Church, this history is embedded in the architecture.

This led to a question of Past, Present, Future?

Looking at different case studies across the globe in an attempt of tracking Coptic architectural elements throughout the years.

6
Top Left: St.Moses & St.Katherine, Toronto Middle: St.Paul's Monestary, Red Sea, Egypt Bottom Left: St.Mary & St.Mark, Ottawa Bottom Right: St.Mary, Melbourne, Australia Screen 1 Screen 1 placement - Threshold dividing the nave and altar Screen 2 - Division between the altar and adjacant rooms Screen Exploration -Old Cairo
7
Screen 2

About the Site:

Established in 1854 on the banks of the Credit River in Georgetown, the Barber Mill is a rare example of a pre-Confederation industrial complex. Operated by the Barber family—leading industrialists in Canada West— it became the largest industry in the County of Halton, employing hundreds of workers from the surrounding communities. The complex contributes to both the history of paper milling in Canada and the pioneering use of hydro-electric power.

The mill initially produced “rag paper” from cotton and linen rags, then manufactured paper from oat, wheat, and rye straw for nearly ten years, when it was superseded by wood pulp in 1869. The principal product of these mills was machine-finished book paper, lithographic and label papers, coloured covers and posters, and the better grade of newspaper. The complex supplied paper across the country until 1948.

8
Top Left: Georgetown map Top right: Existing structure plan with sight lines Bottom right 1 - 7: Existing structure interior views Bottom Right 8: Site , bird’s eye view
9
Structure 1 1 2 3 4 5 6 7 4 7 2 5 8 3 6
Existing
10 Program

Circulation-Desired Paths

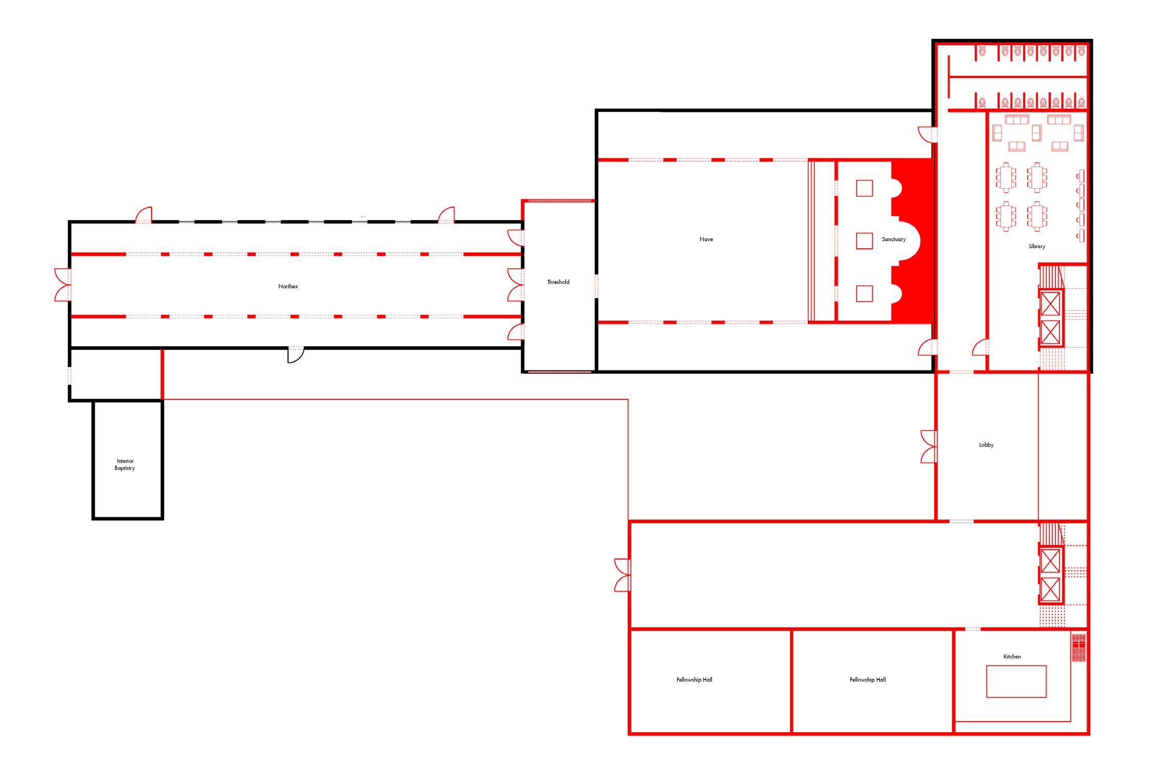
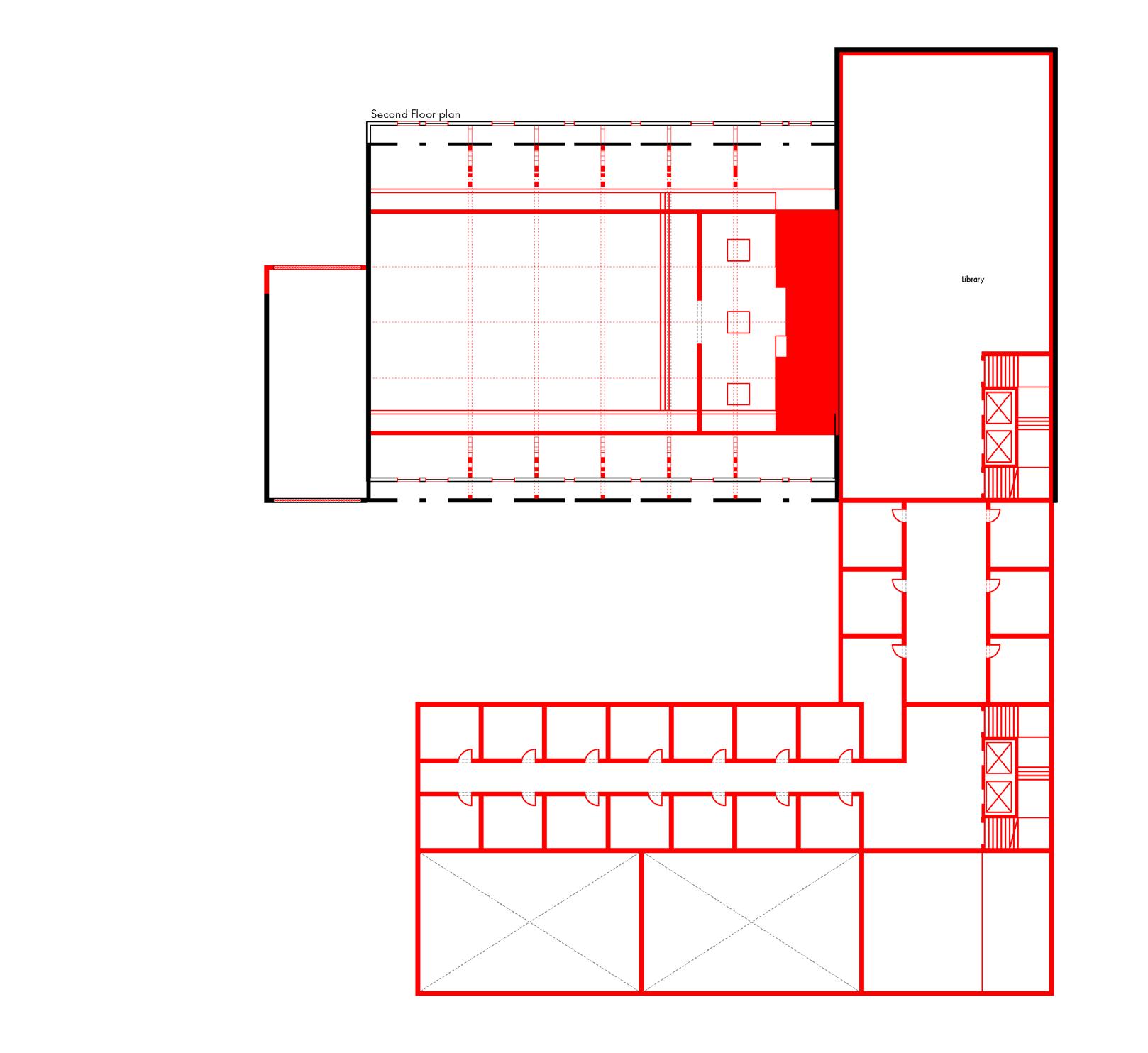
Re-adaption of the main strucutre and its use as a skeleton for the new design.

Space division is reinterpreted based on the needed space, and the sacred journey from the exterior to the interior space.

Second Floor Plan

11 Ground Floor Plan
12
Elevations
13
Sections
14 Narthex
15 Narthex
16
Aggregation
Exercise

02 The Hidden Gem

Individual Project

University of Toronto | Winter 2022

Design Studio 3 | Jon Cummings

Rhino l Adobe Illustrator l Vray l Adobe Photoshop

A student housing project that is meant to house 350 students, located on the University of Toronto campus. The main focus of this design is community and collective living, and how it can be intensified to further highlight this sense of togetherness. Pulling all the communal living activities in the middle of four bar buildings, containing the residential rooms. The shape of the core gets a distorted to further emphsize its different program, and purpose. These different programs are also reflected in building materials; the bar buildings have a heavier sense, while the interior is more light, again further highlighting its use.

17

Located on the University of Toronto campus, the site is surrounded by hisotrical and modern buildings, as well as philosopher's walk. The site has many access point and various views.

The design explored these access points while still enclosing the inner gem, that holds all social and communal ammenities.

18
Left: Figue site plan Bottom right: Model photograph in site model. Top Right: Unit Types Bottom Right.2: Ground Floor Plan
19 Ground Floor Plan:
Cafe 2- Dorms
Kitchen and Living Space
1-
3-

Elevation

Longitudinal Section

20
21
22
23
24

03 The Forum

Individual Project

University of Toronto | Fall 2023

M.Arch Design Studio 1 | Julia Di Castri Rhino l Adobe Illustrator l Adobe Photoshop

This project is based on a formal exploration of stereotomic and tectonic assemblies, leading to a hybrid building, where a certain 'moment' in the form is being capitalized and aggregated on an existing site. With these strategies in mind, we were asked to reimagine the forum of Ontario Place, creating site constraint and program requirements allowing the design to re-adapt. The design consists of truncated cones which are connected at the vertexes. This resulted in a zig zag circulation with monumental high cielings. The space is used for artwork display, openings are designed to maximize sunlight within the space, creating a natural spotlight for the artwork.

25
26
27
28
29
30
Model Photograph
31
Photograph
32 Interior
33 Render
34

04 Corner Commons

Design Build

University of Toronto | Summer 2022

Design Build | Clint Langevin and Amy Norris Rhino l Illustrator l Site Construction

The purpose of this project was to design and build a temporary, informal, gathering space which transformed a portion of the Jane Finch Mall parking lot into a welcoming public space for the community. This project consisted of two weeks to develop concept and technical drawings. Followed by work in the workshop, to prefabricate some of the design to assemble later on site. The intention of this design is to create a space in which activities run by the community can take place. The notion of temporality, safety, and rigidity was considered in the process.

35
36
37
38

05 Before and After: The Lived Experience of Yorkville

Group Project with Marly Ibrahim and Ryan Wong

University of Toronto | Fall 2022

Architecture Seminar | Anne Marie Armstrong

Rhino l Adobe Illustrator l Adobe Photoshop l Field work

A study of one of the richest neighbourhoods in Toronto, Yorkville. Based on research and multiple site visits we analysed how economic borders are spatially manifested. Looking at the history of the neighbourhood, an understanding of the emergence of Yorkville was formed. Gentrification and money influx allowed the economic elevation of the neighbourhood. Architecturally, this was shown in rent levels, door and lampost typologies, pavement changes, brands, and building typologies.

39
40
Site History
41

Looking deeper into yorkville, and the built enviornment of the neighbourhood. Looking first at the different types of building that exists in the neighbourhood and where these types are located. Then we looked at the main arteries that go through the neighbourhood. Finally residents income in relation to rent in Yorkville in comparison with rent prices in the rest of the city

42
43 Column 1: Lamps types Column 2: Doors types Column 3: Brands Column 4: Pavement
meraei.elnahal@mail.utoronto.ca 44

Turn static files into dynamic content formats.

Create a flipbook
Issuu converts static files into: digital portfolios, online yearbooks, online catalogs, digital photo albums and more. Sign up and create your flipbook.
Selected Work 2024 - Meraei El Nahal by mireilleelnahal - Issuu