Architecture Portfolio

Page 1

PORTFOLIO

Content

4 812

2028

44 38

Compacted ELL

Group project consist of 4 members (Academic project year 1/Competition «Micro home»)

Its a building for 2 users, architct and a scupturer made of 4 containers of total space 36m2 for each user and there is a common terrace between the users of space 9m2. The concept is to form housing units for 2 people using only containers and form shared space but still maintain the privacy.

FormGeneration

sectionElevation
SecondFloor ExplodedDigram
GroundFloor FirstFloor

Stepping pavilion

Group project consist of 2 members

(Academic project year 1)

(Drew by hand)

Its a pavilion made from wood blocks covered with wood plates to maintain sustainability . The waffel system was used for the structure .Provide an intresting space for people to interacte and to enojoy the nature

Siteplan

Waffle Plan Structure

Vertical Circulation Spacial Flow

Elevation
Section

Cubic Villa

Individual project (Academic project year 2)

The cubic villa is a villa project in a tower of Villas, 5 floors each

floor contain 2 villas and between each floor there is a shared public platform. The villa is constructed according to a grid as the cube is 9mx9m.The villa will fit a family of 4 members.

digram Pixel digram
Form generation of the tower
Privacy
Tower privacy digram Air-flow and shadow

Site Plan

Site Elevation

Ground Floor Plan
First Floor Plan
Second Floor Plan Split Floor Plan
Section A-A Section B-B
Exploded

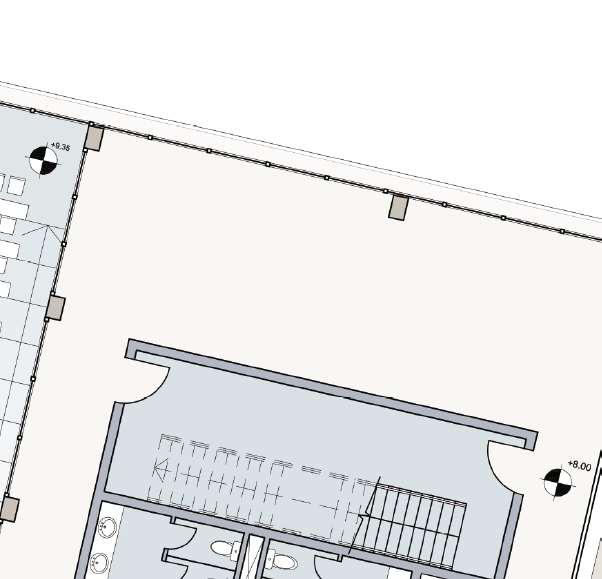
Contiguity Academy

Group project consist of 4 members (Academic project year 3)

The academy revolves around the concept of TRIADE where Film , Music and Liteture meet in one place . The first three floors are for the triade . The buiding is complimented with a big terrace (outdoor area) for interacting . To show the diffrence between the fuctions of each of the interlocking buildings , two diffrent material were used. Compacted earth wall for the form that have triade functions and the other form light conncrete walls was used.

The Living Saa’ya

Group project consist of 4 members (Academic project year 3)

The concept and design was to integrate the different cultures. We wanted to create housing units and a hub with workshops that are both inviting and create a community for the people, making them feel seen and appreciated. We also took into consideration the sun study and how it affects the plot. We used the existing sun rays as a circulation path and oriented our building accordingly.( Location: Karl marx allee,Berlin)

ConceptualDigrams

Materiality DigramExplodedDigram
AccessabilityDigram
Siteplan

Explodedgroundfloor

Here we divided the ground floor into two specific zones to provide examples and highlight the diverse workshops we have within the ground floor to create a community.

Groundfloorplan

forthfloorplan

thirdfloorplan

secondfloorplan

firstfloorplan
SouthElevation NorthElevation
SectonA-A
Prespectivesection DifferentPlanTypologies DifferentPlanTypologiesThreeBedroomTypology TwoBedroomTypology StudioApartmentTypology
ExhibitionShots PizzaWorkshop PotteryWorkshop AccessBalconiesShot

Reflection of Tradition Museum

Inividual Project (Academic Project year 4)

The museum concept was inspired by the mashrabya as an architecture element commonly found in traditional and middle eastern buildings.It serves both functional and aesthetic purpose, acting as a form of privacy screen while allowing ventilation and light to fliter through. The museum was to be built infront of Hassan Fathy house reflecting the tradition of the historical architecture and exhibiting the glory of traditional architecture.

UrbanSection
Siteplan
Firstfloorplan Formgeneration GroundfloorPlan
NorthEastElevation SouthWestElevationSouthEastSection SouthEastElevation
CourtyardShotExhibitionbalcony Shot
MekaadShot
ExhibitionShot

Chair

Group project consist of 2 members (Copetition project for «Made in Egypt» is a minimialist chair that suits any Dining area, cafe or Restaurant. It is an ergonomic chair designed to provide comfort and stability for the user. The design inspired by the enthusiasm of Egyptians while watching Football matches, so we provided extra stability and that the chairs can be stacked to store easily.

Stackable

Thank You

Turn static files into dynamic content formats.

Create a flipbook
Issuu converts static files into: digital portfolios, online yearbooks, online catalogs, digital photo albums and more. Sign up and create your flipbook.